Indisponible
Ref : 1006907-0
Vente Bureau
DARDILLY - Bureaux de 204 m² et 198m² - A LOUER / A VENDRE
Dardilly (69570)
Surface 406 m²
Divisible dès 202 m²
Description du bien
MALSH Realty & Property vous propose, À l'Ouest de Lyon, à côté de la gare de Jubin, au coeur du Techlid.
MINIPARC 2.0 réunit tous les atouts pour réussir votre implantation:
. Un cadre vert propice au bien-être, au travail et au business.
. Un accès facile à l'autoroute A6, de nombreuses possibilités de transports en commun. Notamment 2 lignes de bus 89 / 4 au pied du parc puis la ligne 3 et le TER à la Gare de Jubin.
. La proximité immédiate d'entreprises leaders sur leur marché et d'institutions intervenant dans des secteurs à haut potentiel : Veritas, Materne, Trane.
. Un vivier de compétences uniques lié au voisinage de grandes écoles : comme l'E.M Lyon.
. De nombreux lieux pour se restaurer : du prêt-à-manger et plusieurs brasseries dont certaines haut de gamme. Pôle économique de l'Ouest lyonnais, la Techlid compte 27 000 salariés réparties sur 4 000 sociétés.
Prestations du bien
- Immeuble certifié BREEAM - GOOD
- Plateaux divisibles par deux.
- Chaque plateau dispose de 2 terrasses extérieures d'environ 15m² chacune exposées Est et Sud.
- Locaux livrés en plateaux non cloisonnés
- Moquettes en dalles
- Menuiseries en aluminium double vitrage
- 3 prises de courant 220V, 1 poste de travail tous les 12 m²
- Luminaires encastrés en faux plafond type LED, 1 luminaire tous les 10 m²
- Vidéophone
- Le chauffage et la climatisation des bureaux seront assurés par des pompes à chaleur
- Sanitaires PMR
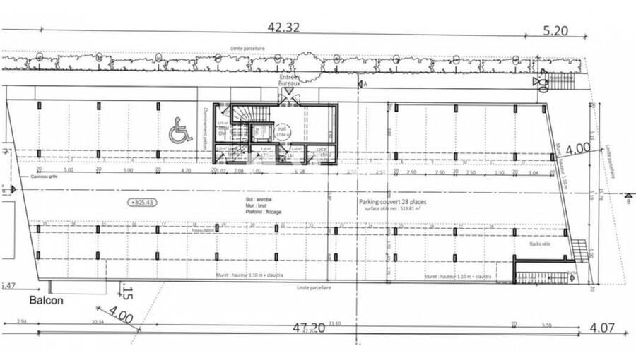
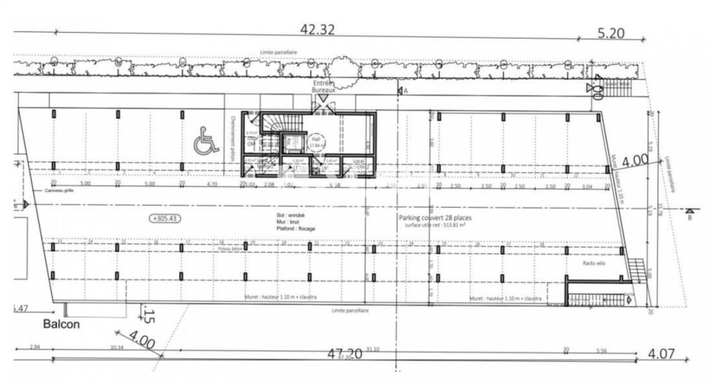
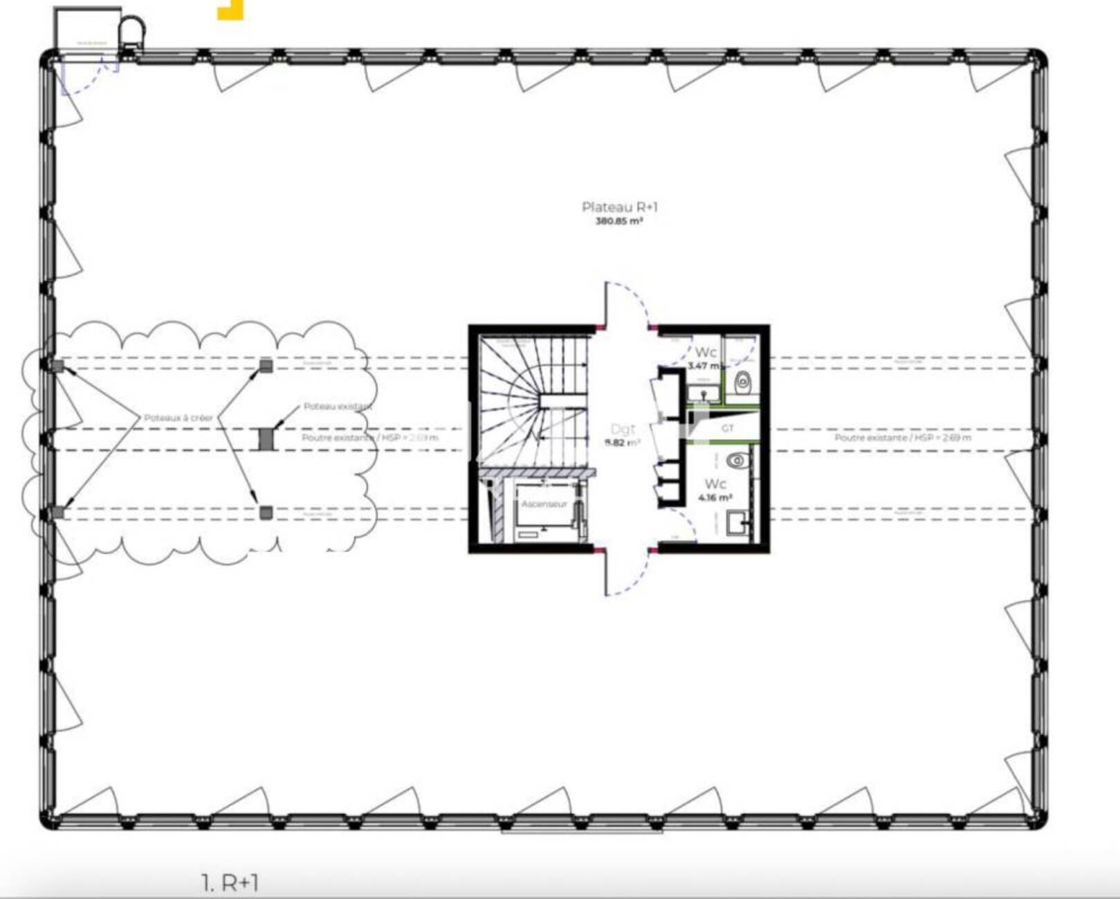
- BATIMENT 4 :
- R+2 = environ 192 m² utile + 12 m² de PC soit 204 m² SUBL
- Stationnement : 2 places doubles, 2 places préfourreautées, 1 place simple.
- Possibilité de louer 2 places supplémentaires au sous-sol du B0
- BATIMENT 0 :
- RDC = 202 SUBL dont 193 m² de surface privative à la location uniquement
- Possibilité de louer 5 parkings aériens
- Surface RDC : 202 m²
Ce local professionnel vous est présenté par
Vous souhaitez nous joindre ?
Surfaces des locaux
| Étage | Bâtiment | Type | Surfaces | Disponibilité | Loyer | Charges | Honoraires | Fiscal | Bail | Révision annuelle | Prix | Charges | Honoraires | Fiscal | Paiement Loyer | lot | Coworking | |
|---|---|---|---|---|---|---|---|---|---|---|---|---|---|---|---|---|---|---|
| 2 | Bureaux | 204 | 150 HT/HC/m²/an | 20 m²/an HT | 15% HT d'un an de loyer HT à la charge du preneur, payables à la signature du bail | 2 700 m² HD | 4% HT du montant de la vente HDE, à la charge de l'acquéreur | Lot B4 R+2 | ||||||||||
| RDC | Bureaux | 202 | 160 HT/HC/m²/an | 19 m²/an HT | 15% HT d'un an de loyer HT à la charge du preneur, payables à la signature du bail | 4% HT du montant de la vente HDE, à la charge de l'acquéreur | ||||||||||||
| Total | 406 m² |
Localisation et accessibilité
- Bus: LIGNE 3 ET 89
- SCNF: Dardilly le Jubin (SNCF)
| Étage | Bâtiment | Type | Surfaces | Disponibilité | Loyer | Charges | Honoraires | Fiscal | Bail | Révision annuelle | Prix | Charges | Honoraires | Fiscal | Paiement Loyer | lot | Coworking | |
|---|---|---|---|---|---|---|---|---|---|---|---|---|---|---|---|---|---|---|
| 2 | Bureaux | 204 | 150 HT/HC/m²/an | 20 m²/an HT | 15% HT d'un an de loyer HT à la charge du preneur, payables à la signature du bail | 2 700 m² HD | 4% HT du montant de la vente HDE, à la charge de l'acquéreur | Lot B4 R+2 | ||||||||||
| RDC | Bureaux | 202 | 160 HT/HC/m²/an | 19 m²/an HT | 15% HT d'un an de loyer HT à la charge du preneur, payables à la signature du bail | 4% HT du montant de la vente HDE, à la charge de l'acquéreur | ||||||||||||
| Total | 406 m² |















































