Ref : 1031785-0
Vente Local d'activités
Vente ou Location Locaux d'Activités - Bourgoin Jallieu (38300) - 6302 m² divisibles à partir de 187 m²
Bourgoin-Jallieu (38300)
Prix : 9 438 507 €
Surface 6 302 m²
Divisible dès 187 m²
Description du bien
MALSH Realty vous propose à la vente à Bourgoin-Jallieu, des cellules d'activités neuves d'une surface totale d'environ 6 302 m² divisibles en plusieurs lots à partir de 187 m².
Situé à proximité de l'A43 et la D1006, dans un parc d'activités neuf composé de 5 bâtiments.
Location possible.
Prestations du bien
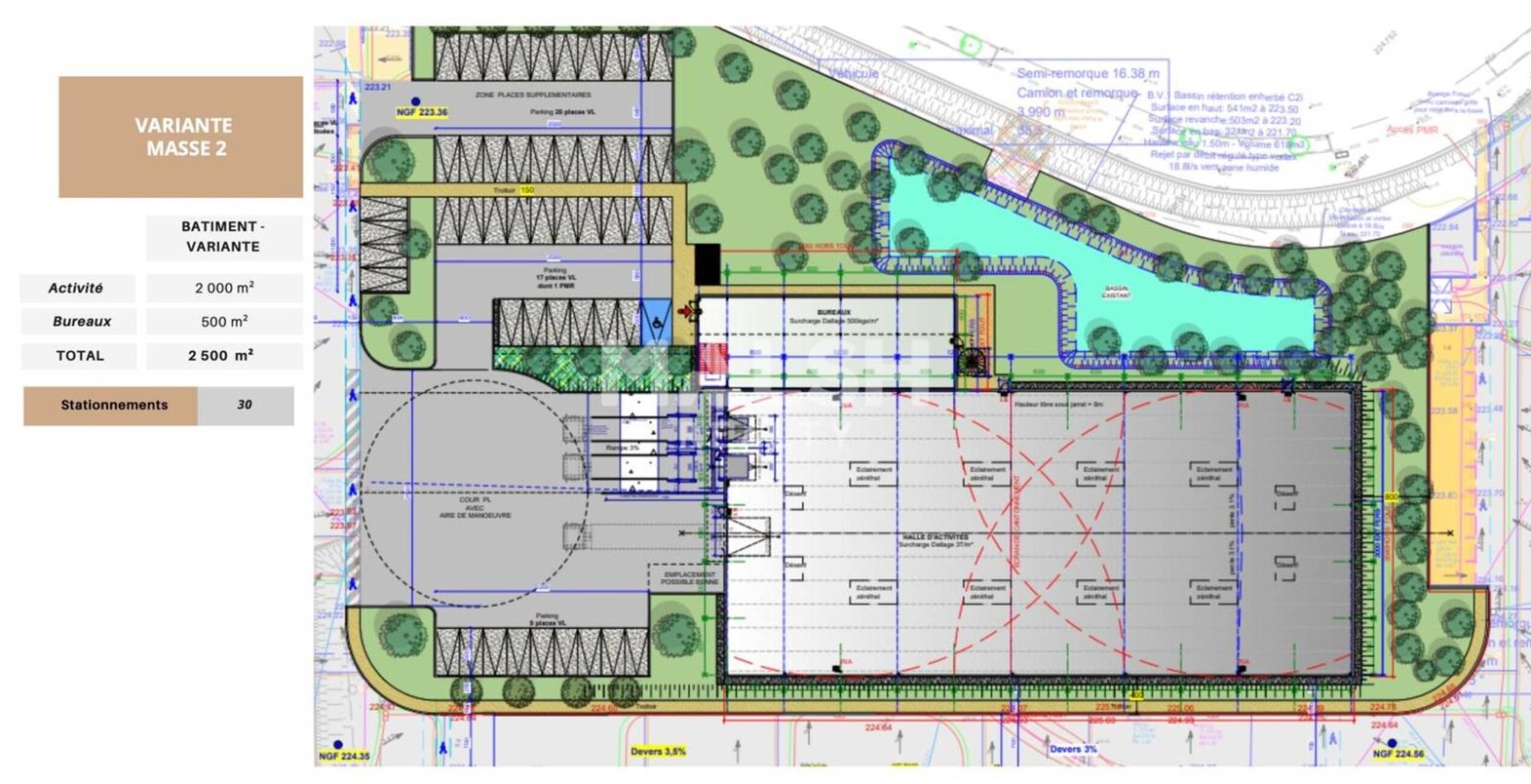
- Variante Masse 2 : Clé en mains de 2 500 m²
- Masse 4 en cours de construction
- Livraison brute, fluides en attente
- Lots 4M et 4H : surfaces avec bureaux aménagés
- ACTIVITÉ :
- Dallage industriel. Résistance : 3 T/m²
- Hauteur libre minimum : 6,5 m
- Portes sectionnelles de 4 m X 4,5 m
- Chauffage gaz par aérotherme (non inclus dans la prestation dite "brute")
- BUREAUX :
- Livrés nus ou cloisonnés câblés
- Climatisation réversible
- Electricité courant fort
- Faux-plafonds
- Résistance sol : 3 T/m²
Informations financières
- Bail : commercial 6-9 ans
- Informations location :
Conditions particulières à la vente : Stationnements: 191 places VL: 4.000 euros HT/Unité
- Dépôt de garantie : 3 mois de loyer HT/HC
Ce local professionnel vous est présenté par
Vous souhaitez nous joindre ?
Surfaces des locaux
| Étage | Bâtiment | Type | Surfaces | Disponibilité | Loyer | Charges | Honoraires | Fiscal | Bail | Révision annuelle | Prix | Charges | Honoraires | Fiscal | Paiement Loyer | lot | Coworking | |
|---|---|---|---|---|---|---|---|---|---|---|---|---|---|---|---|---|---|---|
| Activités | 398,8 | 15 % HT du loyer annuel HT/HC à la charge du preneur, payables à la signature du bail | T.V.A. (20%) | ILAT Indice des Loyers des Activités Tertiaires | 3 % HT du prix de vente HT, à la charge de l'acquéreur, payables à la signature de l'acte | TVA | Trimestriel d'avance | |||||||||||
| Bureaux | 225,76 | 15 % HT du loyer annuel HT/HC à la charge du preneur, payables à la signature du bail | T.V.A. (20%) | ILAT Indice des Loyers des Activités Tertiaires | 3 % HT du prix de vente HT, à la charge de l'acquéreur, payables à la signature de l'acte | TVA | Trimestriel d'avance | |||||||||||
| Total Cellule 2A | Activités | 624,56 | 15 % HT du loyer annuel HT/HC à la charge du preneur, payables à la signature du bail | T.V.A. (20%) | commercial 6-9 ans | ILAT Indice des Loyers des Activités Tertiaires | 1 507,7 HT/m² | 3 % HT du prix de vente HT, à la charge de l'acquéreur, payables à la signature de l'acte | TVA | Trimestriel d'avance | 2A | |||||||
| Activités | 167,63 | 15 % HT du loyer annuel HT/HC à la charge du preneur, payables à la signature du bail | T.V.A. (20%) | commercial 6-9 ans | ILAT Indice des Loyers des Activités Tertiaires | 3 % HT du prix de vente HT, à la charge de l'acquéreur, payables à la signature de l'acte | TVA | Trimestriel d'avance | ||||||||||
| Bureaux | 49 | 15 % HT du loyer annuel HT/HC à la charge du preneur, payables à la signature du bail | T.V.A. (20%) | commercial 6-9 ans | ILAT Indice des Loyers des Activités Tertiaires | 3 % HT du prix de vente HT, à la charge de l'acquéreur, payables à la signature de l'acte | TVA | Trimestriel d'avance | ||||||||||
| Total Cellule 2B1 | Activités | 216,63 | 15 % HT du loyer annuel HT/HC à la charge du preneur, payables à la signature du bail | T.V.A. (20%) | commercial 6-9 ans | ILAT Indice des Loyers des Activités Tertiaires | 1 507,87 HT/m² | 3 % HT du prix de vente HT, à la charge de l'acquéreur, payables à la signature de l'acte | TVA | Trimestriel d'avance | 2B1 | |||||||
| Activités | 168,72 | 15 % HT du loyer annuel HT/HC à la charge du preneur, payables à la signature du bail | T.V.A. (20%) | commercial 6-9 ans | ILAT Indice des Loyers des Activités Tertiaires | 3 % HT du prix de vente HT, à la charge de l'acquéreur, payables à la signature de l'acte | TVA | Trimestriel d'avance | ||||||||||
| Bureaux | 53,12 | 15 % HT du loyer annuel HT/HC à la charge du preneur, payables à la signature du bail | T.V.A. (20%) | commercial 6-9 ans | ILAT Indice des Loyers des Activités Tertiaires | 3 % HT du prix de vente HT, à la charge de l'acquéreur, payables à la signature de l'acte | TVA | Trimestriel d'avance | ||||||||||
| Total Cellule 2B2 | Activités | 221,84 | 15 % HT du loyer annuel HT/HC à la charge du preneur, payables à la signature du bail | T.V.A. (20%) | commercial 6-9 ans | ILAT Indice des Loyers des Activités Tertiaires | 1 505,14 HT/m² | 3 % HT du prix de vente HT, à la charge de l'acquéreur, payables à la signature de l'acte | TVA | Trimestriel d'avance | 2B2 | |||||||
| Activités | 170,5 | 15 % HT du loyer annuel HT/HC à la charge du preneur, payables à la signature du bail | T.V.A. (20%) | ILAT Indice des Loyers des Activités Tertiaires | 3 % HT du prix de vente HT, à la charge de l'acquéreur, payables à la signature de l'acte | TVA | Trimestriel d'avance | |||||||||||
| Bureaux | 46,37 | 15 % HT du loyer annuel HT/HC à la charge du preneur, payables à la signature du bail | T.V.A. (20%) | ILAT Indice des Loyers des Activités Tertiaires | 3 % HT du prix de vente HT, à la charge de l'acquéreur, payables à la signature de l'acte | TVA | Trimestriel d'avance | |||||||||||
| Total Cellule 2C1 | Activités | 216,87 | 15 % HT du loyer annuel HT/HC à la charge du preneur, payables à la signature du bail | T.V.A. (20%) | commercial 6-9 ans | ILAT Indice des Loyers des Activités Tertiaires | 1 524,65 HT/m² | 3 % HT du prix de vente HT, à la charge de l'acquéreur, payables à la signature de l'acte | TVA | Trimestriel d'avance | 2C1 | |||||||
| Activités | 172,52 | 15 % HT du loyer annuel HT/HC à la charge du preneur, payables à la signature du bail | T.V.A. (20%) | commercial 6-9 ans | ILAT Indice des Loyers des Activités Tertiaires | 3 % HT du prix de vente HT, à la charge de l'acquéreur, payables à la signature de l'acte | TVA | Trimestriel d'avance | ||||||||||
| Bureaux | 46,37 | 15 % HT du loyer annuel HT/HC à la charge du preneur, payables à la signature du bail | T.V.A. (20%) | commercial 6-9 ans | ILAT Indice des Loyers des Activités Tertiaires | 3 % HT du prix de vente HT, à la charge de l'acquéreur, payables à la signature de l'acte | TVA | Trimestriel d'avance | ||||||||||
| Total Cellule 2C2 | Activités | 218,89 | 15 % HT du loyer annuel HT/HC à la charge du preneur, payables à la signature du bail | T.V.A. (20%) | commercial 6-9 ans | ILAT Indice des Loyers des Activités Tertiaires | 1 523,82 HT/m² | 3 % HT du prix de vente HT, à la charge de l'acquéreur, payables à la signature de l'acte | TVA | Trimestriel d'avance | 2C2 | |||||||
| Activités | 359,93 | 15 % HT du loyer annuel HT/HC à la charge du preneur, payables à la signature du bail | T.V.A. (20%) | commercial 6-9 ans | ILAT Indice des Loyers des Activités Tertiaires | 3 % HT du prix de vente HT, à la charge de l'acquéreur, payables à la signature de l'acte | TVA | Trimestriel d'avance | ||||||||||
| Bureaux | 142,6 | 15 % HT du loyer annuel HT/HC à la charge du preneur, payables à la signature du bail | T.V.A. (20%) | commercial 6-9 ans | ILAT Indice des Loyers des Activités Tertiaires | 3 % HT du prix de vente HT, à la charge de l'acquéreur, payables à la signature de l'acte | TVA | Trimestriel d'avance | ||||||||||
| Total Cellule 2D | Activités | 502,53 | 15 % HT du loyer annuel HT/HC à la charge du preneur, payables à la signature du bail | T.V.A. (20%) | commercial 6-9 ans | ILAT Indice des Loyers des Activités Tertiaires | 1 473,05 HT/m² | 3 % HT du prix de vente HT, à la charge de l'acquéreur, payables à la signature de l'acte | TVA | Trimestriel d'avance | 2D | |||||||
| Activités | 561,87 | 15 % HT du loyer annuel HT/HC à la charge du preneur, payables à la signature du bail | T.V.A. (20%) | commercial 6-9 ans | ILAT Indice des Loyers des Activités Tertiaires | 3 % HT du prix de vente HT, à la charge de l'acquéreur, payables à la signature de l'acte | TVA | Trimestriel d'avance | ||||||||||
| Bureaux | 142,6 | 15 % HT du loyer annuel HT/HC à la charge du preneur, payables à la signature du bail | T.V.A. (20%) | commercial 6-9 ans | ILAT Indice des Loyers des Activités Tertiaires | 3 % HT du prix de vente HT, à la charge de l'acquéreur, payables à la signature de l'acte | TVA | Trimestriel d'avance | ||||||||||
| Total Cellule 2E | Activités | 704,47 | 15 % HT du loyer annuel HT/HC à la charge du preneur, payables à la signature du bail | T.V.A. (20%) | commercial 6-9 ans | ILAT Indice des Loyers des Activités Tertiaires | 1 431,93 HT/m² | 3 % HT du prix de vente HT, à la charge de l'acquéreur, payables à la signature de l'acte | TVA | Trimestriel d'avance | 2E | |||||||
| Activités | 361,89 | 15 % HT du loyer annuel HT/HC à la charge du preneur, payables à la signature du bail | T.V.A. (20%) | commercial 6-9 ans | ILAT Indice des Loyers des Activités Tertiaires | 3 % HT du prix de vente HT, à la charge de l'acquéreur, payables à la signature de l'acte | TVA | Trimestriel d'avance | ||||||||||
| Bureaux | 142,6 | 15 % HT du loyer annuel HT/HC à la charge du preneur, payables à la signature du bail | T.V.A. (20%) | commercial 6-9 ans | ILAT Indice des Loyers des Activités Tertiaires | 3 % HT du prix de vente HT, à la charge de l'acquéreur, payables à la signature de l'acte | TVA | Trimestriel d'avance | ||||||||||
| Total Cellule 2F | Activités | 504,49 | 15 % HT du loyer annuel HT/HC à la charge du preneur, payables à la signature du bail | T.V.A. (20%) | commercial 6-9 ans | ILAT Indice des Loyers des Activités Tertiaires | 1 472,28 HT/m² | 3 % HT du prix de vente HT, à la charge de l'acquéreur, payables à la signature de l'acte | TVA | Trimestriel d'avance | 2F | |||||||
| Activités | 197,66 | 15 % HT du loyer annuel HT/HC à la charge du preneur, payables à la signature du bail | T.V.A. (20%) | commercial 6-9 ans | ILAT Indice des Loyers des Activités Tertiaires | 3 % HT du prix de vente HT, à la charge de l'acquéreur, payables à la signature de l'acte | TVA | Trimestriel d'avance | ||||||||||
| Bureaux | 68,09 | 15 % HT du loyer annuel HT/HC à la charge du preneur, payables à la signature du bail | T.V.A. (20%) | commercial 6-9 ans | ILAT Indice des Loyers des Activités Tertiaires | 3 % HT du prix de vente HT, à la charge de l'acquéreur, payables à la signature de l'acte | TVA | Trimestriel d'avance | ||||||||||
| Total Cellule 2G | Activités | 265,75 | 15 % HT du loyer annuel HT/HC à la charge du preneur, payables à la signature du bail | T.V.A. (20%) | commercial 6-9 ans | ILAT Indice des Loyers des Activités Tertiaires | 1 511,57 HT/m² | 3 % HT du prix de vente HT, à la charge de l'acquéreur, payables à la signature de l'acte | TVA | Trimestriel d'avance | 2G | |||||||
| Activités | 140,49 | 15 % HT du loyer annuel HT/HC à la charge du preneur, payables à la signature du bail | T.V.A. (20%) | ILAT Indice des Loyers des Activités Tertiaires | 3 % HT du prix de vente HT, à la charge de l'acquéreur, payables à la signature de l'acte | TVA | Trimestriel d'avance | |||||||||||
| Bureaux | 47,01 | 15 % HT du loyer annuel HT/HC à la charge du preneur, payables à la signature du bail | T.V.A. (20%) | ILAT Indice des Loyers des Activités Tertiaires | 3 % HT du prix de vente HT, à la charge de l'acquéreur, payables à la signature de l'acte | TVA | Trimestriel d'avance | |||||||||||
| Total Cellule 4B | Activités | 187,5 | 15 % HT du loyer annuel HT/HC à la charge du preneur, payables à la signature du bail | T.V.A. (20%) | commercial 6-9 ans | ILAT Indice des Loyers des Activités Tertiaires | 1 514 HT/m² | 3 % HT du prix de vente HT, à la charge de l'acquéreur, payables à la signature de l'acte | TVA | Trimestriel d'avance | 4B | |||||||
| Activités | 140,49 | 15 % HT du loyer annuel HT/HC à la charge du preneur, payables à la signature du bail | T.V.A. (20%) | commercial 6-9 ans | ILAT Indice des Loyers des Activités Tertiaires | 3 % HT du prix de vente HT, à la charge de l'acquéreur, payables à la signature de l'acte | TVA | Trimestriel d'avance | ||||||||||
| Bureaux | 47,01 | 15 % HT du loyer annuel HT/HC à la charge du preneur, payables à la signature du bail | T.V.A. (20%) | commercial 6-9 ans | ILAT Indice des Loyers des Activités Tertiaires | 3 % HT du prix de vente HT, à la charge de l'acquéreur, payables à la signature de l'acte | TVA | Trimestriel d'avance | ||||||||||
| Total Cellule 4C | Activités | 187,5 | 15 % HT du loyer annuel HT/HC à la charge du preneur, payables à la signature du bail | T.V.A. (20%) | commercial 6-9 ans | ILAT Indice des Loyers des Activités Tertiaires | 1 514 HT/m² | 3 % HT du prix de vente HT, à la charge de l'acquéreur, payables à la signature de l'acte | TVA | Trimestriel d'avance | 4C | |||||||
| Activités | 140,49 | 15 % HT du loyer annuel HT/HC à la charge du preneur, payables à la signature du bail | T.V.A. (20%) | commercial 6-9 ans | ILAT Indice des Loyers des Activités Tertiaires | 3 % HT du prix de vente HT, à la charge de l'acquéreur, payables à la signature de l'acte | TVA | Trimestriel d'avance | ||||||||||
| Bureaux | 48,08 | 15 % HT du loyer annuel HT/HC à la charge du preneur, payables à la signature du bail | T.V.A. (20%) | commercial 6-9 ans | ILAT Indice des Loyers des Activités Tertiaires | 3 % HT du prix de vente HT, à la charge de l'acquéreur, payables à la signature de l'acte | TVA | Trimestriel d'avance | ||||||||||
| Total Cellule 4D | Activités | 188,57 | 15 % HT du loyer annuel HT/HC à la charge du preneur, payables à la signature du bail | T.V.A. (20%) | commercial 6-9 ans | ILAT Indice des Loyers des Activités Tertiaires | 1 513,63 HT/m² | 3 % HT du prix de vente HT, à la charge de l'acquéreur, payables à la signature de l'acte | TVA | Trimestriel d'avance | 4D | |||||||
| Activités | 170,49 | 15 % HT du loyer annuel HT/HC à la charge du preneur, payables à la signature du bail | T.V.A. (20%) | commercial 6-9 ans | ILAT Indice des Loyers des Activités Tertiaires | 3 % HT du prix de vente HT, à la charge de l'acquéreur, payables à la signature de l'acte | TVA | Trimestriel d'avance | ||||||||||
| Bureaux | 47,01 | 15 % HT du loyer annuel HT/HC à la charge du preneur, payables à la signature du bail | T.V.A. (20%) | commercial 6-9 ans | ILAT Indice des Loyers des Activités Tertiaires | 3 % HT du prix de vente HT, à la charge de l'acquéreur, payables à la signature de l'acte | TVA | Trimestriel d'avance | ||||||||||
| Total Cellule 4F | Activités | 217,5 | 15 % HT du loyer annuel HT/HC à la charge du preneur, payables à la signature du bail | T.V.A. (20%) | commercial 6-9 ans | ILAT Indice des Loyers des Activités Tertiaires | 1 505,17 HT/m² | 3 % HT du prix de vente HT, à la charge de l'acquéreur, payables à la signature de l'acte | TVA | Trimestriel d'avance | 4F | |||||||
| Activités | 171,47 | 15 % HT du loyer annuel HT/HC à la charge du preneur, payables à la signature du bail | T.V.A. (20%) | commercial 6-9 ans | ILAT Indice des Loyers des Activités Tertiaires | 3 % HT du prix de vente HT, à la charge de l'acquéreur, payables à la signature de l'acte | TVA | Trimestriel d'avance | ||||||||||
| Bureaux | 46,4 | 15 % HT du loyer annuel HT/HC à la charge du preneur, payables à la signature du bail | T.V.A. (20%) | commercial 6-9 ans | ILAT Indice des Loyers des Activités Tertiaires | 3 % HT du prix de vente HT, à la charge de l'acquéreur, payables à la signature de l'acte | TVA | Trimestriel d'avance | ||||||||||
| Total Cellule 4G | Activités | 217,87 | 15 % HT du loyer annuel HT/HC à la charge du preneur, payables à la signature du bail | T.V.A. (20%) | commercial 6-9 ans | ILAT Indice des Loyers des Activités Tertiaires | 1 505,08 HT/m² | 3 % HT du prix de vente HT, à la charge de l'acquéreur, payables à la signature de l'acte | TVA | Trimestriel d'avance | 4G | |||||||
| Activités | 374,52 | 15 % HT du loyer annuel HT/HC à la charge du preneur, payables à la signature du bail | T.V.A. (20%) | commercial 6-9 ans | ILAT Indice des Loyers des Activités Tertiaires | 3 % HT du prix de vente HT, à la charge de l'acquéreur, payables à la signature de l'acte | TVA | Trimestriel d'avance | ||||||||||
| Bureaux | 106,5 | 15 % HT du loyer annuel HT/HC à la charge du preneur, payables à la signature du bail | T.V.A. (20%) | commercial 6-9 ans | ILAT Indice des Loyers des Activités Tertiaires | 3 % HT du prix de vente HT, à la charge de l'acquéreur, payables à la signature de l'acte | TVA | Trimestriel d'avance | ||||||||||
| Total Cellule 4H | Activités | 481,02 | 15 % HT du loyer annuel HT/HC à la charge du preneur, payables à la signature du bail | T.V.A. (20%) | commercial 6-9 ans | ILAT Indice des Loyers des Activités Tertiaires | 1 508,21 HT/m² | 3 % HT du prix de vente HT, à la charge de l'acquéreur, payables à la signature de l'acte | TVA | Trimestriel d'avance | 4H | |||||||
| Activités | 167,1 | 15 % HT du loyer annuel HT/HC à la charge du preneur, payables à la signature du bail | T.V.A. (20%) | commercial 6-9 ans | ILAT Indice des Loyers des Activités Tertiaires | 3 % HT du prix de vente HT, à la charge de l'acquéreur, payables à la signature de l'acte | TVA | Trimestriel d'avance | ||||||||||
| Bureaux | 46,4 | 15 % HT du loyer annuel HT/HC à la charge du preneur, payables à la signature du bail | T.V.A. (20%) | commercial 6-9 ans | ILAT Indice des Loyers des Activités Tertiaires | 3 % HT du prix de vente HT, à la charge de l'acquéreur, payables à la signature de l'acte | TVA | Trimestriel d'avance | ||||||||||
| Total Cellule 4I | Activités | 213,5 | 15 % HT du loyer annuel HT/HC à la charge du preneur, payables à la signature du bail | T.V.A. (20%) | commercial 6-9 ans | ILAT Indice des Loyers des Activités Tertiaires | 1 524,94 HT/m² | 3 % HT du prix de vente HT, à la charge de l'acquéreur, payables à la signature de l'acte | TVA | Trimestriel d'avance | 4I | |||||||
| Activités | 173,9 | 15 % HT du loyer annuel HT/HC à la charge du preneur, payables à la signature du bail | T.V.A. (20%) | commercial 6-9 ans | ILAT Indice des Loyers des Activités Tertiaires | 3 % HT du prix de vente HT, à la charge de l'acquéreur, payables à la signature de l'acte | TVA | Trimestriel d'avance | ||||||||||
| Bureaux | 46,4 | 15 % HT du loyer annuel HT/HC à la charge du preneur, payables à la signature du bail | T.V.A. (20%) | commercial 6-9 ans | ILAT Indice des Loyers des Activités Tertiaires | 3 % HT du prix de vente HT, à la charge de l'acquéreur, payables à la signature de l'acte | TVA | Trimestriel d'avance | ||||||||||
| Total Cellule 4J | Activités | 220,3 | 15 % HT du loyer annuel HT/HC à la charge du preneur, payables à la signature du bail | T.V.A. (20%) | commercial 6-9 ans | ILAT Indice des Loyers des Activités Tertiaires | 1 522,63 HT/m² | 3 % HT du prix de vente HT, à la charge de l'acquéreur, payables à la signature de l'acte | TVA | Trimestriel d'avance | 4J | |||||||
| Activités | 173,9 | 15 % HT du loyer annuel HT/HC à la charge du preneur, payables à la signature du bail | T.V.A. (20%) | commercial 6-9 ans | ILAT Indice des Loyers des Activités Tertiaires | 3 % HT du prix de vente HT, à la charge de l'acquéreur, payables à la signature de l'acte | TVA | Trimestriel d'avance | ||||||||||
| Bureaux | 46,4 | 15 % HT du loyer annuel HT/HC à la charge du preneur, payables à la signature du bail | T.V.A. (20%) | commercial 6-9 ans | ILAT Indice des Loyers des Activités Tertiaires | 3 % HT du prix de vente HT, à la charge de l'acquéreur, payables à la signature de l'acte | TVA | Trimestriel d'avance | ||||||||||
| Total Cellule 4K | Activités | 220,3 | 15 % HT du loyer annuel HT/HC à la charge du preneur, payables à la signature du bail | T.V.A. (20%) | commercial 6-9 ans | ILAT Indice des Loyers des Activités Tertiaires | 1 522,63 HT/m² | 3 % HT du prix de vente HT, à la charge de l'acquéreur, payables à la signature de l'acte | TVA | Trimestriel d'avance | 4K | |||||||
| Activités | 167,1 | 15 % HT du loyer annuel HT/HC à la charge du preneur, payables à la signature du bail | T.V.A. (20%) | commercial 6-9 ans | ILAT Indice des Loyers des Activités Tertiaires | 3 % HT du prix de vente HT, à la charge de l'acquéreur, payables à la signature de l'acte | TVA | Trimestriel d'avance | ||||||||||
| Bureaux | 46,4 | 15 % HT du loyer annuel HT/HC à la charge du preneur, payables à la signature du bail | T.V.A. (20%) | commercial 6-9 ans | ILAT Indice des Loyers des Activités Tertiaires | 3 % HT du prix de vente HT, à la charge de l'acquéreur, payables à la signature de l'acte | TVA | Trimestriel d'avance | ||||||||||
| Total Cellule 4L | Activités | 213,5 | 15 % HT du loyer annuel HT/HC à la charge du preneur, payables à la signature du bail | T.V.A. (20%) | commercial 6-9 ans | ILAT Indice des Loyers des Activités Tertiaires | 1 524,94 HT/m² | 3 % HT du prix de vente HT, à la charge de l'acquéreur, payables à la signature de l'acte | TVA | Trimestriel d'avance | 4L | |||||||
| Activités | 373 | 15 % HT du loyer annuel HT/HC à la charge du preneur, payables à la signature du bail | T.V.A. (20%) | ILAT Indice des Loyers des Activités Tertiaires | 3 % HT du prix de vente HT, à la charge de l'acquéreur, payables à la signature de l'acte | TVA | Trimestriel d'avance | |||||||||||
| Bureaux | 106,1 | 15 % HT du loyer annuel HT/HC à la charge du preneur, payables à la signature du bail | T.V.A. (20%) | ILAT Indice des Loyers des Activités Tertiaires | 3 % HT du prix de vente HT, à la charge de l'acquéreur, payables à la signature de l'acte | TVA | Trimestriel d'avance | |||||||||||
| Total Cellule 4M | Activités | 479,1 | 15 % HT du loyer annuel HT/HC à la charge du preneur, payables à la signature du bail | T.V.A. (20%) | commercial 6-9 ans | ILAT Indice des Loyers des Activités Tertiaires | 1 508,44 HT/m² | 3 % HT du prix de vente HT, à la charge de l'acquéreur, payables à la signature de l'acte | TVA | Trimestriel d'avance | 4M | |||||||
| Total | 6 302,69 m² |
Localisation et accessibilité
- SCNF: Gare TER Bourgoin Jaillieu à 10 min
- Autoroute: À proximité de l'A43 et de la départementale D1006
Ces biens pourraient vous intéresser
| Étage | Bâtiment | Type | Surfaces | Disponibilité | Loyer | Charges | Honoraires | Fiscal | Bail | Révision annuelle | Prix | Charges | Honoraires | Fiscal | Paiement Loyer | lot | Coworking | |
|---|---|---|---|---|---|---|---|---|---|---|---|---|---|---|---|---|---|---|
| Activités | 398,8 | 15 % HT du loyer annuel HT/HC à la charge du preneur, payables à la signature du bail | T.V.A. (20%) | ILAT Indice des Loyers des Activités Tertiaires | 3 % HT du prix de vente HT, à la charge de l'acquéreur, payables à la signature de l'acte | TVA | Trimestriel d'avance | |||||||||||
| Bureaux | 225,76 | 15 % HT du loyer annuel HT/HC à la charge du preneur, payables à la signature du bail | T.V.A. (20%) | ILAT Indice des Loyers des Activités Tertiaires | 3 % HT du prix de vente HT, à la charge de l'acquéreur, payables à la signature de l'acte | TVA | Trimestriel d'avance | |||||||||||
| Total Cellule 2A | Activités | 624,56 | 15 % HT du loyer annuel HT/HC à la charge du preneur, payables à la signature du bail | T.V.A. (20%) | commercial 6-9 ans | ILAT Indice des Loyers des Activités Tertiaires | 1 507,7 HT/m² | 3 % HT du prix de vente HT, à la charge de l'acquéreur, payables à la signature de l'acte | TVA | Trimestriel d'avance | 2A | |||||||
| Activités | 167,63 | 15 % HT du loyer annuel HT/HC à la charge du preneur, payables à la signature du bail | T.V.A. (20%) | commercial 6-9 ans | ILAT Indice des Loyers des Activités Tertiaires | 3 % HT du prix de vente HT, à la charge de l'acquéreur, payables à la signature de l'acte | TVA | Trimestriel d'avance | ||||||||||
| Bureaux | 49 | 15 % HT du loyer annuel HT/HC à la charge du preneur, payables à la signature du bail | T.V.A. (20%) | commercial 6-9 ans | ILAT Indice des Loyers des Activités Tertiaires | 3 % HT du prix de vente HT, à la charge de l'acquéreur, payables à la signature de l'acte | TVA | Trimestriel d'avance | ||||||||||
| Total Cellule 2B1 | Activités | 216,63 | 15 % HT du loyer annuel HT/HC à la charge du preneur, payables à la signature du bail | T.V.A. (20%) | commercial 6-9 ans | ILAT Indice des Loyers des Activités Tertiaires | 1 507,87 HT/m² | 3 % HT du prix de vente HT, à la charge de l'acquéreur, payables à la signature de l'acte | TVA | Trimestriel d'avance | 2B1 | |||||||
| Activités | 168,72 | 15 % HT du loyer annuel HT/HC à la charge du preneur, payables à la signature du bail | T.V.A. (20%) | commercial 6-9 ans | ILAT Indice des Loyers des Activités Tertiaires | 3 % HT du prix de vente HT, à la charge de l'acquéreur, payables à la signature de l'acte | TVA | Trimestriel d'avance | ||||||||||
| Bureaux | 53,12 | 15 % HT du loyer annuel HT/HC à la charge du preneur, payables à la signature du bail | T.V.A. (20%) | commercial 6-9 ans | ILAT Indice des Loyers des Activités Tertiaires | 3 % HT du prix de vente HT, à la charge de l'acquéreur, payables à la signature de l'acte | TVA | Trimestriel d'avance | ||||||||||
| Total Cellule 2B2 | Activités | 221,84 | 15 % HT du loyer annuel HT/HC à la charge du preneur, payables à la signature du bail | T.V.A. (20%) | commercial 6-9 ans | ILAT Indice des Loyers des Activités Tertiaires | 1 505,14 HT/m² | 3 % HT du prix de vente HT, à la charge de l'acquéreur, payables à la signature de l'acte | TVA | Trimestriel d'avance | 2B2 | |||||||
| Activités | 170,5 | 15 % HT du loyer annuel HT/HC à la charge du preneur, payables à la signature du bail | T.V.A. (20%) | ILAT Indice des Loyers des Activités Tertiaires | 3 % HT du prix de vente HT, à la charge de l'acquéreur, payables à la signature de l'acte | TVA | Trimestriel d'avance | |||||||||||
| Bureaux | 46,37 | 15 % HT du loyer annuel HT/HC à la charge du preneur, payables à la signature du bail | T.V.A. (20%) | ILAT Indice des Loyers des Activités Tertiaires | 3 % HT du prix de vente HT, à la charge de l'acquéreur, payables à la signature de l'acte | TVA | Trimestriel d'avance | |||||||||||
| Total Cellule 2C1 | Activités | 216,87 | 15 % HT du loyer annuel HT/HC à la charge du preneur, payables à la signature du bail | T.V.A. (20%) | commercial 6-9 ans | ILAT Indice des Loyers des Activités Tertiaires | 1 524,65 HT/m² | 3 % HT du prix de vente HT, à la charge de l'acquéreur, payables à la signature de l'acte | TVA | Trimestriel d'avance | 2C1 | |||||||
| Activités | 172,52 | 15 % HT du loyer annuel HT/HC à la charge du preneur, payables à la signature du bail | T.V.A. (20%) | commercial 6-9 ans | ILAT Indice des Loyers des Activités Tertiaires | 3 % HT du prix de vente HT, à la charge de l'acquéreur, payables à la signature de l'acte | TVA | Trimestriel d'avance | ||||||||||
| Bureaux | 46,37 | 15 % HT du loyer annuel HT/HC à la charge du preneur, payables à la signature du bail | T.V.A. (20%) | commercial 6-9 ans | ILAT Indice des Loyers des Activités Tertiaires | 3 % HT du prix de vente HT, à la charge de l'acquéreur, payables à la signature de l'acte | TVA | Trimestriel d'avance | ||||||||||
| Total Cellule 2C2 | Activités | 218,89 | 15 % HT du loyer annuel HT/HC à la charge du preneur, payables à la signature du bail | T.V.A. (20%) | commercial 6-9 ans | ILAT Indice des Loyers des Activités Tertiaires | 1 523,82 HT/m² | 3 % HT du prix de vente HT, à la charge de l'acquéreur, payables à la signature de l'acte | TVA | Trimestriel d'avance | 2C2 | |||||||
| Activités | 359,93 | 15 % HT du loyer annuel HT/HC à la charge du preneur, payables à la signature du bail | T.V.A. (20%) | commercial 6-9 ans | ILAT Indice des Loyers des Activités Tertiaires | 3 % HT du prix de vente HT, à la charge de l'acquéreur, payables à la signature de l'acte | TVA | Trimestriel d'avance | ||||||||||
| Bureaux | 142,6 | 15 % HT du loyer annuel HT/HC à la charge du preneur, payables à la signature du bail | T.V.A. (20%) | commercial 6-9 ans | ILAT Indice des Loyers des Activités Tertiaires | 3 % HT du prix de vente HT, à la charge de l'acquéreur, payables à la signature de l'acte | TVA | Trimestriel d'avance | ||||||||||
| Total Cellule 2D | Activités | 502,53 | 15 % HT du loyer annuel HT/HC à la charge du preneur, payables à la signature du bail | T.V.A. (20%) | commercial 6-9 ans | ILAT Indice des Loyers des Activités Tertiaires | 1 473,05 HT/m² | 3 % HT du prix de vente HT, à la charge de l'acquéreur, payables à la signature de l'acte | TVA | Trimestriel d'avance | 2D | |||||||
| Activités | 561,87 | 15 % HT du loyer annuel HT/HC à la charge du preneur, payables à la signature du bail | T.V.A. (20%) | commercial 6-9 ans | ILAT Indice des Loyers des Activités Tertiaires | 3 % HT du prix de vente HT, à la charge de l'acquéreur, payables à la signature de l'acte | TVA | Trimestriel d'avance | ||||||||||
| Bureaux | 142,6 | 15 % HT du loyer annuel HT/HC à la charge du preneur, payables à la signature du bail | T.V.A. (20%) | commercial 6-9 ans | ILAT Indice des Loyers des Activités Tertiaires | 3 % HT du prix de vente HT, à la charge de l'acquéreur, payables à la signature de l'acte | TVA | Trimestriel d'avance | ||||||||||
| Total Cellule 2E | Activités | 704,47 | 15 % HT du loyer annuel HT/HC à la charge du preneur, payables à la signature du bail | T.V.A. (20%) | commercial 6-9 ans | ILAT Indice des Loyers des Activités Tertiaires | 1 431,93 HT/m² | 3 % HT du prix de vente HT, à la charge de l'acquéreur, payables à la signature de l'acte | TVA | Trimestriel d'avance | 2E | |||||||
| Activités | 361,89 | 15 % HT du loyer annuel HT/HC à la charge du preneur, payables à la signature du bail | T.V.A. (20%) | commercial 6-9 ans | ILAT Indice des Loyers des Activités Tertiaires | 3 % HT du prix de vente HT, à la charge de l'acquéreur, payables à la signature de l'acte | TVA | Trimestriel d'avance | ||||||||||
| Bureaux | 142,6 | 15 % HT du loyer annuel HT/HC à la charge du preneur, payables à la signature du bail | T.V.A. (20%) | commercial 6-9 ans | ILAT Indice des Loyers des Activités Tertiaires | 3 % HT du prix de vente HT, à la charge de l'acquéreur, payables à la signature de l'acte | TVA | Trimestriel d'avance | ||||||||||
| Total Cellule 2F | Activités | 504,49 | 15 % HT du loyer annuel HT/HC à la charge du preneur, payables à la signature du bail | T.V.A. (20%) | commercial 6-9 ans | ILAT Indice des Loyers des Activités Tertiaires | 1 472,28 HT/m² | 3 % HT du prix de vente HT, à la charge de l'acquéreur, payables à la signature de l'acte | TVA | Trimestriel d'avance | 2F | |||||||
| Activités | 197,66 | 15 % HT du loyer annuel HT/HC à la charge du preneur, payables à la signature du bail | T.V.A. (20%) | commercial 6-9 ans | ILAT Indice des Loyers des Activités Tertiaires | 3 % HT du prix de vente HT, à la charge de l'acquéreur, payables à la signature de l'acte | TVA | Trimestriel d'avance | ||||||||||
| Bureaux | 68,09 | 15 % HT du loyer annuel HT/HC à la charge du preneur, payables à la signature du bail | T.V.A. (20%) | commercial 6-9 ans | ILAT Indice des Loyers des Activités Tertiaires | 3 % HT du prix de vente HT, à la charge de l'acquéreur, payables à la signature de l'acte | TVA | Trimestriel d'avance | ||||||||||
| Total Cellule 2G | Activités | 265,75 | 15 % HT du loyer annuel HT/HC à la charge du preneur, payables à la signature du bail | T.V.A. (20%) | commercial 6-9 ans | ILAT Indice des Loyers des Activités Tertiaires | 1 511,57 HT/m² | 3 % HT du prix de vente HT, à la charge de l'acquéreur, payables à la signature de l'acte | TVA | Trimestriel d'avance | 2G | |||||||
| Activités | 140,49 | 15 % HT du loyer annuel HT/HC à la charge du preneur, payables à la signature du bail | T.V.A. (20%) | ILAT Indice des Loyers des Activités Tertiaires | 3 % HT du prix de vente HT, à la charge de l'acquéreur, payables à la signature de l'acte | TVA | Trimestriel d'avance | |||||||||||
| Bureaux | 47,01 | 15 % HT du loyer annuel HT/HC à la charge du preneur, payables à la signature du bail | T.V.A. (20%) | ILAT Indice des Loyers des Activités Tertiaires | 3 % HT du prix de vente HT, à la charge de l'acquéreur, payables à la signature de l'acte | TVA | Trimestriel d'avance | |||||||||||
| Total Cellule 4B | Activités | 187,5 | 15 % HT du loyer annuel HT/HC à la charge du preneur, payables à la signature du bail | T.V.A. (20%) | commercial 6-9 ans | ILAT Indice des Loyers des Activités Tertiaires | 1 514 HT/m² | 3 % HT du prix de vente HT, à la charge de l'acquéreur, payables à la signature de l'acte | TVA | Trimestriel d'avance | 4B | |||||||
| Activités | 140,49 | 15 % HT du loyer annuel HT/HC à la charge du preneur, payables à la signature du bail | T.V.A. (20%) | commercial 6-9 ans | ILAT Indice des Loyers des Activités Tertiaires | 3 % HT du prix de vente HT, à la charge de l'acquéreur, payables à la signature de l'acte | TVA | Trimestriel d'avance | ||||||||||
| Bureaux | 47,01 | 15 % HT du loyer annuel HT/HC à la charge du preneur, payables à la signature du bail | T.V.A. (20%) | commercial 6-9 ans | ILAT Indice des Loyers des Activités Tertiaires | 3 % HT du prix de vente HT, à la charge de l'acquéreur, payables à la signature de l'acte | TVA | Trimestriel d'avance | ||||||||||
| Total Cellule 4C | Activités | 187,5 | 15 % HT du loyer annuel HT/HC à la charge du preneur, payables à la signature du bail | T.V.A. (20%) | commercial 6-9 ans | ILAT Indice des Loyers des Activités Tertiaires | 1 514 HT/m² | 3 % HT du prix de vente HT, à la charge de l'acquéreur, payables à la signature de l'acte | TVA | Trimestriel d'avance | 4C | |||||||
| Activités | 140,49 | 15 % HT du loyer annuel HT/HC à la charge du preneur, payables à la signature du bail | T.V.A. (20%) | commercial 6-9 ans | ILAT Indice des Loyers des Activités Tertiaires | 3 % HT du prix de vente HT, à la charge de l'acquéreur, payables à la signature de l'acte | TVA | Trimestriel d'avance | ||||||||||
| Bureaux | 48,08 | 15 % HT du loyer annuel HT/HC à la charge du preneur, payables à la signature du bail | T.V.A. (20%) | commercial 6-9 ans | ILAT Indice des Loyers des Activités Tertiaires | 3 % HT du prix de vente HT, à la charge de l'acquéreur, payables à la signature de l'acte | TVA | Trimestriel d'avance | ||||||||||
| Total Cellule 4D | Activités | 188,57 | 15 % HT du loyer annuel HT/HC à la charge du preneur, payables à la signature du bail | T.V.A. (20%) | commercial 6-9 ans | ILAT Indice des Loyers des Activités Tertiaires | 1 513,63 HT/m² | 3 % HT du prix de vente HT, à la charge de l'acquéreur, payables à la signature de l'acte | TVA | Trimestriel d'avance | 4D | |||||||
| Activités | 170,49 | 15 % HT du loyer annuel HT/HC à la charge du preneur, payables à la signature du bail | T.V.A. (20%) | commercial 6-9 ans | ILAT Indice des Loyers des Activités Tertiaires | 3 % HT du prix de vente HT, à la charge de l'acquéreur, payables à la signature de l'acte | TVA | Trimestriel d'avance | ||||||||||
| Bureaux | 47,01 | 15 % HT du loyer annuel HT/HC à la charge du preneur, payables à la signature du bail | T.V.A. (20%) | commercial 6-9 ans | ILAT Indice des Loyers des Activités Tertiaires | 3 % HT du prix de vente HT, à la charge de l'acquéreur, payables à la signature de l'acte | TVA | Trimestriel d'avance | ||||||||||
| Total Cellule 4F | Activités | 217,5 | 15 % HT du loyer annuel HT/HC à la charge du preneur, payables à la signature du bail | T.V.A. (20%) | commercial 6-9 ans | ILAT Indice des Loyers des Activités Tertiaires | 1 505,17 HT/m² | 3 % HT du prix de vente HT, à la charge de l'acquéreur, payables à la signature de l'acte | TVA | Trimestriel d'avance | 4F | |||||||
| Activités | 171,47 | 15 % HT du loyer annuel HT/HC à la charge du preneur, payables à la signature du bail | T.V.A. (20%) | commercial 6-9 ans | ILAT Indice des Loyers des Activités Tertiaires | 3 % HT du prix de vente HT, à la charge de l'acquéreur, payables à la signature de l'acte | TVA | Trimestriel d'avance | ||||||||||
| Bureaux | 46,4 | 15 % HT du loyer annuel HT/HC à la charge du preneur, payables à la signature du bail | T.V.A. (20%) | commercial 6-9 ans | ILAT Indice des Loyers des Activités Tertiaires | 3 % HT du prix de vente HT, à la charge de l'acquéreur, payables à la signature de l'acte | TVA | Trimestriel d'avance | ||||||||||
| Total Cellule 4G | Activités | 217,87 | 15 % HT du loyer annuel HT/HC à la charge du preneur, payables à la signature du bail | T.V.A. (20%) | commercial 6-9 ans | ILAT Indice des Loyers des Activités Tertiaires | 1 505,08 HT/m² | 3 % HT du prix de vente HT, à la charge de l'acquéreur, payables à la signature de l'acte | TVA | Trimestriel d'avance | 4G | |||||||
| Activités | 374,52 | 15 % HT du loyer annuel HT/HC à la charge du preneur, payables à la signature du bail | T.V.A. (20%) | commercial 6-9 ans | ILAT Indice des Loyers des Activités Tertiaires | 3 % HT du prix de vente HT, à la charge de l'acquéreur, payables à la signature de l'acte | TVA | Trimestriel d'avance | ||||||||||
| Bureaux | 106,5 | 15 % HT du loyer annuel HT/HC à la charge du preneur, payables à la signature du bail | T.V.A. (20%) | commercial 6-9 ans | ILAT Indice des Loyers des Activités Tertiaires | 3 % HT du prix de vente HT, à la charge de l'acquéreur, payables à la signature de l'acte | TVA | Trimestriel d'avance | ||||||||||
| Total Cellule 4H | Activités | 481,02 | 15 % HT du loyer annuel HT/HC à la charge du preneur, payables à la signature du bail | T.V.A. (20%) | commercial 6-9 ans | ILAT Indice des Loyers des Activités Tertiaires | 1 508,21 HT/m² | 3 % HT du prix de vente HT, à la charge de l'acquéreur, payables à la signature de l'acte | TVA | Trimestriel d'avance | 4H | |||||||
| Activités | 167,1 | 15 % HT du loyer annuel HT/HC à la charge du preneur, payables à la signature du bail | T.V.A. (20%) | commercial 6-9 ans | ILAT Indice des Loyers des Activités Tertiaires | 3 % HT du prix de vente HT, à la charge de l'acquéreur, payables à la signature de l'acte | TVA | Trimestriel d'avance | ||||||||||
| Bureaux | 46,4 | 15 % HT du loyer annuel HT/HC à la charge du preneur, payables à la signature du bail | T.V.A. (20%) | commercial 6-9 ans | ILAT Indice des Loyers des Activités Tertiaires | 3 % HT du prix de vente HT, à la charge de l'acquéreur, payables à la signature de l'acte | TVA | Trimestriel d'avance | ||||||||||
| Total Cellule 4I | Activités | 213,5 | 15 % HT du loyer annuel HT/HC à la charge du preneur, payables à la signature du bail | T.V.A. (20%) | commercial 6-9 ans | ILAT Indice des Loyers des Activités Tertiaires | 1 524,94 HT/m² | 3 % HT du prix de vente HT, à la charge de l'acquéreur, payables à la signature de l'acte | TVA | Trimestriel d'avance | 4I | |||||||
| Activités | 173,9 | 15 % HT du loyer annuel HT/HC à la charge du preneur, payables à la signature du bail | T.V.A. (20%) | commercial 6-9 ans | ILAT Indice des Loyers des Activités Tertiaires | 3 % HT du prix de vente HT, à la charge de l'acquéreur, payables à la signature de l'acte | TVA | Trimestriel d'avance | ||||||||||
| Bureaux | 46,4 | 15 % HT du loyer annuel HT/HC à la charge du preneur, payables à la signature du bail | T.V.A. (20%) | commercial 6-9 ans | ILAT Indice des Loyers des Activités Tertiaires | 3 % HT du prix de vente HT, à la charge de l'acquéreur, payables à la signature de l'acte | TVA | Trimestriel d'avance | ||||||||||
| Total Cellule 4J | Activités | 220,3 | 15 % HT du loyer annuel HT/HC à la charge du preneur, payables à la signature du bail | T.V.A. (20%) | commercial 6-9 ans | ILAT Indice des Loyers des Activités Tertiaires | 1 522,63 HT/m² | 3 % HT du prix de vente HT, à la charge de l'acquéreur, payables à la signature de l'acte | TVA | Trimestriel d'avance | 4J | |||||||
| Activités | 173,9 | 15 % HT du loyer annuel HT/HC à la charge du preneur, payables à la signature du bail | T.V.A. (20%) | commercial 6-9 ans | ILAT Indice des Loyers des Activités Tertiaires | 3 % HT du prix de vente HT, à la charge de l'acquéreur, payables à la signature de l'acte | TVA | Trimestriel d'avance | ||||||||||
| Bureaux | 46,4 | 15 % HT du loyer annuel HT/HC à la charge du preneur, payables à la signature du bail | T.V.A. (20%) | commercial 6-9 ans | ILAT Indice des Loyers des Activités Tertiaires | 3 % HT du prix de vente HT, à la charge de l'acquéreur, payables à la signature de l'acte | TVA | Trimestriel d'avance | ||||||||||
| Total Cellule 4K | Activités | 220,3 | 15 % HT du loyer annuel HT/HC à la charge du preneur, payables à la signature du bail | T.V.A. (20%) | commercial 6-9 ans | ILAT Indice des Loyers des Activités Tertiaires | 1 522,63 HT/m² | 3 % HT du prix de vente HT, à la charge de l'acquéreur, payables à la signature de l'acte | TVA | Trimestriel d'avance | 4K | |||||||
| Activités | 167,1 | 15 % HT du loyer annuel HT/HC à la charge du preneur, payables à la signature du bail | T.V.A. (20%) | commercial 6-9 ans | ILAT Indice des Loyers des Activités Tertiaires | 3 % HT du prix de vente HT, à la charge de l'acquéreur, payables à la signature de l'acte | TVA | Trimestriel d'avance | ||||||||||
| Bureaux | 46,4 | 15 % HT du loyer annuel HT/HC à la charge du preneur, payables à la signature du bail | T.V.A. (20%) | commercial 6-9 ans | ILAT Indice des Loyers des Activités Tertiaires | 3 % HT du prix de vente HT, à la charge de l'acquéreur, payables à la signature de l'acte | TVA | Trimestriel d'avance | ||||||||||
| Total Cellule 4L | Activités | 213,5 | 15 % HT du loyer annuel HT/HC à la charge du preneur, payables à la signature du bail | T.V.A. (20%) | commercial 6-9 ans | ILAT Indice des Loyers des Activités Tertiaires | 1 524,94 HT/m² | 3 % HT du prix de vente HT, à la charge de l'acquéreur, payables à la signature de l'acte | TVA | Trimestriel d'avance | 4L | |||||||
| Activités | 373 | 15 % HT du loyer annuel HT/HC à la charge du preneur, payables à la signature du bail | T.V.A. (20%) | ILAT Indice des Loyers des Activités Tertiaires | 3 % HT du prix de vente HT, à la charge de l'acquéreur, payables à la signature de l'acte | TVA | Trimestriel d'avance | |||||||||||
| Bureaux | 106,1 | 15 % HT du loyer annuel HT/HC à la charge du preneur, payables à la signature du bail | T.V.A. (20%) | ILAT Indice des Loyers des Activités Tertiaires | 3 % HT du prix de vente HT, à la charge de l'acquéreur, payables à la signature de l'acte | TVA | Trimestriel d'avance | |||||||||||
| Total Cellule 4M | Activités | 479,1 | 15 % HT du loyer annuel HT/HC à la charge du preneur, payables à la signature du bail | T.V.A. (20%) | commercial 6-9 ans | ILAT Indice des Loyers des Activités Tertiaires | 1 508,44 HT/m² | 3 % HT du prix de vente HT, à la charge de l'acquéreur, payables à la signature de l'acte | TVA | Trimestriel d'avance | 4M | |||||||
| Total | 6 302,69 m² |






























































