Ref : 1305832-0
Vente Local d'activités
Vente ou Location Locaux d'Activités - Varennes les Mâcon (71000) - 2595 m² divisibles à partir de 172 m²
Varennes-lès-Mâcon (71000)
Prix : 3 396 000 €
Surface 2 595 m²
Divisible dès 172 m²
Description du bien
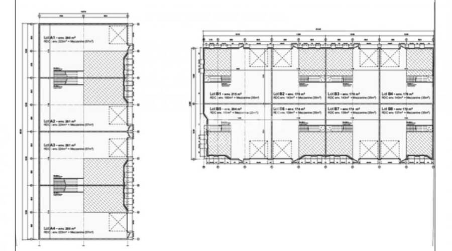
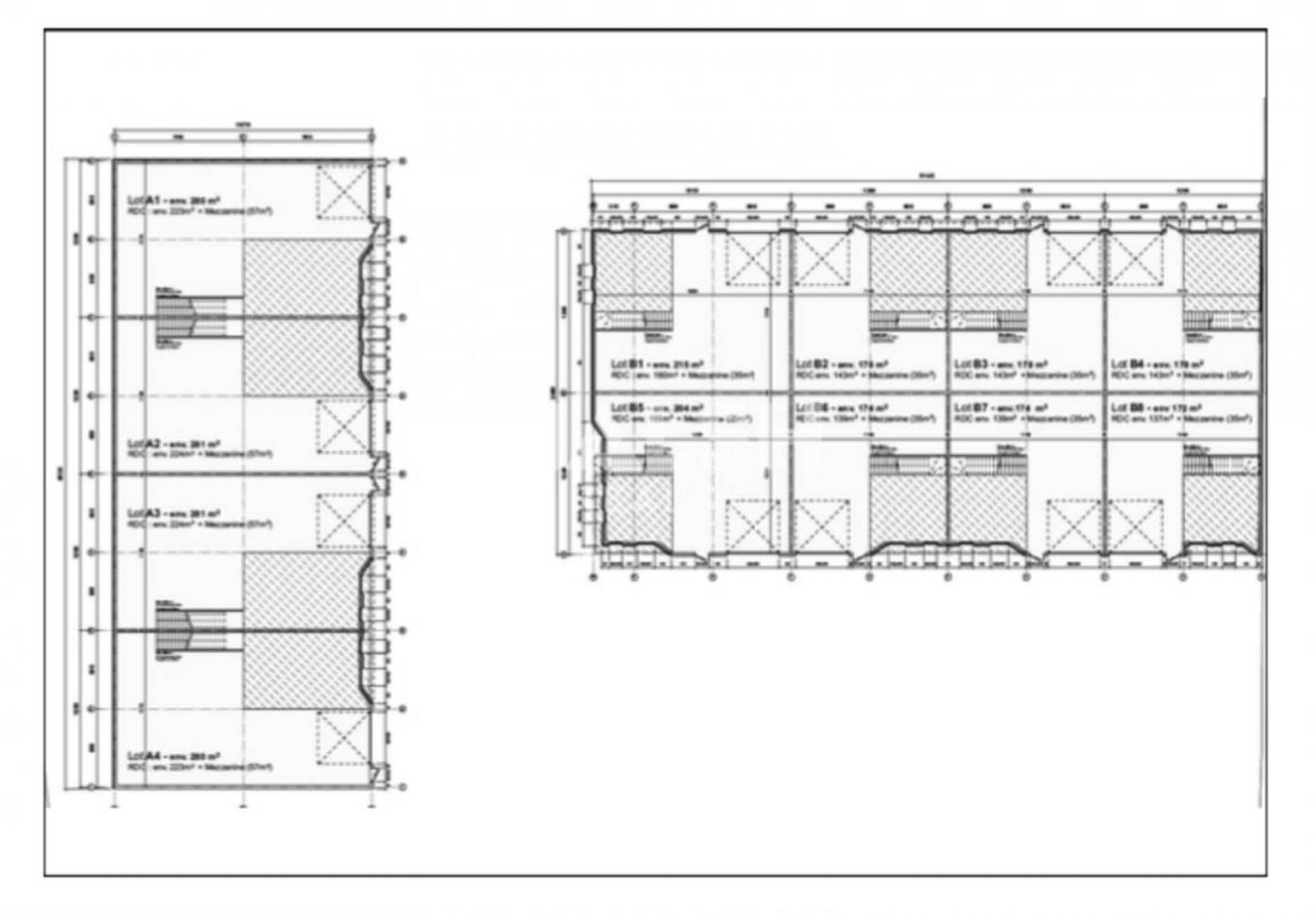
MALSH Realty & Property vous propose à la vente ou à la location, au coeur du Parc d'activités des Combes au Sud de Mâcon, au sein d'un nouveau parc d'activités clos et sécurisé composé de 2 bâtiments, des locaux d'activités neufs d'une surface totale d'environ 2 595 m² divisibles en 12 lots à partir de 172 m².
Livraison en plateau brut, fluides en attente.
Ce parc est situé à proximité de la D906 et à 3 km de l'autoroute A6. Les cellules, de petites et moyennes surfaces, sont idéales pour des artisans locaux ou des PME à la recherche d'un atelier ou d'un lieu de stockage .
Livraison fin 2025 !
Prestations du bien
- Site clos et sécurisé
- Portes sectionnelles motorisées avec accès piéton
- Stationnements vélos
- Stationnements pré-équipés IRVE
- Livraison en plateau brut, fluides en attente
- Charpente métallique
- Menuiseries alu
- Hauteur libre sous poutre : 6,50 m
- Dalle quartzé (charge 1,5T/m²)
- Mezzanine non aménagée
Informations financières
- Charges minimales : 865 €
- Bail : commercial 3-6-9 ans
- Dépôt de garantie : 3 mois de loyer HT/HC
Ce local professionnel vous est présenté par
Vous souhaitez nous joindre ?
Surfaces des locaux
| Étage | Bâtiment | Type | Surfaces | Disponibilité | Loyer | Charges | Honoraires | Fiscal | Bail | Révision annuelle | Prix | Charges | Honoraires | Fiscal | Paiement Loyer | lot | Coworking | |
|---|---|---|---|---|---|---|---|---|---|---|---|---|---|---|---|---|---|---|
| Mezzanine | 57 | 20 % HT du loyer annuel HT/HC, à la charge du Preneur, payables à la signature du bail | T.V.A. (20%) | ILAT Indice des Loyers des Activités Tertiaires | 3 % HT du prix de vente HT, à la charge de l'acquéreur, payables à la signature de l'acte | TVA | Trimestriel d'avance | |||||||||||
| RDC | Activités | 223 | 20 % HT du loyer annuel HT/HC, à la charge du Preneur, payables à la signature du bail | T.V.A. (20%) | ILAT Indice des Loyers des Activités Tertiaires | 3 % HT du prix de vente HT, à la charge de l'acquéreur, payables à la signature de l'acte | TVA | Trimestriel d'avance | ||||||||||
| Total Cellule A1 | Activités | 280 | Livraison fin 2025 | 100 HT/HC/m²/an | 4 HT/m²/an | 20 % HT du loyer annuel HT/HC, à la charge du Preneur, payables à la signature du bail | T.V.A. (20%) | commercial 3-6-9 ans | ILAT Indice des Loyers des Activités Tertiaires | 1 303,57 HT/m² | 3 % HT du prix de vente HT, à la charge de l'acquéreur, payables à la signature de l'acte | TVA | Trimestriel d'avance | A1 | ||||
| Mezzanine | 57 | 20 % HT du loyer annuel HT/HC, à la charge du Preneur, payables à la signature du bail | T.V.A. (20%) | ILAT Indice des Loyers des Activités Tertiaires | 3 % HT du prix de vente HT, à la charge de l'acquéreur, payables à la signature de l'acte | TVA | Trimestriel d'avance | |||||||||||
| RDC | Activités | 224 | 20 % HT du loyer annuel HT/HC, à la charge du Preneur, payables à la signature du bail | T.V.A. (20%) | ILAT Indice des Loyers des Activités Tertiaires | 3 % HT du prix de vente HT, à la charge de l'acquéreur, payables à la signature de l'acte | TVA | Trimestriel d'avance | ||||||||||
| Total Cellule A2 | Activités | 281 | Livraison fin 2025 | 99,64 HT/HC/m²/an | 4 HT/m²/an | 20 % HT du loyer annuel HT/HC, à la charge du Preneur, payables à la signature du bail | T.V.A. (20%) | commercial 3-6-9 ans | ILAT Indice des Loyers des Activités Tertiaires | 1 298,93 HT/m² | 3 % HT du prix de vente HT, à la charge de l'acquéreur, payables à la signature de l'acte | TVA | Trimestriel d'avance | A2 | ||||
| Mezzanine | 57 | 20 % HT du loyer annuel HT/HC, à la charge du Preneur, payables à la signature du bail | T.V.A. (20%) | ILAT Indice des Loyers des Activités Tertiaires | 3 % HT du prix de vente HT, à la charge de l'acquéreur, payables à la signature de l'acte | TVA | Trimestriel d'avance | |||||||||||
| RDC | Activités | 224 | 20 % HT du loyer annuel HT/HC, à la charge du Preneur, payables à la signature du bail | T.V.A. (20%) | ILAT Indice des Loyers des Activités Tertiaires | 3 % HT du prix de vente HT, à la charge de l'acquéreur, payables à la signature de l'acte | TVA | Trimestriel d'avance | ||||||||||
| Total Cellule A3 | Activités | 281 | Livraison fin 2025 | 99,64 HT/HC/m²/an | 4 HT/m²/an | 20 % HT du loyer annuel HT/HC, à la charge du Preneur, payables à la signature du bail | T.V.A. (20%) | commercial 3-6-9 ans | ILAT Indice des Loyers des Activités Tertiaires | 1 298,93 HT/m² | 3 % HT du prix de vente HT, à la charge de l'acquéreur, payables à la signature de l'acte | TVA | Trimestriel d'avance | A3 | ||||
| Mezzanine | 57 | 20 % HT du loyer annuel HT/HC, à la charge du Preneur, payables à la signature du bail | T.V.A. (20%) | ILAT Indice des Loyers des Activités Tertiaires | 3 % HT du prix de vente HT, à la charge de l'acquéreur, payables à la signature de l'acte | TVA | Trimestriel d'avance | |||||||||||
| RDC | Activités | 223 | 20 % HT du loyer annuel HT/HC, à la charge du Preneur, payables à la signature du bail | T.V.A. (20%) | ILAT Indice des Loyers des Activités Tertiaires | 3 % HT du prix de vente HT, à la charge de l'acquéreur, payables à la signature de l'acte | TVA | Trimestriel d'avance | ||||||||||
| Total Cellule A4 | Activités | 280 | Livraison fin 2025 | 100 HT/HC/m²/an | 4 HT/m²/an | 20 % HT du loyer annuel HT/HC, à la charge du Preneur, payables à la signature du bail | T.V.A. (20%) | commercial 3-6-9 ans | ILAT Indice des Loyers des Activités Tertiaires | 1 303,57 HT/m² | 3 % HT du prix de vente HT, à la charge de l'acquéreur, payables à la signature de l'acte | TVA | Trimestriel d'avance | A4 | ||||
| Mezzanine | 35 | 20 % HT du loyer annuel HT/HC, à la charge du Preneur, payables à la signature du bail | T.V.A. (20%) | ILAT Indice des Loyers des Activités Tertiaires | 3 % HT du prix de vente HT, à la charge de l'acquéreur, payables à la signature de l'acte | TVA | Trimestriel d'avance | |||||||||||
| RDC | Activités | 180 | 20 % HT du loyer annuel HT/HC, à la charge du Preneur, payables à la signature du bail | T.V.A. (20%) | ILAT Indice des Loyers des Activités Tertiaires | 3 % HT du prix de vente HT, à la charge de l'acquéreur, payables à la signature de l'acte | TVA | Trimestriel d'avance | ||||||||||
| Total Cellule B1 | Activités | 215 | Livraison fin 2025 | 97,67 HT/HC/m²/an | 4 HT/m²/an | 20 % HT du loyer annuel HT/HC, à la charge du Preneur, payables à la signature du bail | T.V.A. (20%) | commercial 3-6-9 ans | ILAT Indice des Loyers des Activités Tertiaires | 1 302,33 HT/m² | 3 % HT du prix de vente HT, à la charge de l'acquéreur, payables à la signature de l'acte | TVA | Trimestriel d'avance | B1 | ||||
| Mezzanine | 35 | 20 % HT du loyer annuel HT/HC, à la charge du Preneur, payables à la signature du bail | T.V.A. (20%) | ILAT Indice des Loyers des Activités Tertiaires | 3 % HT du prix de vente HT, à la charge de l'acquéreur, payables à la signature de l'acte | TVA | Trimestriel d'avance | |||||||||||
| RDC | Activités | 143 | 20 % HT du loyer annuel HT/HC, à la charge du Preneur, payables à la signature du bail | T.V.A. (20%) | ILAT Indice des Loyers des Activités Tertiaires | 3 % HT du prix de vente HT, à la charge de l'acquéreur, payables à la signature de l'acte | TVA | Trimestriel d'avance | ||||||||||
| Total Cellule B2 | Activités | 178 | Livraison fin 2025 | 101,12 HT/HC/m²/an | 4 HT/m²/an | 20 % HT du loyer annuel HT/HC, à la charge du Preneur, payables à la signature du bail | T.V.A. (20%) | commercial 3-6-9 ans | ILAT Indice des Loyers des Activités Tertiaires | 1 320,22 HT/m² | 3 % HT du prix de vente HT, à la charge de l'acquéreur, payables à la signature de l'acte | TVA | Trimestriel d'avance | B2 | ||||
| Mezzanine | 35 | 20 % HT du loyer annuel HT/HC, à la charge du Preneur, payables à la signature du bail | T.V.A. (20%) | ILAT Indice des Loyers des Activités Tertiaires | 3 % HT du prix de vente HT, à la charge de l'acquéreur, payables à la signature de l'acte | TVA | Trimestriel d'avance | |||||||||||
| RDC | Activités | 143 | 20 % HT du loyer annuel HT/HC, à la charge du Preneur, payables à la signature du bail | T.V.A. (20%) | ILAT Indice des Loyers des Activités Tertiaires | 3 % HT du prix de vente HT, à la charge de l'acquéreur, payables à la signature de l'acte | TVA | Trimestriel d'avance | ||||||||||
| Total Cellule B3 | Activités | 178 | Livraison fin 2025 | 101,12 HT/HC/m²/an | 4 HT/m²/an | 20 % HT du loyer annuel HT/HC, à la charge du Preneur, payables à la signature du bail | T.V.A. (20%) | commercial 3-6-9 ans | ILAT Indice des Loyers des Activités Tertiaires | 1 320,22 HT/m² | 3 % HT du prix de vente HT, à la charge de l'acquéreur, payables à la signature de l'acte | TVA | Trimestriel d'avance | B3 | ||||
| Mezzanine | 35 | 20 % HT du loyer annuel HT/HC, à la charge du Preneur, payables à la signature du bail | T.V.A. (20%) | ILAT Indice des Loyers des Activités Tertiaires | 3 % HT du prix de vente HT, à la charge de l'acquéreur, payables à la signature de l'acte | TVA | Trimestriel d'avance | |||||||||||
| RDC | Activités | 143 | 20 % HT du loyer annuel HT/HC, à la charge du Preneur, payables à la signature du bail | T.V.A. (20%) | ILAT Indice des Loyers des Activités Tertiaires | 3 % HT du prix de vente HT, à la charge de l'acquéreur, payables à la signature de l'acte | TVA | Trimestriel d'avance | ||||||||||
| Total Cellule B4 | Activités | 178 | Livraison fin 2025 | 101,12 HT/HC/m²/an | 4 HT/m²/an | 20 % HT du loyer annuel HT/HC, à la charge du Preneur, payables à la signature du bail | T.V.A. (20%) | commercial 3-6-9 ans | ILAT Indice des Loyers des Activités Tertiaires | 1 320,22 HT/m² | 3 % HT du prix de vente HT, à la charge de l'acquéreur, payables à la signature de l'acte | TVA | Trimestriel d'avance | B4 | ||||
| Mezzanine | 35 | 20 % HT du loyer annuel HT/HC, à la charge du Preneur, payables à la signature du bail | T.V.A. (20%) | ILAT Indice des Loyers des Activités Tertiaires | 3 % HT du prix de vente HT, à la charge de l'acquéreur, payables à la signature de l'acte | TVA | Trimestriel d'avance | |||||||||||
| RDC | Activités | 169 | 20 % HT du loyer annuel HT/HC, à la charge du Preneur, payables à la signature du bail | T.V.A. (20%) | ILAT Indice des Loyers des Activités Tertiaires | 3 % HT du prix de vente HT, à la charge de l'acquéreur, payables à la signature de l'acte | TVA | Trimestriel d'avance | ||||||||||
| Total Cellule B5 | Activités | 204 | Livraison fin 2025 | 98,04 HT/HC/m²/an | 4 HT/m²/an | 20 % HT du loyer annuel HT/HC, à la charge du Preneur, payables à la signature du bail | T.V.A. (20%) | commercial 3-6-9 ans | ILAT Indice des Loyers des Activités Tertiaires | 1 303,92 HT/m² | 3 % HT du prix de vente HT, à la charge de l'acquéreur, payables à la signature de l'acte | TVA | Trimestriel d'avance | B5 | ||||
| Mezzanine | 35 | 20 % HT du loyer annuel HT/HC, à la charge du Preneur, payables à la signature du bail | T.V.A. (20%) | ILAT Indice des Loyers des Activités Tertiaires | 3 % HT du prix de vente HT, à la charge de l'acquéreur, payables à la signature de l'acte | TVA | Trimestriel d'avance | |||||||||||
| RDC | Activités | 139 | 20 % HT du loyer annuel HT/HC, à la charge du Preneur, payables à la signature du bail | T.V.A. (20%) | ILAT Indice des Loyers des Activités Tertiaires | 3 % HT du prix de vente HT, à la charge de l'acquéreur, payables à la signature de l'acte | TVA | Trimestriel d'avance | ||||||||||
| Total Cellule B6 | Activités | 174 | Livraison fin 2025 | 100,57 HT/HC/m²/an | 4 HT/m²/an | 20 % HT du loyer annuel HT/HC, à la charge du Preneur, payables à la signature du bail | T.V.A. (20%) | commercial 3-6-9 ans | ILAT Indice des Loyers des Activités Tertiaires | 1 321,84 HT/m² | 3 % HT du prix de vente HT, à la charge de l'acquéreur, payables à la signature de l'acte | TVA | Trimestriel d'avance | B6 | ||||
| Mezzanine | 35 | 20 % HT du loyer annuel HT/HC, à la charge du Preneur, payables à la signature du bail | T.V.A. (20%) | ILAT Indice des Loyers des Activités Tertiaires | 3 % HT du prix de vente HT, à la charge de l'acquéreur, payables à la signature de l'acte | TVA | Trimestriel d'avance | |||||||||||
| RDC | Activités | 139 | 20 % HT du loyer annuel HT/HC, à la charge du Preneur, payables à la signature du bail | T.V.A. (20%) | ILAT Indice des Loyers des Activités Tertiaires | 3 % HT du prix de vente HT, à la charge de l'acquéreur, payables à la signature de l'acte | TVA | Trimestriel d'avance | ||||||||||
| Total Cellule B7 | Activités | 174 | Livraison fin 2025 | 100,57 HT/HC/m²/an | 4 HT/m²/an | 20 % HT du loyer annuel HT/HC, à la charge du Preneur, payables à la signature du bail | T.V.A. (20%) | commercial 3-6-9 ans | ILAT Indice des Loyers des Activités Tertiaires | 1 321,84 HT/m² | 3 % HT du prix de vente HT, à la charge de l'acquéreur, payables à la signature de l'acte | TVA | Trimestriel d'avance | B7 | ||||
| Mezzanine | 35 | 20 % HT du loyer annuel HT/HC, à la charge du Preneur, payables à la signature du bail | T.V.A. (20%) | ILAT Indice des Loyers des Activités Tertiaires | 3 % HT du prix de vente HT, à la charge de l'acquéreur, payables à la signature de l'acte | TVA | Trimestriel d'avance | |||||||||||
| RDC | Activités | 137 | 20 % HT du loyer annuel HT/HC, à la charge du Preneur, payables à la signature du bail | T.V.A. (20%) | ILAT Indice des Loyers des Activités Tertiaires | 3 % HT du prix de vente HT, à la charge de l'acquéreur, payables à la signature de l'acte | TVA | Trimestriel d'avance | ||||||||||
| Total Cellule B8 | Activités | 172 | Livraison fin 2025 | 98,84 HT/HC/m²/an | 4 HT/m²/an | 20 % HT du loyer annuel HT/HC, à la charge du Preneur, payables à la signature du bail | T.V.A. (20%) | commercial 3-6-9 ans | ILAT Indice des Loyers des Activités Tertiaires | 1 308,14 HT/m² | 3 % HT du prix de vente HT, à la charge de l'acquéreur, payables à la signature de l'acte | TVA | Trimestriel d'avance | B8 | ||||
| Total | 2 595 m² |
Localisation et accessibilité
- SCNF: A 4 km de la Gare TGV Mâcon-Loché
Ces biens pourraient vous intéresser
| Étage | Bâtiment | Type | Surfaces | Disponibilité | Loyer | Charges | Honoraires | Fiscal | Bail | Révision annuelle | Prix | Charges | Honoraires | Fiscal | Paiement Loyer | lot | Coworking | |
|---|---|---|---|---|---|---|---|---|---|---|---|---|---|---|---|---|---|---|
| Mezzanine | 57 | 20 % HT du loyer annuel HT/HC, à la charge du Preneur, payables à la signature du bail | T.V.A. (20%) | ILAT Indice des Loyers des Activités Tertiaires | 3 % HT du prix de vente HT, à la charge de l'acquéreur, payables à la signature de l'acte | TVA | Trimestriel d'avance | |||||||||||
| RDC | Activités | 223 | 20 % HT du loyer annuel HT/HC, à la charge du Preneur, payables à la signature du bail | T.V.A. (20%) | ILAT Indice des Loyers des Activités Tertiaires | 3 % HT du prix de vente HT, à la charge de l'acquéreur, payables à la signature de l'acte | TVA | Trimestriel d'avance | ||||||||||
| Total Cellule A1 | Activités | 280 | Livraison fin 2025 | 100 HT/HC/m²/an | 4 HT/m²/an | 20 % HT du loyer annuel HT/HC, à la charge du Preneur, payables à la signature du bail | T.V.A. (20%) | commercial 3-6-9 ans | ILAT Indice des Loyers des Activités Tertiaires | 1 303,57 HT/m² | 3 % HT du prix de vente HT, à la charge de l'acquéreur, payables à la signature de l'acte | TVA | Trimestriel d'avance | A1 | ||||
| Mezzanine | 57 | 20 % HT du loyer annuel HT/HC, à la charge du Preneur, payables à la signature du bail | T.V.A. (20%) | ILAT Indice des Loyers des Activités Tertiaires | 3 % HT du prix de vente HT, à la charge de l'acquéreur, payables à la signature de l'acte | TVA | Trimestriel d'avance | |||||||||||
| RDC | Activités | 224 | 20 % HT du loyer annuel HT/HC, à la charge du Preneur, payables à la signature du bail | T.V.A. (20%) | ILAT Indice des Loyers des Activités Tertiaires | 3 % HT du prix de vente HT, à la charge de l'acquéreur, payables à la signature de l'acte | TVA | Trimestriel d'avance | ||||||||||
| Total Cellule A2 | Activités | 281 | Livraison fin 2025 | 99,64 HT/HC/m²/an | 4 HT/m²/an | 20 % HT du loyer annuel HT/HC, à la charge du Preneur, payables à la signature du bail | T.V.A. (20%) | commercial 3-6-9 ans | ILAT Indice des Loyers des Activités Tertiaires | 1 298,93 HT/m² | 3 % HT du prix de vente HT, à la charge de l'acquéreur, payables à la signature de l'acte | TVA | Trimestriel d'avance | A2 | ||||
| Mezzanine | 57 | 20 % HT du loyer annuel HT/HC, à la charge du Preneur, payables à la signature du bail | T.V.A. (20%) | ILAT Indice des Loyers des Activités Tertiaires | 3 % HT du prix de vente HT, à la charge de l'acquéreur, payables à la signature de l'acte | TVA | Trimestriel d'avance | |||||||||||
| RDC | Activités | 224 | 20 % HT du loyer annuel HT/HC, à la charge du Preneur, payables à la signature du bail | T.V.A. (20%) | ILAT Indice des Loyers des Activités Tertiaires | 3 % HT du prix de vente HT, à la charge de l'acquéreur, payables à la signature de l'acte | TVA | Trimestriel d'avance | ||||||||||
| Total Cellule A3 | Activités | 281 | Livraison fin 2025 | 99,64 HT/HC/m²/an | 4 HT/m²/an | 20 % HT du loyer annuel HT/HC, à la charge du Preneur, payables à la signature du bail | T.V.A. (20%) | commercial 3-6-9 ans | ILAT Indice des Loyers des Activités Tertiaires | 1 298,93 HT/m² | 3 % HT du prix de vente HT, à la charge de l'acquéreur, payables à la signature de l'acte | TVA | Trimestriel d'avance | A3 | ||||
| Mezzanine | 57 | 20 % HT du loyer annuel HT/HC, à la charge du Preneur, payables à la signature du bail | T.V.A. (20%) | ILAT Indice des Loyers des Activités Tertiaires | 3 % HT du prix de vente HT, à la charge de l'acquéreur, payables à la signature de l'acte | TVA | Trimestriel d'avance | |||||||||||
| RDC | Activités | 223 | 20 % HT du loyer annuel HT/HC, à la charge du Preneur, payables à la signature du bail | T.V.A. (20%) | ILAT Indice des Loyers des Activités Tertiaires | 3 % HT du prix de vente HT, à la charge de l'acquéreur, payables à la signature de l'acte | TVA | Trimestriel d'avance | ||||||||||
| Total Cellule A4 | Activités | 280 | Livraison fin 2025 | 100 HT/HC/m²/an | 4 HT/m²/an | 20 % HT du loyer annuel HT/HC, à la charge du Preneur, payables à la signature du bail | T.V.A. (20%) | commercial 3-6-9 ans | ILAT Indice des Loyers des Activités Tertiaires | 1 303,57 HT/m² | 3 % HT du prix de vente HT, à la charge de l'acquéreur, payables à la signature de l'acte | TVA | Trimestriel d'avance | A4 | ||||
| Mezzanine | 35 | 20 % HT du loyer annuel HT/HC, à la charge du Preneur, payables à la signature du bail | T.V.A. (20%) | ILAT Indice des Loyers des Activités Tertiaires | 3 % HT du prix de vente HT, à la charge de l'acquéreur, payables à la signature de l'acte | TVA | Trimestriel d'avance | |||||||||||
| RDC | Activités | 180 | 20 % HT du loyer annuel HT/HC, à la charge du Preneur, payables à la signature du bail | T.V.A. (20%) | ILAT Indice des Loyers des Activités Tertiaires | 3 % HT du prix de vente HT, à la charge de l'acquéreur, payables à la signature de l'acte | TVA | Trimestriel d'avance | ||||||||||
| Total Cellule B1 | Activités | 215 | Livraison fin 2025 | 97,67 HT/HC/m²/an | 4 HT/m²/an | 20 % HT du loyer annuel HT/HC, à la charge du Preneur, payables à la signature du bail | T.V.A. (20%) | commercial 3-6-9 ans | ILAT Indice des Loyers des Activités Tertiaires | 1 302,33 HT/m² | 3 % HT du prix de vente HT, à la charge de l'acquéreur, payables à la signature de l'acte | TVA | Trimestriel d'avance | B1 | ||||
| Mezzanine | 35 | 20 % HT du loyer annuel HT/HC, à la charge du Preneur, payables à la signature du bail | T.V.A. (20%) | ILAT Indice des Loyers des Activités Tertiaires | 3 % HT du prix de vente HT, à la charge de l'acquéreur, payables à la signature de l'acte | TVA | Trimestriel d'avance | |||||||||||
| RDC | Activités | 143 | 20 % HT du loyer annuel HT/HC, à la charge du Preneur, payables à la signature du bail | T.V.A. (20%) | ILAT Indice des Loyers des Activités Tertiaires | 3 % HT du prix de vente HT, à la charge de l'acquéreur, payables à la signature de l'acte | TVA | Trimestriel d'avance | ||||||||||
| Total Cellule B2 | Activités | 178 | Livraison fin 2025 | 101,12 HT/HC/m²/an | 4 HT/m²/an | 20 % HT du loyer annuel HT/HC, à la charge du Preneur, payables à la signature du bail | T.V.A. (20%) | commercial 3-6-9 ans | ILAT Indice des Loyers des Activités Tertiaires | 1 320,22 HT/m² | 3 % HT du prix de vente HT, à la charge de l'acquéreur, payables à la signature de l'acte | TVA | Trimestriel d'avance | B2 | ||||
| Mezzanine | 35 | 20 % HT du loyer annuel HT/HC, à la charge du Preneur, payables à la signature du bail | T.V.A. (20%) | ILAT Indice des Loyers des Activités Tertiaires | 3 % HT du prix de vente HT, à la charge de l'acquéreur, payables à la signature de l'acte | TVA | Trimestriel d'avance | |||||||||||
| RDC | Activités | 143 | 20 % HT du loyer annuel HT/HC, à la charge du Preneur, payables à la signature du bail | T.V.A. (20%) | ILAT Indice des Loyers des Activités Tertiaires | 3 % HT du prix de vente HT, à la charge de l'acquéreur, payables à la signature de l'acte | TVA | Trimestriel d'avance | ||||||||||
| Total Cellule B3 | Activités | 178 | Livraison fin 2025 | 101,12 HT/HC/m²/an | 4 HT/m²/an | 20 % HT du loyer annuel HT/HC, à la charge du Preneur, payables à la signature du bail | T.V.A. (20%) | commercial 3-6-9 ans | ILAT Indice des Loyers des Activités Tertiaires | 1 320,22 HT/m² | 3 % HT du prix de vente HT, à la charge de l'acquéreur, payables à la signature de l'acte | TVA | Trimestriel d'avance | B3 | ||||
| Mezzanine | 35 | 20 % HT du loyer annuel HT/HC, à la charge du Preneur, payables à la signature du bail | T.V.A. (20%) | ILAT Indice des Loyers des Activités Tertiaires | 3 % HT du prix de vente HT, à la charge de l'acquéreur, payables à la signature de l'acte | TVA | Trimestriel d'avance | |||||||||||
| RDC | Activités | 143 | 20 % HT du loyer annuel HT/HC, à la charge du Preneur, payables à la signature du bail | T.V.A. (20%) | ILAT Indice des Loyers des Activités Tertiaires | 3 % HT du prix de vente HT, à la charge de l'acquéreur, payables à la signature de l'acte | TVA | Trimestriel d'avance | ||||||||||
| Total Cellule B4 | Activités | 178 | Livraison fin 2025 | 101,12 HT/HC/m²/an | 4 HT/m²/an | 20 % HT du loyer annuel HT/HC, à la charge du Preneur, payables à la signature du bail | T.V.A. (20%) | commercial 3-6-9 ans | ILAT Indice des Loyers des Activités Tertiaires | 1 320,22 HT/m² | 3 % HT du prix de vente HT, à la charge de l'acquéreur, payables à la signature de l'acte | TVA | Trimestriel d'avance | B4 | ||||
| Mezzanine | 35 | 20 % HT du loyer annuel HT/HC, à la charge du Preneur, payables à la signature du bail | T.V.A. (20%) | ILAT Indice des Loyers des Activités Tertiaires | 3 % HT du prix de vente HT, à la charge de l'acquéreur, payables à la signature de l'acte | TVA | Trimestriel d'avance | |||||||||||
| RDC | Activités | 169 | 20 % HT du loyer annuel HT/HC, à la charge du Preneur, payables à la signature du bail | T.V.A. (20%) | ILAT Indice des Loyers des Activités Tertiaires | 3 % HT du prix de vente HT, à la charge de l'acquéreur, payables à la signature de l'acte | TVA | Trimestriel d'avance | ||||||||||
| Total Cellule B5 | Activités | 204 | Livraison fin 2025 | 98,04 HT/HC/m²/an | 4 HT/m²/an | 20 % HT du loyer annuel HT/HC, à la charge du Preneur, payables à la signature du bail | T.V.A. (20%) | commercial 3-6-9 ans | ILAT Indice des Loyers des Activités Tertiaires | 1 303,92 HT/m² | 3 % HT du prix de vente HT, à la charge de l'acquéreur, payables à la signature de l'acte | TVA | Trimestriel d'avance | B5 | ||||
| Mezzanine | 35 | 20 % HT du loyer annuel HT/HC, à la charge du Preneur, payables à la signature du bail | T.V.A. (20%) | ILAT Indice des Loyers des Activités Tertiaires | 3 % HT du prix de vente HT, à la charge de l'acquéreur, payables à la signature de l'acte | TVA | Trimestriel d'avance | |||||||||||
| RDC | Activités | 139 | 20 % HT du loyer annuel HT/HC, à la charge du Preneur, payables à la signature du bail | T.V.A. (20%) | ILAT Indice des Loyers des Activités Tertiaires | 3 % HT du prix de vente HT, à la charge de l'acquéreur, payables à la signature de l'acte | TVA | Trimestriel d'avance | ||||||||||
| Total Cellule B6 | Activités | 174 | Livraison fin 2025 | 100,57 HT/HC/m²/an | 4 HT/m²/an | 20 % HT du loyer annuel HT/HC, à la charge du Preneur, payables à la signature du bail | T.V.A. (20%) | commercial 3-6-9 ans | ILAT Indice des Loyers des Activités Tertiaires | 1 321,84 HT/m² | 3 % HT du prix de vente HT, à la charge de l'acquéreur, payables à la signature de l'acte | TVA | Trimestriel d'avance | B6 | ||||
| Mezzanine | 35 | 20 % HT du loyer annuel HT/HC, à la charge du Preneur, payables à la signature du bail | T.V.A. (20%) | ILAT Indice des Loyers des Activités Tertiaires | 3 % HT du prix de vente HT, à la charge de l'acquéreur, payables à la signature de l'acte | TVA | Trimestriel d'avance | |||||||||||
| RDC | Activités | 139 | 20 % HT du loyer annuel HT/HC, à la charge du Preneur, payables à la signature du bail | T.V.A. (20%) | ILAT Indice des Loyers des Activités Tertiaires | 3 % HT du prix de vente HT, à la charge de l'acquéreur, payables à la signature de l'acte | TVA | Trimestriel d'avance | ||||||||||
| Total Cellule B7 | Activités | 174 | Livraison fin 2025 | 100,57 HT/HC/m²/an | 4 HT/m²/an | 20 % HT du loyer annuel HT/HC, à la charge du Preneur, payables à la signature du bail | T.V.A. (20%) | commercial 3-6-9 ans | ILAT Indice des Loyers des Activités Tertiaires | 1 321,84 HT/m² | 3 % HT du prix de vente HT, à la charge de l'acquéreur, payables à la signature de l'acte | TVA | Trimestriel d'avance | B7 | ||||
| Mezzanine | 35 | 20 % HT du loyer annuel HT/HC, à la charge du Preneur, payables à la signature du bail | T.V.A. (20%) | ILAT Indice des Loyers des Activités Tertiaires | 3 % HT du prix de vente HT, à la charge de l'acquéreur, payables à la signature de l'acte | TVA | Trimestriel d'avance | |||||||||||
| RDC | Activités | 137 | 20 % HT du loyer annuel HT/HC, à la charge du Preneur, payables à la signature du bail | T.V.A. (20%) | ILAT Indice des Loyers des Activités Tertiaires | 3 % HT du prix de vente HT, à la charge de l'acquéreur, payables à la signature de l'acte | TVA | Trimestriel d'avance | ||||||||||
| Total Cellule B8 | Activités | 172 | Livraison fin 2025 | 98,84 HT/HC/m²/an | 4 HT/m²/an | 20 % HT du loyer annuel HT/HC, à la charge du Preneur, payables à la signature du bail | T.V.A. (20%) | commercial 3-6-9 ans | ILAT Indice des Loyers des Activités Tertiaires | 1 308,14 HT/m² | 3 % HT du prix de vente HT, à la charge de l'acquéreur, payables à la signature de l'acte | TVA | Trimestriel d'avance | B8 | ||||
| Total | 2 595 m² |



































