Ref : 1439723-0V
Vente Local d'activités
Vente Ensemble immobilier - Villeurbanne (69100) - 3350 m² (dont 800 m² actuellement loués)
Villeurbanne (69100)
Prix : 6 000 000 €
Surface 3 350 m²
Description du bien
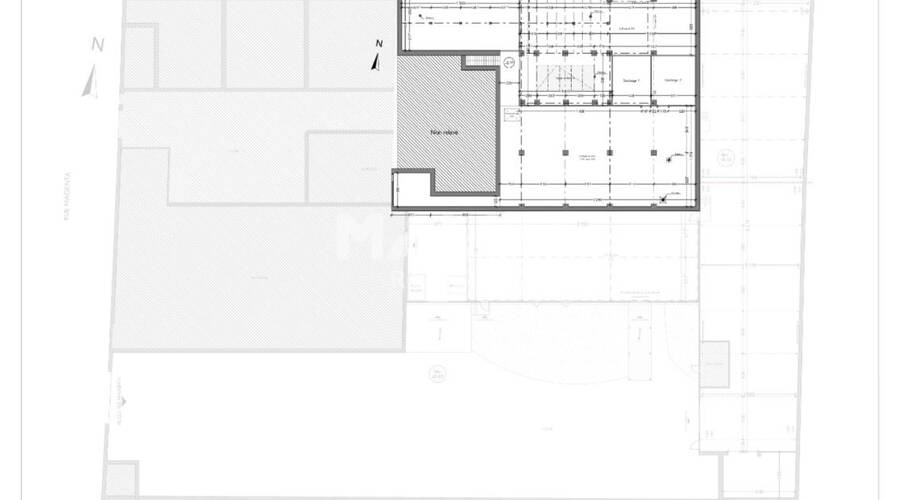
MALSH Realty vous propose à la vente au coeur d'un secteur urbain dynamique et recherché à Villeurbanne, un ensemble immobilier d'activités et de commerce d'une surface totale d'environ 3 350 m²
L'actif se compose :
- D'un showroom d'environ 600 m² complété par environ 200 m² de bureaux (actuellement loués)
- D'un local d'activités polyvalent d'environ 2400 m², adapté à une activité de showroom, de stockage et de vente aux professionnels.
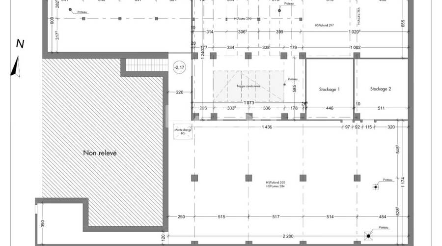
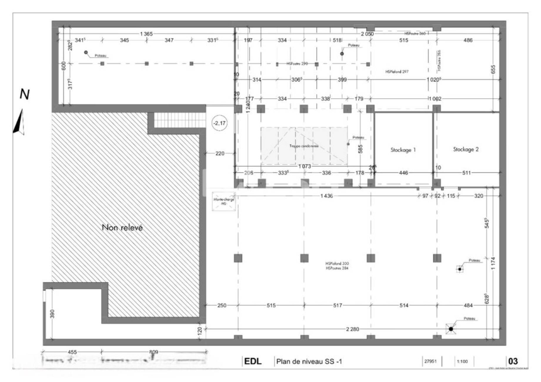
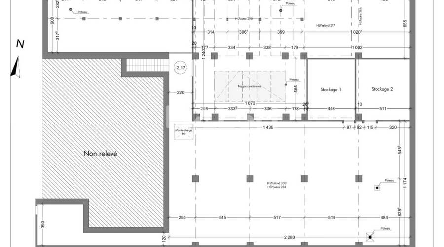
- D'un sous-sol exploitable d'environ 400 m², desservi par un monte-charge, permettant le stockage ou une logistique interne optimisée.
Le bâtiment bénéficie d'un rez-de-chaussée d'environ 2 300 m² et repose sur un terrain d'environ 4 050 m², offrant un important parking privatif et sécurisé pour les clients et collaborateurs.
L'ensemble est en cours de rénovation (rafraîchissement des peintures, reprise de la façade, mise à niveau des installations électriques), ce qui en fait un actif à la fois fonctionnel et valorisable à court terme.
Prestations du bien
- Portes sectionnelles
- Monte-charge (accès au sous-sol)
- Dalle industrielle
- Grande luminosité grâce à la toiture en shed
- Atouts principaux :
- Produit mixte investissement / utilisateur : partie louée générant un revenu locatif sécurisé + partie disponible pour un utilisateur
- Grande surface d'un seul tenant adaptée au showroom, à la vente aux professionnels et au stockage
- Sous-sol avec monte-charge et hauteur d'environ 3 m, facilitant la logistique
- Parking privé et clôturé sur site
- Bâtiment rénové (peintures, façade, électricité)
- Surface terrain : 4050
Ce local professionnel vous est présenté par
Vous souhaitez nous joindre ?
Surfaces des locaux
| Étage | Bâtiment | Type | Surfaces | Disponibilité | Loyer | Charges | Honoraires | Fiscal | Bail | Révision annuelle | Prix | Charges | Honoraires | Fiscal | Paiement Loyer | lot | Coworking | |
|---|---|---|---|---|---|---|---|---|---|---|---|---|---|---|---|---|---|---|
| Sous-Sol | Stockage | 800 | 3 % HT du prix de vente HDE, à la charge de l'acquéreur, payables à la signature de l'acte | Droits d'enregistrement | ||||||||||||||
| R+1 | Bureaux | 250 | 3 % HT du prix de vente HDE, à la charge de l'acquéreur, payables à la signature de l'acte | Droits d'enregistrement | ||||||||||||||
| RDC | Activités | 860 | 3 % HT du prix de vente HDE, à la charge de l'acquéreur, payables à la signature de l'acte | Droits d'enregistrement | ||||||||||||||
| RDC | Commerce | 610 | 3 % HT du prix de vente HDE, à la charge de l'acquéreur, payables à la signature de l'acte | Droits d'enregistrement | ||||||||||||||
| RDC | Bureaux | 450 | 3 % HT du prix de vente HDE, à la charge de l'acquéreur, payables à la signature de l'acte | Droits d'enregistrement | ||||||||||||||
| RDC | Réserve | 380 | 3 % HT du prix de vente HDE, à la charge de l'acquéreur, payables à la signature de l'acte | Droits d'enregistrement | ||||||||||||||
| Total Cellule | Activités | 3 350 | Immédiate | 1 791,04 HDE/m² | 3 % HT du prix de vente HDE, à la charge de l'acquéreur, payables à la signature de l'acte | Droits d'enregistrement | ||||||||||||
| Total | 3 350 m² |
Localisation et accessibilité
- Bus: Bus TCL lignes C16, C23 et 27
- Metro: Métro A station "République Villeurbanne"
Ces biens pourraient vous intéresser
Ces articles peuvent vous intéresser
| Étage | Bâtiment | Type | Surfaces | Disponibilité | Loyer | Charges | Honoraires | Fiscal | Bail | Révision annuelle | Prix | Charges | Honoraires | Fiscal | Paiement Loyer | lot | Coworking | |
|---|---|---|---|---|---|---|---|---|---|---|---|---|---|---|---|---|---|---|
| Sous-Sol | Stockage | 800 | 3 % HT du prix de vente HDE, à la charge de l'acquéreur, payables à la signature de l'acte | Droits d'enregistrement | ||||||||||||||
| R+1 | Bureaux | 250 | 3 % HT du prix de vente HDE, à la charge de l'acquéreur, payables à la signature de l'acte | Droits d'enregistrement | ||||||||||||||
| RDC | Activités | 860 | 3 % HT du prix de vente HDE, à la charge de l'acquéreur, payables à la signature de l'acte | Droits d'enregistrement | ||||||||||||||
| RDC | Commerce | 610 | 3 % HT du prix de vente HDE, à la charge de l'acquéreur, payables à la signature de l'acte | Droits d'enregistrement | ||||||||||||||
| RDC | Bureaux | 450 | 3 % HT du prix de vente HDE, à la charge de l'acquéreur, payables à la signature de l'acte | Droits d'enregistrement | ||||||||||||||
| RDC | Réserve | 380 | 3 % HT du prix de vente HDE, à la charge de l'acquéreur, payables à la signature de l'acte | Droits d'enregistrement | ||||||||||||||
| Total Cellule | Activités | 3 350 | Immédiate | 1 791,04 HDE/m² | 3 % HT du prix de vente HDE, à la charge de l'acquéreur, payables à la signature de l'acte | Droits d'enregistrement | ||||||||||||
| Total | 3 350 m² |






























































