Ref : 1422039-0
Location Bureau
BUREAUX - A VENDRE ou A LOUER - 250 m² - LYON 3 - 5 parkings
Lyon 3 (69003)
Loyer : 42 456 € / an
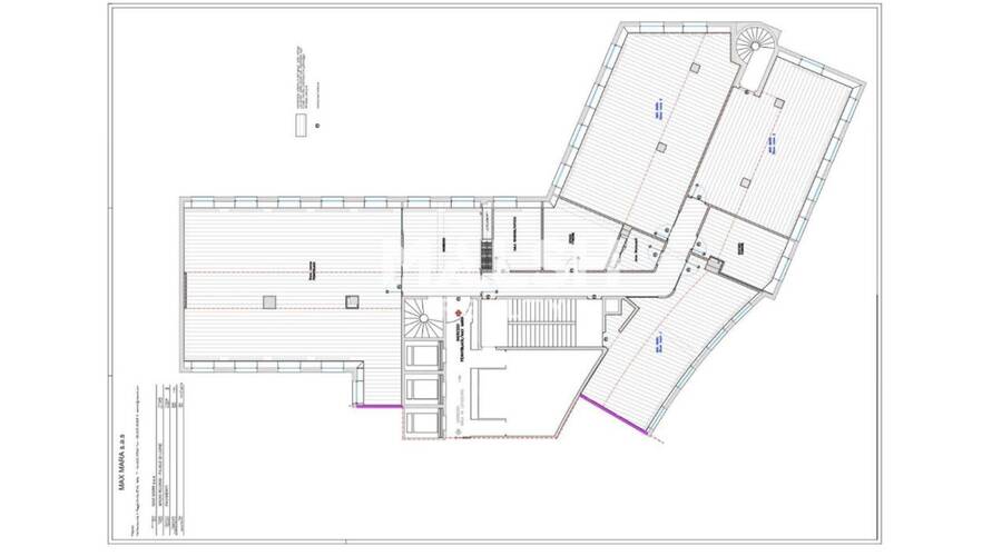
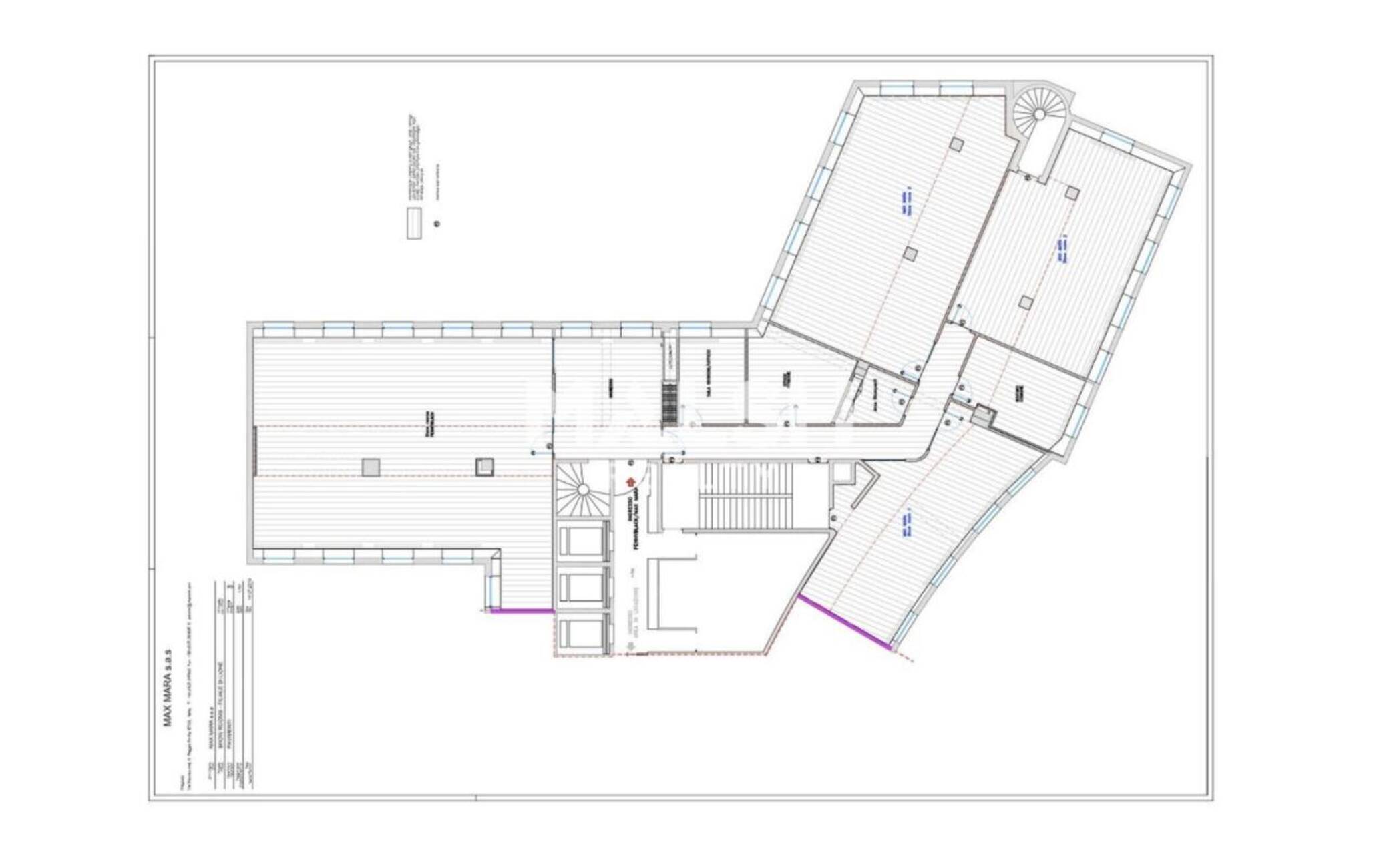
Surface 249 m²
Description du bien
MALSH Realty propose des bureaux à la vente ou à la location de 250 m² dans le 3ème arrondissement de Lyon. Situés cours Albert Thomas, ces locaux bénéficient d'une excellente visibilité sur un axe majeur reliant la Part-Dieu à Monplaisir. Ils profitent également d'une desserte optimale grâce à la proximité immédiate du métro D et de nombreuses lignes de bus, offrant ainsi un accès rapide au centre-ville et aux principaux pôles économiques lyonnais.
Prestations du bien
- Sol parquet et PVC
- Bureaux cloisonnés et open space
- Climatisation
- Une cave à usage d'archives d'environ 15 m² possible
Informations financières
- Bail : commercial 3-6-9 ans
- Dépôt de garantie : 3 mois de loyer HT/HC
Ce local professionnel vous est présenté par
Vous souhaitez nous joindre ?
Surfaces des locaux
| Étage | Bâtiment | Type | Surfaces | Disponibilité | Loyer | Charges | Honoraires | Fiscal | Bail | Révision annuelle | Prix | Charges | Honoraires | Fiscal | Paiement Loyer | lot | Coworking | |
|---|---|---|---|---|---|---|---|---|---|---|---|---|---|---|---|---|---|---|
| 2 | Bureaux | 249,72 | Immédiate | 170 HT/HC/m²/an | 15 % HT du loyer annuel HT à la charge du preneur, payables à la signature du bail | T.V.A. (20%) | commercial 3-6-9 ans | ILAT Indice des Loyers des Activités Tertiaires | 3 500 m² HD | 3 % HT du montant de la vente HDE, à la charge de l'acquéreur | Droits d'enregistrement | Trimestriel d'avance | ||||||
| Sous-Sol | Parkings | - | Immédiate | 1 200 HT/HC/place/an | 15 % HT du loyer annuel HT à la charge du preneur, payables à la signature du bail | T.V.A. (20%) | ILAT Indice des Loyers des Activités Tertiaires | 20 000 m² HD | 3 % HT du montant de la vente HDE, à la charge de l'acquéreur | Droits d'enregistrement | Trimestriel d'avance | |||||||
| Total | 249,72 m² | |||||||||||||||||
| 5 | ||||||||||||||||||
Localisation et accessibilité
- Bus: C11 entre Laurent Bonnevay et Gare Part Dieu Vivier Merle C25 entre Sogaris Promotrans et Gare Part Dieu Vivier Merle C16 relia
- SCNF: Lyon-Part-Dieu (SNCF)
- Metro: Ligne D station Sans Souci à 2 minutes à pied Elle
- Tramway: Ligne T4 arrêt Manufacture Montluc à environ 5 minutes à pied
Ces biens pourraient vous intéresser
Ces articles peuvent vous intéresser
| Étage | Bâtiment | Type | Surfaces | Disponibilité | Loyer | Charges | Honoraires | Fiscal | Bail | Révision annuelle | Prix | Charges | Honoraires | Fiscal | Paiement Loyer | lot | Coworking | |
|---|---|---|---|---|---|---|---|---|---|---|---|---|---|---|---|---|---|---|
| 2 | Bureaux | 249,72 | Immédiate | 170 HT/HC/m²/an | 15 % HT du loyer annuel HT à la charge du preneur, payables à la signature du bail | T.V.A. (20%) | commercial 3-6-9 ans | ILAT Indice des Loyers des Activités Tertiaires | 3 500 m² HD | 3 % HT du montant de la vente HDE, à la charge de l'acquéreur | Droits d'enregistrement | Trimestriel d'avance | ||||||
| Sous-Sol | Parkings | - | Immédiate | 1 200 HT/HC/place/an | 15 % HT du loyer annuel HT à la charge du preneur, payables à la signature du bail | T.V.A. (20%) | ILAT Indice des Loyers des Activités Tertiaires | 20 000 m² HD | 3 % HT du montant de la vente HDE, à la charge de l'acquéreur | Droits d'enregistrement | Trimestriel d'avance | |||||||
| Total | 249,72 m² | |||||||||||||||||
| 5 | ||||||||||||||||||































































