Ref : 1139044-0L
Location Bureau
Bureaux - A louer - Villeurbanne - A partir de 94 m²
Villeurbanne (69100)
Loyer : 52 788 € / an
Surface 459 m²
Divisible dès 94 m²
Description du bien
MALSH Realty vous propose plusieurs surfaces de bureaux de 94 m², 176 m² et 189 m² au sein d'un immeuble tertiaire sécurisé au coeur de Villeurbanne, à proximité du tramway T3 et du métro A. Ces bureaux sont lumineux et prêts à l'emploi (climatisés, câblés et cloisonnés). Des places de stationnement en sous-sol sont également disponibles avec ces bureaux.
Prestations du bien
- Prestations :
- Bureaux individuels
- Grand bureaux
- Salles de réunions
- Openspaces
- Locaux d'archives
- Sanitaires en parties communes
- Immeuble tertiaire sécurisés
- Bureaux lumineux
- Cloisons amovibles
- Ascenseur et interphone
- Accessibilité PMR
- Climatisation réversible
- Luminaires tubes LED
- Arrivée et évacuation d'eau
- Fenêtres doubles vitrages et stores
- Câblages RJ45 et fibre optique
- Baie de brassage
- Jardin en parties communes
Informations financières
- Charges minimales : 765 €
- Bail : commercial 3-6-9 ans
- Taxe foncière : 20 €
- Dépôt de garantie : 3 mois de loyer HT/HC
Diagnostic énergétiques
Diagnostic de performance énergétique
D 151
Indice d'émission de gaz à effet de serre
A 4
Logement très performant
Logement extrêmement consommateur d'énergie
Peu d'émission de GES
Emissions de GES très importantes
Ce local professionnel vous est présenté par
Vous souhaitez nous joindre ?
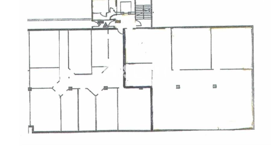
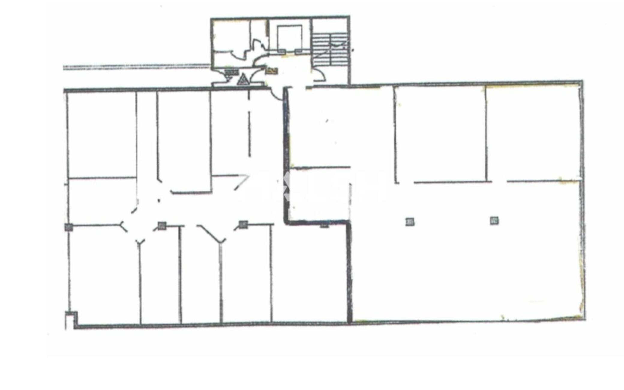
Surfaces des locaux
| Étage | Bâtiment | Type | Surfaces | Disponibilité | Loyer | Charges | Honoraires | Fiscal | Bail | Révision annuelle | Prix | Charges | Honoraires | Fiscal | Paiement Loyer | lot | Coworking | |
|---|---|---|---|---|---|---|---|---|---|---|---|---|---|---|---|---|---|---|
| 5 | Bureaux | 94 | Immédiate | 115 HT/HC/m²/an | 20 HT/m²/An | 15 % HT du loyer annuel HT à la charge du preneur, payables à la signature du bail | T.V.A. (20%) | commercial 3-6-9 ans | ILAT Indice des Loyers des Activités Tertiaires | Trimestriel d'avance | ||||||||
| 4 | Bureaux | 189 | Immédiate | 115 HT/HC/m²/an | 20 HT/M²/AN | 15 % HT du loyer annuel HT à la charge du preneur, payables à la signature du bail | T.V.A. (20%) | commercial 3-6-9 ans | ILAT Indice des Loyers des Activités Tertiaires | Trimestriel d'avance | Droite | |||||||
| 4 | Bureaux | 176 | Immédiate | 115 HT/HC/m²/an | 20 HT/M²/AN | 15 % HT du loyer annuel HT à la charge du preneur, payables à la signature du bail | T.V.A. (20%) | commercial 3-6-9 ans | ILAT Indice des Loyers des Activités Tertiaires | Trimestriel d'avance | Gauche | |||||||
| Parkings | - | Immédiate | 500 HT/Unité/an | 15 % HT du loyer annuel HT à la charge du preneur, payables à la signature du bail | T.V.A. (20%) | commercial 3-6-9 ans | ILAT Indice des Loyers des Activités Tertiaires | Trimestriel d'avance | ||||||||||
| Total | 459 m² | |||||||||||||||||
| 8 en sous-sol | ||||||||||||||||||
Localisation et accessibilité
- Bus: Bus TCL lignes C3, C11 et C26 à 2 min à pied
- SCNF: Gare SNCF Lyon Part-Dieu à 5 stations en tramway
- Tramway: Tramway T3 à 10 min à pied
Ces biens pourraient vous intéresser
Ces articles peuvent vous intéresser
| Étage | Bâtiment | Type | Surfaces | Disponibilité | Loyer | Charges | Honoraires | Fiscal | Bail | Révision annuelle | Prix | Charges | Honoraires | Fiscal | Paiement Loyer | lot | Coworking | |
|---|---|---|---|---|---|---|---|---|---|---|---|---|---|---|---|---|---|---|
| 5 | Bureaux | 94 | Immédiate | 115 HT/HC/m²/an | 20 HT/m²/An | 15 % HT du loyer annuel HT à la charge du preneur, payables à la signature du bail | T.V.A. (20%) | commercial 3-6-9 ans | ILAT Indice des Loyers des Activités Tertiaires | Trimestriel d'avance | ||||||||
| 4 | Bureaux | 189 | Immédiate | 115 HT/HC/m²/an | 20 HT/M²/AN | 15 % HT du loyer annuel HT à la charge du preneur, payables à la signature du bail | T.V.A. (20%) | commercial 3-6-9 ans | ILAT Indice des Loyers des Activités Tertiaires | Trimestriel d'avance | Droite | |||||||
| 4 | Bureaux | 176 | Immédiate | 115 HT/HC/m²/an | 20 HT/M²/AN | 15 % HT du loyer annuel HT à la charge du preneur, payables à la signature du bail | T.V.A. (20%) | commercial 3-6-9 ans | ILAT Indice des Loyers des Activités Tertiaires | Trimestriel d'avance | Gauche | |||||||
| Parkings | - | Immédiate | 500 HT/Unité/an | 15 % HT du loyer annuel HT à la charge du preneur, payables à la signature du bail | T.V.A. (20%) | commercial 3-6-9 ans | ILAT Indice des Loyers des Activités Tertiaires | Trimestriel d'avance | ||||||||||
| Total | 459 m² | |||||||||||||||||
| 8 en sous-sol | ||||||||||||||||||































































