Ref : 1089077-0L
Location Local d'activités
EXCLUSIVITÉ ! RARE à OULLINS - Local d'activités de 2100 m², division possible - A LOUER
Oullins (69600)
Loyer : 178 500 € / an
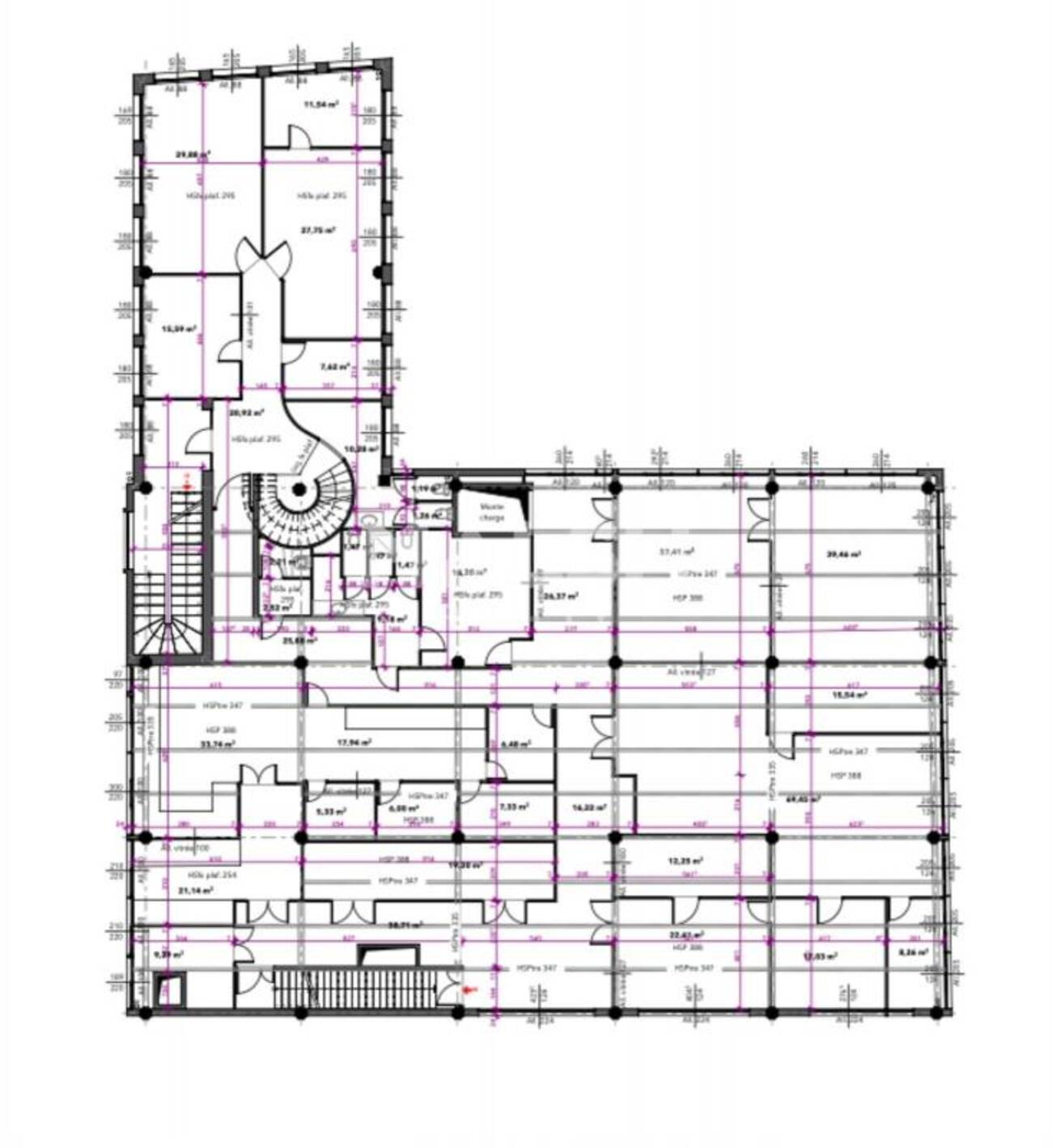
Surface 2 100 m²
Divisible dès 700 m²
Description du bien
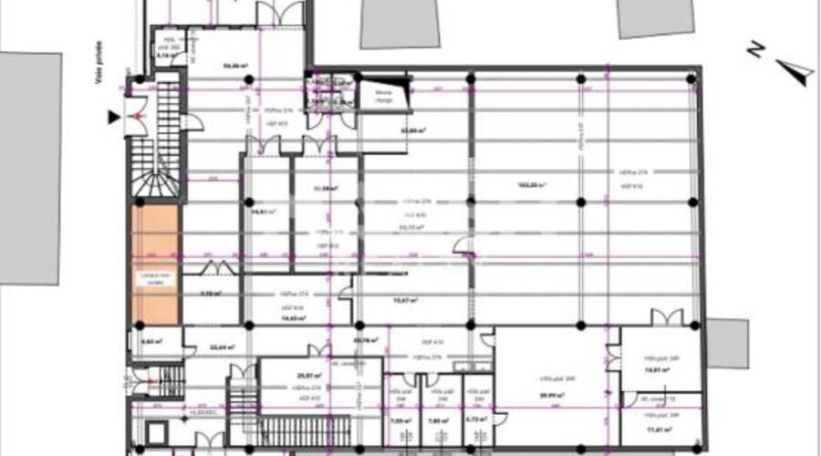
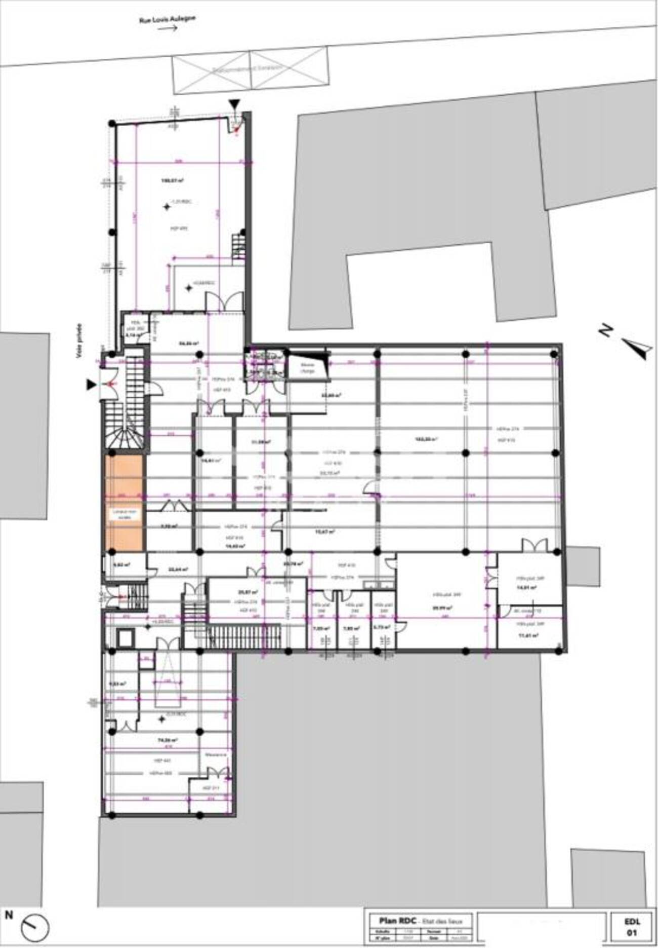
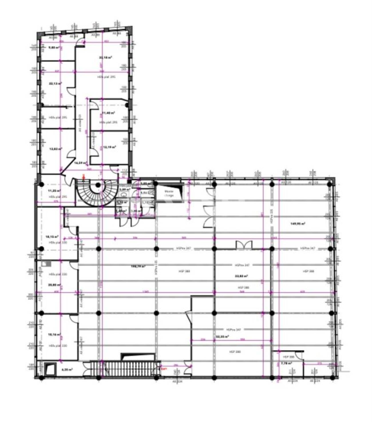
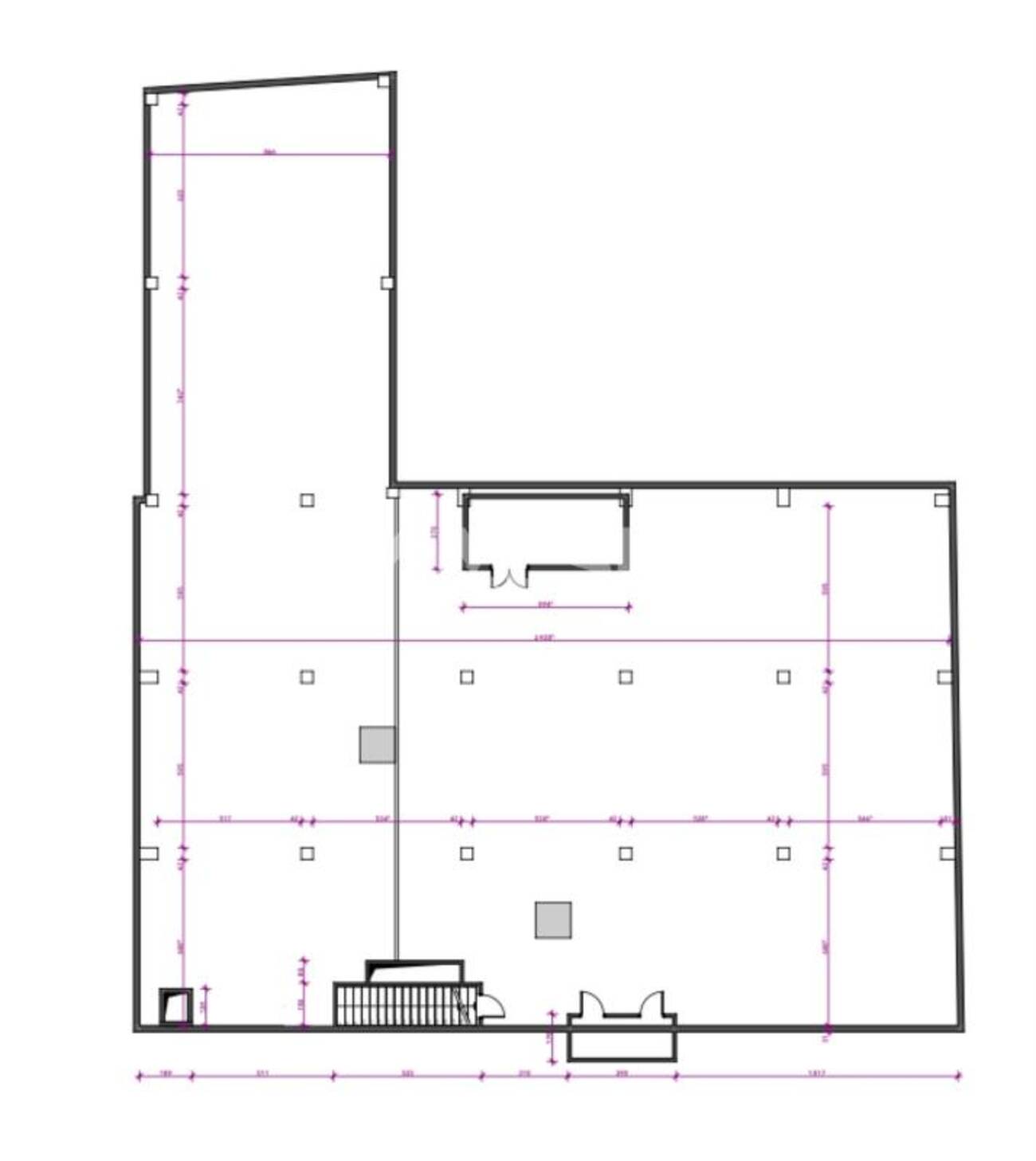
MALSH Realty & Property vous propose à la location en exclusivité, un local d'activités d'une surface totale d'environ 2 100 m² dont 200 m² de bureaux, situé à proximité immédiate du métro B (station Oullins) et des nombreuses lignes de bus, facilitant les déplacements de vos collaborateurs et clients.
Division possible.
Un emplacement stratégique à moins de 2 minutes à pied de la gare d'Oullins !
Prestations du bien
- Faux plafonds
- Luminaires encastrés
- Chauffage Individuel Gaz
- Climatisation réversible
- Sanitaires
- Vestiaires Douches Coin
- Alarme
- Baie de brassage.
- Quai PL
- Surface RDC : 1900 m²
- Haut. libre max. ss poutre : 4,2 m
- Accès bâtiment : 1 porte coulissante
- Accès semi
- Bâtiment clos et Indépendant
- Portail automatique
- Nbr de portes à quai : 1
- Equipements entrepôts : Dalle béton
- Résine
- Rampe tubes
- Chauffage Gaz par aérothermes
- Tri phasé
- Monte charge 1 350 kg
- Transformateur 630 KWA
- Tarifs Jaune
- Ossature : Béton
- Murs périmétriques : Béton banché
Informations financières
- Bail : commercial 3-6-9 ans
- Taxe foncière : 15 000 €
- Dépôt de garantie : 3 mois de loyer HT/HC
- Honoraires de commercialisation : 15% HT d'un an de loyer HT à la charge du preneur, payables à la signature du bail
Ce local professionnel vous est présenté par
Vous souhaitez nous joindre ?
Surfaces des locaux
| Étage | Bâtiment | Type | Surfaces | Disponibilité | Loyer | Charges | Honoraires | Fiscal | Bail | Révision annuelle | Prix | Charges | Honoraires | Fiscal | Paiement Loyer | lot | Coworking | |
|---|---|---|---|---|---|---|---|---|---|---|---|---|---|---|---|---|---|---|
| RDCR+1R+2 | Activités | 1 900 | 15 % HT d'un an de loyer HT à la charge du preneur, payables à la signature du bail | T.V.A. (20%) | ILAT Indice des Loyers des Activités Tertiaires | Trimestriel d'avance | ||||||||||||
| R+2 | Bureaux | 100 | 15 % HT d'un an de loyer HT à la charge du preneur, payables à la signature du bail | T.V.A. (20%) | ILAT Indice des Loyers des Activités Tertiaires | Trimestriel d'avance | ||||||||||||
| R+1 | Bureaux | 100 | 15 % HT d'un an de loyer HT à la charge du preneur, payables à la signature du bail | T.V.A. (20%) | ILAT Indice des Loyers des Activités Tertiaires | Trimestriel d'avance | ||||||||||||
| Total Cellule | Activités | 2 100 | Immédiate | 85 HT/HC/m²/an | 15 % HT d'un an de loyer HT à la charge du preneur, payables à la signature du bail | T.V.A. (20%) | commercial 3-6-9 ans | ILAT Indice des Loyers des Activités Tertiaires | Trimestriel d'avance | |||||||||
| Total | 2 100 m² |
Localisation et accessibilité
- Bus: Orsel (BUS-C7, BUS-C10, BUS-63), Gare d'Oullins (BUS-11, BUS-12, BUS-14, BUS-15, BUS-17, BUS-18, BUS-78, BUS-88)
- SCNF: Gare d'Oullins à moins de 2 min à pied
- Metro: Métro B station "Gare d'Oullins"
- Autoroute: Autoroute A7
Ces biens pourraient vous intéresser
Ces articles peuvent vous intéresser
| Étage | Bâtiment | Type | Surfaces | Disponibilité | Loyer | Charges | Honoraires | Fiscal | Bail | Révision annuelle | Prix | Charges | Honoraires | Fiscal | Paiement Loyer | lot | Coworking | |
|---|---|---|---|---|---|---|---|---|---|---|---|---|---|---|---|---|---|---|
| RDCR+1R+2 | Activités | 1 900 | 15 % HT d'un an de loyer HT à la charge du preneur, payables à la signature du bail | T.V.A. (20%) | ILAT Indice des Loyers des Activités Tertiaires | Trimestriel d'avance | ||||||||||||
| R+2 | Bureaux | 100 | 15 % HT d'un an de loyer HT à la charge du preneur, payables à la signature du bail | T.V.A. (20%) | ILAT Indice des Loyers des Activités Tertiaires | Trimestriel d'avance | ||||||||||||
| R+1 | Bureaux | 100 | 15 % HT d'un an de loyer HT à la charge du preneur, payables à la signature du bail | T.V.A. (20%) | ILAT Indice des Loyers des Activités Tertiaires | Trimestriel d'avance | ||||||||||||
| Total Cellule | Activités | 2 100 | Immédiate | 85 HT/HC/m²/an | 15 % HT d'un an de loyer HT à la charge du preneur, payables à la signature du bail | T.V.A. (20%) | commercial 3-6-9 ans | ILAT Indice des Loyers des Activités Tertiaires | Trimestriel d'avance | |||||||||
| Total | 2 100 m² |




























































