Ref : 1011646-0L
Location Bureau
PIERRE BENITE - Bureaux dans un parc d'activité - A LOUER
Pierre-Bénite (69310)
Loyer : 6 444 € / an
Surface 52 m²
Divisible dès 19 m²
Description du bien
A louer - Pierre Bénite - Au sein d'un parc d'activité, MALSH Realty vous propose des surfaces de bureaux individuelles. Parking facile au pied de l'immeuble. Parc clos et sécurisé. Emplacement facile d'accès depuis le centre ville de Lyon avec accès direct aux autoroutes A 45 / A7 et Périphérique. Bonne desserte transports en communs.
Prestations du bien
- Bureaux rénovés situés en R + 1 (sans ascenseur)
- Climatisation
- Chauffage central gaz
- Sol dalle Pvc
- Mise à disposition d'une salle de réunion commune
- Sanitaires : Homme et Femme en partie communes
Informations financières
- Charges minimales : 112 €
- Bail : commercial 3-6-9 ans
- Informations location :
Conditions particulières à la location : Les charges comprennent : entretien espace verts, portail électrique, chauffage gaz, consommation électrique, consommation eau, nettoyage des communes, parking (selon les lots...)
Frais de rédaction d'actes à prévoir.
Frais d'état des lieux à prévoir.
Mise à disposition Salle de réunion : Forfait obligatoire de 350 euros ht/an - Honoraires de commercialisation : A la charge de l'acquéreur
- Honoraires de commercialisation : 20% HT du loyer annuel HT à la charge du preneur, payables à la signature du bail
Ce local professionnel vous est présenté par
Vous souhaitez nous joindre ?
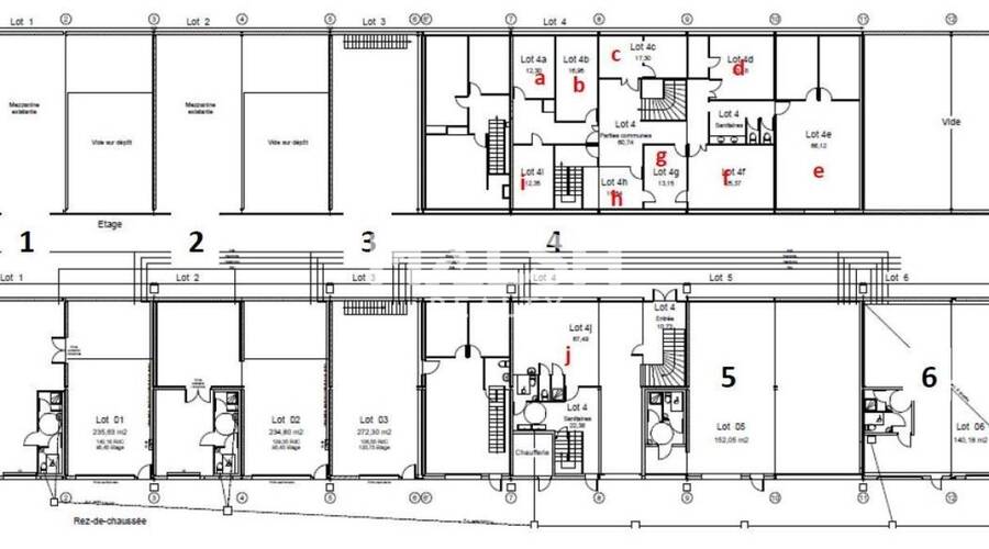
Surfaces des locaux
| Étage | Bâtiment | Type | Surfaces | Disponibilité | Loyer | Charges | Honoraires | Fiscal | Bail | Révision annuelle | Prix | Charges | Honoraires | Fiscal | Paiement Loyer | lot | Coworking | |
|---|---|---|---|---|---|---|---|---|---|---|---|---|---|---|---|---|---|---|
| Bureaux | 33 | Immédiate | 133,33 HT/HC/m²/an | 1 348 an HT | 20% HT du loyer annuel HT à la charge du preneur, payables à la signature du bail | T.V.A. (20%) | commercial 3-6-9 ans | ILAT Indice des Loyers des Activités Tertiaires | Trimestriel d'avance | 4D | ||||||||
| Bureaux | 19 | Immédiate | 107,36 HT/HC/m²/an | 780 an HT | 20% HT du loyer annuel HT à la charge du preneur, payables à la signature du bail | T.V.A. (20%) | commercial 3-6-9 ans | ILAT Indice des Loyers des Activités Tertiaires | Trimestriel d'avance | 4G | ||||||||
| Total | 52 m² |
Localisation et accessibilité
- SCNF: Pierre-Bénite (SNCF)
Ces articles peuvent vous intéresser
| Étage | Bâtiment | Type | Surfaces | Disponibilité | Loyer | Charges | Honoraires | Fiscal | Bail | Révision annuelle | Prix | Charges | Honoraires | Fiscal | Paiement Loyer | lot | Coworking | |
|---|---|---|---|---|---|---|---|---|---|---|---|---|---|---|---|---|---|---|
| Bureaux | 33 | Immédiate | 133,33 HT/HC/m²/an | 1 348 an HT | 20% HT du loyer annuel HT à la charge du preneur, payables à la signature du bail | T.V.A. (20%) | commercial 3-6-9 ans | ILAT Indice des Loyers des Activités Tertiaires | Trimestriel d'avance | 4D | ||||||||
| Bureaux | 19 | Immédiate | 107,36 HT/HC/m²/an | 780 an HT | 20% HT du loyer annuel HT à la charge du preneur, payables à la signature du bail | T.V.A. (20%) | commercial 3-6-9 ans | ILAT Indice des Loyers des Activités Tertiaires | Trimestriel d'avance | 4G | ||||||||
| Total | 52 m² |




















































