Ref : 1396167-0L
Location Local commercial
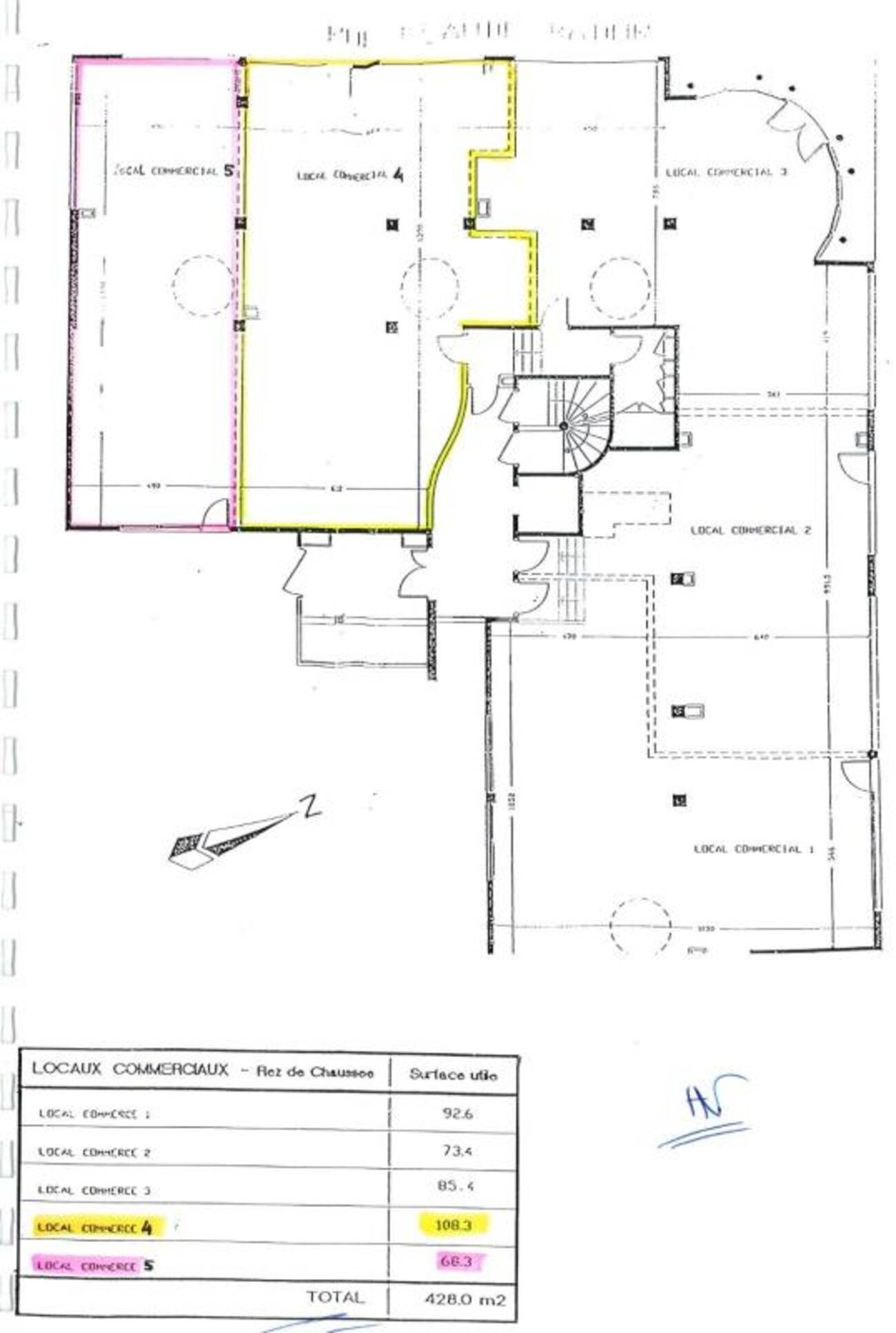
À LOUER - Local commercial de 176 m² - BRON
Bron (69500)
Loyer : 32 004 € / an
Surface 176 m²
Description du bien
Idéalement situé à proximité immédiate du centre-ville de Bron, MALSH Realty vous propose à la location, un local d'une surface totale d'environ 176 m². Il bénéficie d'une excellente visibilité sur un axe passant et convient parfaitement pour des activités de service. Le bien dispose de sanitaires privatifs et peut être aménagé selon les besoins de votre projet. Vous profitez également de la dynamique locale avec de nombreux commerces de proximité à quelques pas.
Prestations du bien
- Vitrine : linéaire en façade
- A aménager selon projet
- Climatisation réversible individuelle
- Faux plafond et éclairage LED
- Sanitaires privatifs
Informations financières
- Charges minimales : 400 €
- Bail : commercial 3-6-9 ans
- Taxe foncière : 3 551 € / an charge preneur
- Dépôt de garantie : 3 mois de loyer HT/HC
Ce local professionnel vous est présenté par
Vous souhaitez nous joindre ?
Surfaces des locaux
| Étage | Bâtiment | Type | Surfaces | Disponibilité | Loyer | Charges | Honoraires | Fiscal | Bail | Révision annuelle | Prix | Charges | Honoraires | Fiscal | Paiement Loyer | lot | Coworking | |
|---|---|---|---|---|---|---|---|---|---|---|---|---|---|---|---|---|---|---|
| RDC | Locaux Commerciaux | 176 | 181,82 HT/HC/m²/an | 4 805 HT/an | 15 % HT du loyer annuel HT/HC à la charge du preneur, payables à la signature du bail | T.V.A. (20%) | commercial 3-6-9 ans | ILC Indice des Loyers Commerciaux | Trimestriel d'avance | |||||||||
| Total | 176 m² |
Localisation et accessibilité
- Bus: Lignes C15, C17, 24 et 79
- Tramway: Tramway T2 et T5
Ces biens pourraient vous intéresser
| Étage | Bâtiment | Type | Surfaces | Disponibilité | Loyer | Charges | Honoraires | Fiscal | Bail | Révision annuelle | Prix | Charges | Honoraires | Fiscal | Paiement Loyer | lot | Coworking | |
|---|---|---|---|---|---|---|---|---|---|---|---|---|---|---|---|---|---|---|
| RDC | Locaux Commerciaux | 176 | 181,82 HT/HC/m²/an | 4 805 HT/an | 15 % HT du loyer annuel HT/HC à la charge du preneur, payables à la signature du bail | T.V.A. (20%) | commercial 3-6-9 ans | ILC Indice des Loyers Commerciaux | Trimestriel d'avance | |||||||||
| Total | 176 m² |



















































