Ref : 2152770-0L
Location Local commercial
Local commercial - À louer 105 m² - NEUVILLE SUR SAONE
Neuville-sur-Saône (69250)
Loyer : 23 004 € / an
Surface 105 m²
Description du bien
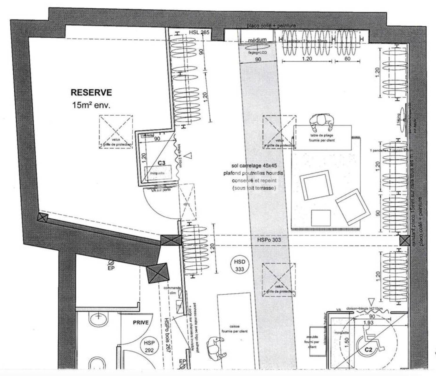
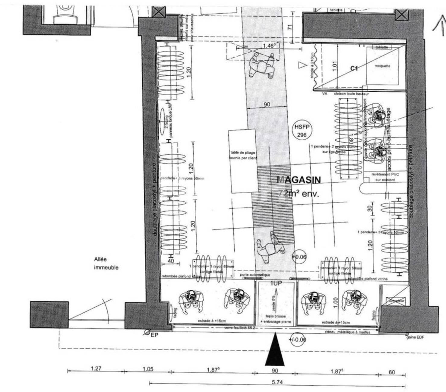
MALSH Realty vous propose à la location un local commercial d'environ 100 m², comprenant 15 m² de mezzanine et une réserve, idéalement situé à Neuville-sur-Saône. Proche de la gare d'Albigny-Neuville, il bénéficie d'une excellente visibilité grâce à ses vitrines donnant sur rue passante. Cet emplacement stratégique, à proximité des transports et du coeur commerçant, offre un fort potentiel de chalandise pour toute activité de détail ou de services.
Prestations du bien
- Porte automatique
- Vitrines sur rue
- Carrelage au sol
- Rideau métallique électrique
- Reserve
Informations financières
- Charges minimales : 42 €
- Bail : commercial 3-6-9 ans
- Taxe foncière : 2 200 € / an charge preneur
- Dépôt de garantie : 3 mois de loyer HT/HC
Ce local professionnel vous est présenté par
Vous souhaitez nous joindre ?
Surfaces des locaux
| Étage | Bâtiment | Type | Surfaces | Disponibilité | Loyer | Charges | Honoraires | Fiscal | Bail | Révision annuelle | Prix | Charges | Honoraires | Fiscal | Paiement Loyer | lot | Coworking | |
|---|---|---|---|---|---|---|---|---|---|---|---|---|---|---|---|---|---|---|
| Mezzanine | 15 | 20 % HT du loyer annuel HT/HC, à la charge du preneur, payables à la signature du bail | T.V.A. (20%) | ILC Indice des Loyers Commerciaux | Trimestriel d'avance | |||||||||||||
| RDC | Locaux Commerciaux | 90 | 20 % HT du loyer annuel HT/HC, à la charge du preneur, payables à la signature du bail | T.V.A. (20%) | ILC Indice des Loyers Commerciaux | Trimestriel d'avance | ||||||||||||
| Total Cellule | Locaux Commerciaux | 105 | Immédiate | 219,05 HT/HC/m²/an | 500 /an | 20 % HT du loyer annuel HT/HC, à la charge du preneur, payables à la signature du bail | T.V.A. (20%) | commercial 3-6-9 ans | ILC Indice des Loyers Commerciaux | Trimestriel d'avance | ||||||||
| Total | 105 m² |
Localisation et accessibilité
- Bus: Lignes 40, 43, 70, 82, 84, 96, 97 et S14
- SCNF: Gare d'Albigny - Neuville à 3 min
| Étage | Bâtiment | Type | Surfaces | Disponibilité | Loyer | Charges | Honoraires | Fiscal | Bail | Révision annuelle | Prix | Charges | Honoraires | Fiscal | Paiement Loyer | lot | Coworking | |
|---|---|---|---|---|---|---|---|---|---|---|---|---|---|---|---|---|---|---|
| Mezzanine | 15 | 20 % HT du loyer annuel HT/HC, à la charge du preneur, payables à la signature du bail | T.V.A. (20%) | ILC Indice des Loyers Commerciaux | Trimestriel d'avance | |||||||||||||
| RDC | Locaux Commerciaux | 90 | 20 % HT du loyer annuel HT/HC, à la charge du preneur, payables à la signature du bail | T.V.A. (20%) | ILC Indice des Loyers Commerciaux | Trimestriel d'avance | ||||||||||||
| Total Cellule | Locaux Commerciaux | 105 | Immédiate | 219,05 HT/HC/m²/an | 500 /an | 20 % HT du loyer annuel HT/HC, à la charge du preneur, payables à la signature du bail | T.V.A. (20%) | commercial 3-6-9 ans | ILC Indice des Loyers Commerciaux | Trimestriel d'avance | ||||||||
| Total | 105 m² |

























