Ref : 1337181-0L
Location Local commercial
Location Local commercial - Oullins-Pierre-Bénite (69600) - 1000 m² divisibles à partir de 500 m²
Oullins (69600)
Loyer : 120 000 € / an
Surface 1 000 m²
Divisible dès 500 m²
Description du bien
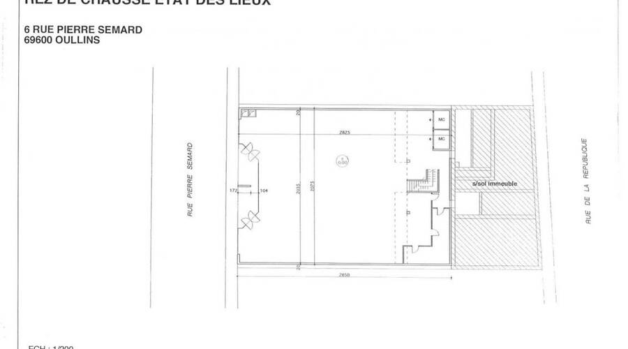
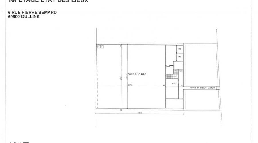
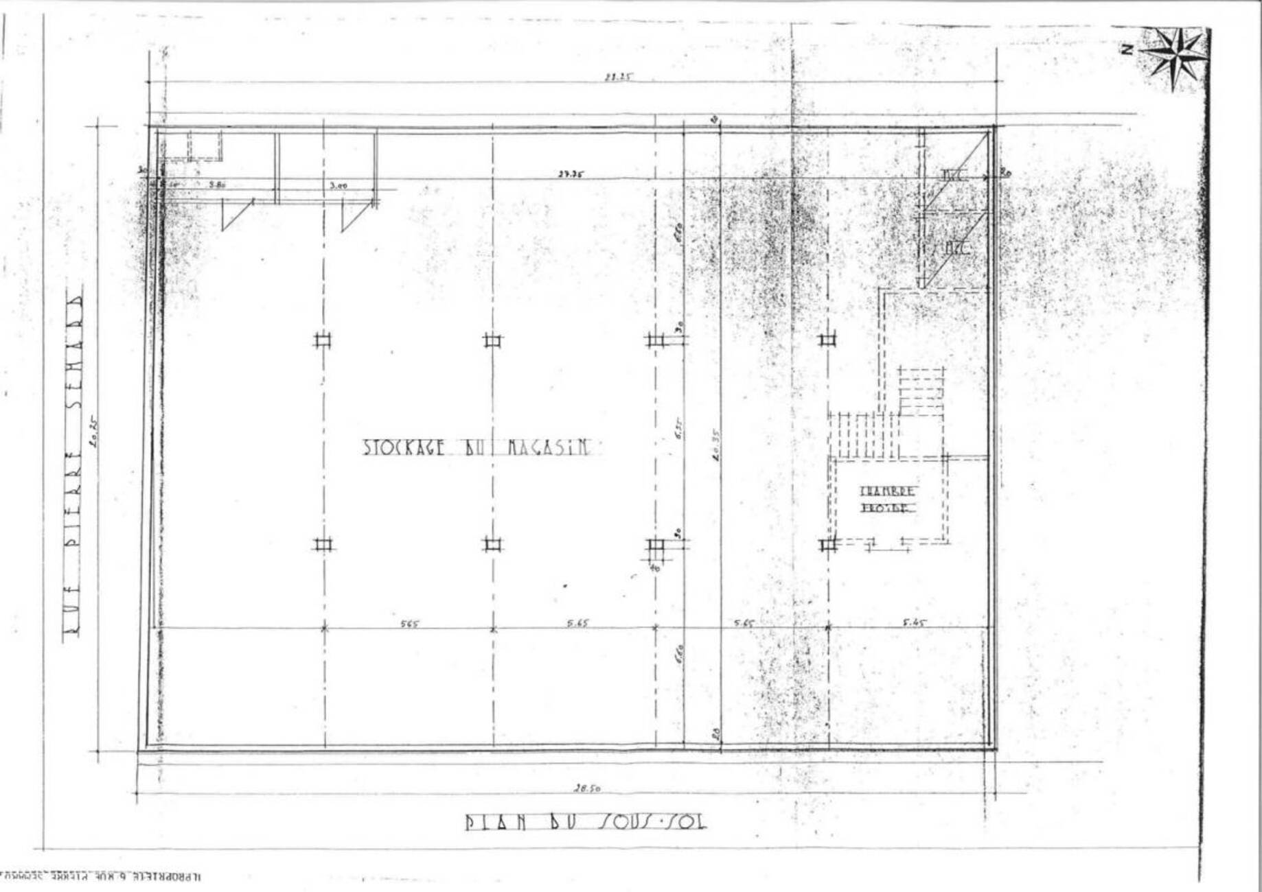
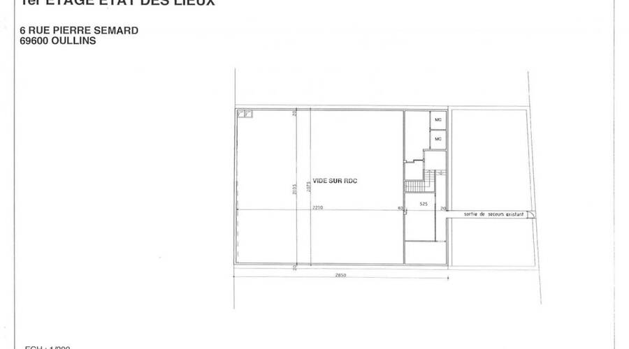
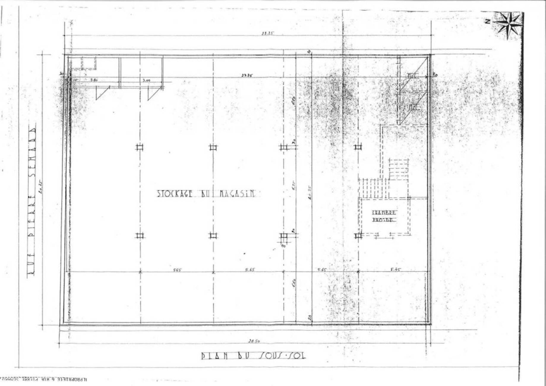
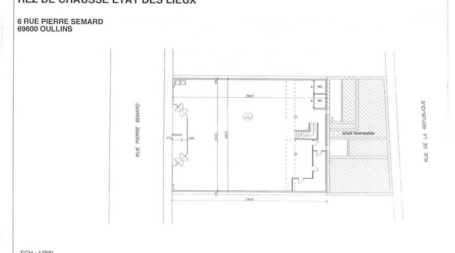
MALSH Realty vous propose à la location à Oullins-Pierre-Bénite, un local commercial d'une surface totale d'environ 1000 m² comprenant 500 m² de surface de vente en RDC et 500 m² de réserve en sous-sol.
Ce local est divisible en 2 lots de 500 m² (250 m² au RDC + 250 m² au sous-sol).
Location du sous-sol en l'état ou en parkings aménagés (+14 000 euros HT/HC/an). Ce local est idéalement situé dans le quartier Oullins Centre à proximité immédiate de la station de métro. Restauration et alimentaire possible.
Disponible immédiatement !
Prestations du bien
- Rideaux métalliques
- Sortie de secours
- 2 trappes évacuation fumée
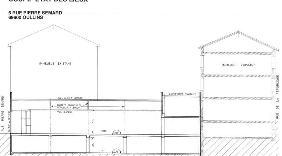
- Hauteur sous charpente : 4,60 m
- Hauteur la plus haute : 5,50 m
- Hauteur HSP du sous sol : 2,50 m
- Gaz électricité climatisation
- SOUS-SOL : Possibilité de créer 14 stationnement en sous-sol.
- Activités autorisées : Tous commerces
Informations financières
- Charges minimales : À définir
- Bail : commercial 3-6-9 ans
- Taxe foncière : 7 500 € / an charge preneur
- Informations location :
Conditions particulières à la location : Loyer sous-sol : à définir si location en l'état ou location en parkings aménagés (+ 14 000 euros HT/HC/an)
Charges : 600 euros HT/an
Assurance murs : 1 000 euros - Dépôt de garantie : 3 mois de loyer HT/HC
Ce local professionnel vous est présenté par
Vous souhaitez nous joindre ?
Surfaces des locaux
| Étage | Bâtiment | Type | Surfaces | Disponibilité | Loyer | Charges | Honoraires | Fiscal | Bail | Révision annuelle | Prix | Charges | Honoraires | Fiscal | Paiement Loyer | lot | Coworking | |
|---|---|---|---|---|---|---|---|---|---|---|---|---|---|---|---|---|---|---|
| Sous-Sol | Réserve | 250 | 15 % HT du loyer annuel HT/HC, à la charge du Preneur, payables à la signature du bail | T.V.A. (20%) | ILAT Indice des Loyers des Activités Tertiaires | Trimestriel d'avance | ||||||||||||
| RDC | Locaux Commerciaux | 250 | 240 HT/HC/m²/an | 15 % HT du loyer annuel HT/HC, à la charge du Preneur, payables à la signature du bail | T.V.A. (20%) | ILAT Indice des Loyers des Activités Tertiaires | Trimestriel d'avance | |||||||||||
| Total Cellule 1 | Locaux Commerciaux | 500 | Immédiate | 15 % HT du loyer annuel HT/HC, à la charge du Preneur, payables à la signature du bail | T.V.A. (20%) | commercial 3-6-9 ans | ILAT Indice des Loyers des Activités Tertiaires | Trimestriel d'avance | 1 | |||||||||
| Sous-Sol | Réserve | 250 | 15 % HT du loyer annuel HT/HC, à la charge du Preneur, payables à la signature du bail | T.V.A. (20%) | ILAT Indice des Loyers des Activités Tertiaires | Trimestriel d'avance | ||||||||||||
| RDC | Locaux Commerciaux | 250 | 240 HT/HC/m²/an | 15 % HT du loyer annuel HT/HC, à la charge du Preneur, payables à la signature du bail | T.V.A. (20%) | ILAT Indice des Loyers des Activités Tertiaires | Trimestriel d'avance | |||||||||||
| Total Cellule 2 | Locaux Commerciaux | 500 | Immédiate | 15 % HT du loyer annuel HT/HC, à la charge du Preneur, payables à la signature du bail | T.V.A. (20%) | commercial 3-6-9 ans | ILAT Indice des Loyers des Activités Tertiaires | Trimestriel d'avance | 2 | |||||||||
| Total | 1 000 m² |
Localisation et accessibilité
- Bus: Bus TCL lignes C7, C10, 6, 11, 12, 14, 15, 17, 63, 88, 119, 120 et 145
- SCNF: Gare SNCF d'Oullins à proximité immédiate (à 4 m à pied)
- Metro: Métro ligne B station "Oullins Centre" à 4 min à p
- Autoroute: A proximité immédiate de l'A7 (à 5 min), de l'A6 et de l'A450
Ces biens pourraient vous intéresser
Ces articles peuvent vous intéresser
| Étage | Bâtiment | Type | Surfaces | Disponibilité | Loyer | Charges | Honoraires | Fiscal | Bail | Révision annuelle | Prix | Charges | Honoraires | Fiscal | Paiement Loyer | lot | Coworking | |
|---|---|---|---|---|---|---|---|---|---|---|---|---|---|---|---|---|---|---|
| Sous-Sol | Réserve | 250 | 15 % HT du loyer annuel HT/HC, à la charge du Preneur, payables à la signature du bail | T.V.A. (20%) | ILAT Indice des Loyers des Activités Tertiaires | Trimestriel d'avance | ||||||||||||
| RDC | Locaux Commerciaux | 250 | 240 HT/HC/m²/an | 15 % HT du loyer annuel HT/HC, à la charge du Preneur, payables à la signature du bail | T.V.A. (20%) | ILAT Indice des Loyers des Activités Tertiaires | Trimestriel d'avance | |||||||||||
| Total Cellule 1 | Locaux Commerciaux | 500 | Immédiate | 15 % HT du loyer annuel HT/HC, à la charge du Preneur, payables à la signature du bail | T.V.A. (20%) | commercial 3-6-9 ans | ILAT Indice des Loyers des Activités Tertiaires | Trimestriel d'avance | 1 | |||||||||
| Sous-Sol | Réserve | 250 | 15 % HT du loyer annuel HT/HC, à la charge du Preneur, payables à la signature du bail | T.V.A. (20%) | ILAT Indice des Loyers des Activités Tertiaires | Trimestriel d'avance | ||||||||||||
| RDC | Locaux Commerciaux | 250 | 240 HT/HC/m²/an | 15 % HT du loyer annuel HT/HC, à la charge du Preneur, payables à la signature du bail | T.V.A. (20%) | ILAT Indice des Loyers des Activités Tertiaires | Trimestriel d'avance | |||||||||||
| Total Cellule 2 | Locaux Commerciaux | 500 | Immédiate | 15 % HT du loyer annuel HT/HC, à la charge du Preneur, payables à la signature du bail | T.V.A. (20%) | commercial 3-6-9 ans | ILAT Indice des Loyers des Activités Tertiaires | Trimestriel d'avance | 2 | |||||||||
| Total | 1 000 m² |


































