Ref : 2016008-0
Vente Bureau
BUREAUX - A ou A LOUER - LYON 8 - 608,20 m²
Lyon 8 (69008)
Prix : 1 600 000 €
Surface 608 m²
Divisible dès 76 m²
Description du bien
MALSH Realty propose à la vente ou à la location un volume de bureaux atypique climatisés en plein coeur de LYON 8 bénéficiant d'une bonne accessibilité en transports en communs (tramway devant l'immeuble) et d'espaces lumineux, A toute proximité de nombreux commerces
Prestations du bien
- Prestations
- Surface rénovée
- Espace atypique
- Grands espaces ouverts sous verrières
- Climatisation réversible
- 2 accès sur rue
- Possibilité d'avoir un ascenseur /
- monte-charge
Informations financières
- Bail : commercial 3-6-9 ans
- Dépôt de garantie : 3 mois de loyer HT/HC
Ce local professionnel vous est présenté par
Vous souhaitez nous joindre ?
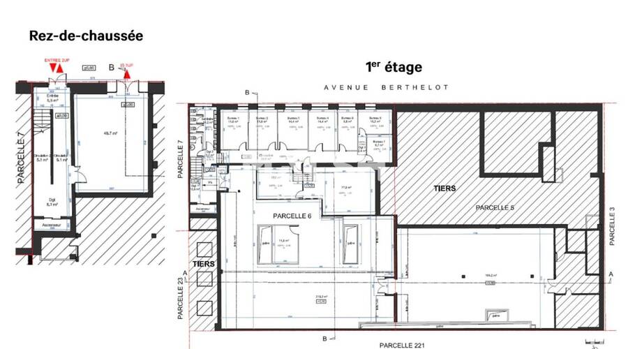
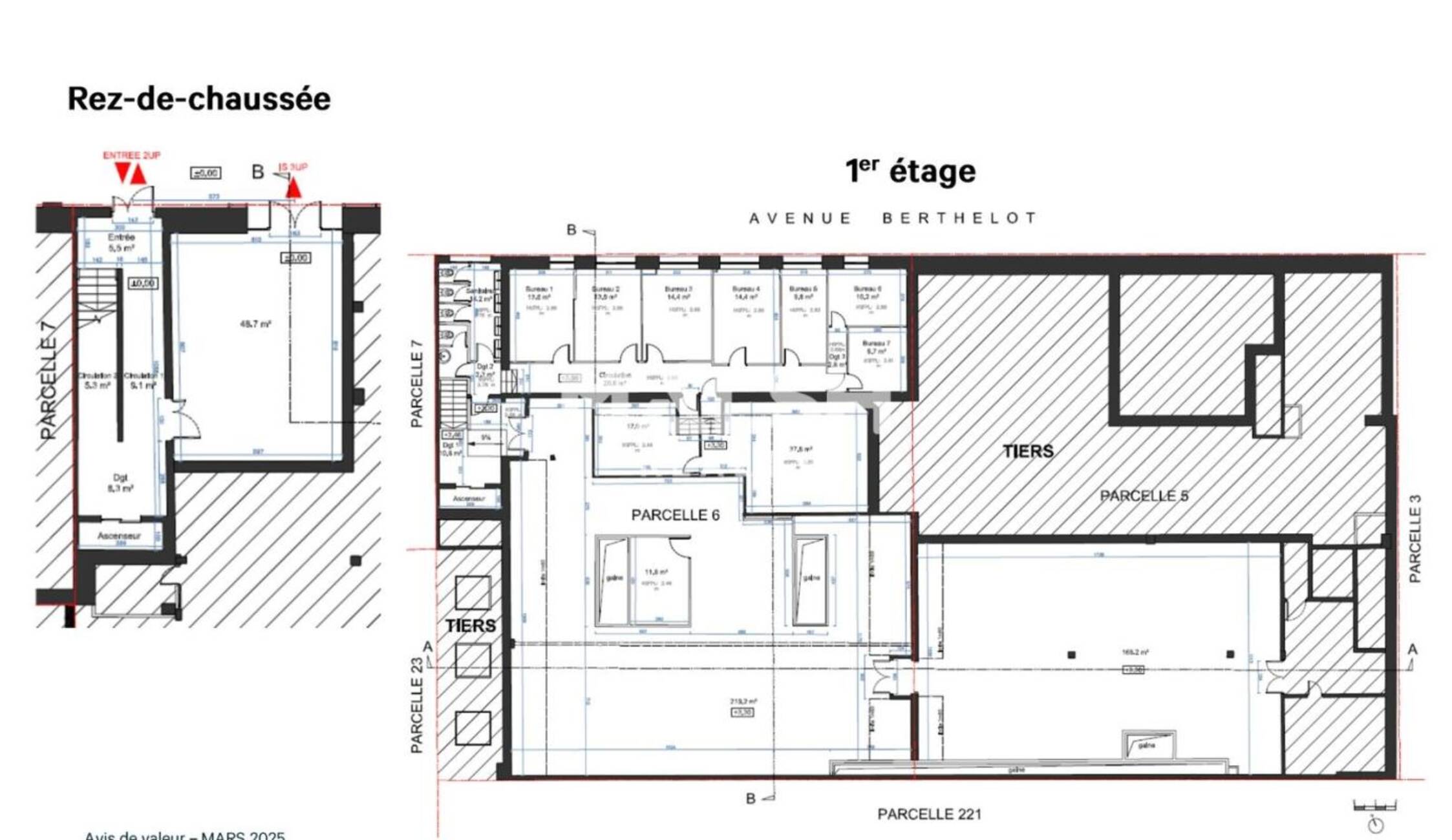
Surfaces des locaux
| Étage | Bâtiment | Type | Surfaces | Disponibilité | Loyer | Charges | Honoraires | Fiscal | Bail | Révision annuelle | Prix | Charges | Honoraires | Fiscal | Paiement Loyer | lot | Coworking | |
|---|---|---|---|---|---|---|---|---|---|---|---|---|---|---|---|---|---|---|
| R+1 | Bureaux | 531,22 | Immédiate | 150 HT/HC/m²/an | 15% HT d'un an de loyer HT à la charge du preneur, payables à la signature du bail | T.V.A. (20%) | commercial 3-6-9 ans | ILAT Indice des Loyers des Activités Tertiaires | 2,50 % HT du montant de la vente HDE, à la charge de l'acquéreur | Droits d'enregistrement | Trimestriel d'avance | |||||||
| RDC | Bureaux | 76,98 | Immédiate | 150 HT/HC/m²/an | 15% HT d'un an de loyer HT à la charge du preneur, payables à la signature du bail | T.V.A. (20%) | commercial 3-6-9 ans | ILAT Indice des Loyers des Activités Tertiaires | 2,50 % HT du montant de la vente HDE, à la charge de l'acquéreur | Droits d'enregistrement | Trimestriel d'avance | |||||||
| Total | 608,2 m² |
Localisation et accessibilité
- Bus: Lignes C15, C16 ET C25
- SCNF: Port-Édouard-Herriot (Gare SNCF)
- Metro: Jean Macé (Ligne B), Perrache (Ligne A), Monplaisi
- Tramway: Lignes T2 et T4
- Autoroute: A 7 (Entrée Boulevard Laurent Bonnevay Lyon États-Unis), A 43 (Entrée Vénissieux Centre), A 43, A 7 (Sortie Paris, Saint-Étienn
Ces biens pourraient vous intéresser
| Étage | Bâtiment | Type | Surfaces | Disponibilité | Loyer | Charges | Honoraires | Fiscal | Bail | Révision annuelle | Prix | Charges | Honoraires | Fiscal | Paiement Loyer | lot | Coworking | |
|---|---|---|---|---|---|---|---|---|---|---|---|---|---|---|---|---|---|---|
| R+1 | Bureaux | 531,22 | Immédiate | 150 HT/HC/m²/an | 15% HT d'un an de loyer HT à la charge du preneur, payables à la signature du bail | T.V.A. (20%) | commercial 3-6-9 ans | ILAT Indice des Loyers des Activités Tertiaires | 2,50 % HT du montant de la vente HDE, à la charge de l'acquéreur | Droits d'enregistrement | Trimestriel d'avance | |||||||
| RDC | Bureaux | 76,98 | Immédiate | 150 HT/HC/m²/an | 15% HT d'un an de loyer HT à la charge du preneur, payables à la signature du bail | T.V.A. (20%) | commercial 3-6-9 ans | ILAT Indice des Loyers des Activités Tertiaires | 2,50 % HT du montant de la vente HDE, à la charge de l'acquéreur | Droits d'enregistrement | Trimestriel d'avance | |||||||
| Total | 608,2 m² |
















































