Ref : 1074042-0
Vente Local d'activités
Vente ou Location Locaux d'Activités - Rillieux la Pape (69140) - 3 986 m² divisibles à partir de 149 m²
Rillieux-la-Pape (69140)
Prix : 7 030 375 €
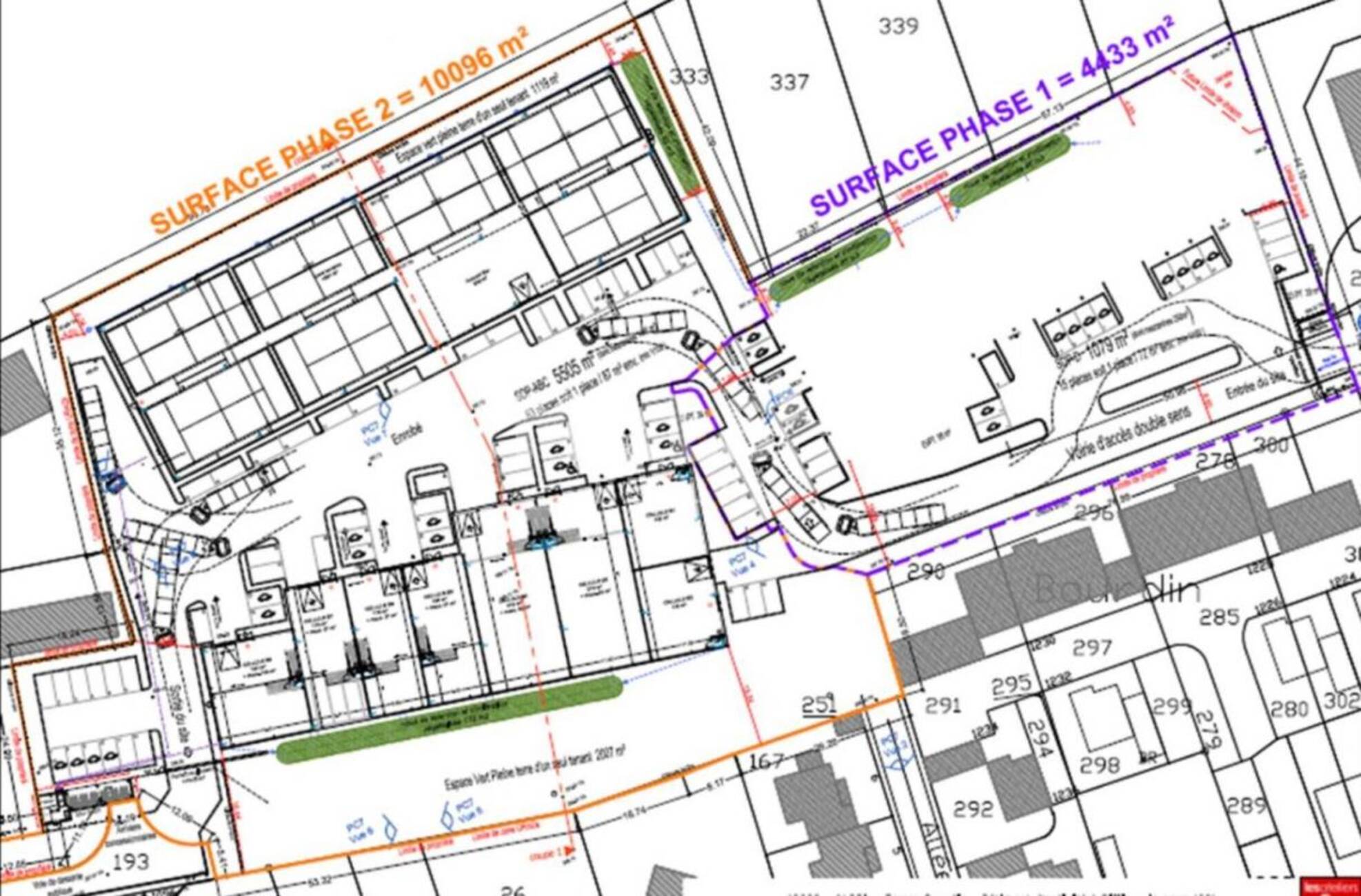
Surface 3 986 m²
Divisible dès 149 m²
Description du bien
MALSH Realty vous propose à la vente ou à la location sur Rillieux-la-Pape, dans un nouveau parc d'activités composé de 4 bâtiments, des locaux d'activités neufs d'une surface totale d'environ 3 986 m² divisibles en plusieurs lots à partir de 149 m². Prestations de qualité.
Nombreux parkings extérieurs.
Accessibilité en train par la gare de Sathonay ou en bus par la ligne 33.
Livraison 4ème trimestre 2026 !
Prestations du bien
- Accès de plain-pied / Accès semi
- Aire de manoeuvre
- Portail coulissant motorisé réglé sur horloge
- Système d'interphone et commande du portail actionnable à distance
- Portes sectionnelles 3 m x 3,5 m
- Emplacements de parking extérieurs
- Charpente métallique
- Hauteur de 6,50 m sous poutres dans les cellules d'activités
- Structure : bardage double peau
- Couverture : bac acier
- Dallage béton surfacé quartz de 2,5T/m²
- Menuiserie aluminium double vitrage
- Eclairage industriel LED pour la zone d'activités et tubes LED sous mezzanines
- Raccordement eau, électricité (36KVA), gaz et fibre
- En mezzanine, plancher en béton sur bac collaborant, dimensionné pour une surcharge de 250 kg/m²
- Hauteur de 4 m sous le plancher collaborant des mezzanines
- Faux plafonds
- Luminaires encastrés
- LED
- Faux plancher
- Chauffage individuel
- Climatisation réversible
- Sanitaires
- Surface terrain : 12181
Informations financières
- Bail : commercial 6-9 ans
- Informations location :
Conditions particulières à la vente : Prix de vente parkings inclus
Conditions particulières à la location : Projet à la location sur demande
- Honoraires de commercialisation : 3 % HT du prix de vente HT, à la charge de l'acquéreur
- Dépôt de garantie : 3 mois de loyer HT/HC
- Honoraires de commercialisation : 15% HT du loyer annuel HT/HC à la charge du preneur, payables à la signature du bail
Ce local professionnel vous est présenté par
Vous souhaitez nous joindre ?
Surfaces des locaux
| Étage | Bâtiment | Type | Surfaces | Disponibilité | Loyer | Charges | Honoraires | Fiscal | Bail | Révision annuelle | Prix | Charges | Honoraires | Fiscal | Paiement Loyer | lot | Coworking | |
|---|---|---|---|---|---|---|---|---|---|---|---|---|---|---|---|---|---|---|
| Mezzanine | 97 | 15 % HT du loyer annuel HT/HC à la charge du preneur, payables à la signature du bail | T.V.A. (20%) | ILAT Indice des Loyers des Activités Tertiaires | 3 % HT du prix de vente HT, à la charge de l'acquéreur, payables à la signature de l'acte | TVA | Trimestriel d'avance | |||||||||||
| RDC | Activités | 302 | 15 % HT du loyer annuel HT/HC à la charge du preneur, payables à la signature du bail | T.V.A. (20%) | ILAT Indice des Loyers des Activités Tertiaires | 3 % HT du prix de vente HT, à la charge de l'acquéreur, payables à la signature de l'acte | TVA | Trimestriel d'avance | ||||||||||
| Parkings | - | 15 % HT du loyer annuel HT/HC à la charge du preneur, payables à la signature du bail | T.V.A. (20%) | ILAT Indice des Loyers des Activités Tertiaires | 3 % HT du prix de vente HT, à la charge de l'acquéreur, payables à la signature de l'acte | TVA | Trimestriel d'avance | |||||||||||
| Total Cellule A1 | Activités | 399 | 4ème trimestre 2026 | 15 % HT du loyer annuel HT/HC à la charge du preneur, payables à la signature du bail | T.V.A. (20%) | commercial 6-9 ans | ILAT Indice des Loyers des Activités Tertiaires | 1 725 HT/m² | 3 % HT du prix de vente HT, à la charge de l'acquéreur, payables à la signature de l'acte | TVA | Trimestriel d'avance | A1 | ||||||
| Mezzanine | 97 | 15 % HT du loyer annuel HT/HC à la charge du preneur, payables à la signature du bail | T.V.A. (20%) | ILAT Indice des Loyers des Activités Tertiaires | 3 % HT du prix de vente HT, à la charge de l'acquéreur, payables à la signature de l'acte | TVA | Trimestriel d'avance | |||||||||||
| RDC | Activités | 303 | 15 % HT du loyer annuel HT/HC à la charge du preneur, payables à la signature du bail | T.V.A. (20%) | ILAT Indice des Loyers des Activités Tertiaires | 3 % HT du prix de vente HT, à la charge de l'acquéreur, payables à la signature de l'acte | TVA | Trimestriel d'avance | ||||||||||
| Parkings | - | 15 % HT du loyer annuel HT/HC à la charge du preneur, payables à la signature du bail | T.V.A. (20%) | ILAT Indice des Loyers des Activités Tertiaires | 3 % HT du prix de vente HT, à la charge de l'acquéreur, payables à la signature de l'acte | TVA | Trimestriel d'avance | |||||||||||
| Total Cellule A2 | Activités | 400 | 4ème trimestre 2026 | 15 % HT du loyer annuel HT/HC à la charge du preneur, payables à la signature du bail | T.V.A. (20%) | commercial 6-9 ans | ILAT Indice des Loyers des Activités Tertiaires | 1 725 HT/m² | 3 % HT du prix de vente HT, à la charge de l'acquéreur, payables à la signature de l'acte | TVA | Trimestriel d'avance | A2 | ||||||
| Mezzanine | 97 | 15 % HT du loyer annuel HT/HC à la charge du preneur, payables à la signature du bail | T.V.A. (20%) | ILAT Indice des Loyers des Activités Tertiaires | 3 % HT du prix de vente HT, à la charge de l'acquéreur, payables à la signature de l'acte | TVA | Trimestriel d'avance | |||||||||||
| RDC | Activités | 303 | 15 % HT du loyer annuel HT/HC à la charge du preneur, payables à la signature du bail | T.V.A. (20%) | ILAT Indice des Loyers des Activités Tertiaires | 3 % HT du prix de vente HT, à la charge de l'acquéreur, payables à la signature de l'acte | TVA | Trimestriel d'avance | ||||||||||
| Parkings | - | 15 % HT du loyer annuel HT/HC à la charge du preneur, payables à la signature du bail | T.V.A. (20%) | ILAT Indice des Loyers des Activités Tertiaires | 3 % HT du prix de vente HT, à la charge de l'acquéreur, payables à la signature de l'acte | TVA | Trimestriel d'avance | |||||||||||
| Total Cellule A3 | Activités | 400 | 4ème trimestre 2026 | 15 % HT du loyer annuel HT/HC à la charge du preneur, payables à la signature du bail | T.V.A. (20%) | commercial 6-9 ans | ILAT Indice des Loyers des Activités Tertiaires | 1 725 HT/m² | 3 % HT du prix de vente HT, à la charge de l'acquéreur, payables à la signature de l'acte | TVA | Trimestriel d'avance | A3 | ||||||
| Mezzanine | 97 | 15 % HT du loyer annuel HT/HC à la charge du preneur, payables à la signature du bail | T.V.A. (20%) | ILAT Indice des Loyers des Activités Tertiaires | 3 % HT du prix de vente HT, à la charge de l'acquéreur, payables à la signature de l'acte | TVA | Trimestriel d'avance | |||||||||||
| RDC | Activités | 303 | 15 % HT du loyer annuel HT/HC à la charge du preneur, payables à la signature du bail | T.V.A. (20%) | ILAT Indice des Loyers des Activités Tertiaires | 3 % HT du prix de vente HT, à la charge de l'acquéreur, payables à la signature de l'acte | TVA | Trimestriel d'avance | ||||||||||
| Parkings | - | 15 % HT du loyer annuel HT/HC à la charge du preneur, payables à la signature du bail | T.V.A. (20%) | ILAT Indice des Loyers des Activités Tertiaires | 3 % HT du prix de vente HT, à la charge de l'acquéreur, payables à la signature de l'acte | TVA | Trimestriel d'avance | |||||||||||
| Total Cellule A4 | Activités | 400 | 4ème trimestre 2026 | 15 % HT du loyer annuel HT/HC à la charge du preneur, payables à la signature du bail | T.V.A. (20%) | commercial 6-9 ans | ILAT Indice des Loyers des Activités Tertiaires | 1 725 HT/m² | 3 % HT du prix de vente HT, à la charge de l'acquéreur, payables à la signature de l'acte | TVA | Trimestriel d'avance | A4 | ||||||
| Mezzanine | 97 | 15 % HT du loyer annuel HT/HC à la charge du preneur, payables à la signature du bail | T.V.A. (20%) | ILAT Indice des Loyers des Activités Tertiaires | 3 % HT du prix de vente HT, à la charge de l'acquéreur, payables à la signature de l'acte | TVA | Trimestriel d'avance | |||||||||||
| RDC | Activités | 303 | 15 % HT du loyer annuel HT/HC à la charge du preneur, payables à la signature du bail | T.V.A. (20%) | ILAT Indice des Loyers des Activités Tertiaires | 3 % HT du prix de vente HT, à la charge de l'acquéreur, payables à la signature de l'acte | TVA | Trimestriel d'avance | ||||||||||
| Parkings | - | 15 % HT du loyer annuel HT/HC à la charge du preneur, payables à la signature du bail | T.V.A. (20%) | ILAT Indice des Loyers des Activités Tertiaires | 3 % HT du prix de vente HT, à la charge de l'acquéreur, payables à la signature de l'acte | TVA | Trimestriel d'avance | |||||||||||
| Total Cellule A5 | Activités | 400 | 4ème trimestre 2026 | 15 % HT du loyer annuel HT/HC à la charge du preneur, payables à la signature du bail | T.V.A. (20%) | commercial 6-9 ans | ILAT Indice des Loyers des Activités Tertiaires | 1 725 HT/m² | 3 % HT du prix de vente HT, à la charge de l'acquéreur, payables à la signature de l'acte | TVA | Trimestriel d'avance | A5 | ||||||
| Mezzanine | 107 | 15 % HT du loyer annuel HT/HC à la charge du preneur, payables à la signature du bail | T.V.A. (20%) | ILAT Indice des Loyers des Activités Tertiaires | 3 % HT du prix de vente HT, à la charge de l'acquéreur, payables à la signature de l'acte | TVA | Trimestriel d'avance | |||||||||||
| RDC | Activités | 333 | 15 % HT du loyer annuel HT/HC à la charge du preneur, payables à la signature du bail | T.V.A. (20%) | ILAT Indice des Loyers des Activités Tertiaires | 3 % HT du prix de vente HT, à la charge de l'acquéreur, payables à la signature de l'acte | TVA | Trimestriel d'avance | ||||||||||
| Parkings | - | 15 % HT du loyer annuel HT/HC à la charge du preneur, payables à la signature du bail | T.V.A. (20%) | ILAT Indice des Loyers des Activités Tertiaires | 3 % HT du prix de vente HT, à la charge de l'acquéreur, payables à la signature de l'acte | TVA | Trimestriel d'avance | |||||||||||
| Total Cellule A6 | Activités | 440 | 4ème trimestre 2026 | 15 % HT du loyer annuel HT/HC à la charge du preneur, payables à la signature du bail | T.V.A. (20%) | commercial 6-9 ans | ILAT Indice des Loyers des Activités Tertiaires | 1 725 HT/m² | 3 % HT du prix de vente HT, à la charge de l'acquéreur, payables à la signature de l'acte | TVA | Trimestriel d'avance | A6 | ||||||
| RDC | Activités | 149 | 15 % HT du loyer annuel HT/HC à la charge du preneur, payables à la signature du bail | T.V.A. (20%) | ILAT Indice des Loyers des Activités Tertiaires | 3 % HT du prix de vente HT, à la charge de l'acquéreur, payables à la signature de l'acte | TVA | Trimestriel d'avance | ||||||||||
| Parkings | - | 15 % HT du loyer annuel HT/HC à la charge du preneur, payables à la signature du bail | T.V.A. (20%) | ILAT Indice des Loyers des Activités Tertiaires | 3 % HT du prix de vente HT, à la charge de l'acquéreur, payables à la signature de l'acte | TVA | Trimestriel d'avance | |||||||||||
| Total Cellule B2 | Activités | 149 | 4ème trimestre 2026 | 15 % HT du loyer annuel HT/HC à la charge du preneur, payables à la signature du bail | T.V.A. (20%) | commercial 6-9 ans | ILAT Indice des Loyers des Activités Tertiaires | 1 899,33 HT/m² | 3 % HT du prix de vente HT, à la charge de l'acquéreur, payables à la signature de l'acte | TVA | Trimestriel d'avance | B2 | ||||||
| Mezzanine | 80 | 15 % HT du loyer annuel HT/HC à la charge du preneur, payables à la signature du bail | T.V.A. (20%) | ILAT Indice des Loyers des Activités Tertiaires | 3 % HT du prix de vente HT, à la charge de l'acquéreur, payables à la signature de l'acte | TVA | Trimestriel d'avance | |||||||||||
| RDC | Activités | 315 | 15 % HT du loyer annuel HT/HC à la charge du preneur, payables à la signature du bail | T.V.A. (20%) | ILAT Indice des Loyers des Activités Tertiaires | 3 % HT du prix de vente HT, à la charge de l'acquéreur, payables à la signature de l'acte | TVA | Trimestriel d'avance | ||||||||||
| Parkings | - | 15 % HT du loyer annuel HT/HC à la charge du preneur, payables à la signature du bail | T.V.A. (20%) | ILAT Indice des Loyers des Activités Tertiaires | 3 % HT du prix de vente HT, à la charge de l'acquéreur, payables à la signature de l'acte | TVA | Trimestriel d'avance | |||||||||||
| Total Cellule B3 | Activités | 395 | 4ème trimestre 2026 | 15 % HT du loyer annuel HT/HC à la charge du preneur, payables à la signature du bail | T.V.A. (20%) | commercial 6-9 ans | ILAT Indice des Loyers des Activités Tertiaires | 1 736,71 HT/m² | 3 % HT du prix de vente HT, à la charge de l'acquéreur, payables à la signature de l'acte | TVA | Trimestriel d'avance | B3 | ||||||
| Mezzanine | 61 | 15 % HT du loyer annuel HT/HC à la charge du preneur, payables à la signature du bail | T.V.A. (20%) | ILAT Indice des Loyers des Activités Tertiaires | 3 % HT du prix de vente HT, à la charge de l'acquéreur, payables à la signature de l'acte | TVA | Trimestriel d'avance | |||||||||||
| RDC | Activités | 185 | 15 % HT du loyer annuel HT/HC à la charge du preneur, payables à la signature du bail | T.V.A. (20%) | ILAT Indice des Loyers des Activités Tertiaires | 3 % HT du prix de vente HT, à la charge de l'acquéreur, payables à la signature de l'acte | TVA | Trimestriel d'avance | ||||||||||
| Parkings | - | 15 % HT du loyer annuel HT/HC à la charge du preneur, payables à la signature du bail | T.V.A. (20%) | ILAT Indice des Loyers des Activités Tertiaires | 3 % HT du prix de vente HT, à la charge de l'acquéreur, payables à la signature de l'acte | TVA | Trimestriel d'avance | |||||||||||
| Total Cellule B5 | Activités | 246 | 4ème trimestre 2026 | 15 % HT du loyer annuel HT/HC à la charge du preneur, payables à la signature du bail | T.V.A. (20%) | commercial 6-9 ans | ILAT Indice des Loyers des Activités Tertiaires | 1 850 HT/m² | 3 % HT du prix de vente HT, à la charge de l'acquéreur, payables à la signature de l'acte | TVA | Trimestriel d'avance | B5 | ||||||
| Mezzanine | 57 | 15 % HT du loyer annuel HT/HC à la charge du preneur, payables à la signature du bail | T.V.A. (20%) | ILAT Indice des Loyers des Activités Tertiaires | 3 % HT du prix de vente HT, à la charge de l'acquéreur, payables à la signature de l'acte | TVA | Trimestriel d'avance | |||||||||||
| RDC | Activités | 176 | 15 % HT du loyer annuel HT/HC à la charge du preneur, payables à la signature du bail | T.V.A. (20%) | ILAT Indice des Loyers des Activités Tertiaires | 3 % HT du prix de vente HT, à la charge de l'acquéreur, payables à la signature de l'acte | TVA | Trimestriel d'avance | ||||||||||
| Parkings | - | 15 % HT du loyer annuel HT/HC à la charge du preneur, payables à la signature du bail | T.V.A. (20%) | ILAT Indice des Loyers des Activités Tertiaires | 3 % HT du prix de vente HT, à la charge de l'acquéreur, payables à la signature de l'acte | TVA | Trimestriel d'avance | |||||||||||
| Total Cellule B6 | Activités | 233 | 4ème trimestre 2026 | 15 % HT du loyer annuel HT/HC à la charge du preneur, payables à la signature du bail | T.V.A. (20%) | commercial 6-9 ans | ILAT Indice des Loyers des Activités Tertiaires | 1 845,49 HT/m² | 3 % HT du prix de vente HT, à la charge de l'acquéreur, payables à la signature de l'acte | TVA | Trimestriel d'avance | B6 | ||||||
| Mezzanine | 57 | 15 % HT du loyer annuel HT/HC à la charge du preneur, payables à la signature du bail | T.V.A. (20%) | ILAT Indice des Loyers des Activités Tertiaires | 3 % HT du prix de vente HT, à la charge de l'acquéreur, payables à la signature de l'acte | TVA | Trimestriel d'avance | |||||||||||
| RDC | Activités | 173 | 15 % HT du loyer annuel HT/HC à la charge du preneur, payables à la signature du bail | T.V.A. (20%) | ILAT Indice des Loyers des Activités Tertiaires | 3 % HT du prix de vente HT, à la charge de l'acquéreur, payables à la signature de l'acte | TVA | Trimestriel d'avance | ||||||||||
| Parkings | - | 15 % HT du loyer annuel HT/HC à la charge du preneur, payables à la signature du bail | T.V.A. (20%) | ILAT Indice des Loyers des Activités Tertiaires | 3 % HT du prix de vente HT, à la charge de l'acquéreur, payables à la signature de l'acte | TVA | Trimestriel d'avance | |||||||||||
| Total Cellule B7 | Activités | 230 | 4ème trimestre 2026 | 15 % HT du loyer annuel HT/HC à la charge du preneur, payables à la signature du bail | T.V.A. (20%) | commercial 6-9 ans | ILAT Indice des Loyers des Activités Tertiaires | 1 847,83 HT/m² | 3 % HT du prix de vente HT, à la charge de l'acquéreur, payables à la signature de l'acte | TVA | Trimestriel d'avance | B7 | ||||||
| Mezzanine | 100 | 15 % HT du loyer annuel HT/HC à la charge du preneur, payables à la signature du bail | T.V.A. (20%) | ILAT Indice des Loyers des Activités Tertiaires | 3 % HT du prix de vente HT, à la charge de l'acquéreur, payables à la signature de l'acte | TVA | Trimestriel d'avance | |||||||||||
| RDC | Activités | 194 | 15 % HT du loyer annuel HT/HC à la charge du preneur, payables à la signature du bail | T.V.A. (20%) | ILAT Indice des Loyers des Activités Tertiaires | 3 % HT du prix de vente HT, à la charge de l'acquéreur, payables à la signature de l'acte | TVA | Trimestriel d'avance | ||||||||||
| Parkings | - | 15 % HT du loyer annuel HT/HC à la charge du preneur, payables à la signature du bail | T.V.A. (20%) | ILAT Indice des Loyers des Activités Tertiaires | 3 % HT du prix de vente HT, à la charge de l'acquéreur, payables à la signature de l'acte | TVA | Trimestriel d'avance | |||||||||||
| Total Cellule B8 | Activités | 294 | 4ème trimestre 2026 | 15 % HT du loyer annuel HT/HC à la charge du preneur, payables à la signature du bail | T.V.A. (20%) | commercial 6-9 ans | ILAT Indice des Loyers des Activités Tertiaires | 1 850,34 HT/m² | 3 % HT du prix de vente HT, à la charge de l'acquéreur, payables à la signature de l'acte | TVA | Trimestriel d'avance | B8 | ||||||
| Total | 3 986 m² | |||||||||||||||||
| 4 Parkings ext. 3 Parkings ext. 2 Parkings ext. 3 Parkings ext. 3 Parkings ext. 3 Parkings ext. 5 Parkings ext. 5 Parkings ext. 5 Parkings ext. 5 Parkings ext. 5 Parkings ext. 5 Parkings ext. | ||||||||||||||||||
Localisation et accessibilité
- Bus: Bus TCL lignes 33, GE1, ZI4, 9 et 77 à quelques min à pied
- SCNF: Gare de Sathonay-Rillieux à quelques min à pied. Gare de Vaise à 19 min et Gare de Lyon Part-Dieu à 20 min
- Autoroute: Autoroute A46 à 7 min, Autoroute A42 à 12 min
Ces biens pourraient vous intéresser
Ces articles peuvent vous intéresser
| Étage | Bâtiment | Type | Surfaces | Disponibilité | Loyer | Charges | Honoraires | Fiscal | Bail | Révision annuelle | Prix | Charges | Honoraires | Fiscal | Paiement Loyer | lot | Coworking | |
|---|---|---|---|---|---|---|---|---|---|---|---|---|---|---|---|---|---|---|
| Mezzanine | 97 | 15 % HT du loyer annuel HT/HC à la charge du preneur, payables à la signature du bail | T.V.A. (20%) | ILAT Indice des Loyers des Activités Tertiaires | 3 % HT du prix de vente HT, à la charge de l'acquéreur, payables à la signature de l'acte | TVA | Trimestriel d'avance | |||||||||||
| RDC | Activités | 302 | 15 % HT du loyer annuel HT/HC à la charge du preneur, payables à la signature du bail | T.V.A. (20%) | ILAT Indice des Loyers des Activités Tertiaires | 3 % HT du prix de vente HT, à la charge de l'acquéreur, payables à la signature de l'acte | TVA | Trimestriel d'avance | ||||||||||
| Parkings | - | 15 % HT du loyer annuel HT/HC à la charge du preneur, payables à la signature du bail | T.V.A. (20%) | ILAT Indice des Loyers des Activités Tertiaires | 3 % HT du prix de vente HT, à la charge de l'acquéreur, payables à la signature de l'acte | TVA | Trimestriel d'avance | |||||||||||
| Total Cellule A1 | Activités | 399 | 4ème trimestre 2026 | 15 % HT du loyer annuel HT/HC à la charge du preneur, payables à la signature du bail | T.V.A. (20%) | commercial 6-9 ans | ILAT Indice des Loyers des Activités Tertiaires | 1 725 HT/m² | 3 % HT du prix de vente HT, à la charge de l'acquéreur, payables à la signature de l'acte | TVA | Trimestriel d'avance | A1 | ||||||
| Mezzanine | 97 | 15 % HT du loyer annuel HT/HC à la charge du preneur, payables à la signature du bail | T.V.A. (20%) | ILAT Indice des Loyers des Activités Tertiaires | 3 % HT du prix de vente HT, à la charge de l'acquéreur, payables à la signature de l'acte | TVA | Trimestriel d'avance | |||||||||||
| RDC | Activités | 303 | 15 % HT du loyer annuel HT/HC à la charge du preneur, payables à la signature du bail | T.V.A. (20%) | ILAT Indice des Loyers des Activités Tertiaires | 3 % HT du prix de vente HT, à la charge de l'acquéreur, payables à la signature de l'acte | TVA | Trimestriel d'avance | ||||||||||
| Parkings | - | 15 % HT du loyer annuel HT/HC à la charge du preneur, payables à la signature du bail | T.V.A. (20%) | ILAT Indice des Loyers des Activités Tertiaires | 3 % HT du prix de vente HT, à la charge de l'acquéreur, payables à la signature de l'acte | TVA | Trimestriel d'avance | |||||||||||
| Total Cellule A2 | Activités | 400 | 4ème trimestre 2026 | 15 % HT du loyer annuel HT/HC à la charge du preneur, payables à la signature du bail | T.V.A. (20%) | commercial 6-9 ans | ILAT Indice des Loyers des Activités Tertiaires | 1 725 HT/m² | 3 % HT du prix de vente HT, à la charge de l'acquéreur, payables à la signature de l'acte | TVA | Trimestriel d'avance | A2 | ||||||
| Mezzanine | 97 | 15 % HT du loyer annuel HT/HC à la charge du preneur, payables à la signature du bail | T.V.A. (20%) | ILAT Indice des Loyers des Activités Tertiaires | 3 % HT du prix de vente HT, à la charge de l'acquéreur, payables à la signature de l'acte | TVA | Trimestriel d'avance | |||||||||||
| RDC | Activités | 303 | 15 % HT du loyer annuel HT/HC à la charge du preneur, payables à la signature du bail | T.V.A. (20%) | ILAT Indice des Loyers des Activités Tertiaires | 3 % HT du prix de vente HT, à la charge de l'acquéreur, payables à la signature de l'acte | TVA | Trimestriel d'avance | ||||||||||
| Parkings | - | 15 % HT du loyer annuel HT/HC à la charge du preneur, payables à la signature du bail | T.V.A. (20%) | ILAT Indice des Loyers des Activités Tertiaires | 3 % HT du prix de vente HT, à la charge de l'acquéreur, payables à la signature de l'acte | TVA | Trimestriel d'avance | |||||||||||
| Total Cellule A3 | Activités | 400 | 4ème trimestre 2026 | 15 % HT du loyer annuel HT/HC à la charge du preneur, payables à la signature du bail | T.V.A. (20%) | commercial 6-9 ans | ILAT Indice des Loyers des Activités Tertiaires | 1 725 HT/m² | 3 % HT du prix de vente HT, à la charge de l'acquéreur, payables à la signature de l'acte | TVA | Trimestriel d'avance | A3 | ||||||
| Mezzanine | 97 | 15 % HT du loyer annuel HT/HC à la charge du preneur, payables à la signature du bail | T.V.A. (20%) | ILAT Indice des Loyers des Activités Tertiaires | 3 % HT du prix de vente HT, à la charge de l'acquéreur, payables à la signature de l'acte | TVA | Trimestriel d'avance | |||||||||||
| RDC | Activités | 303 | 15 % HT du loyer annuel HT/HC à la charge du preneur, payables à la signature du bail | T.V.A. (20%) | ILAT Indice des Loyers des Activités Tertiaires | 3 % HT du prix de vente HT, à la charge de l'acquéreur, payables à la signature de l'acte | TVA | Trimestriel d'avance | ||||||||||
| Parkings | - | 15 % HT du loyer annuel HT/HC à la charge du preneur, payables à la signature du bail | T.V.A. (20%) | ILAT Indice des Loyers des Activités Tertiaires | 3 % HT du prix de vente HT, à la charge de l'acquéreur, payables à la signature de l'acte | TVA | Trimestriel d'avance | |||||||||||
| Total Cellule A4 | Activités | 400 | 4ème trimestre 2026 | 15 % HT du loyer annuel HT/HC à la charge du preneur, payables à la signature du bail | T.V.A. (20%) | commercial 6-9 ans | ILAT Indice des Loyers des Activités Tertiaires | 1 725 HT/m² | 3 % HT du prix de vente HT, à la charge de l'acquéreur, payables à la signature de l'acte | TVA | Trimestriel d'avance | A4 | ||||||
| Mezzanine | 97 | 15 % HT du loyer annuel HT/HC à la charge du preneur, payables à la signature du bail | T.V.A. (20%) | ILAT Indice des Loyers des Activités Tertiaires | 3 % HT du prix de vente HT, à la charge de l'acquéreur, payables à la signature de l'acte | TVA | Trimestriel d'avance | |||||||||||
| RDC | Activités | 303 | 15 % HT du loyer annuel HT/HC à la charge du preneur, payables à la signature du bail | T.V.A. (20%) | ILAT Indice des Loyers des Activités Tertiaires | 3 % HT du prix de vente HT, à la charge de l'acquéreur, payables à la signature de l'acte | TVA | Trimestriel d'avance | ||||||||||
| Parkings | - | 15 % HT du loyer annuel HT/HC à la charge du preneur, payables à la signature du bail | T.V.A. (20%) | ILAT Indice des Loyers des Activités Tertiaires | 3 % HT du prix de vente HT, à la charge de l'acquéreur, payables à la signature de l'acte | TVA | Trimestriel d'avance | |||||||||||
| Total Cellule A5 | Activités | 400 | 4ème trimestre 2026 | 15 % HT du loyer annuel HT/HC à la charge du preneur, payables à la signature du bail | T.V.A. (20%) | commercial 6-9 ans | ILAT Indice des Loyers des Activités Tertiaires | 1 725 HT/m² | 3 % HT du prix de vente HT, à la charge de l'acquéreur, payables à la signature de l'acte | TVA | Trimestriel d'avance | A5 | ||||||
| Mezzanine | 107 | 15 % HT du loyer annuel HT/HC à la charge du preneur, payables à la signature du bail | T.V.A. (20%) | ILAT Indice des Loyers des Activités Tertiaires | 3 % HT du prix de vente HT, à la charge de l'acquéreur, payables à la signature de l'acte | TVA | Trimestriel d'avance | |||||||||||
| RDC | Activités | 333 | 15 % HT du loyer annuel HT/HC à la charge du preneur, payables à la signature du bail | T.V.A. (20%) | ILAT Indice des Loyers des Activités Tertiaires | 3 % HT du prix de vente HT, à la charge de l'acquéreur, payables à la signature de l'acte | TVA | Trimestriel d'avance | ||||||||||
| Parkings | - | 15 % HT du loyer annuel HT/HC à la charge du preneur, payables à la signature du bail | T.V.A. (20%) | ILAT Indice des Loyers des Activités Tertiaires | 3 % HT du prix de vente HT, à la charge de l'acquéreur, payables à la signature de l'acte | TVA | Trimestriel d'avance | |||||||||||
| Total Cellule A6 | Activités | 440 | 4ème trimestre 2026 | 15 % HT du loyer annuel HT/HC à la charge du preneur, payables à la signature du bail | T.V.A. (20%) | commercial 6-9 ans | ILAT Indice des Loyers des Activités Tertiaires | 1 725 HT/m² | 3 % HT du prix de vente HT, à la charge de l'acquéreur, payables à la signature de l'acte | TVA | Trimestriel d'avance | A6 | ||||||
| RDC | Activités | 149 | 15 % HT du loyer annuel HT/HC à la charge du preneur, payables à la signature du bail | T.V.A. (20%) | ILAT Indice des Loyers des Activités Tertiaires | 3 % HT du prix de vente HT, à la charge de l'acquéreur, payables à la signature de l'acte | TVA | Trimestriel d'avance | ||||||||||
| Parkings | - | 15 % HT du loyer annuel HT/HC à la charge du preneur, payables à la signature du bail | T.V.A. (20%) | ILAT Indice des Loyers des Activités Tertiaires | 3 % HT du prix de vente HT, à la charge de l'acquéreur, payables à la signature de l'acte | TVA | Trimestriel d'avance | |||||||||||
| Total Cellule B2 | Activités | 149 | 4ème trimestre 2026 | 15 % HT du loyer annuel HT/HC à la charge du preneur, payables à la signature du bail | T.V.A. (20%) | commercial 6-9 ans | ILAT Indice des Loyers des Activités Tertiaires | 1 899,33 HT/m² | 3 % HT du prix de vente HT, à la charge de l'acquéreur, payables à la signature de l'acte | TVA | Trimestriel d'avance | B2 | ||||||
| Mezzanine | 80 | 15 % HT du loyer annuel HT/HC à la charge du preneur, payables à la signature du bail | T.V.A. (20%) | ILAT Indice des Loyers des Activités Tertiaires | 3 % HT du prix de vente HT, à la charge de l'acquéreur, payables à la signature de l'acte | TVA | Trimestriel d'avance | |||||||||||
| RDC | Activités | 315 | 15 % HT du loyer annuel HT/HC à la charge du preneur, payables à la signature du bail | T.V.A. (20%) | ILAT Indice des Loyers des Activités Tertiaires | 3 % HT du prix de vente HT, à la charge de l'acquéreur, payables à la signature de l'acte | TVA | Trimestriel d'avance | ||||||||||
| Parkings | - | 15 % HT du loyer annuel HT/HC à la charge du preneur, payables à la signature du bail | T.V.A. (20%) | ILAT Indice des Loyers des Activités Tertiaires | 3 % HT du prix de vente HT, à la charge de l'acquéreur, payables à la signature de l'acte | TVA | Trimestriel d'avance | |||||||||||
| Total Cellule B3 | Activités | 395 | 4ème trimestre 2026 | 15 % HT du loyer annuel HT/HC à la charge du preneur, payables à la signature du bail | T.V.A. (20%) | commercial 6-9 ans | ILAT Indice des Loyers des Activités Tertiaires | 1 736,71 HT/m² | 3 % HT du prix de vente HT, à la charge de l'acquéreur, payables à la signature de l'acte | TVA | Trimestriel d'avance | B3 | ||||||
| Mezzanine | 61 | 15 % HT du loyer annuel HT/HC à la charge du preneur, payables à la signature du bail | T.V.A. (20%) | ILAT Indice des Loyers des Activités Tertiaires | 3 % HT du prix de vente HT, à la charge de l'acquéreur, payables à la signature de l'acte | TVA | Trimestriel d'avance | |||||||||||
| RDC | Activités | 185 | 15 % HT du loyer annuel HT/HC à la charge du preneur, payables à la signature du bail | T.V.A. (20%) | ILAT Indice des Loyers des Activités Tertiaires | 3 % HT du prix de vente HT, à la charge de l'acquéreur, payables à la signature de l'acte | TVA | Trimestriel d'avance | ||||||||||
| Parkings | - | 15 % HT du loyer annuel HT/HC à la charge du preneur, payables à la signature du bail | T.V.A. (20%) | ILAT Indice des Loyers des Activités Tertiaires | 3 % HT du prix de vente HT, à la charge de l'acquéreur, payables à la signature de l'acte | TVA | Trimestriel d'avance | |||||||||||
| Total Cellule B5 | Activités | 246 | 4ème trimestre 2026 | 15 % HT du loyer annuel HT/HC à la charge du preneur, payables à la signature du bail | T.V.A. (20%) | commercial 6-9 ans | ILAT Indice des Loyers des Activités Tertiaires | 1 850 HT/m² | 3 % HT du prix de vente HT, à la charge de l'acquéreur, payables à la signature de l'acte | TVA | Trimestriel d'avance | B5 | ||||||
| Mezzanine | 57 | 15 % HT du loyer annuel HT/HC à la charge du preneur, payables à la signature du bail | T.V.A. (20%) | ILAT Indice des Loyers des Activités Tertiaires | 3 % HT du prix de vente HT, à la charge de l'acquéreur, payables à la signature de l'acte | TVA | Trimestriel d'avance | |||||||||||
| RDC | Activités | 176 | 15 % HT du loyer annuel HT/HC à la charge du preneur, payables à la signature du bail | T.V.A. (20%) | ILAT Indice des Loyers des Activités Tertiaires | 3 % HT du prix de vente HT, à la charge de l'acquéreur, payables à la signature de l'acte | TVA | Trimestriel d'avance | ||||||||||
| Parkings | - | 15 % HT du loyer annuel HT/HC à la charge du preneur, payables à la signature du bail | T.V.A. (20%) | ILAT Indice des Loyers des Activités Tertiaires | 3 % HT du prix de vente HT, à la charge de l'acquéreur, payables à la signature de l'acte | TVA | Trimestriel d'avance | |||||||||||
| Total Cellule B6 | Activités | 233 | 4ème trimestre 2026 | 15 % HT du loyer annuel HT/HC à la charge du preneur, payables à la signature du bail | T.V.A. (20%) | commercial 6-9 ans | ILAT Indice des Loyers des Activités Tertiaires | 1 845,49 HT/m² | 3 % HT du prix de vente HT, à la charge de l'acquéreur, payables à la signature de l'acte | TVA | Trimestriel d'avance | B6 | ||||||
| Mezzanine | 57 | 15 % HT du loyer annuel HT/HC à la charge du preneur, payables à la signature du bail | T.V.A. (20%) | ILAT Indice des Loyers des Activités Tertiaires | 3 % HT du prix de vente HT, à la charge de l'acquéreur, payables à la signature de l'acte | TVA | Trimestriel d'avance | |||||||||||
| RDC | Activités | 173 | 15 % HT du loyer annuel HT/HC à la charge du preneur, payables à la signature du bail | T.V.A. (20%) | ILAT Indice des Loyers des Activités Tertiaires | 3 % HT du prix de vente HT, à la charge de l'acquéreur, payables à la signature de l'acte | TVA | Trimestriel d'avance | ||||||||||
| Parkings | - | 15 % HT du loyer annuel HT/HC à la charge du preneur, payables à la signature du bail | T.V.A. (20%) | ILAT Indice des Loyers des Activités Tertiaires | 3 % HT du prix de vente HT, à la charge de l'acquéreur, payables à la signature de l'acte | TVA | Trimestriel d'avance | |||||||||||
| Total Cellule B7 | Activités | 230 | 4ème trimestre 2026 | 15 % HT du loyer annuel HT/HC à la charge du preneur, payables à la signature du bail | T.V.A. (20%) | commercial 6-9 ans | ILAT Indice des Loyers des Activités Tertiaires | 1 847,83 HT/m² | 3 % HT du prix de vente HT, à la charge de l'acquéreur, payables à la signature de l'acte | TVA | Trimestriel d'avance | B7 | ||||||
| Mezzanine | 100 | 15 % HT du loyer annuel HT/HC à la charge du preneur, payables à la signature du bail | T.V.A. (20%) | ILAT Indice des Loyers des Activités Tertiaires | 3 % HT du prix de vente HT, à la charge de l'acquéreur, payables à la signature de l'acte | TVA | Trimestriel d'avance | |||||||||||
| RDC | Activités | 194 | 15 % HT du loyer annuel HT/HC à la charge du preneur, payables à la signature du bail | T.V.A. (20%) | ILAT Indice des Loyers des Activités Tertiaires | 3 % HT du prix de vente HT, à la charge de l'acquéreur, payables à la signature de l'acte | TVA | Trimestriel d'avance | ||||||||||
| Parkings | - | 15 % HT du loyer annuel HT/HC à la charge du preneur, payables à la signature du bail | T.V.A. (20%) | ILAT Indice des Loyers des Activités Tertiaires | 3 % HT du prix de vente HT, à la charge de l'acquéreur, payables à la signature de l'acte | TVA | Trimestriel d'avance | |||||||||||
| Total Cellule B8 | Activités | 294 | 4ème trimestre 2026 | 15 % HT du loyer annuel HT/HC à la charge du preneur, payables à la signature du bail | T.V.A. (20%) | commercial 6-9 ans | ILAT Indice des Loyers des Activités Tertiaires | 1 850,34 HT/m² | 3 % HT du prix de vente HT, à la charge de l'acquéreur, payables à la signature de l'acte | TVA | Trimestriel d'avance | B8 | ||||||
| Total | 3 986 m² | |||||||||||||||||
| 4 Parkings ext. 3 Parkings ext. 2 Parkings ext. 3 Parkings ext. 3 Parkings ext. 3 Parkings ext. 5 Parkings ext. 5 Parkings ext. 5 Parkings ext. 5 Parkings ext. 5 Parkings ext. 5 Parkings ext. | ||||||||||||||||||








































































