Ref : 1269222-0L
Location Local d'activités
Location Local d'Activités - Messimy (69510) - 348 m²
Messimy (69510)
Loyer : 34 380 € / an
Surface 348 m²
Divisible dès 57 m²
Description du bien
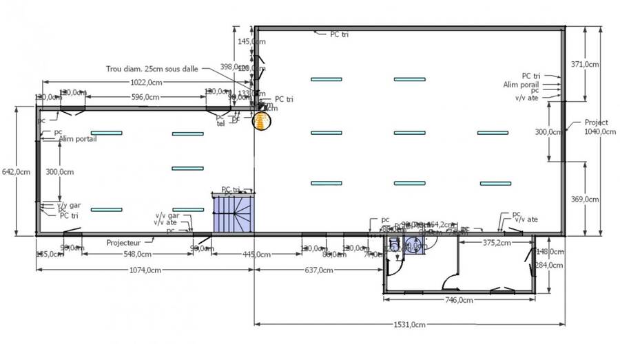
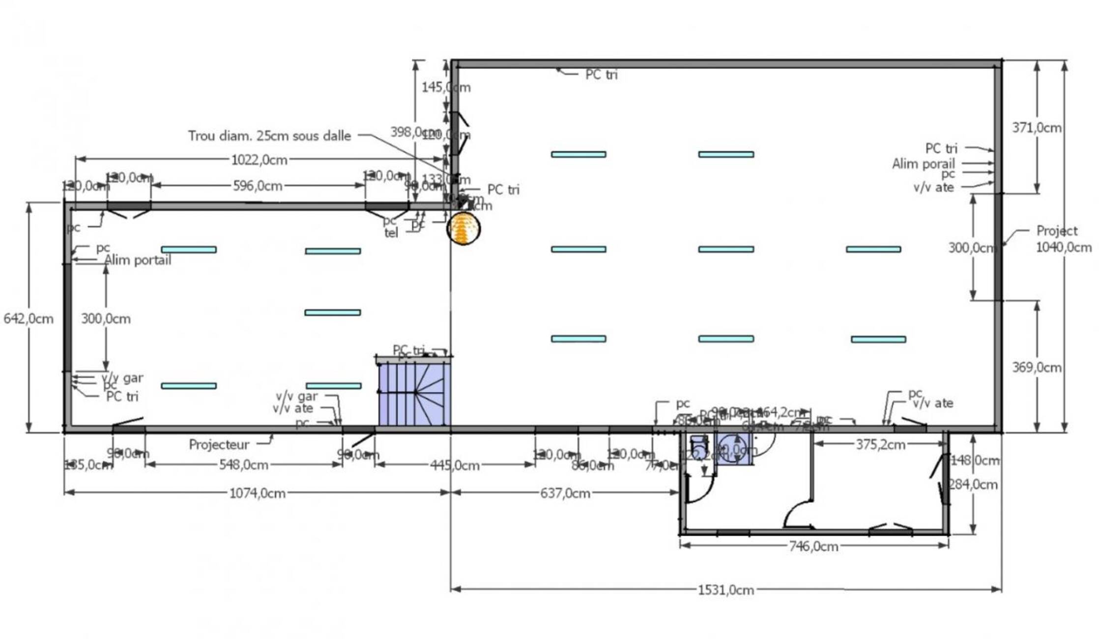
MALSH Realty & Property vous propose à la location un local d'activités de 348 m² situé à Messimy. Ce bien comprend 211 m² d'activités au rez-de-chaussée, 20 m² de locaux sociaux et 117 m² de bureaux à l'étage, avec la possibilité de diviser ces derniers à partir de 57 m². En complément, une surface de stockage extérieur d'environ 1000 m² est disponible en option.
Disponible immédiatement !
Prestations du bien
- Locaux construit en 2007
- Parkings extérieurs
- Charpente en bois
- Toit en tuile (hauteur 3m)
- Murs moellons
- Dalle béton
- Convecteur électrique
- Climatisation réversible
- Possibilité de stockage extérieur en sus d'environ 1000 m² à 10 euros HT/m²/an
Informations financières
- Bail : commercial 3-6-9 ans
- Taxe foncière : 1 252 €
- Informations location :
Conditions particulières à la location : Loyer activités : 85 euros HT/HC/m²/an
Loyer bureaux et locaux sociaux : 120 euros HT/HC/m²/an
Loyer terrain : 10 euros HT//m²/an - Dépôt de garantie : 3 mois de loyer HT/HC
Ce local professionnel vous est présenté par
Vous souhaitez nous joindre ?
Surfaces des locaux
| Étage | Bâtiment | Type | Surfaces | Disponibilité | Loyer | Charges | Honoraires | Fiscal | Bail | Révision annuelle | Prix | Charges | Honoraires | Fiscal | Paiement Loyer | lot | Coworking | |
|---|---|---|---|---|---|---|---|---|---|---|---|---|---|---|---|---|---|---|
| R+1 | Bureaux | 117 | 15 % HT du loyer annuel HT/HC à la charge du preneur, payables à la signature du bail | T.V.A. (20%) | ILAT Indice des Loyers des Activités Tertiaires | Trimestriel d'avance | ||||||||||||
| RDC | Activités | 211 | 15 % HT du loyer annuel HT/HC à la charge du preneur, payables à la signature du bail | T.V.A. (20%) | ILAT Indice des Loyers des Activités Tertiaires | Trimestriel d'avance | ||||||||||||
| RDC | Locaux sociaux | 20 | 15 % HT du loyer annuel HT/HC à la charge du preneur, payables à la signature du bail | T.V.A. (20%) | ILAT Indice des Loyers des Activités Tertiaires | Trimestriel d'avance | ||||||||||||
| Total Cellule | Activités | 348 | Immédiate | 98,78 HT/HC/m²/an | 15 % HT du loyer annuel HT/HC à la charge du preneur, payables à la signature du bail | T.V.A. (20%) | commercial 3-6-9 ans | ILAT Indice des Loyers des Activités Tertiaires | Trimestriel d'avance | |||||||||
| Total | 348 m² |
Localisation et accessibilité
- Bus: Bus TCL lignes 11 et 2Ex
- SCNF: Gare de Francheville à 15 min et Gare de Brignais à 20 min
Ces biens pourraient vous intéresser
| Étage | Bâtiment | Type | Surfaces | Disponibilité | Loyer | Charges | Honoraires | Fiscal | Bail | Révision annuelle | Prix | Charges | Honoraires | Fiscal | Paiement Loyer | lot | Coworking | |
|---|---|---|---|---|---|---|---|---|---|---|---|---|---|---|---|---|---|---|
| R+1 | Bureaux | 117 | 15 % HT du loyer annuel HT/HC à la charge du preneur, payables à la signature du bail | T.V.A. (20%) | ILAT Indice des Loyers des Activités Tertiaires | Trimestriel d'avance | ||||||||||||
| RDC | Activités | 211 | 15 % HT du loyer annuel HT/HC à la charge du preneur, payables à la signature du bail | T.V.A. (20%) | ILAT Indice des Loyers des Activités Tertiaires | Trimestriel d'avance | ||||||||||||
| RDC | Locaux sociaux | 20 | 15 % HT du loyer annuel HT/HC à la charge du preneur, payables à la signature du bail | T.V.A. (20%) | ILAT Indice des Loyers des Activités Tertiaires | Trimestriel d'avance | ||||||||||||
| Total Cellule | Activités | 348 | Immédiate | 98,78 HT/HC/m²/an | 15 % HT du loyer annuel HT/HC à la charge du preneur, payables à la signature du bail | T.V.A. (20%) | commercial 3-6-9 ans | ILAT Indice des Loyers des Activités Tertiaires | Trimestriel d'avance | |||||||||
| Total | 348 m² |

































































