Ref : 1393530-0L
Location Bureau
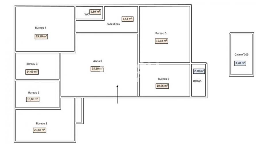
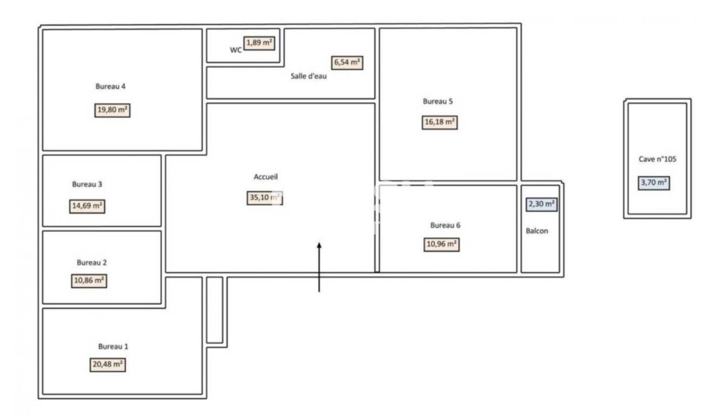
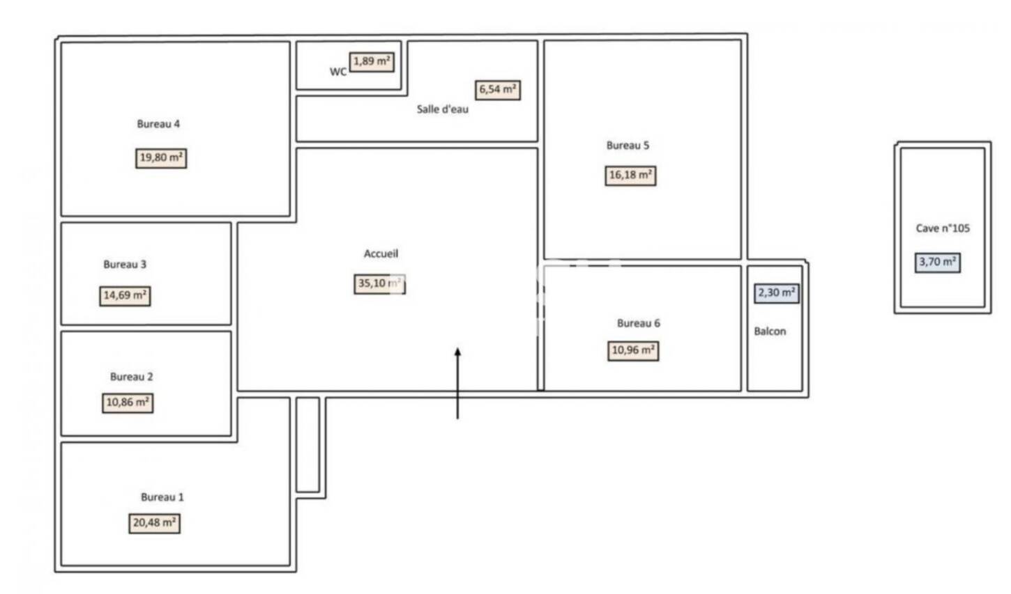
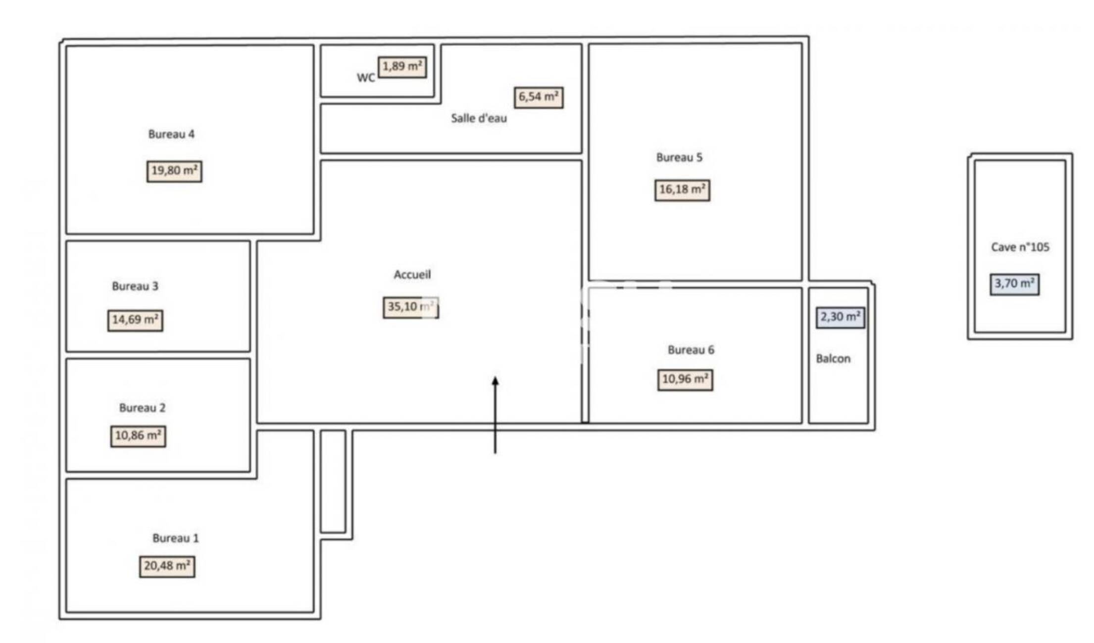
Bureaux - A louer - 136,50 m² - Lyon 6
Lyon 6 (69006)
Loyer : 40 956 € / an
Surface 136 m²
Description du bien
MALSH Realty propose à la location des bureaux au sein d'un immeuble mixte, au 1er étage avec ascenseur. Ce bien a été entièrement rénové et bénéficie d'équipements de qualité.
Prestations du bien
- Descriptif
- - Grand accueil
- - Bureaux cloisonnés vitrés
- - Sanitaires privatifs
- - Salle d'eau et cuisine équipée
- Prestations
- - Ascenseur
- - Sanitaires privatifs
- - Bureaux entièrement rénovés
- - Chauffage collectif
- - Dalles faux-plafonds 60/60
- - Sol PVC en dalle
- - Climatisation réversible
- - Plinthe périphérique courant fort/courant faible
Informations financières
- Charges minimales : 450 €
- Bail : Professionnel ou commercial
- Taxe foncière : 1 900 €
- Informations location :
Conditions particulières à la location : Bail dérogatoire possible
- Dépôt de garantie : 3 mois de loyer HT/HC
Ce local professionnel vous est présenté par
Vous souhaitez nous joindre ?
Surfaces des locaux
| Étage | Bâtiment | Type | Surfaces | Disponibilité | Loyer | Charges | Honoraires | Fiscal | Bail | Révision annuelle | Prix | Charges | Honoraires | Fiscal | Paiement Loyer | lot | Coworking | |
|---|---|---|---|---|---|---|---|---|---|---|---|---|---|---|---|---|---|---|
| R+1 | Bureaux | 136,5 | Immédiate | 300 HT/HC/m²/an | 5 400 HT/AN | 20 % HT d'un an de loyer HT à la charge du preneur, payables à la signature du bail | T.V.A. (20%) | Professionnel ou commercial | ILAT Indice des Loyers des Activités Tertiaires | Trimestriel d'avance | ||||||||
| Total | 136,5 m² |
Localisation et accessibilité
- Bus: Lignes C1, C4 C5 et C6
- SCNF: Gare Part-Dieu Entre 20 et 25 minutes avec le métro A et le Tramway T4
- Metro: Croix Paquet (Ligne C), Place Guichard (Ligne B),
Ces biens pourraient vous intéresser
Ces articles peuvent vous intéresser
| Étage | Bâtiment | Type | Surfaces | Disponibilité | Loyer | Charges | Honoraires | Fiscal | Bail | Révision annuelle | Prix | Charges | Honoraires | Fiscal | Paiement Loyer | lot | Coworking | |
|---|---|---|---|---|---|---|---|---|---|---|---|---|---|---|---|---|---|---|
| R+1 | Bureaux | 136,5 | Immédiate | 300 HT/HC/m²/an | 5 400 HT/AN | 20 % HT d'un an de loyer HT à la charge du preneur, payables à la signature du bail | T.V.A. (20%) | Professionnel ou commercial | ILAT Indice des Loyers des Activités Tertiaires | Trimestriel d'avance | ||||||||
| Total | 136,5 m² |













































