Ref : 1412819-0
Location Bureau
Vente ou Location Bureaux - Villefranche sur Saône (69400) - 280 m² divisibles à partir de 110 m²
Villefranche-sur-Saône (69400)
Loyer : 20 004 € / an
Surface 280 m²
Divisible dès 110 m²
Description du bien
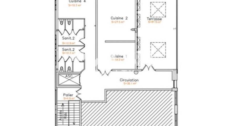
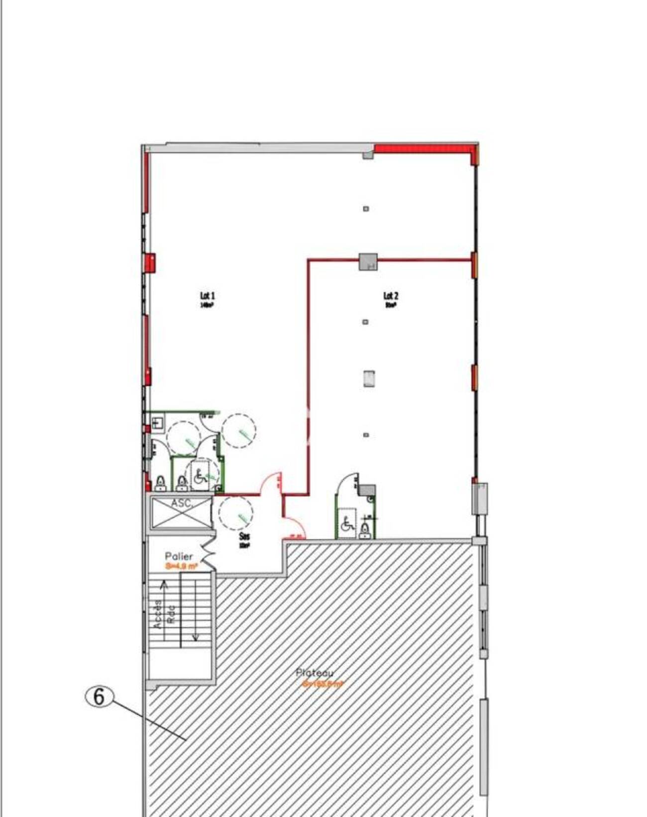
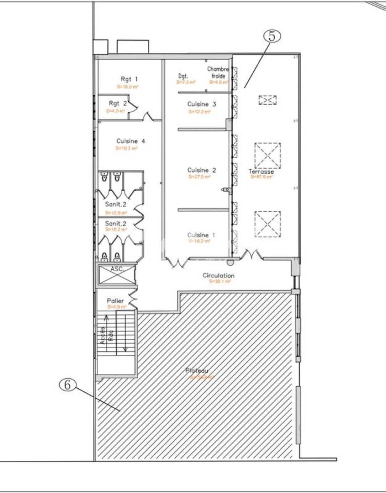
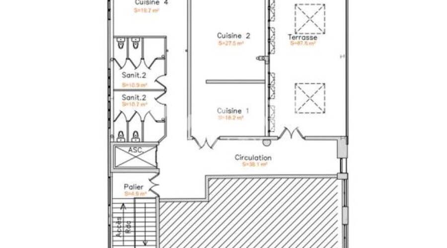
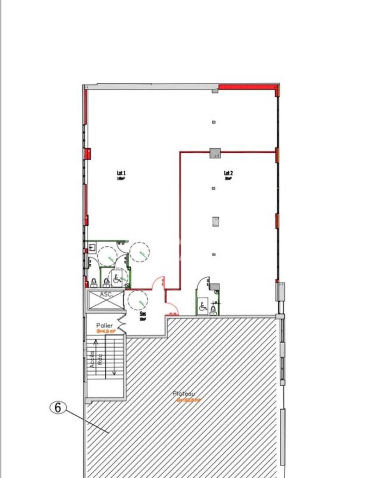
MALSH Realty vous propose à la vente ou à la location à 5 minutes de la sortie d'autoroute de Villefranche-sur-Saône, des bureaux en R+1 d'une surface totale d'environ 280 m² divisibles en 2 lots à partir de 110 m².
Ces bureaux climatisés bénéficient d'une excellente visibilité depuis l'autoroute A6.
Disponible immédiatement !
Prestations du bien
- Possibilité d'installer une enseigne visible depuis l'A6
- Accès indépendant avec hall, cage d'escalier et ascenseur
- Travaux à la charge du propriétaire si division en 2 lots :
- Lots livrés avec revêtement au sol (moquette ou PVC)
- Cloison de séparation (coupe-feu) des lots
- Séparation électrique, plomberie , climatisation, VMC.
- Blocs sanitaire
- Bureaux
- Faux-plafond
- Luminaires encastrés
- Climatisation réversible
- Stationnements : 7 places de parking
Informations financières
- Bail : commercial 3-6-9 ans
- Taxe foncière : 3 125 €
- Informations location :
Conditions particulières à la location : Charges : 4 000 euros HT/an
- Dépôt de garantie : 3 mois de loyer HT/HC
Ce local professionnel vous est présenté par
Vous souhaitez nous joindre ?
Surfaces des locaux
| Étage | Bâtiment | Type | Surfaces | Disponibilité | Loyer | Charges | Honoraires | Fiscal | Bail | Révision annuelle | Prix | Charges | Honoraires | Fiscal | Paiement Loyer | lot | Coworking | |
|---|---|---|---|---|---|---|---|---|---|---|---|---|---|---|---|---|---|---|
| Parties communes | 30 | 15 % HT du loyer annuel HT/HC à la charge du preneur, payables à la signature du bail | T.V.A. (20%) | ILAT Indice des Loyers des Activités Tertiaires | 2,5 % HT du prix de vente HT/HDE, à la charge de l'acquéreur, payable à la signature de l'acte | TVA et Droits d'enregistrement | Trimestriel d'avance | |||||||||||
| R+1 | Bureaux | 140 | 15 % HT du loyer annuel HT/HC à la charge du preneur, payables à la signature du bail | T.V.A. (20%) | ILAT Indice des Loyers des Activités Tertiaires | 2,5 % HT du prix de vente HT/HDE, à la charge de l'acquéreur, payable à la signature de l'acte | TVA et Droits d'enregistrement | Trimestriel d'avance | ||||||||||
| Parkings | - | 15 % HT du loyer annuel HT/HC à la charge du preneur, payables à la signature du bail | T.V.A. (20%) | ILAT Indice des Loyers des Activités Tertiaires | 2,5 % HT du prix de vente HT/HDE, à la charge de l'acquéreur, payable à la signature de l'acte | TVA et Droits d'enregistrement | Trimestriel d'avance | |||||||||||
| Total Cellule 1 | Bureaux | 170 | Immédiate | 82,35 HT/HC/m²/an | 15 % HT du loyer annuel HT/HC à la charge du preneur, payables à la signature du bail | T.V.A. (20%) | commercial 3-6-9 ans | ILAT Indice des Loyers des Activités Tertiaires | 1 088,24 HT/HDE/m² | 2,5 % HT du prix de vente HT/HDE, à la charge de l'acquéreur, payable à la signature de l'acte | TVA et Droits d'enregistrement | Trimestriel d'avance | 1 | |||||
| Parties communes | 19,5 | 15 % HT du loyer annuel HT/HC à la charge du preneur, payables à la signature du bail | T.V.A. (20%) | ILAT Indice des Loyers des Activités Tertiaires | 2,5 % HT du prix de vente HT/HDE, à la charge de l'acquéreur, payable à la signature de l'acte | TVA et Droits d'enregistrement | Trimestriel d'avance | |||||||||||
| R+1 | Bureaux | 91 | 15 % HT du loyer annuel HT/HC à la charge du preneur, payables à la signature du bail | T.V.A. (20%) | ILAT Indice des Loyers des Activités Tertiaires | 2,5 % HT du prix de vente HT/HDE, à la charge de l'acquéreur, payable à la signature de l'acte | TVA et Droits d'enregistrement | Trimestriel d'avance | ||||||||||
| Parkings | - | 15 % HT du loyer annuel HT/HC à la charge du preneur, payables à la signature du bail | T.V.A. (20%) | ILAT Indice des Loyers des Activités Tertiaires | 2,5 % HT du prix de vente HT/HDE, à la charge de l'acquéreur, payable à la signature de l'acte | TVA et Droits d'enregistrement | Trimestriel d'avance | |||||||||||
| Total Cellule 2 | Bureaux | 110,5 | Immédiate | 90,5 HT/HC/m²/an | 15 % HT du loyer annuel HT/HC à la charge du preneur, payables à la signature du bail | T.V.A. (20%) | commercial 3-6-9 ans | ILAT Indice des Loyers des Activités Tertiaires | 1 176,47 HT/HDE/m² | 2,5 % HT du prix de vente HT/HDE, à la charge de l'acquéreur, payable à la signature de l'acte | TVA et Droits d'enregistrement | Trimestriel d'avance | 2 | |||||
| Total | 280,5 m² | |||||||||||||||||
| 4 extérieur 3 extérieur | ||||||||||||||||||
Localisation et accessibilité
- Bus: Bus TCL lignes 151 et 154
- SCNF: Gare SNCF de Villefranche-sur-Saône à 5 min en voiture
- Autoroute: A proximité immédiate de l'autoroute A6 (sortie n° 31.2 Villefranche-sud à 3 min et sortie n° 31.1 Villefranche-nord à 6 min)
Ces biens pourraient vous intéresser
Ces articles peuvent vous intéresser
| Étage | Bâtiment | Type | Surfaces | Disponibilité | Loyer | Charges | Honoraires | Fiscal | Bail | Révision annuelle | Prix | Charges | Honoraires | Fiscal | Paiement Loyer | lot | Coworking | |
|---|---|---|---|---|---|---|---|---|---|---|---|---|---|---|---|---|---|---|
| Parties communes | 30 | 15 % HT du loyer annuel HT/HC à la charge du preneur, payables à la signature du bail | T.V.A. (20%) | ILAT Indice des Loyers des Activités Tertiaires | 2,5 % HT du prix de vente HT/HDE, à la charge de l'acquéreur, payable à la signature de l'acte | TVA et Droits d'enregistrement | Trimestriel d'avance | |||||||||||
| R+1 | Bureaux | 140 | 15 % HT du loyer annuel HT/HC à la charge du preneur, payables à la signature du bail | T.V.A. (20%) | ILAT Indice des Loyers des Activités Tertiaires | 2,5 % HT du prix de vente HT/HDE, à la charge de l'acquéreur, payable à la signature de l'acte | TVA et Droits d'enregistrement | Trimestriel d'avance | ||||||||||
| Parkings | - | 15 % HT du loyer annuel HT/HC à la charge du preneur, payables à la signature du bail | T.V.A. (20%) | ILAT Indice des Loyers des Activités Tertiaires | 2,5 % HT du prix de vente HT/HDE, à la charge de l'acquéreur, payable à la signature de l'acte | TVA et Droits d'enregistrement | Trimestriel d'avance | |||||||||||
| Total Cellule 1 | Bureaux | 170 | Immédiate | 82,35 HT/HC/m²/an | 15 % HT du loyer annuel HT/HC à la charge du preneur, payables à la signature du bail | T.V.A. (20%) | commercial 3-6-9 ans | ILAT Indice des Loyers des Activités Tertiaires | 1 088,24 HT/HDE/m² | 2,5 % HT du prix de vente HT/HDE, à la charge de l'acquéreur, payable à la signature de l'acte | TVA et Droits d'enregistrement | Trimestriel d'avance | 1 | |||||
| Parties communes | 19,5 | 15 % HT du loyer annuel HT/HC à la charge du preneur, payables à la signature du bail | T.V.A. (20%) | ILAT Indice des Loyers des Activités Tertiaires | 2,5 % HT du prix de vente HT/HDE, à la charge de l'acquéreur, payable à la signature de l'acte | TVA et Droits d'enregistrement | Trimestriel d'avance | |||||||||||
| R+1 | Bureaux | 91 | 15 % HT du loyer annuel HT/HC à la charge du preneur, payables à la signature du bail | T.V.A. (20%) | ILAT Indice des Loyers des Activités Tertiaires | 2,5 % HT du prix de vente HT/HDE, à la charge de l'acquéreur, payable à la signature de l'acte | TVA et Droits d'enregistrement | Trimestriel d'avance | ||||||||||
| Parkings | - | 15 % HT du loyer annuel HT/HC à la charge du preneur, payables à la signature du bail | T.V.A. (20%) | ILAT Indice des Loyers des Activités Tertiaires | 2,5 % HT du prix de vente HT/HDE, à la charge de l'acquéreur, payable à la signature de l'acte | TVA et Droits d'enregistrement | Trimestriel d'avance | |||||||||||
| Total Cellule 2 | Bureaux | 110,5 | Immédiate | 90,5 HT/HC/m²/an | 15 % HT du loyer annuel HT/HC à la charge du preneur, payables à la signature du bail | T.V.A. (20%) | commercial 3-6-9 ans | ILAT Indice des Loyers des Activités Tertiaires | 1 176,47 HT/HDE/m² | 2,5 % HT du prix de vente HT/HDE, à la charge de l'acquéreur, payable à la signature de l'acte | TVA et Droits d'enregistrement | Trimestriel d'avance | 2 | |||||
| Total | 280,5 m² | |||||||||||||||||
| 4 extérieur 3 extérieur | ||||||||||||||||||





















































