Ref : 2159820-0L
Location Bureau
À LOUER - Bureaux 142 m² - VILLEURBANNE
Villeurbanne (69100)
Loyer : 26 856 € / an
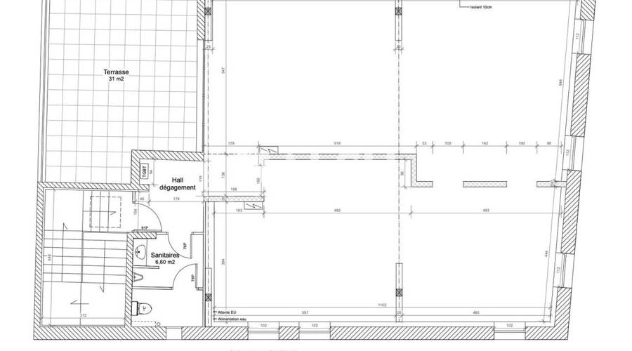
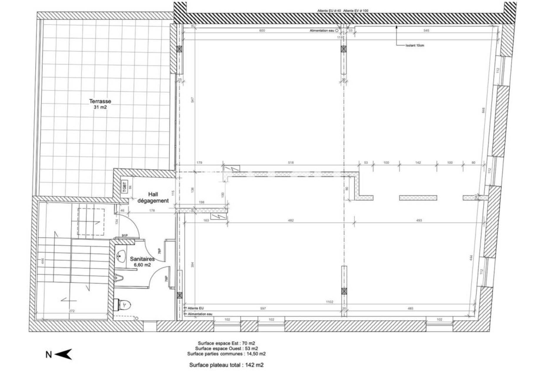
Surface 142 m²
Description du bien
MALSH Realty vous propose à la location des bureaux d'environ 142 m², idéalement situés à proximité immédiate du Totem, à l'angle du cours Tolstoï. Ces locaux offrent un cadre de travail agréable et fonctionnel, avec un espace cuisine/réunion, une terrasse ainsi qu'un open space. L'emplacement bénéficie d'une belle visibilité et d'une bonne desserte en transport en commun.
Prestations du bien
- Cuisine équipée (frigo)
- Sanitaires privatifs
- Climatisation réversible
- Faux plafonds avec pavés LED encastrés
- Parquet flottant
- Câblage informatique déployé
- Volets roulants électriques
Informations financières
- Bail : commercial 3-6-9 ans
- Taxe foncière : 2 400 €
- Dépôt de garantie : 3 mois de loyer HT/HC
Ce local professionnel vous est présenté par
Vous souhaitez nous joindre ?
Surfaces des locaux
| Étage | Bâtiment | Type | Surfaces | Disponibilité | Loyer | Charges | Honoraires | Fiscal | Bail | Révision annuelle | Prix | Charges | Honoraires | Fiscal | Paiement Loyer | lot | Coworking | |
|---|---|---|---|---|---|---|---|---|---|---|---|---|---|---|---|---|---|---|
| Terrasse | 31 | 15 % HT du loyer annuel HT/HC à la charge du preneur, payables à la signature du bail | T.V.A. (20%) | ILAT Indice des Loyers des Activités Tertiaires | Trimestriel d'avance | |||||||||||||
| R+1 | Bureaux | 142 | 15 % HT du loyer annuel HT/HC à la charge du preneur, payables à la signature du bail | T.V.A. (20%) | ILAT Indice des Loyers des Activités Tertiaires | Trimestriel d'avance | ||||||||||||
| Total Cellule | Bureaux | 142 | Immédiate | 180 HT/HC/m²/an | 15 % HT du loyer annuel HT/HC à la charge du preneur, payables à la signature du bail | T.V.A. (20%) | commercial 3-6-9 ans | ILAT Indice des Loyers des Activités Tertiaires | Trimestriel d'avance | |||||||||
| Total | 173 m² |
Localisation et accessibilité
- Bus: Lignes TB11, C16,C23 et 27
- SCNF: Gare Part-Dieu à 8 min
Ces biens pourraient vous intéresser
Ces articles peuvent vous intéresser
| Étage | Bâtiment | Type | Surfaces | Disponibilité | Loyer | Charges | Honoraires | Fiscal | Bail | Révision annuelle | Prix | Charges | Honoraires | Fiscal | Paiement Loyer | lot | Coworking | |
|---|---|---|---|---|---|---|---|---|---|---|---|---|---|---|---|---|---|---|
| Terrasse | 31 | 15 % HT du loyer annuel HT/HC à la charge du preneur, payables à la signature du bail | T.V.A. (20%) | ILAT Indice des Loyers des Activités Tertiaires | Trimestriel d'avance | |||||||||||||
| R+1 | Bureaux | 142 | 15 % HT du loyer annuel HT/HC à la charge du preneur, payables à la signature du bail | T.V.A. (20%) | ILAT Indice des Loyers des Activités Tertiaires | Trimestriel d'avance | ||||||||||||
| Total Cellule | Bureaux | 142 | Immédiate | 180 HT/HC/m²/an | 15 % HT du loyer annuel HT/HC à la charge du preneur, payables à la signature du bail | T.V.A. (20%) | commercial 3-6-9 ans | ILAT Indice des Loyers des Activités Tertiaires | Trimestriel d'avance | |||||||||
| Total | 173 m² |









































