Ref : 1229069-0L
Location Bureau
LYON 9 - En exclusivité, bureaux de 166 m² - A LOUER
Lyon 9 (69009)
Loyer : 29 388 € / an
Surface 166 m²
Description du bien
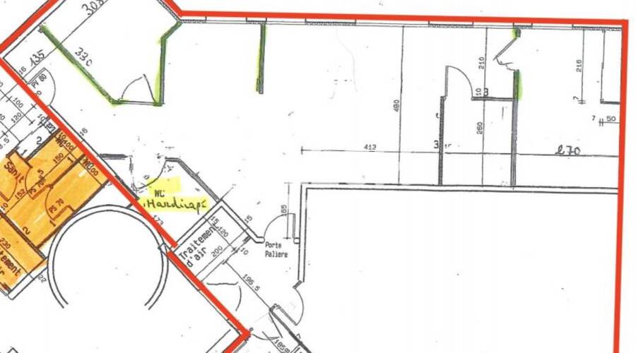
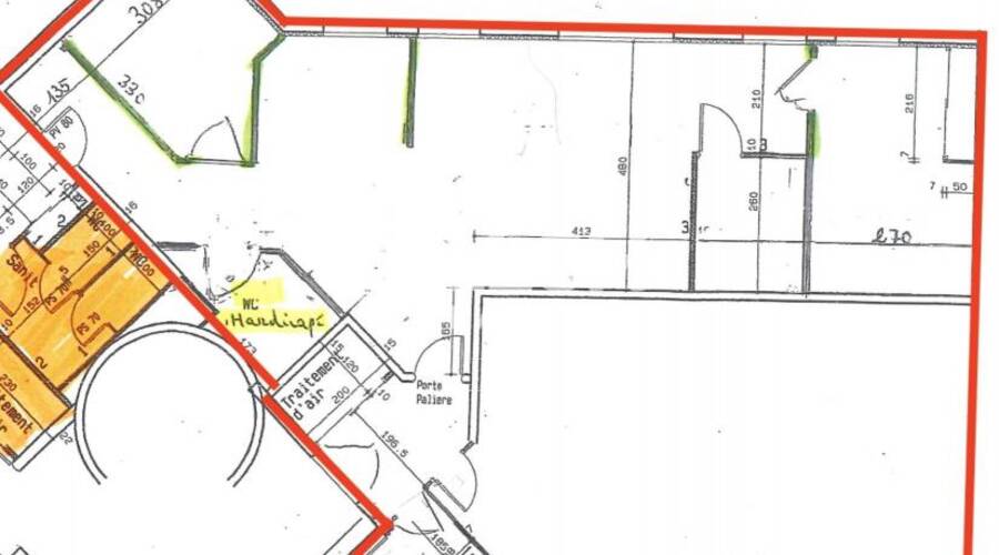
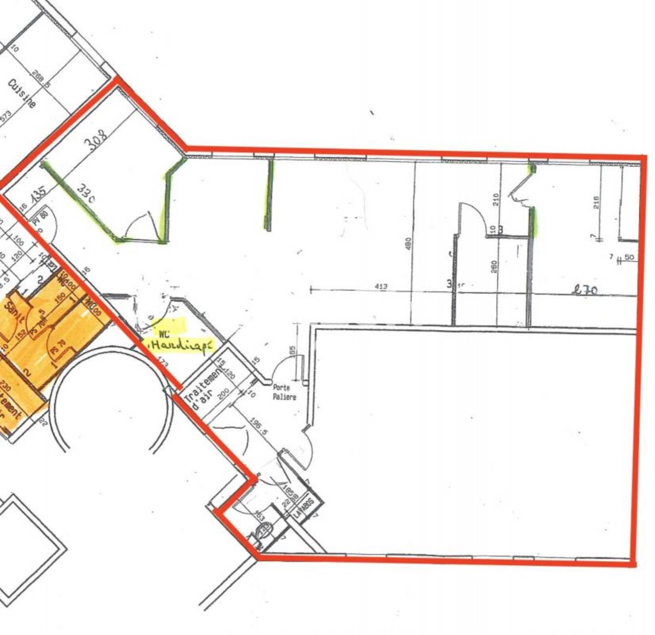
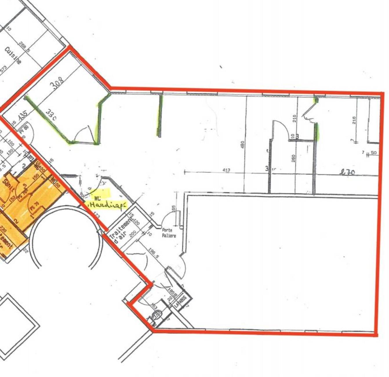
MALSH Realty & Property vous propose en exclusivité, à la location, des bureaux d'une surface de 161 m² situés dans le secteur de la Gare de Vaise.
Prestations du bien
- Prestations :
- - Locaux livrés rénovés (faux plafond avec pavé LED, sol souple ...)
- - 2 portes palières :
- L'une donnant sur un grand open space de 61 m².
- L'autre donne accès à un lot cloisonné : 1 bureau individuel, 1 salle de réunion, 1 local informatique et 1 grand open space.
- - WC PMR
- - Câblage informatique déployé
- - 4 places de parking en sous-sol dont 1 double commandée
Informations financières
- Charges minimales : 415 €
- Bail : commercial 3-6-9 ans
- Taxe foncière : 26 €
- Informations location :
Conditions particulières à la location : Loyer parking simple : 1 000 euros HT/Unité/an
Loyer parking double : 1 500 euros HT/Unité/an - Dépôt de garantie : 3 mois de loyer HT/HC
- Honoraires de commercialisation : 15 % HT du loyer annuel HT à la charge du preneur, payables à la signature du bail
Ce local professionnel vous est présenté par
Vous souhaitez nous joindre ?
Surfaces des locaux
| Étage | Bâtiment | Type | Surfaces | Disponibilité | Loyer | Charges | Honoraires | Fiscal | Bail | Révision annuelle | Prix | Charges | Honoraires | Fiscal | Paiement Loyer | lot | Coworking | |
|---|---|---|---|---|---|---|---|---|---|---|---|---|---|---|---|---|---|---|
| 2 | Bureaux | 166 | 4 avril 2024 | 177 HT/HC/m²/an | 30 m²/an HT | 15 % HT du loyer annuel HT à la charge du preneur, payables à la signature du bail | T.V.A. (20%) | commercial 3-6-9 ans | ILAT Indice des Loyers des Activités Tertiaires | Trimestriel d'avance | ||||||||
| Total | 166 m² |
Localisation et accessibilité
- SCNF: Lyon-Vaise (France)
- Metro: Gare de Vaise (METRO-D)
Ces biens pourraient vous intéresser
Ces articles peuvent vous intéresser
| Étage | Bâtiment | Type | Surfaces | Disponibilité | Loyer | Charges | Honoraires | Fiscal | Bail | Révision annuelle | Prix | Charges | Honoraires | Fiscal | Paiement Loyer | lot | Coworking | |
|---|---|---|---|---|---|---|---|---|---|---|---|---|---|---|---|---|---|---|
| 2 | Bureaux | 166 | 4 avril 2024 | 177 HT/HC/m²/an | 30 m²/an HT | 15 % HT du loyer annuel HT à la charge du preneur, payables à la signature du bail | T.V.A. (20%) | commercial 3-6-9 ans | ILAT Indice des Loyers des Activités Tertiaires | Trimestriel d'avance | ||||||||
| Total | 166 m² |



















































