Ref : 1112409-0L
Location Bureau
Location Bureaux - Neuville sur Saône (69250) - 678 m² divisibles à partir de 138 m²
Neuville-sur-Saône (69250)
Loyer : 98 400 € / an
Surface 678 m²
Divisible dès 138 m²
Description du bien
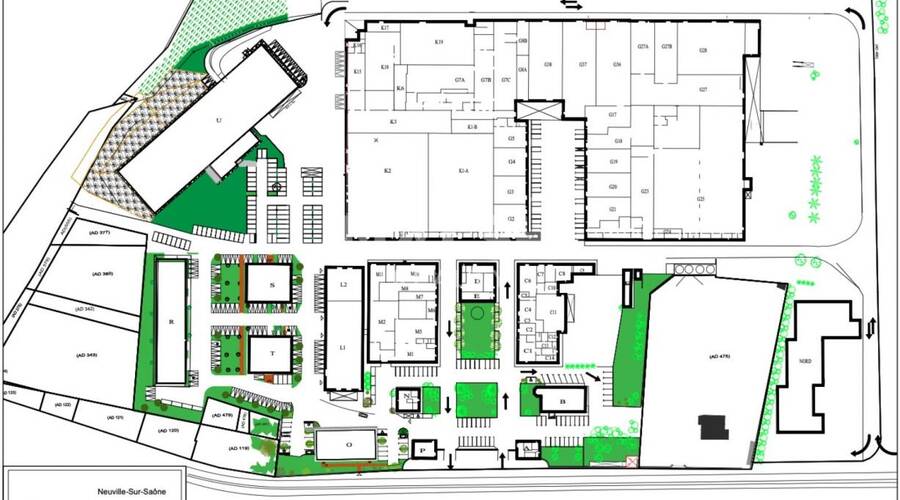
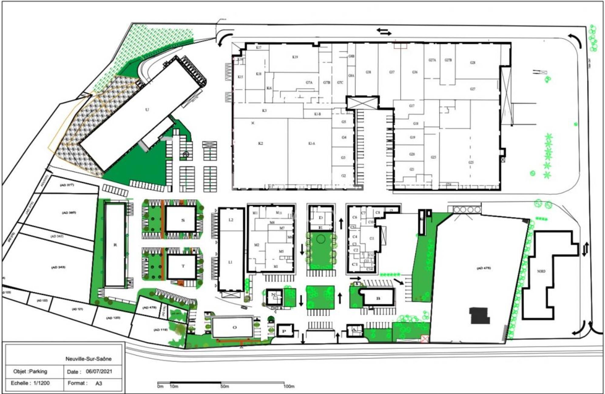
MALSH Realty vous propose à la location à Neuville-sur-Saône, au sein d'un parc d'activités clos, des bureaux d'une surface totale d'environ 678 m² comprenant 2 lots :
- Lot M6B2 : Bureaux d'environ 138 m² en R+1 (terrasse commune au dernier étage de 200 m²)
- Bâtiment O : Bureaux d'environ 540 m² répartis sur 2 niveaux
Ces locaux disposent de places de parking. Situation idéale à 1 km de l'accès autoroutier A46 (Rocade Est), en bordure de la D433, et desservi par le réseau TCL.
Disponible immédiatement !
Prestations du bien
- Places de parking pour chaque lot
- Lot M6B2 : Plateau de bureaux de 138 m²
- Local loué nu (outre la cuisine équipée)
- Terrasse commune au dernier étage de 200 m²
- Bâtiment O d'environ 540 m² répartis sur 2 niveaux
Informations financières
- Charges minimales : 720 €
- Bail : commercial 3-6-9 ans
- Informations location :
Conditions particulières à la location : Les charges comprennent les charges du site (entretien extérieur, espace verts, portails, sécurité.) et les charges communes spéciales du Bât M6
Entretien de la montée d'escalier (3 passages par semaine), électricité des communs (éclairage, chauffage), entretien de l'ascenseur, abonnement telecom.
Consignation BAL : 70 euros
Signalétique : à définir - Dépôt de garantie : 3 mois de loyer HT/HC
Ce local professionnel vous est présenté par
Vous souhaitez nous joindre ?
Surfaces des locaux
| Étage | Bâtiment | Type | Surfaces | Disponibilité | Loyer | Charges | Honoraires | Fiscal | Bail | Révision annuelle | Prix | Charges | Honoraires | Fiscal | Paiement Loyer | lot | Coworking | |
|---|---|---|---|---|---|---|---|---|---|---|---|---|---|---|---|---|---|---|
| R+1 | Bureaux | 138 | Immédiate | 86,96 HT/HC/m²/an | 3 150 HT/an | 15 % HT du loyer annuel HT/HC, à la charge du preneur, payables à la signature du bail | T.V.A. (20%) | commercial 3-6-9 ans | ILAT Indice des Loyers des Activités Tertiaires | Trimestriel d'avance | M6B2 | |||||||
| RDC + R+1 | Bureaux | 540 | Immédiate | 160 HT/HC/m²/an | 8 640 HT/an | 15 % HT du loyer annuel HT/HC, à la charge du preneur, payables à la signature du bail | T.V.A. (20%) | commercial 3-6-9 ans | ILAT Indice des Loyers des Activités Tertiaires | Trimestriel d'avance | ||||||||
| Total | 678 m² |
Localisation et accessibilité
- Bus: Bus TCL lignes 43 et S14
- SCNF: Gare de Collonges-Fontaines (SNCF)
- Autoroute: A proximité immédiate de la Rocade Est (A46)
Ces biens pourraient vous intéresser
Ces articles peuvent vous intéresser
| Étage | Bâtiment | Type | Surfaces | Disponibilité | Loyer | Charges | Honoraires | Fiscal | Bail | Révision annuelle | Prix | Charges | Honoraires | Fiscal | Paiement Loyer | lot | Coworking | |
|---|---|---|---|---|---|---|---|---|---|---|---|---|---|---|---|---|---|---|
| R+1 | Bureaux | 138 | Immédiate | 86,96 HT/HC/m²/an | 3 150 HT/an | 15 % HT du loyer annuel HT/HC, à la charge du preneur, payables à la signature du bail | T.V.A. (20%) | commercial 3-6-9 ans | ILAT Indice des Loyers des Activités Tertiaires | Trimestriel d'avance | M6B2 | |||||||
| RDC + R+1 | Bureaux | 540 | Immédiate | 160 HT/HC/m²/an | 8 640 HT/an | 15 % HT du loyer annuel HT/HC, à la charge du preneur, payables à la signature du bail | T.V.A. (20%) | commercial 3-6-9 ans | ILAT Indice des Loyers des Activités Tertiaires | Trimestriel d'avance | ||||||||
| Total | 678 m² |




































