Ref : 1019143-0L
Location Bureau
RILLIEUX - Bureaux à partir de 200 m² - A LOUER
Rillieux-la-Pape (69140)
Loyer : 69 408 € / an
Surface 480 m²
Divisible dès 220 m²
Description du bien
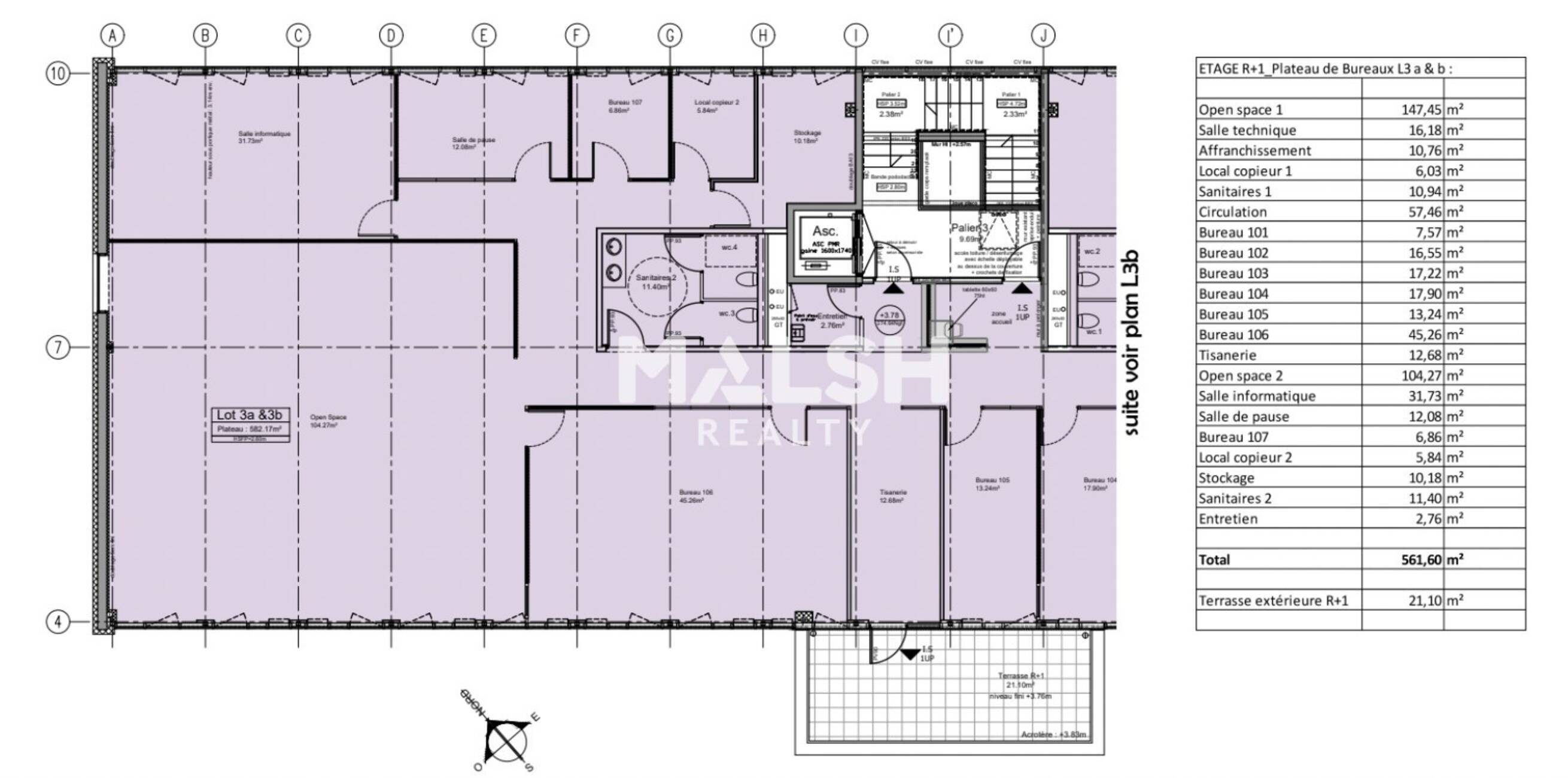
MALSH Realty vous propose, dans la zone d'activité PERICA, des bureaux entièrement restructurés, climatisés, cloisonnés, câblés et aménagés. Belles prestations, parkings disponibles, normes PMR.
Prestations du bien
- Au sein du bâtiment K
- Les bureaux sont accessibles PMR via des rampes d'accès ainsi qu'un ascenseur, toilettes aux normes.
- Hall 15,45 m² Ouvrant sur l'extérieur
- Espace 33,17 m² avec kitchenette, sanitaire et accès à terrasse privative
- Bureau 10,15 m²
- Bureau 12,01 m²
- Bureau 12,11 m² (Sortie sur l'extérieur et accès PMR)
- Bureau 11,97 m²
- Bureau 13,70 m²
- Salle de réunion 35,97 m² (sortie sur l'extérieur et accès PMR)
- Cuisine 9 m²
- Pièce de stockage et garage
- Ils sont équipés d'une climatisation réversible avec des splits dans chaque bureau et d'un système informatique (baie de brassage, courant faible, RJ45, fibre optique).
- Nombre de places de parkings à définir.
- Surface RDC : 220 m²
Informations financières
- Charges minimales : 1 692 €
- Bail : commercial 3-6-9 ans
- Taxe foncière : 16 €
- Informations location :
Conditions particulières à la location : Places de parkings inclus dans le loyer
Les charges incluent : eau, entretien parties communes, entretien des extérieurs, entretien climatisation réversible, portail, accès. - Dépôt de garantie : 3 mois de loyer HT/HC
- Honoraires de commercialisation : 15% HT d'un an de loyer HT à la charge du preneur, payables à la signature du bail
Diagnostic énergétiques
Diagnostic de performance énergétique
D 208
Indice d'émission de gaz à effet de serre
A 5
Logement très performant
Logement extrêmement consommateur d'énergie
Peu d'émission de GES
Emissions de GES très importantes
Ce local professionnel vous est présenté par
Vous souhaitez nous joindre ?
Surfaces des locaux
| Étage | Bâtiment | Type | Surfaces | Disponibilité | Loyer | Charges | Honoraires | Fiscal | Bail | Révision annuelle | Prix | Charges | Honoraires | Fiscal | Paiement Loyer | lot | Coworking | |
|---|---|---|---|---|---|---|---|---|---|---|---|---|---|---|---|---|---|---|
| RDC | Bureaux | 220 | Immédiate | 150 HT/HC/m²/an | 12 000 HT/AN | 15% HT d'un an de loyer HT à la charge du preneur, payables à la signature du bail | T.V.A. (20%) | commercial 3-6-9 ans | ILAT Indice des Loyers des Activités Tertiaires | Trimestriel d'avance | ||||||||
| R+1 | Bureaux | 260 | Immédiate | 140 HT/HC/m²/an | 20 300 HT/An | 15% HT d'un an de loyer HT à la charge du preneur, payables à la signature du bail | T.V.A. (20%) | commercial 3-6-9 ans | ILAT Indice des Loyers des Activités Tertiaires | Trimestriel d'avance | ||||||||
| Total | 480 m² |
Localisation et accessibilité
- Bus: ZI4 - Hippodrome Loup Pendu
- SCNF: Sathonay-Rillieux (SNCF)
Ces biens pourraient vous intéresser
Ces articles peuvent vous intéresser
| Étage | Bâtiment | Type | Surfaces | Disponibilité | Loyer | Charges | Honoraires | Fiscal | Bail | Révision annuelle | Prix | Charges | Honoraires | Fiscal | Paiement Loyer | lot | Coworking | |
|---|---|---|---|---|---|---|---|---|---|---|---|---|---|---|---|---|---|---|
| RDC | Bureaux | 220 | Immédiate | 150 HT/HC/m²/an | 12 000 HT/AN | 15% HT d'un an de loyer HT à la charge du preneur, payables à la signature du bail | T.V.A. (20%) | commercial 3-6-9 ans | ILAT Indice des Loyers des Activités Tertiaires | Trimestriel d'avance | ||||||||
| R+1 | Bureaux | 260 | Immédiate | 140 HT/HC/m²/an | 20 300 HT/An | 15% HT d'un an de loyer HT à la charge du preneur, payables à la signature du bail | T.V.A. (20%) | commercial 3-6-9 ans | ILAT Indice des Loyers des Activités Tertiaires | Trimestriel d'avance | ||||||||
| Total | 480 m² |




















































































