Ref : 1412971-0L
Location Local commercial
A LOUER - Local commercial 970 m² - LYON 7
Lyon 7 (69007)
Loyer : 120 000 € / an
Surface 967 m²
Description du bien
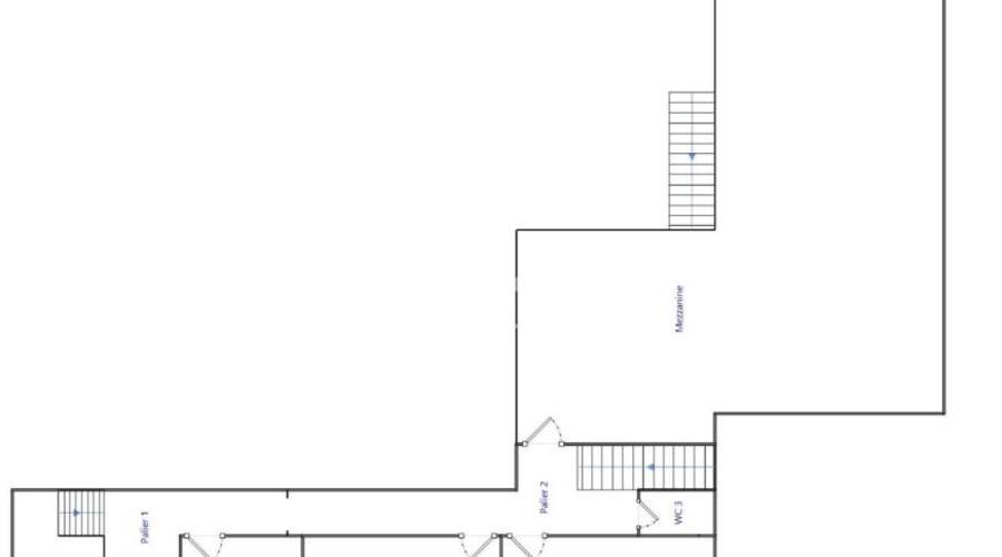
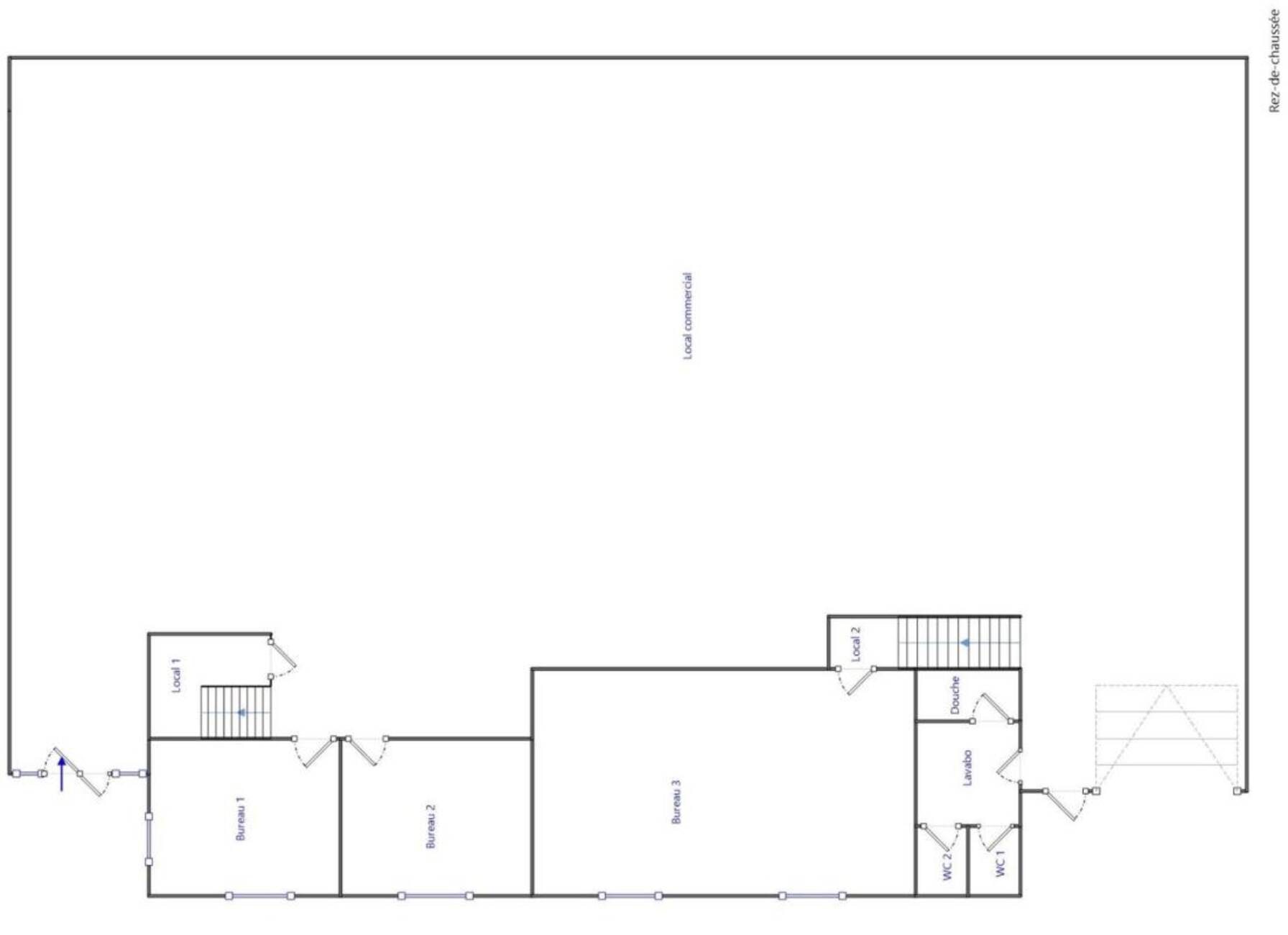
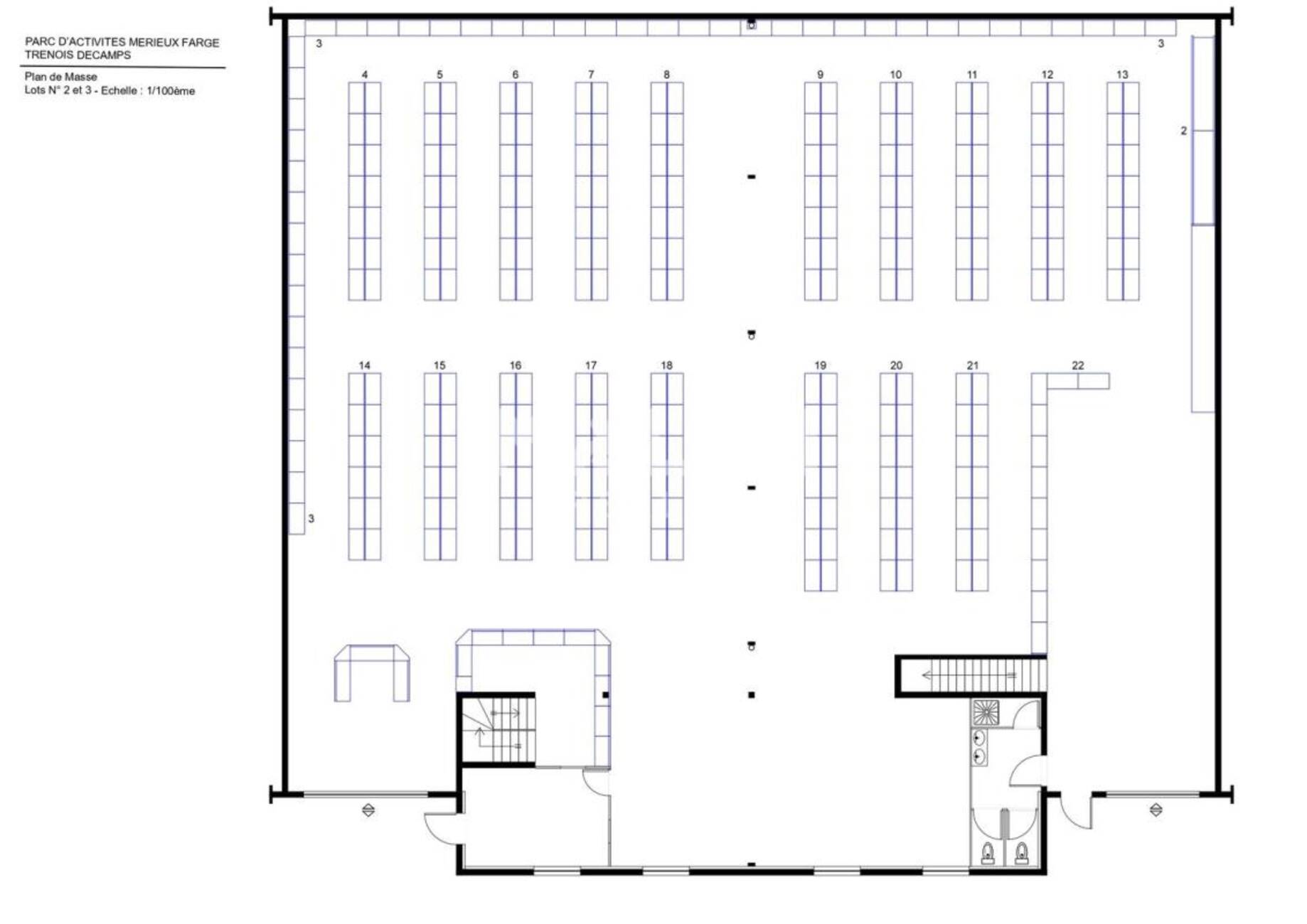
MALSH Realty vous propose à la location un local d'une surface totale d'environ 970 m², situé au sein du Parc Mérieux Farge. Il bénéficie d'environ 670 m² en RDC, auxquels s'ajoutent plusieurs espaces bureaux, des sanitaires et un espace cuisine, offrant des conditions de travail fonctionnelles et confortables.
Prestations du bien
- Chauffage radiant Gaz
- Climatisation réversible
- Cuisine -Vestiaires
- 5 Bureaux - 2 Salle de réunion
- 11 places de parking
- Hauteur sous poutres (RDC) : 6,25m
- Hauteur sous poutres (Mezzanine) : 3,385m
Informations financières
- Charges minimales : 1 239 €
- Bail : commercial 3-6-9 ans
- Taxe foncière : 6 790 € / an charge preneur
- Dépôt de garantie : 3 mois de loyer HT/HC
Ce local professionnel vous est présenté par
Vous souhaitez nous joindre ?
Surfaces des locaux
| Étage | Bâtiment | Type | Surfaces | Disponibilité | Loyer | Charges | Honoraires | Fiscal | Bail | Révision annuelle | Prix | Charges | Honoraires | Fiscal | Paiement Loyer | lot | Coworking | |
|---|---|---|---|---|---|---|---|---|---|---|---|---|---|---|---|---|---|---|
| R+1 | Bureaux | 118 | 20 % HT du loyer annuel HT/HC, à la charge du preneur, payables à la signature du bail | T.V.A. (20%) | ILC Indice des Loyers Commerciaux | Trimestriel d'avance | ||||||||||||
| R+1 | Mezzanine | 102 | 20 % HT du loyer annuel HT/HC, à la charge du preneur, payables à la signature du bail | T.V.A. (20%) | ILC Indice des Loyers Commerciaux | Trimestriel d'avance | ||||||||||||
| RDC | Locaux Commerciaux | 666,66 | 20 % HT du loyer annuel HT/HC, à la charge du preneur, payables à la signature du bail | T.V.A. (20%) | ILC Indice des Loyers Commerciaux | Trimestriel d'avance | ||||||||||||
| RDC | Bureaux | 81 | 20 % HT du loyer annuel HT/HC, à la charge du preneur, payables à la signature du bail | T.V.A. (20%) | ILC Indice des Loyers Commerciaux | Trimestriel d'avance | ||||||||||||
| Total Cellule | Locaux Commerciaux | 967,66 | Après accord | 124,01 HT/HC/m²/an | 14 872 HT/an | 20 % HT du loyer annuel HT/HC, à la charge du preneur, payables à la signature du bail | T.V.A. (20%) | commercial 3-6-9 ans | ILC Indice des Loyers Commerciaux | Trimestriel d'avance | ||||||||
| Total | 967,66 m² |
Localisation et accessibilité
- Bus: Bus TCL lignes C7, 34, 60, 63 et 120
- Metro: Métro ligne B station "Place Jean-Jaurès"
- Autoroute: Accès immédiat au Boulevard Périphérique Laurent Bonnevay, à l'A6 et à l'A7
Ces articles peuvent vous intéresser
| Étage | Bâtiment | Type | Surfaces | Disponibilité | Loyer | Charges | Honoraires | Fiscal | Bail | Révision annuelle | Prix | Charges | Honoraires | Fiscal | Paiement Loyer | lot | Coworking | |
|---|---|---|---|---|---|---|---|---|---|---|---|---|---|---|---|---|---|---|
| R+1 | Bureaux | 118 | 20 % HT du loyer annuel HT/HC, à la charge du preneur, payables à la signature du bail | T.V.A. (20%) | ILC Indice des Loyers Commerciaux | Trimestriel d'avance | ||||||||||||
| R+1 | Mezzanine | 102 | 20 % HT du loyer annuel HT/HC, à la charge du preneur, payables à la signature du bail | T.V.A. (20%) | ILC Indice des Loyers Commerciaux | Trimestriel d'avance | ||||||||||||
| RDC | Locaux Commerciaux | 666,66 | 20 % HT du loyer annuel HT/HC, à la charge du preneur, payables à la signature du bail | T.V.A. (20%) | ILC Indice des Loyers Commerciaux | Trimestriel d'avance | ||||||||||||
| RDC | Bureaux | 81 | 20 % HT du loyer annuel HT/HC, à la charge du preneur, payables à la signature du bail | T.V.A. (20%) | ILC Indice des Loyers Commerciaux | Trimestriel d'avance | ||||||||||||
| Total Cellule | Locaux Commerciaux | 967,66 | Après accord | 124,01 HT/HC/m²/an | 14 872 HT/an | 20 % HT du loyer annuel HT/HC, à la charge du preneur, payables à la signature du bail | T.V.A. (20%) | commercial 3-6-9 ans | ILC Indice des Loyers Commerciaux | Trimestriel d'avance | ||||||||
| Total | 967,66 m² |



































