Ref : 2163388-0L
Location Local commercial
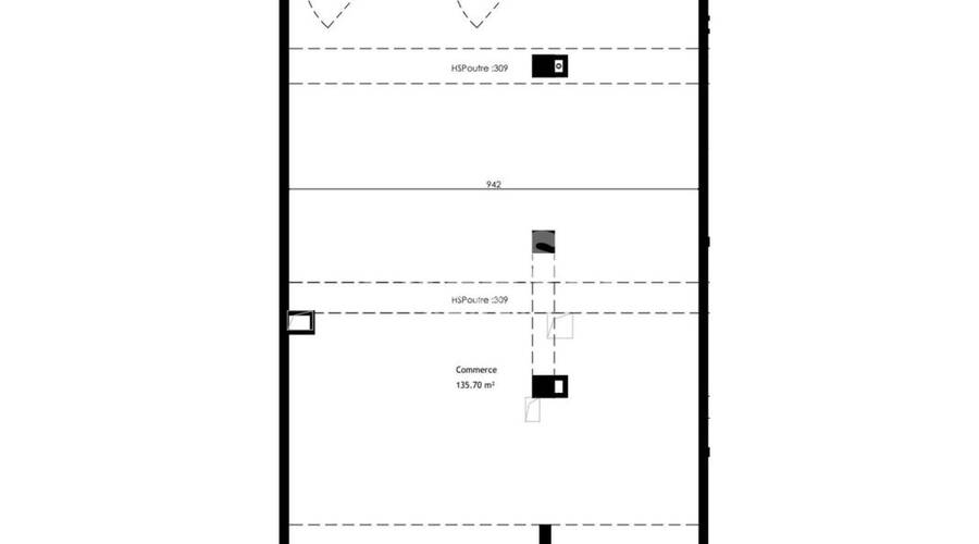
À LOUER - Local commercial 136,5 m² - LYON 7
Lyon 7 (69007)
Loyer : 38 220 € / an
Surface 136 m²
Description du bien
MALSH Realty vous propose à la location un local commercial de 136,5 m², idéalement situé au coeur de l'écosystème dynamique de Gerland. Livré brut de béton, cet espace traversant bénéficie d'une belle luminosité naturelle. Profitez d'un environnement tertiaire et scientifique de premier plan, parfaitement desservi par les transports et à proximité immédiate des grands axes. Une opportunité rare pour aménager votre concept sur mesure dans un quartier en plein essor.
Prestations du bien
- Brut de béton
- Vitrines fournies
- Locaux traversants
- Réserve de sol : 15 cm
- Capacité d'exploitation : 500daN/m2
- Charge permanente : : 2500 daN/m2
- Activités autorisées : Tous commerces
Informations financières
- Charges minimales : À définir
- Bail : commercial 3-6-9 ans
- Dépôt de garantie : 3 mois de loyer HT/HC
Ce local professionnel vous est présenté par
Vous souhaitez nous joindre ?
Surfaces des locaux
| Étage | Bâtiment | Type | Surfaces | Disponibilité | Loyer | Charges | Honoraires | Fiscal | Bail | Révision annuelle | Prix | Charges | Honoraires | Fiscal | Paiement Loyer | lot | Coworking | |
|---|---|---|---|---|---|---|---|---|---|---|---|---|---|---|---|---|---|---|
| Locaux Commerciaux | 136,5 | Juin 2026 | 280 HT/HC/m²/an | 30 % HT du loyer annuel HT/HC, à la charge du preneur, payables à la signature du bail | T.V.A. (20%) | commercial 3-6-9 ans | ILC Indice des Loyers Commerciaux | Trimestriel d'avance | ||||||||||
| Parkings | - | 1 080 HT/HC/place/an | 30 % HT du loyer annuel HT/HC, à la charge du preneur, payables à la signature du bail | T.V.A. (20%) | ILC Indice des Loyers Commerciaux | Trimestriel d'avance | ||||||||||||
| Total | 136,5 m² | |||||||||||||||||
| 1 | ||||||||||||||||||
Localisation et accessibilité
- Bus: Ligne 64
- SCNF: Gare Perrache à 10 min
Ces biens pourraient vous intéresser
Ces articles peuvent vous intéresser
| Étage | Bâtiment | Type | Surfaces | Disponibilité | Loyer | Charges | Honoraires | Fiscal | Bail | Révision annuelle | Prix | Charges | Honoraires | Fiscal | Paiement Loyer | lot | Coworking | |
|---|---|---|---|---|---|---|---|---|---|---|---|---|---|---|---|---|---|---|
| Locaux Commerciaux | 136,5 | Juin 2026 | 280 HT/HC/m²/an | 30 % HT du loyer annuel HT/HC, à la charge du preneur, payables à la signature du bail | T.V.A. (20%) | commercial 3-6-9 ans | ILC Indice des Loyers Commerciaux | Trimestriel d'avance | ||||||||||
| Parkings | - | 1 080 HT/HC/place/an | 30 % HT du loyer annuel HT/HC, à la charge du preneur, payables à la signature du bail | T.V.A. (20%) | ILC Indice des Loyers Commerciaux | Trimestriel d'avance | ||||||||||||
| Total | 136,5 m² | |||||||||||||||||
| 1 | ||||||||||||||||||




























