Ref : 1280042-0
Location Local d'activités
Vente ou Location Bâtiment d'Activités avec chambres froides et quais et Bâtiment de bureaux - Civrieux d'Azergues (69380) - 7914 m² divisibles à partir de 2567 m²
Alix (69380)
Loyer : 590 004 € / an
Surface 7 914 m²
Divisible dès 2 567 m²
Description du bien
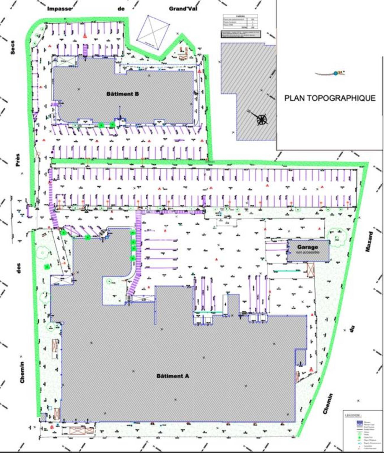
MALSH Realty & Property vous propose à la vente ou à la location à Civrieux-d'Azergues, un ensemble immobilier exceptionnel sur un terrain indépendant et clos de 16 963 m². Cet ensemble est composé de 2 bâtiments avec une surface totale utile de 7914 m².
Le premier bâtiment offre une surface de 5347 m² comprenant 3765 m² d'espaces destinés à l'activité, équipés de chambres froides et de quais niveleurs, ainsi que de 1582 m² de bureaux et locaux sociaux équipés. Il offre une hauteur sous poutre de 9 m, des parois frigorifiques doubles, des groupes froids positifs et négatifs, des racks pour l'entreposage de palettes, plusieurs quais poids lourds, plusieurs portes de plain-pied, un large sas de réception des marchandises, des bureaux d'entrepôts ainsi que de nombreux points d'eau.
Le second bâtiment, à usage de bureaux et locaux sociaux d'une surface de 2567 m², est doté de faux-plafonds, de climatisation, de cuisines, de plinthes techniques, de stores, et de trappes de désenfumage.
Cet ensemble immobilier, ancien siège social d'un groupe national côté en bourse, se prêtera parfaitement à différents types d'entreprises, nécessitant des espaces de stockage, de logistique et de bureaux.
Le bâtiment d'activité conviendra parfaitement aux activités de négoce de produits alimentaires ou non alimentaires, mais aussi de production, de stockage ou de logistique.
Le second bâtiment, à usage de bureaux, pourra accueillir de nombreuses personnes au sein d'un futur siège national ou régional, à une vingtaine de minutes du centre-ville de Lyon.
Les deux bâtiments peuvent être vendus ou loués séparément.
Disponible immédiatement !
Prestations du bien
- Accès de plain-pied / Accès semi
- Cour de déchargement
- Portail automatique
- Portes sectionnelles électriques
- Plusieurs quais PL
- Site sécurisé alarme
- Nombreux emplacements de parking extérieurs
- Charpente métallique
- Hauteur sous poutre : 9 m
- Structure : bardage double peau
- Couverture : multicouches
- Sol : dalle industrielle
- Puissance électrique : tarif vert / Triphasé
- Trappe de désenfumage
- Chambres froides
- Doubles parois frigorifiques
- Groupes froids positifs et négatifs
- Racks pour entreposage de palettes
- SAS de livraison
- Bureaux d'entrepôts
- Points d'eau
- Robinets d'Incendie Armés (RIA)
- Bureaux climatisés
- Sanitaires / Vestiaires
- Cuisines
- Faux-plafonds
- Stores
- Plinthes techniques
- Climatisation
- Immeuble indépendant
- Surface terrain : 16963
Informations financières
- Bail : commercial 3-6-9 ans
- Dépôt de garantie : 3 mois de loyer HT/HC
Ce local professionnel vous est présenté par
Vous souhaitez nous joindre ?
Surfaces des locaux
| Étage | Bâtiment | Type | Surfaces | Disponibilité | Loyer | Charges | Honoraires | Fiscal | Bail | Révision annuelle | Prix | Charges | Honoraires | Fiscal | Paiement Loyer | lot | Coworking | |
|---|---|---|---|---|---|---|---|---|---|---|---|---|---|---|---|---|---|---|
| R+2 | Bureaux | 202 | 20 % HT du loyer annuel HT/HC à la charge du preneur, payables à la signature du bail | T.V.A. (20%) | ILAT Indice des Loyers des Activités Tertiaires | 3,5 % HT du prix de vente HDE, à la charge de l'acquéreur, payables à la signature de l'acte | Droits d'enregistrement | Trimestriel d'avance | ||||||||||
| R+1 | Bureaux | 580 | 20 % HT du loyer annuel HT/HC à la charge du preneur, payables à la signature du bail | T.V.A. (20%) | ILAT Indice des Loyers des Activités Tertiaires | 3,5 % HT du prix de vente HDE, à la charge de l'acquéreur, payables à la signature de l'acte | Droits d'enregistrement | Trimestriel d'avance | ||||||||||
| RDC | Activités | 3 765 | 20 % HT du loyer annuel HT/HC à la charge du preneur, payables à la signature du bail | T.V.A. (20%) | ILAT Indice des Loyers des Activités Tertiaires | 3,5 % HT du prix de vente HDE, à la charge de l'acquéreur, payables à la signature de l'acte | Droits d'enregistrement | Trimestriel d'avance | ||||||||||
| RDC | Bureaux | 800 | 20 % HT du loyer annuel HT/HC à la charge du preneur, payables à la signature du bail | T.V.A. (20%) | ILAT Indice des Loyers des Activités Tertiaires | 3,5 % HT du prix de vente HDE, à la charge de l'acquéreur, payables à la signature de l'acte | Droits d'enregistrement | Trimestriel d'avance | ||||||||||
| Total Cellule | Activités | 5 347 | Immédiate | 84,16 HT/HC/m²/an | 20 % HT du loyer annuel HT/HC à la charge du preneur, payables à la signature du bail | T.V.A. (20%) | commercial 3-6-9 ans | ILAT Indice des Loyers des Activités Tertiaires | 635,87 HDE/m² | 3,5 % HT du prix de vente HDE, à la charge de l'acquéreur, payables à la signature de l'acte | Droits d'enregistrement | Trimestriel d'avance | ||||||
| R+2 | Bureaux | 476 | 20 % HT du loyer annuel HT/HC à la charge du preneur, payables à la signature du bail | T.V.A. (20%) | ILAT Indice des Loyers des Activités Tertiaires | 3,5 % HT du prix de vente HDE, à la charge de l'acquéreur, payables à la signature de l'acte | Droits d'enregistrement | Trimestriel d'avance | ||||||||||
| R+1 | Bureaux | 1 010 | 20 % HT du loyer annuel HT/HC à la charge du preneur, payables à la signature du bail | T.V.A. (20%) | ILAT Indice des Loyers des Activités Tertiaires | 3,5 % HT du prix de vente HDE, à la charge de l'acquéreur, payables à la signature de l'acte | Droits d'enregistrement | Trimestriel d'avance | ||||||||||
| RDC | Bureaux | 1 081 | 20 % HT du loyer annuel HT/HC à la charge du preneur, payables à la signature du bail | T.V.A. (20%) | ILAT Indice des Loyers des Activités Tertiaires | 3,5 % HT du prix de vente HDE, à la charge de l'acquéreur, payables à la signature de l'acte | Droits d'enregistrement | Trimestriel d'avance | ||||||||||
| Total Cellule | Bureaux | 2 567 | Immédiate | 53,07 HT/HC/m²/an | 20 % HT du loyer annuel HT/HC à la charge du preneur, payables à la signature du bail | T.V.A. (20%) | commercial 3-6-9 ans | ILAT Indice des Loyers des Activités Tertiaires | 623,3 HDE/m² | 3,5 % HT du prix de vente HDE, à la charge de l'acquéreur, payables à la signature de l'acte | Droits d'enregistrement | Trimestriel d'avance | ||||||
| Total | 7 914 m² |
Localisation et accessibilité
- SCNF: Gare SNCF de Civrieux-d'Azergues à 5 min
- Autoroute: Accès par l'autoroute A6 et l'A89
Ces biens pourraient vous intéresser
Ces articles peuvent vous intéresser
| Étage | Bâtiment | Type | Surfaces | Disponibilité | Loyer | Charges | Honoraires | Fiscal | Bail | Révision annuelle | Prix | Charges | Honoraires | Fiscal | Paiement Loyer | lot | Coworking | |
|---|---|---|---|---|---|---|---|---|---|---|---|---|---|---|---|---|---|---|
| R+2 | Bureaux | 202 | 20 % HT du loyer annuel HT/HC à la charge du preneur, payables à la signature du bail | T.V.A. (20%) | ILAT Indice des Loyers des Activités Tertiaires | 3,5 % HT du prix de vente HDE, à la charge de l'acquéreur, payables à la signature de l'acte | Droits d'enregistrement | Trimestriel d'avance | ||||||||||
| R+1 | Bureaux | 580 | 20 % HT du loyer annuel HT/HC à la charge du preneur, payables à la signature du bail | T.V.A. (20%) | ILAT Indice des Loyers des Activités Tertiaires | 3,5 % HT du prix de vente HDE, à la charge de l'acquéreur, payables à la signature de l'acte | Droits d'enregistrement | Trimestriel d'avance | ||||||||||
| RDC | Activités | 3 765 | 20 % HT du loyer annuel HT/HC à la charge du preneur, payables à la signature du bail | T.V.A. (20%) | ILAT Indice des Loyers des Activités Tertiaires | 3,5 % HT du prix de vente HDE, à la charge de l'acquéreur, payables à la signature de l'acte | Droits d'enregistrement | Trimestriel d'avance | ||||||||||
| RDC | Bureaux | 800 | 20 % HT du loyer annuel HT/HC à la charge du preneur, payables à la signature du bail | T.V.A. (20%) | ILAT Indice des Loyers des Activités Tertiaires | 3,5 % HT du prix de vente HDE, à la charge de l'acquéreur, payables à la signature de l'acte | Droits d'enregistrement | Trimestriel d'avance | ||||||||||
| Total Cellule | Activités | 5 347 | Immédiate | 84,16 HT/HC/m²/an | 20 % HT du loyer annuel HT/HC à la charge du preneur, payables à la signature du bail | T.V.A. (20%) | commercial 3-6-9 ans | ILAT Indice des Loyers des Activités Tertiaires | 635,87 HDE/m² | 3,5 % HT du prix de vente HDE, à la charge de l'acquéreur, payables à la signature de l'acte | Droits d'enregistrement | Trimestriel d'avance | ||||||
| R+2 | Bureaux | 476 | 20 % HT du loyer annuel HT/HC à la charge du preneur, payables à la signature du bail | T.V.A. (20%) | ILAT Indice des Loyers des Activités Tertiaires | 3,5 % HT du prix de vente HDE, à la charge de l'acquéreur, payables à la signature de l'acte | Droits d'enregistrement | Trimestriel d'avance | ||||||||||
| R+1 | Bureaux | 1 010 | 20 % HT du loyer annuel HT/HC à la charge du preneur, payables à la signature du bail | T.V.A. (20%) | ILAT Indice des Loyers des Activités Tertiaires | 3,5 % HT du prix de vente HDE, à la charge de l'acquéreur, payables à la signature de l'acte | Droits d'enregistrement | Trimestriel d'avance | ||||||||||
| RDC | Bureaux | 1 081 | 20 % HT du loyer annuel HT/HC à la charge du preneur, payables à la signature du bail | T.V.A. (20%) | ILAT Indice des Loyers des Activités Tertiaires | 3,5 % HT du prix de vente HDE, à la charge de l'acquéreur, payables à la signature de l'acte | Droits d'enregistrement | Trimestriel d'avance | ||||||||||
| Total Cellule | Bureaux | 2 567 | Immédiate | 53,07 HT/HC/m²/an | 20 % HT du loyer annuel HT/HC à la charge du preneur, payables à la signature du bail | T.V.A. (20%) | commercial 3-6-9 ans | ILAT Indice des Loyers des Activités Tertiaires | 623,3 HDE/m² | 3,5 % HT du prix de vente HDE, à la charge de l'acquéreur, payables à la signature de l'acte | Droits d'enregistrement | Trimestriel d'avance | ||||||
| Total | 7 914 m² |
































































































