Ref : 1280527-0L
Location Local d'activités
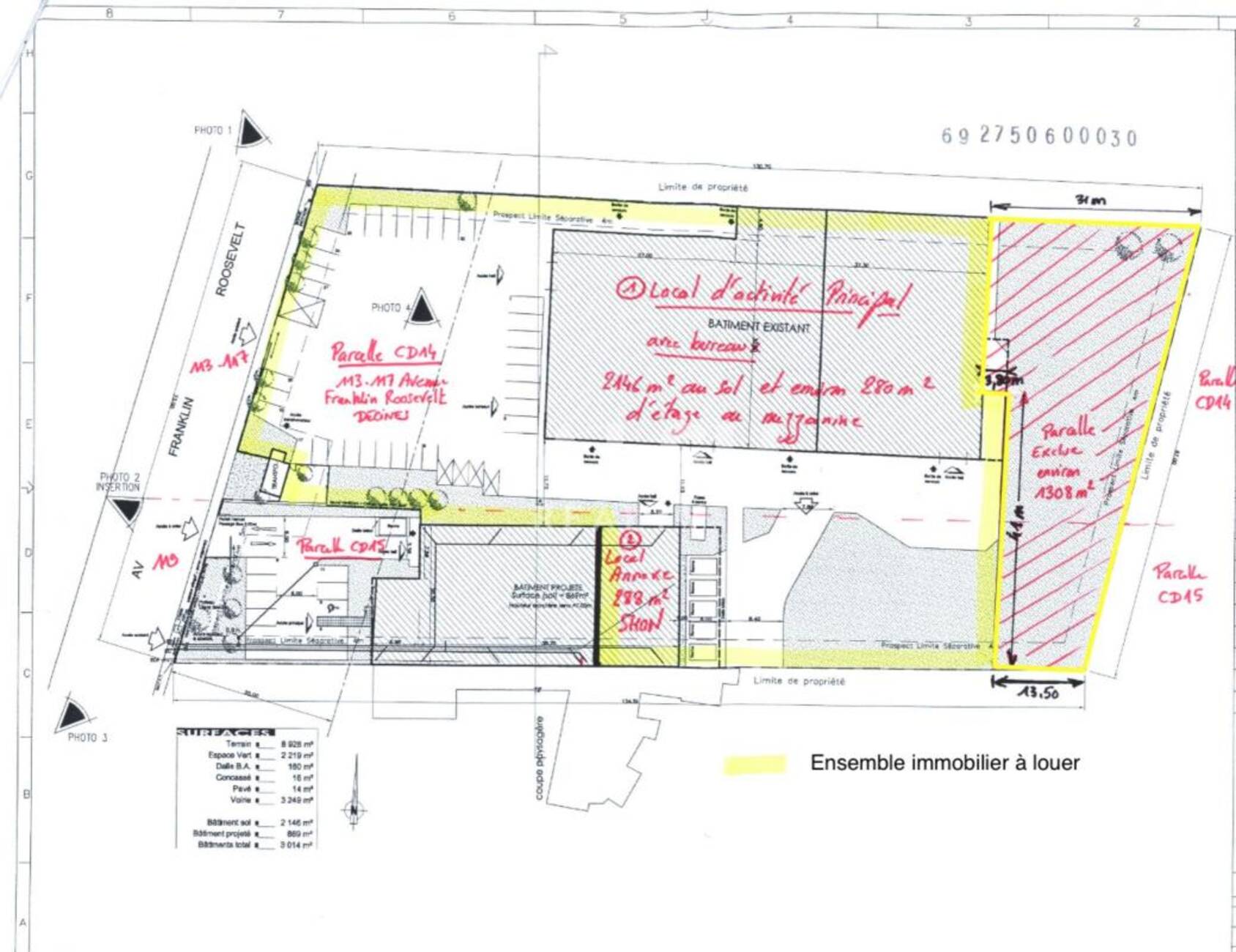
Location Local d'Activités - Décines Charpieu (69150) - 2 714 m²
Décines-Charpieu (69150)
Loyer : 200 004 € / an
Surface 2 714 m²
Description du bien
MALSH Realty vous propose à la location à Décines-Charpieu, sur un terrain indépendant d'environ 7 500 m², un ensemble immobilier d'une surface totale d'environ 2 714 m² comprenant :
- un local d'activités avec bureaux d'environ 2426 m² dont 2146 m² au RDC et 280 m² en mezzanine. Ce bâtiment est équipé d'un pont roulant.
- un local d'activités annexe d'environ 288 m².
Disponible immédiatement !
Prestations du bien
- Accès de plain-pied / Accès semi
- Cour de déchargement
- Portes sectionnelles automatiques
- 1 pont roulant de 5T (6 m sous crochet)
- Nombreux parkings extérieurs
- Charpente métallique
- Hauteur sous ferme la plus basse : 4,94 m
- Hauteur sous ferme la plus haute : 7,90 m
- Tarif jaune
- Chauffage : aérothermes gaz
- Bureaux
- Sanitaires / Vestiaires
- Immeuble indépendant
- Surface terrain : 7500
Informations financières
- Bail : commercial 3-6-9 ans
- Taxe foncière : 21 319 €
- Dépôt de garantie : 3 mois de loyer HT/HC
Diagnostic énergétiques
Diagnostic de performance énergétique
C 143
Indice d'émission de gaz à effet de serre
C 13
Logement très performant
Logement extrêmement consommateur d'énergie
Peu d'émission de GES
Emissions de GES très importantes
Ce local professionnel vous est présenté par
Vous souhaitez nous joindre ?
Surfaces des locaux
| Étage | Bâtiment | Type | Surfaces | Disponibilité | Loyer | Charges | Honoraires | Fiscal | Bail | Révision annuelle | Prix | Charges | Honoraires | Fiscal | Paiement Loyer | lot | Coworking | |
|---|---|---|---|---|---|---|---|---|---|---|---|---|---|---|---|---|---|---|
| Mezzanine | 280 | 15 % HT du loyer annuel HT/HC à la charge du preneur, payables à la signature du bail | T.V.A. (20%) | ILAT Indice des Loyers des Activités Tertiaires | Trimestriel d'avance | |||||||||||||
| RDC | Activités | 2 146 | 15 % HT du loyer annuel HT/HC à la charge du preneur, payables à la signature du bail | T.V.A. (20%) | ILAT Indice des Loyers des Activités Tertiaires | Trimestriel d'avance | ||||||||||||
| Total Cellule | Activités | 2 426 | Immédiate | 15 % HT du loyer annuel HT/HC à la charge du preneur, payables à la signature du bail | T.V.A. (20%) | commercial 3-6-9 ans | ILAT Indice des Loyers des Activités Tertiaires | Trimestriel d'avance | ||||||||||
| RDC | Activités | 288 | 15 % HT du loyer annuel HT/HC à la charge du preneur, payables à la signature du bail | T.V.A. (20%) | ILAT Indice des Loyers des Activités Tertiaires | Trimestriel d'avance | ||||||||||||
| Total Cellule | Activités | 288 | Immédiate | 15 % HT du loyer annuel HT/HC à la charge du preneur, payables à la signature du bail | T.V.A. (20%) | commercial 3-6-9 ans | ILAT Indice des Loyers des Activités Tertiaires | Trimestriel d'avance | ||||||||||
| Total | 2 714 m² |
Localisation et accessibilité
- Bus: Bus TCL lignes 52, 68, Zi3 et Zi5
Ces biens pourraient vous intéresser
Ces articles peuvent vous intéresser
| Étage | Bâtiment | Type | Surfaces | Disponibilité | Loyer | Charges | Honoraires | Fiscal | Bail | Révision annuelle | Prix | Charges | Honoraires | Fiscal | Paiement Loyer | lot | Coworking | |
|---|---|---|---|---|---|---|---|---|---|---|---|---|---|---|---|---|---|---|
| Mezzanine | 280 | 15 % HT du loyer annuel HT/HC à la charge du preneur, payables à la signature du bail | T.V.A. (20%) | ILAT Indice des Loyers des Activités Tertiaires | Trimestriel d'avance | |||||||||||||
| RDC | Activités | 2 146 | 15 % HT du loyer annuel HT/HC à la charge du preneur, payables à la signature du bail | T.V.A. (20%) | ILAT Indice des Loyers des Activités Tertiaires | Trimestriel d'avance | ||||||||||||
| Total Cellule | Activités | 2 426 | Immédiate | 15 % HT du loyer annuel HT/HC à la charge du preneur, payables à la signature du bail | T.V.A. (20%) | commercial 3-6-9 ans | ILAT Indice des Loyers des Activités Tertiaires | Trimestriel d'avance | ||||||||||
| RDC | Activités | 288 | 15 % HT du loyer annuel HT/HC à la charge du preneur, payables à la signature du bail | T.V.A. (20%) | ILAT Indice des Loyers des Activités Tertiaires | Trimestriel d'avance | ||||||||||||
| Total Cellule | Activités | 288 | Immédiate | 15 % HT du loyer annuel HT/HC à la charge du preneur, payables à la signature du bail | T.V.A. (20%) | commercial 3-6-9 ans | ILAT Indice des Loyers des Activités Tertiaires | Trimestriel d'avance | ||||||||||
| Total | 2 714 m² |



























































































































