Ref : 1435040-0L
Location Local d'activités
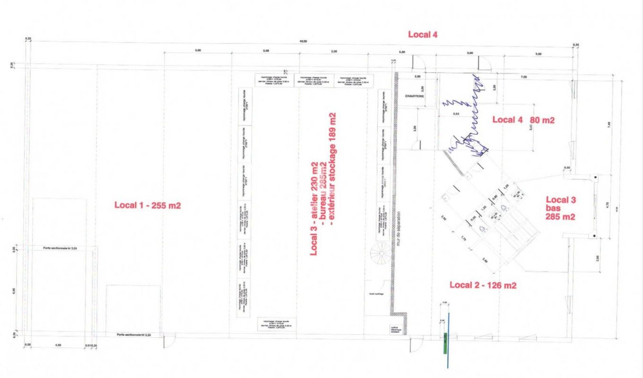
Location Local d'Activités - Grézieu la Varenne (69290) - 126 m²
Grézieu-la-Varenne (69290)
Loyer : 12 504 € / an
Surface 126 m²
Description du bien
MALSH Realty vous propose à la location au sein d'un petit ensemble artisanal, dans un environnement calme et fonctionnel au coeur de Grézieu-la-Varenne, un local d'activités d'une surface totale d'environ 126 m² situé en rez-de-chaussée, idéal pour une activité nécessitant à la fois d'un espace de showroom, des bureaux et d'une zone de stockage léger. Ce local bénéficie de 2 places de parking privatives.
Disponible immédiatement !
Prestations du bien
- Lot 2 d'une surface d'environ 126 m² répartis comme suit :
- - Showroom / espace activité
- - Deux bureaux fermés lumineux
- - Une zone de stockage d'environ 60 m²
- - Sanitaires
- Stationnement : 2 places de parking privatives
Informations financières
- Charges minimales : 89 €
- Bail : commercial 3-6-9 ans
- Dépôt de garantie : 3 mois de loyer HT/HC
Ce local professionnel vous est présenté par
Vous souhaitez nous joindre ?
Surfaces des locaux
| Étage | Bâtiment | Type | Surfaces | Disponibilité | Loyer | Charges | Honoraires | Fiscal | Bail | Révision annuelle | Prix | Charges | Honoraires | Fiscal | Paiement Loyer | lot | Coworking | |
|---|---|---|---|---|---|---|---|---|---|---|---|---|---|---|---|---|---|---|
| RDC | Activités | 126 | 15 % HT du loyer annuel HT/HC à la charge du preneur, payables à la signature du bail | T.V.A. (20%) | ILAT Indice des Loyers des Activités Tertiaires | Trimestriel d'avance | ||||||||||||
| Parkings | - | 15 % HT du loyer annuel HT/HC à la charge du preneur, payables à la signature du bail | T.V.A. (20%) | ILAT Indice des Loyers des Activités Tertiaires | Trimestriel d'avance | |||||||||||||
| Total Cellule 2 | Activités | 126 | Immédiate | 99,21 HT/HC/m²/an | 1 068 HT/an | 15 % HT du loyer annuel HT/HC à la charge du preneur, payables à la signature du bail | T.V.A. (20%) | commercial 3-6-9 ans | ILAT Indice des Loyers des Activités Tertiaires | Trimestriel d'avance | 2 | |||||||
| Total | 126 m² | |||||||||||||||||
| 2 extérieur | ||||||||||||||||||
Localisation et accessibilité
- Autoroute: Accès par l'A6, l'A7 et l'A89
Ces biens pourraient vous intéresser
Ces articles peuvent vous intéresser
| Étage | Bâtiment | Type | Surfaces | Disponibilité | Loyer | Charges | Honoraires | Fiscal | Bail | Révision annuelle | Prix | Charges | Honoraires | Fiscal | Paiement Loyer | lot | Coworking | |
|---|---|---|---|---|---|---|---|---|---|---|---|---|---|---|---|---|---|---|
| RDC | Activités | 126 | 15 % HT du loyer annuel HT/HC à la charge du preneur, payables à la signature du bail | T.V.A. (20%) | ILAT Indice des Loyers des Activités Tertiaires | Trimestriel d'avance | ||||||||||||
| Parkings | - | 15 % HT du loyer annuel HT/HC à la charge du preneur, payables à la signature du bail | T.V.A. (20%) | ILAT Indice des Loyers des Activités Tertiaires | Trimestriel d'avance | |||||||||||||
| Total Cellule 2 | Activités | 126 | Immédiate | 99,21 HT/HC/m²/an | 1 068 HT/an | 15 % HT du loyer annuel HT/HC à la charge du preneur, payables à la signature du bail | T.V.A. (20%) | commercial 3-6-9 ans | ILAT Indice des Loyers des Activités Tertiaires | Trimestriel d'avance | 2 | |||||||
| Total | 126 m² | |||||||||||||||||
| 2 extérieur | ||||||||||||||||||





















































