Ref : 1312312-0L
Location Local d'activités
Location Lots d'Activités neufs et Lots de Bureaux neufs - Guereins (01090) - Locaux d'activités à partir de 55 m² et Bureaux à partir de 44 m²
Guéreins (01090)
Loyer : 142 752 € / an
Surface 915 m²
Divisible dès 43 m²
Description du bien
MALSH Realty vous propose à la location à Guéreins, au sein d'un parc d'activités en construction, 7 lots d'activités ou de commerces en RDC à partir de 55 m² et 7 lots de bureaux en R+1 à partir de 44 m².
Chaque lot est indépendant mais possibilité de regrouper les lots d'activités et les lots de bureaux pour s'adapter à vos besoins.
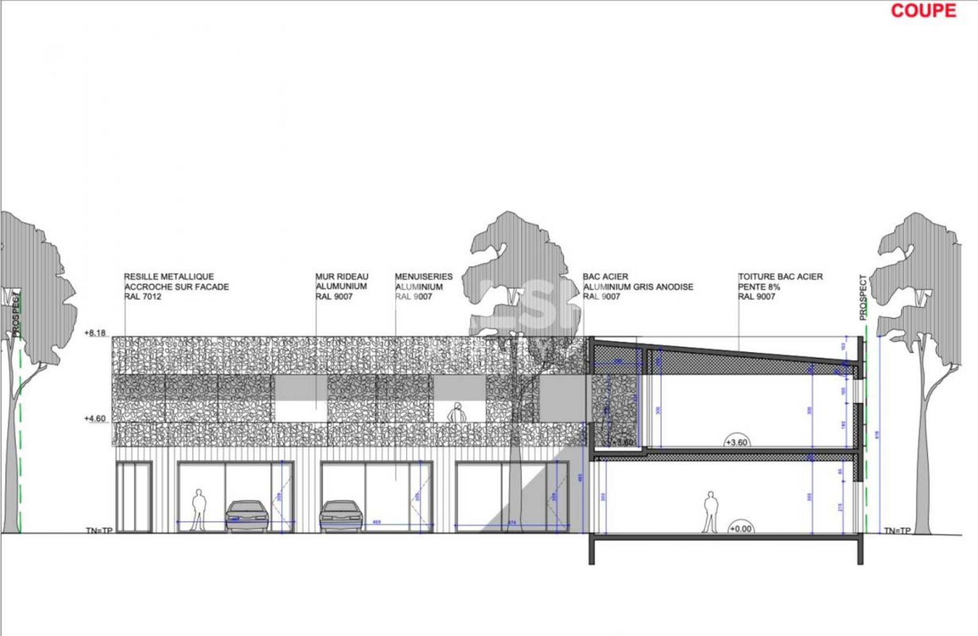
Ces locaux neufs disposent d'une hauteur sous plafond de 3,80 mètres au RDC et de bureaux clés en main à l'étage (parquet au sol, climatisation, cuisine, sanitaires...). Conçu avec une charpente métallique et un bardage double peau, ce bâtiment offre un environnement de travail optimal. Le site bénéficie de 72 places de stationnement libres.
Livraison au 1er trimestre 2026 !
Prestations du bien
- 72 places de stationnement libres
- Charpente métallique
- Structure : bardage double peau
- Couverture : bac acier
- Au RDC :
- Activités ou commerces selon le dossier de candidature
- Hauteur : 3,80 mètres
- A l'étage :
- Bureaux clés en main (parquet au sol, climatisation, cuisine, sanitaire...)
- Surface terrain : 3570
Informations financières
- Bail : commercial 3-6-9 ans
- Dépôt de garantie : 3 mois de loyer HT/HC
Ce local professionnel vous est présenté par
Vous souhaitez nous joindre ?
Surfaces des locaux
| Étage | Bâtiment | Type | Surfaces | Disponibilité | Loyer | Charges | Honoraires | Fiscal | Bail | Révision annuelle | Prix | Charges | Honoraires | Fiscal | Paiement Loyer | lot | Coworking | |
|---|---|---|---|---|---|---|---|---|---|---|---|---|---|---|---|---|---|---|
| R+1 | Bureaux | 95,78 | 1er trimestre 2026 | 144 HT/HC/m²/an | 20 % HT du loyer annuel HT/HC à la charge du preneur, payables à la signature du bail | T.V.A. (20%) | commercial 3-6-9 ans | ILAT Indice des Loyers des Activités Tertiaires | Trimestriel d'avance | 10 | ||||||||
| R+1 | Bureaux | 91,11 | 1er trimestre 2026 | 144 HT/HC/m²/an | 20 % HT du loyer annuel HT/HC à la charge du preneur, payables à la signature du bail | T.V.A. (20%) | commercial 3-6-9 ans | ILAT Indice des Loyers des Activités Tertiaires | Trimestriel d'avance | 8 | ||||||||
| R+1 | Bureaux | 55,51 | 1er trimestre 2026 | 144 HT/HC/m²/an | 20 % HT du loyer annuel HT/HC à la charge du preneur, payables à la signature du bail | T.V.A. (20%) | commercial 3-6-9 ans | ILAT Indice des Loyers des Activités Tertiaires | Trimestriel d'avance | 11 | ||||||||
| R+1 | Bureaux | 44,47 | 1er trimestre 2026 | 144 HT/HC/m²/an | 20 % HT du loyer annuel HT/HC à la charge du preneur, payables à la signature du bail | T.V.A. (20%) | commercial 3-6-9 ans | ILAT Indice des Loyers des Activités Tertiaires | Trimestriel d'avance | 14 | ||||||||
| R+1 | Bureaux | 43,88 | 1er trimestre 2026 | 144 HT/HC/m²/an | 20 % HT du loyer annuel HT/HC à la charge du preneur, payables à la signature du bail | T.V.A. (20%) | commercial 3-6-9 ans | ILAT Indice des Loyers des Activités Tertiaires | Trimestriel d'avance | 9 | ||||||||
| R+1 | Bureaux | 43,85 | 1er trimestre 2026 | 144 HT/HC/m²/an | 20 % HT du loyer annuel HT/HC à la charge du preneur, payables à la signature du bail | T.V.A. (20%) | commercial 3-6-9 ans | ILAT Indice des Loyers des Activités Tertiaires | Trimestriel d'avance | 13 | ||||||||
| R+1 | Bureaux | 43,84 | 1er trimestre 2026 | 144 HT/HC/m²/an | 20 % HT du loyer annuel HT/HC à la charge du preneur, payables à la signature du bail | T.V.A. (20%) | commercial 3-6-9 ans | ILAT Indice des Loyers des Activités Tertiaires | Trimestriel d'avance | 12 | ||||||||
| RDC | Activités | 110,07 | 1er trimestre 2026 | 156 HT/HC/m²/an | 20 % HT du loyer annuel HT/HC à la charge du preneur, payables à la signature du bail | T.V.A. (20%) | commercial 3-6-9 ans | ILAT Indice des Loyers des Activités Tertiaires | Trimestriel d'avance | 1 | ||||||||
| RDC | Activités | 102,39 | 1er trimestre 2026 | 156 HT/HC/m²/an | 20 % HT du loyer annuel HT/HC à la charge du preneur, payables à la signature du bail | T.V.A. (20%) | commercial 3-6-9 ans | ILAT Indice des Loyers des Activités Tertiaires | Trimestriel d'avance | 3 | ||||||||
| RDC | Activités | 61,92 | 1er trimestre 2026 | 156 HT/HC/m²/an | 20 % HT du loyer annuel HT/HC à la charge du preneur, payables à la signature du bail | T.V.A. (20%) | commercial 3-6-9 ans | ILAT Indice des Loyers des Activités Tertiaires | Trimestriel d'avance | 4 | ||||||||
| RDC | Activités | 56,13 | 1er trimestre 2026 | 156 HT/HC/m²/an | 20 % HT du loyer annuel HT/HC à la charge du preneur, payables à la signature du bail | T.V.A. (20%) | commercial 3-6-9 ans | ILAT Indice des Loyers des Activités Tertiaires | Trimestriel d'avance | 7 | ||||||||
| RDC | Activités | 55,37 | 1er trimestre 2026 | 156 HT/HC/m²/an | 20 % HT du loyer annuel HT/HC à la charge du preneur, payables à la signature du bail | T.V.A. (20%) | commercial 3-6-9 ans | ILAT Indice des Loyers des Activités Tertiaires | Trimestriel d'avance | 2 | ||||||||
| RDC | Activités | 55,36 | 1er trimestre 2026 | 156 HT/HC/m²/an | 20 % HT du loyer annuel HT/HC à la charge du preneur, payables à la signature du bail | T.V.A. (20%) | commercial 3-6-9 ans | ILAT Indice des Loyers des Activités Tertiaires | Trimestriel d'avance | 6 | ||||||||
| RDC | Activités | 55,35 | 1er trimestre 2026 | 156 HT/HC/m²/an | 20 % HT du loyer annuel HT/HC à la charge du preneur, payables à la signature du bail | T.V.A. (20%) | commercial 3-6-9 ans | ILAT Indice des Loyers des Activités Tertiaires | Trimestriel d'avance | 5 | ||||||||
| Total | 915,03 m² |
Localisation et accessibilité
- Autoroute: A proximité immédiate de l'autoroute A6 (sortie n° 30 Belleville-sur-Saône à 5 min)
Ces biens pourraient vous intéresser
Ces articles peuvent vous intéresser
| Étage | Bâtiment | Type | Surfaces | Disponibilité | Loyer | Charges | Honoraires | Fiscal | Bail | Révision annuelle | Prix | Charges | Honoraires | Fiscal | Paiement Loyer | lot | Coworking | |
|---|---|---|---|---|---|---|---|---|---|---|---|---|---|---|---|---|---|---|
| R+1 | Bureaux | 95,78 | 1er trimestre 2026 | 144 HT/HC/m²/an | 20 % HT du loyer annuel HT/HC à la charge du preneur, payables à la signature du bail | T.V.A. (20%) | commercial 3-6-9 ans | ILAT Indice des Loyers des Activités Tertiaires | Trimestriel d'avance | 10 | ||||||||
| R+1 | Bureaux | 91,11 | 1er trimestre 2026 | 144 HT/HC/m²/an | 20 % HT du loyer annuel HT/HC à la charge du preneur, payables à la signature du bail | T.V.A. (20%) | commercial 3-6-9 ans | ILAT Indice des Loyers des Activités Tertiaires | Trimestriel d'avance | 8 | ||||||||
| R+1 | Bureaux | 55,51 | 1er trimestre 2026 | 144 HT/HC/m²/an | 20 % HT du loyer annuel HT/HC à la charge du preneur, payables à la signature du bail | T.V.A. (20%) | commercial 3-6-9 ans | ILAT Indice des Loyers des Activités Tertiaires | Trimestriel d'avance | 11 | ||||||||
| R+1 | Bureaux | 44,47 | 1er trimestre 2026 | 144 HT/HC/m²/an | 20 % HT du loyer annuel HT/HC à la charge du preneur, payables à la signature du bail | T.V.A. (20%) | commercial 3-6-9 ans | ILAT Indice des Loyers des Activités Tertiaires | Trimestriel d'avance | 14 | ||||||||
| R+1 | Bureaux | 43,88 | 1er trimestre 2026 | 144 HT/HC/m²/an | 20 % HT du loyer annuel HT/HC à la charge du preneur, payables à la signature du bail | T.V.A. (20%) | commercial 3-6-9 ans | ILAT Indice des Loyers des Activités Tertiaires | Trimestriel d'avance | 9 | ||||||||
| R+1 | Bureaux | 43,85 | 1er trimestre 2026 | 144 HT/HC/m²/an | 20 % HT du loyer annuel HT/HC à la charge du preneur, payables à la signature du bail | T.V.A. (20%) | commercial 3-6-9 ans | ILAT Indice des Loyers des Activités Tertiaires | Trimestriel d'avance | 13 | ||||||||
| R+1 | Bureaux | 43,84 | 1er trimestre 2026 | 144 HT/HC/m²/an | 20 % HT du loyer annuel HT/HC à la charge du preneur, payables à la signature du bail | T.V.A. (20%) | commercial 3-6-9 ans | ILAT Indice des Loyers des Activités Tertiaires | Trimestriel d'avance | 12 | ||||||||
| RDC | Activités | 110,07 | 1er trimestre 2026 | 156 HT/HC/m²/an | 20 % HT du loyer annuel HT/HC à la charge du preneur, payables à la signature du bail | T.V.A. (20%) | commercial 3-6-9 ans | ILAT Indice des Loyers des Activités Tertiaires | Trimestriel d'avance | 1 | ||||||||
| RDC | Activités | 102,39 | 1er trimestre 2026 | 156 HT/HC/m²/an | 20 % HT du loyer annuel HT/HC à la charge du preneur, payables à la signature du bail | T.V.A. (20%) | commercial 3-6-9 ans | ILAT Indice des Loyers des Activités Tertiaires | Trimestriel d'avance | 3 | ||||||||
| RDC | Activités | 61,92 | 1er trimestre 2026 | 156 HT/HC/m²/an | 20 % HT du loyer annuel HT/HC à la charge du preneur, payables à la signature du bail | T.V.A. (20%) | commercial 3-6-9 ans | ILAT Indice des Loyers des Activités Tertiaires | Trimestriel d'avance | 4 | ||||||||
| RDC | Activités | 56,13 | 1er trimestre 2026 | 156 HT/HC/m²/an | 20 % HT du loyer annuel HT/HC à la charge du preneur, payables à la signature du bail | T.V.A. (20%) | commercial 3-6-9 ans | ILAT Indice des Loyers des Activités Tertiaires | Trimestriel d'avance | 7 | ||||||||
| RDC | Activités | 55,37 | 1er trimestre 2026 | 156 HT/HC/m²/an | 20 % HT du loyer annuel HT/HC à la charge du preneur, payables à la signature du bail | T.V.A. (20%) | commercial 3-6-9 ans | ILAT Indice des Loyers des Activités Tertiaires | Trimestriel d'avance | 2 | ||||||||
| RDC | Activités | 55,36 | 1er trimestre 2026 | 156 HT/HC/m²/an | 20 % HT du loyer annuel HT/HC à la charge du preneur, payables à la signature du bail | T.V.A. (20%) | commercial 3-6-9 ans | ILAT Indice des Loyers des Activités Tertiaires | Trimestriel d'avance | 6 | ||||||||
| RDC | Activités | 55,35 | 1er trimestre 2026 | 156 HT/HC/m²/an | 20 % HT du loyer annuel HT/HC à la charge du preneur, payables à la signature du bail | T.V.A. (20%) | commercial 3-6-9 ans | ILAT Indice des Loyers des Activités Tertiaires | Trimestriel d'avance | 5 | ||||||||
| Total | 915,03 m² |

















































