Ref : 1419334-0L
Location Local d'activités
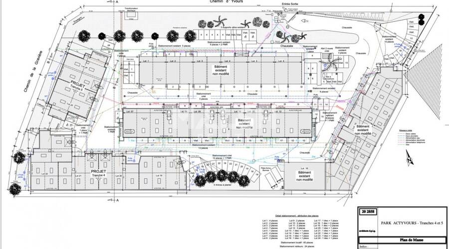
EXCLUSIVITÉ ! Location Locaux d'Activités neufs - Oullins Pierre Benite (69310) - 1807 m² divisibles à partir de 204 m²
Pierre-Bénite (69310)
Loyer : 176 772 € / an
Surface 1 807 m²
Divisible dès 204 m²
Description du bien
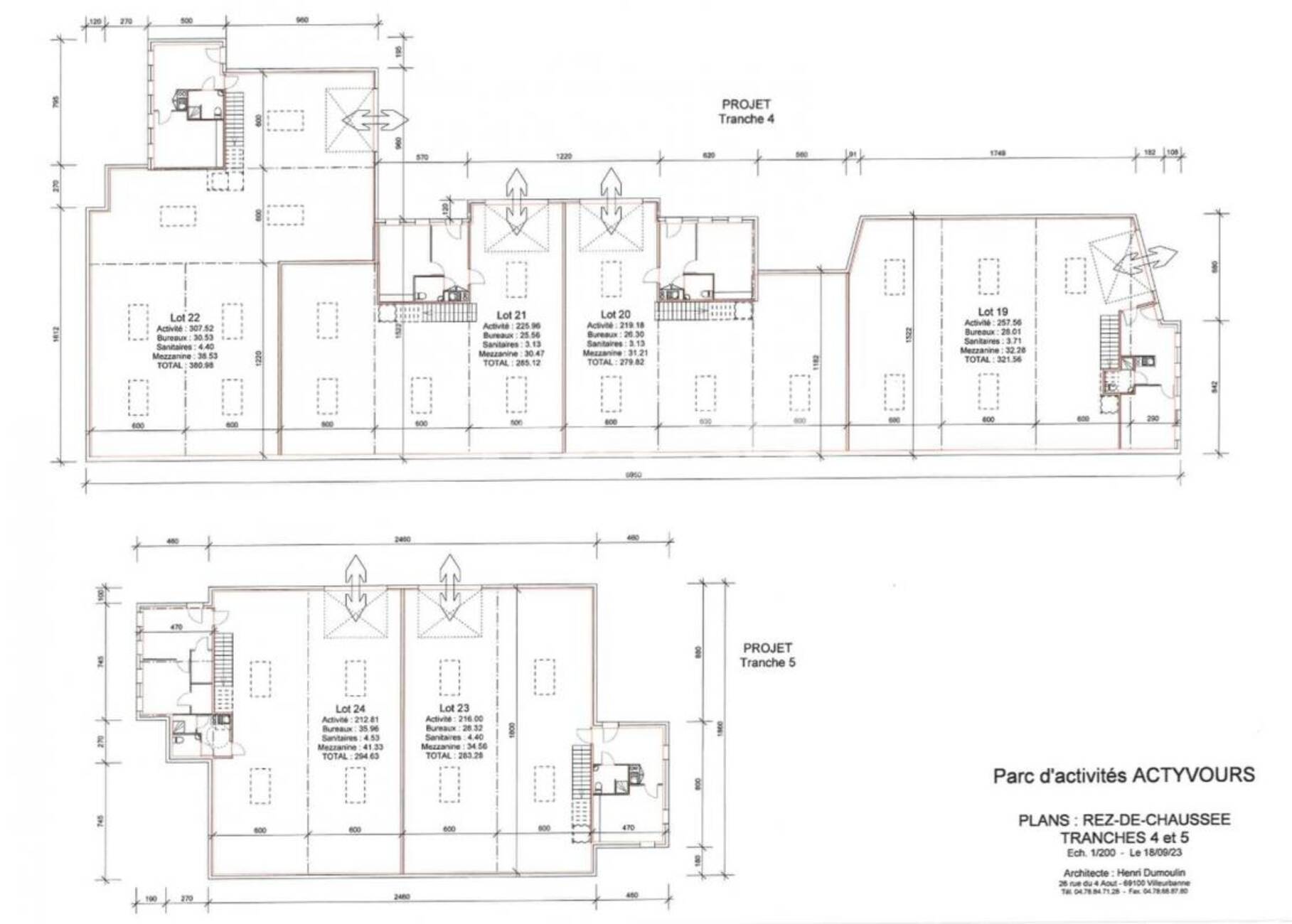
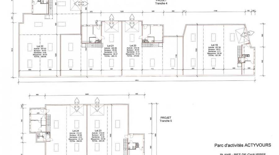
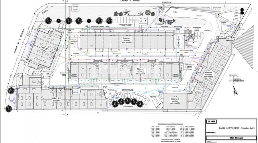
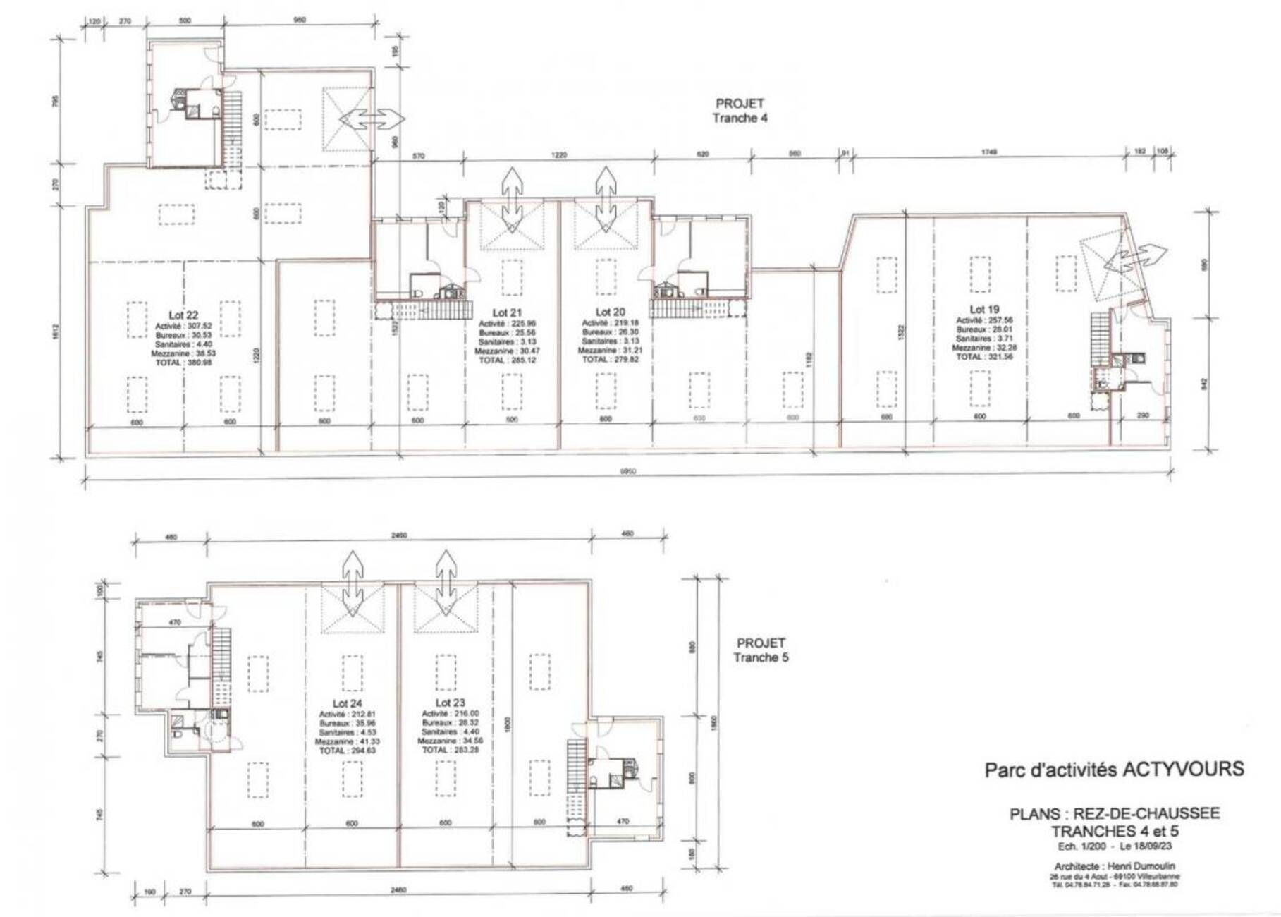
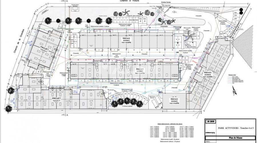
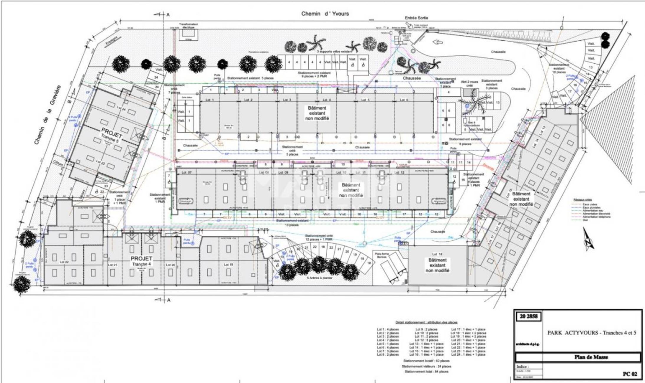
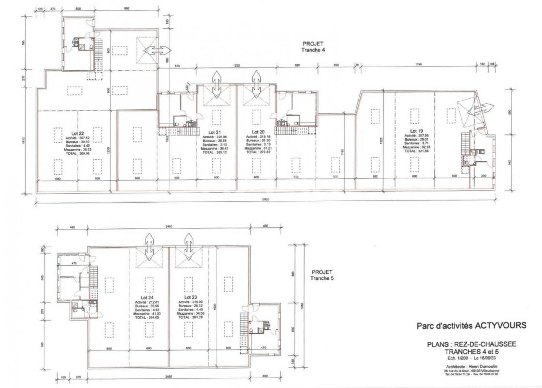
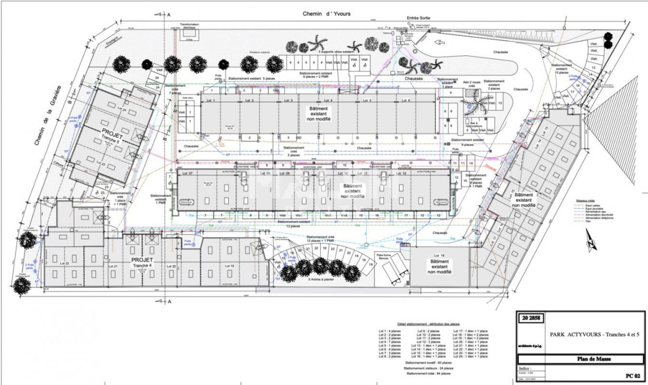
MALSH Realty vous propose à la location en exclusivité dans un parc d'activités récent à Oullins-Pierre-Bénite au sein de deux bâtiments en cours de construction, des locaux d'activités neufs d'une surface totale d'environ 1807 m² divisibles en plusieurs lots à partir de 204 m². Ces locaux disposent de places de parking privatives et bénéficient d'un emplacement clé à proximité immédiate de l'A450.
Livraison début 2026 !
Prestations du bien
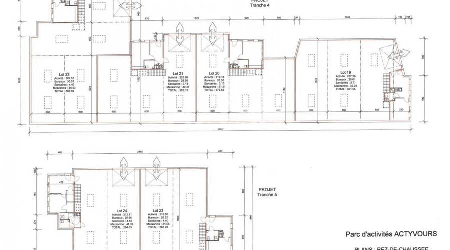
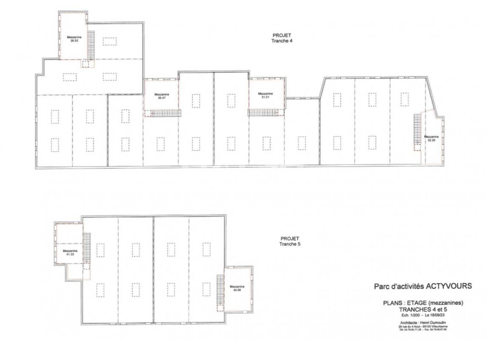
- Tranches 4 & 5 (Locaux neufs) :
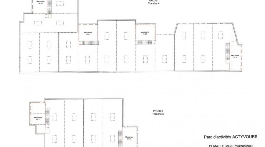
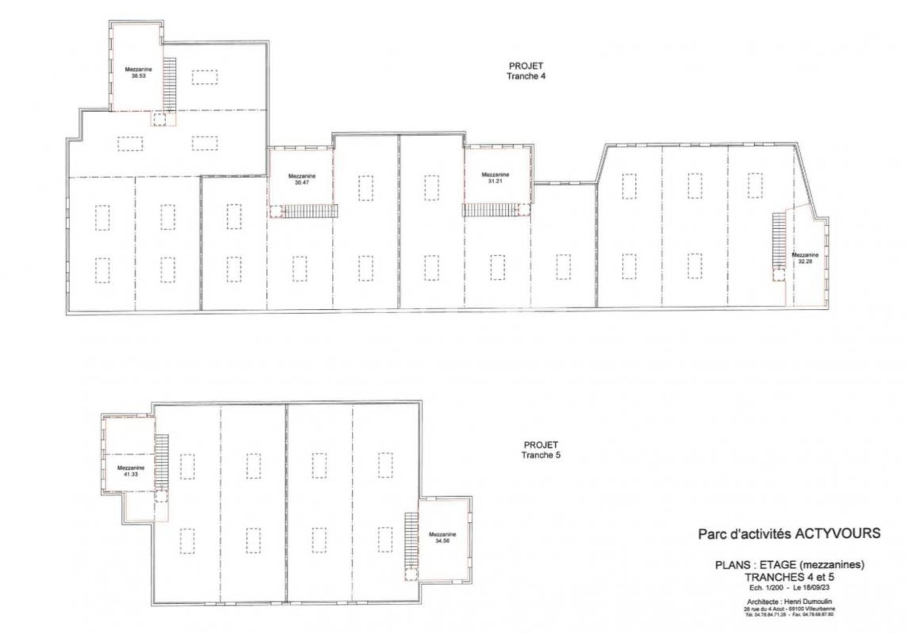
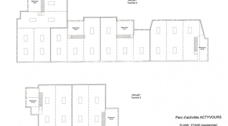
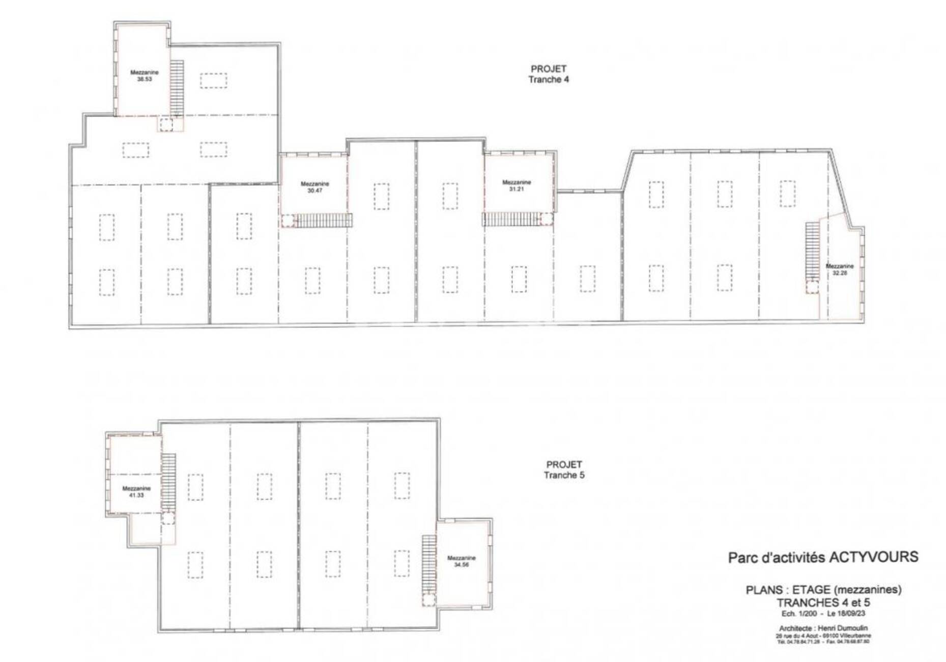
- Soit mezzanine non aménagée
- Soit mezzanine aménagée en bureaux
- Stationnements :
- Places de parking privatives pour chaque lot
- Possibilité de regrouper également les lots 23 et 24 (loyer à 94 euros HT/HC/m²/an si regroupés)
- Prestations :
- Dalle industrielle
- Portes sectionnelles motorisées
- Puits de lumière
- Trappes de désenfumage
- Alimentation en triphasé
- Aménagements envisageables en amont selon les besoins des preneurs
Informations financières
- Bail : commercial 3-6-9 ans
- Taxe foncière : 5 €
- Informations location :
Conditions particulières à la location : Loyer parking : 250 euros HT/Unité/an
- Dépôt de garantie : 3 mois de loyer HT/HC
Ce local professionnel vous est présenté par
Vous souhaitez nous joindre ?
Surfaces des locaux
| Étage | Bâtiment | Type | Surfaces | Disponibilité | Loyer | Charges | Honoraires | Fiscal | Bail | Révision annuelle | Prix | Charges | Honoraires | Fiscal | Paiement Loyer | lot | Coworking | |
|---|---|---|---|---|---|---|---|---|---|---|---|---|---|---|---|---|---|---|
| Mezzanine | 65 | 15 % HT du loyer annuel HT/HC à la charge du preneur, payables à la signature du bail | T.V.A. (20%) | ILC Indice des Loyers Commerciaux | Trimestriel d'avance | |||||||||||||
| RDC | Activités | 470 | 15 % HT du loyer annuel HT/HC à la charge du preneur, payables à la signature du bail | T.V.A. (20%) | ILC Indice des Loyers Commerciaux | Trimestriel d'avance | ||||||||||||
| RDC | Bureaux | 51 | 15 % HT du loyer annuel HT/HC à la charge du preneur, payables à la signature du bail | T.V.A. (20%) | ILC Indice des Loyers Commerciaux | Trimestriel d'avance | ||||||||||||
| Total Cellule 19 & 20 | Activités | 586 | Début 2026 | 94,43 HT/HC/m²/an | 15 % HT du loyer annuel HT/HC à la charge du preneur, payables à la signature du bail | T.V.A. (20%) | commercial 3-6-9 ans | ILC Indice des Loyers Commerciaux | Trimestriel d'avance | 19 & 20 | ||||||||
| Mezzanine | 31 | 15 % HT du loyer annuel HT/HC à la charge du preneur, payables à la signature du bail | T.V.A. (20%) | ILC Indice des Loyers Commerciaux | Trimestriel d'avance | |||||||||||||
| RDC | Activités | 150 | 15 % HT du loyer annuel HT/HC à la charge du preneur, payables à la signature du bail | T.V.A. (20%) | ILC Indice des Loyers Commerciaux | Trimestriel d'avance | ||||||||||||
| RDC | Bureaux | 23 | 15 % HT du loyer annuel HT/HC à la charge du preneur, payables à la signature du bail | T.V.A. (20%) | ILC Indice des Loyers Commerciaux | Trimestriel d'avance | ||||||||||||
| Total Cellule 21 | Activités | 204 | Début 2026 | 99,54 HT/HC/m²/an | 15 % HT du loyer annuel HT/HC à la charge du preneur, payables à la signature du bail | T.V.A. (20%) | commercial 3-6-9 ans | ILC Indice des Loyers Commerciaux | Trimestriel d'avance | 21 | ||||||||
| Mezzanine | 41 | 15 % HT du loyer annuel HT/HC à la charge du preneur, payables à la signature du bail | T.V.A. (20%) | ILC Indice des Loyers Commerciaux | Trimestriel d'avance | |||||||||||||
| RDC | Activités | 383 | 15 % HT du loyer annuel HT/HC à la charge du preneur, payables à la signature du bail | T.V.A. (20%) | ILC Indice des Loyers Commerciaux | Trimestriel d'avance | ||||||||||||
| RDC | Bureaux | 30 | 15 % HT du loyer annuel HT/HC à la charge du preneur, payables à la signature du bail | T.V.A. (20%) | ILC Indice des Loyers Commerciaux | Trimestriel d'avance | ||||||||||||
| Total Cellule 22 | Activités | 454 | Début 2026 | 99,07 HT/HC/m²/an | 15 % HT du loyer annuel HT/HC à la charge du preneur, payables à la signature du bail | T.V.A. (20%) | commercial 3-6-9 ans | ILC Indice des Loyers Commerciaux | Trimestriel d'avance | 22 | ||||||||
| Mezzanine | 35 | 15 % HT du loyer annuel HT/HC à la charge du preneur, payables à la signature du bail | T.V.A. (20%) | ILC Indice des Loyers Commerciaux | Trimestriel d'avance | |||||||||||||
| RDC | Activités | 213 | 15 % HT du loyer annuel HT/HC à la charge du preneur, payables à la signature du bail | T.V.A. (20%) | ILC Indice des Loyers Commerciaux | Trimestriel d'avance | ||||||||||||
| RDC | Bureaux | 28 | 15 % HT du loyer annuel HT/HC à la charge du preneur, payables à la signature du bail | T.V.A. (20%) | ILC Indice des Loyers Commerciaux | Trimestriel d'avance | ||||||||||||
| Total Cellule 23 | Activités | 276 | Début 2026 | 99,13 HT/HC/m²/an | 15 % HT du loyer annuel HT/HC à la charge du preneur, payables à la signature du bail | T.V.A. (20%) | commercial 3-6-9 ans | ILC Indice des Loyers Commerciaux | Trimestriel d'avance | 23 | ||||||||
| Mezzanine | 42 | 15 % HT du loyer annuel HT/HC à la charge du preneur, payables à la signature du bail | T.V.A. (20%) | ILC Indice des Loyers Commerciaux | Trimestriel d'avance | |||||||||||||
| RDC | Activités | 209 | 15 % HT du loyer annuel HT/HC à la charge du preneur, payables à la signature du bail | T.V.A. (20%) | ILC Indice des Loyers Commerciaux | Trimestriel d'avance | ||||||||||||
| RDC | Bureaux | 36 | 15 % HT du loyer annuel HT/HC à la charge du preneur, payables à la signature du bail | T.V.A. (20%) | ILC Indice des Loyers Commerciaux | Trimestriel d'avance | ||||||||||||
| Total Cellule 24 | Activités | 287 | Début 2026 | 100,31 HT/HC/m²/an | 15 % HT du loyer annuel HT/HC à la charge du preneur, payables à la signature du bail | T.V.A. (20%) | commercial 3-6-9 ans | ILC Indice des Loyers Commerciaux | Trimestriel d'avance | 24 | ||||||||
| Total | 1 807 m² |
Localisation et accessibilité
- Bus: Bus TCL lignes C7, 15 et 17
- Metro: Métro ligne B station "St-Genis-Laval Hôpital Sud"
- Autoroute: A proximité immédiate de l'A7 et de l'A450
Ces biens pourraient vous intéresser
Ces articles peuvent vous intéresser
| Étage | Bâtiment | Type | Surfaces | Disponibilité | Loyer | Charges | Honoraires | Fiscal | Bail | Révision annuelle | Prix | Charges | Honoraires | Fiscal | Paiement Loyer | lot | Coworking | |
|---|---|---|---|---|---|---|---|---|---|---|---|---|---|---|---|---|---|---|
| Mezzanine | 65 | 15 % HT du loyer annuel HT/HC à la charge du preneur, payables à la signature du bail | T.V.A. (20%) | ILC Indice des Loyers Commerciaux | Trimestriel d'avance | |||||||||||||
| RDC | Activités | 470 | 15 % HT du loyer annuel HT/HC à la charge du preneur, payables à la signature du bail | T.V.A. (20%) | ILC Indice des Loyers Commerciaux | Trimestriel d'avance | ||||||||||||
| RDC | Bureaux | 51 | 15 % HT du loyer annuel HT/HC à la charge du preneur, payables à la signature du bail | T.V.A. (20%) | ILC Indice des Loyers Commerciaux | Trimestriel d'avance | ||||||||||||
| Total Cellule 19 & 20 | Activités | 586 | Début 2026 | 94,43 HT/HC/m²/an | 15 % HT du loyer annuel HT/HC à la charge du preneur, payables à la signature du bail | T.V.A. (20%) | commercial 3-6-9 ans | ILC Indice des Loyers Commerciaux | Trimestriel d'avance | 19 & 20 | ||||||||
| Mezzanine | 31 | 15 % HT du loyer annuel HT/HC à la charge du preneur, payables à la signature du bail | T.V.A. (20%) | ILC Indice des Loyers Commerciaux | Trimestriel d'avance | |||||||||||||
| RDC | Activités | 150 | 15 % HT du loyer annuel HT/HC à la charge du preneur, payables à la signature du bail | T.V.A. (20%) | ILC Indice des Loyers Commerciaux | Trimestriel d'avance | ||||||||||||
| RDC | Bureaux | 23 | 15 % HT du loyer annuel HT/HC à la charge du preneur, payables à la signature du bail | T.V.A. (20%) | ILC Indice des Loyers Commerciaux | Trimestriel d'avance | ||||||||||||
| Total Cellule 21 | Activités | 204 | Début 2026 | 99,54 HT/HC/m²/an | 15 % HT du loyer annuel HT/HC à la charge du preneur, payables à la signature du bail | T.V.A. (20%) | commercial 3-6-9 ans | ILC Indice des Loyers Commerciaux | Trimestriel d'avance | 21 | ||||||||
| Mezzanine | 41 | 15 % HT du loyer annuel HT/HC à la charge du preneur, payables à la signature du bail | T.V.A. (20%) | ILC Indice des Loyers Commerciaux | Trimestriel d'avance | |||||||||||||
| RDC | Activités | 383 | 15 % HT du loyer annuel HT/HC à la charge du preneur, payables à la signature du bail | T.V.A. (20%) | ILC Indice des Loyers Commerciaux | Trimestriel d'avance | ||||||||||||
| RDC | Bureaux | 30 | 15 % HT du loyer annuel HT/HC à la charge du preneur, payables à la signature du bail | T.V.A. (20%) | ILC Indice des Loyers Commerciaux | Trimestriel d'avance | ||||||||||||
| Total Cellule 22 | Activités | 454 | Début 2026 | 99,07 HT/HC/m²/an | 15 % HT du loyer annuel HT/HC à la charge du preneur, payables à la signature du bail | T.V.A. (20%) | commercial 3-6-9 ans | ILC Indice des Loyers Commerciaux | Trimestriel d'avance | 22 | ||||||||
| Mezzanine | 35 | 15 % HT du loyer annuel HT/HC à la charge du preneur, payables à la signature du bail | T.V.A. (20%) | ILC Indice des Loyers Commerciaux | Trimestriel d'avance | |||||||||||||
| RDC | Activités | 213 | 15 % HT du loyer annuel HT/HC à la charge du preneur, payables à la signature du bail | T.V.A. (20%) | ILC Indice des Loyers Commerciaux | Trimestriel d'avance | ||||||||||||
| RDC | Bureaux | 28 | 15 % HT du loyer annuel HT/HC à la charge du preneur, payables à la signature du bail | T.V.A. (20%) | ILC Indice des Loyers Commerciaux | Trimestriel d'avance | ||||||||||||
| Total Cellule 23 | Activités | 276 | Début 2026 | 99,13 HT/HC/m²/an | 15 % HT du loyer annuel HT/HC à la charge du preneur, payables à la signature du bail | T.V.A. (20%) | commercial 3-6-9 ans | ILC Indice des Loyers Commerciaux | Trimestriel d'avance | 23 | ||||||||
| Mezzanine | 42 | 15 % HT du loyer annuel HT/HC à la charge du preneur, payables à la signature du bail | T.V.A. (20%) | ILC Indice des Loyers Commerciaux | Trimestriel d'avance | |||||||||||||
| RDC | Activités | 209 | 15 % HT du loyer annuel HT/HC à la charge du preneur, payables à la signature du bail | T.V.A. (20%) | ILC Indice des Loyers Commerciaux | Trimestriel d'avance | ||||||||||||
| RDC | Bureaux | 36 | 15 % HT du loyer annuel HT/HC à la charge du preneur, payables à la signature du bail | T.V.A. (20%) | ILC Indice des Loyers Commerciaux | Trimestriel d'avance | ||||||||||||
| Total Cellule 24 | Activités | 287 | Début 2026 | 100,31 HT/HC/m²/an | 15 % HT du loyer annuel HT/HC à la charge du preneur, payables à la signature du bail | T.V.A. (20%) | commercial 3-6-9 ans | ILC Indice des Loyers Commerciaux | Trimestriel d'avance | 24 | ||||||||
| Total | 1 807 m² |








































