Ref : 1315705-0L
Location Local d'activités
Location Locaux d'Activités neufs à partir de 209 m² & Bureaux neufs à partir de 286 m² - Villeurbanne (69100)
Villeurbanne (69100)
Loyer : 1 454 556 € / an
Surface 13 625 m²
Divisible dès 209 m²
Description du bien
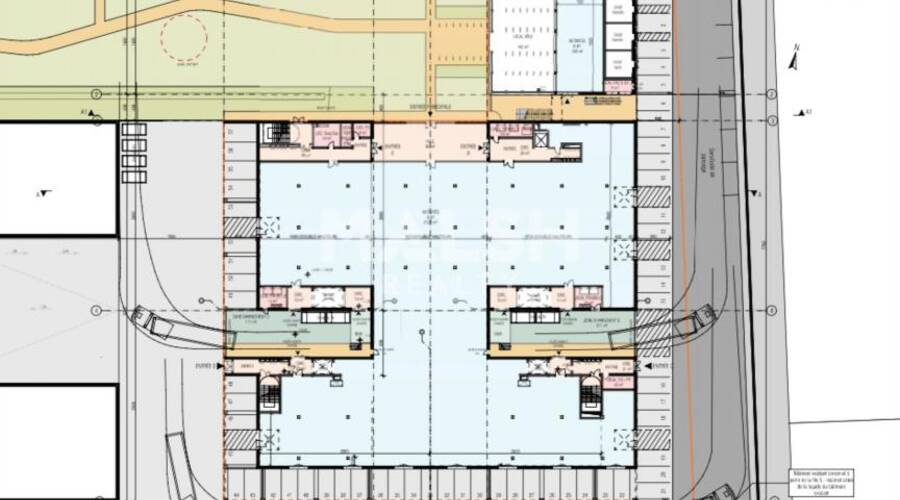
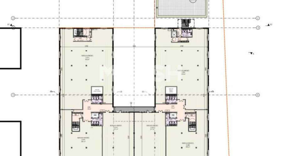
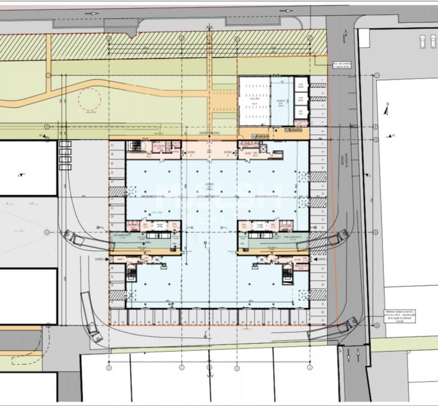
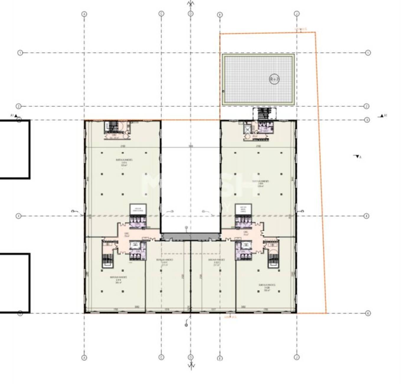
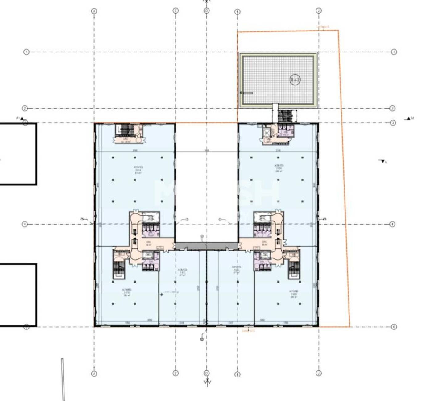
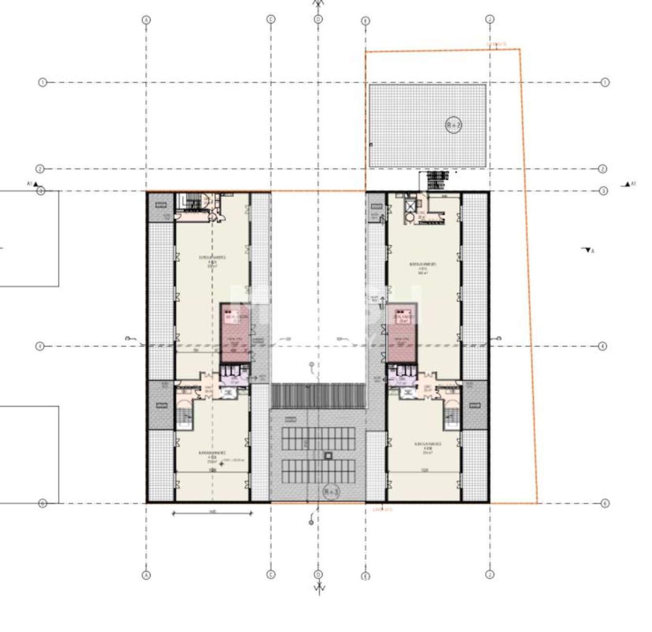
MALSH Realty & Property vous propose à la location, au sein d'un nouveau programme à Villeurbanne de 13625 m² composé de 2 bâtiments, des locaux d'activités en RDC et/ou étage à partir de 209 m² et des bureaux neufs au 3ème et 4ème étage (attique) à partir de 286 m². Ces locaux disposent de nombreuses places de parking extérieures et d'un local à vélos. Idéalement situés à proximité des transports en commun et des axes routiers.
Livraison le 1er semestre 2026 !
Prestations du bien
- Hall d'accueil commun à l'hôtel d'activités
- Accès livraisons : Porte sectionnelle + Quai de déchargement via monte-charge 4000 kg (dimension cabine : 1,80 m de l x 3,65 m de P x 2,80 m de H)
- Charges d'exploitations : 2T/m² pour le RDC et 1T/m² pour les étages
- Hauteur sous dalle : 6,5 m pour le RDC et 4,20 m pour les étages
- Accès direct sur espace vert extérieur pour le RDC
- Chaque cellule dispose d'un espace extérieur commun via les passerelles pour les étages
- Sanitaires communs
- Local livré brut fluides en attente :
- Une attente EF bouchonnée avec vanne, Une attente EU, Un panneau de comptage EDF, Ventilation simple flux
- Des espaces techniques en terrasse au niveau R+4
- Attique dédiés sont laissés à disposition pour abriter une pompe à chaleur ou un VRV pour la production de chaud et de froid
- Local livré en open-space pour les bureaux :
- 1 Poste de travail pour 10 m² : 3PC/poste + 2 emplacements pour RJ455 1 prise ménage tous les 10ml / Ventilation double flux / Chauffage et rafraîchissement par PAC air/eau ou VRV
- Hauteur sous faux-plafond : 2,50 m
- Charges d'exploitations : 250kg/m²
- Surface terrain : 4801
Informations financières
- Charges minimales : 18 292 €
- Bail : BEFA
- Informations location :
Conditions particulières à la location : Loyer Activités au RDC et Mezzanine : 120 euros HT/HC/m²/an
Loyer Activités au R+1 et R+2 : 100 euros HT/HC/m²/an
Loyer Bureaux au R+3 et R+4 : 175 euros HT/HC/m²/an
Loyer terrasse : 87,50 euros HT/HC/m²/an
Loyer Parking (en sus) : 800 euros HT/HC/Unité/anGAPD et dépôt de garantie de 3 mois de loyer HT/HC
Ce local professionnel vous est présenté par
Vous souhaitez nous joindre ?
Surfaces des locaux
| Étage | Bâtiment | Type | Surfaces | Disponibilité | Loyer | Charges | Honoraires | Fiscal | Bail | Révision annuelle | Prix | Charges | Honoraires | Fiscal | Paiement Loyer | lot | Coworking | |
|---|---|---|---|---|---|---|---|---|---|---|---|---|---|---|---|---|---|---|
| Mezzanine | Activités | 48 | 15 % HT du loyer annuel HT/HC à la charge du preneur, payables à la signature du bail | T.V.A. (20%) | ILAT Indice des Loyers des Activités Tertiaires | Trimestriel d'avance | ||||||||||||
| Mezzanine | Activités | 44 | 15 % HT du loyer annuel HT/HC à la charge du preneur, payables à la signature du bail | T.V.A. (20%) | ILAT Indice des Loyers des Activités Tertiaires | Trimestriel d'avance | ||||||||||||
| RDC | Activités | 568 | 15 % HT du loyer annuel HT/HC à la charge du preneur, payables à la signature du bail | T.V.A. (20%) | ILAT Indice des Loyers des Activités Tertiaires | Trimestriel d'avance | ||||||||||||
| Total Cellule 0-01 | Activités | 660 | 1er semestre 2026 | 120 HT/HC/m²/an | 16,11 HT/m²/an | 15 % HT du loyer annuel HT/HC à la charge du preneur, payables à la signature du bail | T.V.A. (20%) | BEFA | ILAT Indice des Loyers des Activités Tertiaires | Trimestriel d'avance | 0-01 | |||||||
| Mezzanine | Activités | 248 | 15 % HT du loyer annuel HT/HC à la charge du preneur, payables à la signature du bail | T.V.A. (20%) | ILAT Indice des Loyers des Activités Tertiaires | Trimestriel d'avance | ||||||||||||
| RDC | Activités | 312 | 15 % HT du loyer annuel HT/HC à la charge du preneur, payables à la signature du bail | T.V.A. (20%) | ILAT Indice des Loyers des Activités Tertiaires | Trimestriel d'avance | ||||||||||||
| RDC | Activités | 82 | 15 % HT du loyer annuel HT/HC à la charge du preneur, payables à la signature du bail | T.V.A. (20%) | ILAT Indice des Loyers des Activités Tertiaires | Trimestriel d'avance | ||||||||||||
| Total Cellule 0-02 | Activités | 642 | 1er semestre 2026 | 120 HT/HC/m²/an | 16,11 HT/m²/an | 15 % HT du loyer annuel HT/HC à la charge du preneur, payables à la signature du bail | T.V.A. (20%) | BEFA | ILAT Indice des Loyers des Activités Tertiaires | Trimestriel d'avance | 0-02 | |||||||
| Mezzanine | Activités | 248 | 15 % HT du loyer annuel HT/HC à la charge du preneur, payables à la signature du bail | T.V.A. (20%) | ILAT Indice des Loyers des Activités Tertiaires | Trimestriel d'avance | ||||||||||||
| RDC | Activités | 322 | 15 % HT du loyer annuel HT/HC à la charge du preneur, payables à la signature du bail | T.V.A. (20%) | ILAT Indice des Loyers des Activités Tertiaires | Trimestriel d'avance | ||||||||||||
| Total Cellule 0-03 | Activités | 570 | 1er semestre 2026 | 120 HT/HC/m²/an | 16,11 HT/m²/an | 15 % HT du loyer annuel HT/HC à la charge du preneur, payables à la signature du bail | T.V.A. (20%) | BEFA | ILAT Indice des Loyers des Activités Tertiaires | Trimestriel d'avance | 0-03 | |||||||
| Mezzanine | Activités | 160 | 15 % HT du loyer annuel HT/HC à la charge du preneur, payables à la signature du bail | T.V.A. (20%) | ILAT Indice des Loyers des Activités Tertiaires | Trimestriel d'avance | ||||||||||||
| Mezzanine | Activités | 54 | 15 % HT du loyer annuel HT/HC à la charge du preneur, payables à la signature du bail | T.V.A. (20%) | ILAT Indice des Loyers des Activités Tertiaires | Trimestriel d'avance | ||||||||||||
| Mezzanine | Activités | 31 | 15 % HT du loyer annuel HT/HC à la charge du preneur, payables à la signature du bail | T.V.A. (20%) | ILAT Indice des Loyers des Activités Tertiaires | Trimestriel d'avance | ||||||||||||
| RDC | Activités | 375 | 15 % HT du loyer annuel HT/HC à la charge du preneur, payables à la signature du bail | T.V.A. (20%) | ILAT Indice des Loyers des Activités Tertiaires | Trimestriel d'avance | ||||||||||||
| Total Cellule 0-04 | Activités | 620 | 1er semestre 2026 | 120 HT/HC/m²/an | 16,11 HT/m²/an | 15 % HT du loyer annuel HT/HC à la charge du preneur, payables à la signature du bail | T.V.A. (20%) | BEFA | ILAT Indice des Loyers des Activités Tertiaires | Trimestriel d'avance | 0-04 | |||||||
| Mezzanine | Activités | 217 | 15 % HT du loyer annuel HT/HC à la charge du preneur, payables à la signature du bail | T.V.A. (20%) | ILAT Indice des Loyers des Activités Tertiaires | Trimestriel d'avance | ||||||||||||
| Total Cellule 0-05 | Activités | 217 | 1er semestre 2026 | 120 HT/HC/m²/an | 16,11 HT/m²/an | 15 % HT du loyer annuel HT/HC à la charge du preneur, payables à la signature du bail | T.V.A. (20%) | BEFA | ILAT Indice des Loyers des Activités Tertiaires | Trimestriel d'avance | 0-05 | |||||||
| Mezzanine | Activités | 209 | 15 % HT du loyer annuel HT/HC à la charge du preneur, payables à la signature du bail | T.V.A. (20%) | ILAT Indice des Loyers des Activités Tertiaires | Trimestriel d'avance | ||||||||||||
| Total Cellule 0-06 | Activités | 209 | 1er semestre 2026 | 120 HT/HC/m²/an | 16,11 HT/m²/an | 15 % HT du loyer annuel HT/HC à la charge du preneur, payables à la signature du bail | T.V.A. (20%) | BEFA | ILAT Indice des Loyers des Activités Tertiaires | Trimestriel d'avance | 0-06 | |||||||
| 1 | Activités | 736 | 15 % HT du loyer annuel HT/HC à la charge du preneur, payables à la signature du bail | T.V.A. (20%) | ILAT Indice des Loyers des Activités Tertiaires | Trimestriel d'avance | ||||||||||||
| 1 | Activités | 365 | 15 % HT du loyer annuel HT/HC à la charge du preneur, payables à la signature du bail | T.V.A. (20%) | ILAT Indice des Loyers des Activités Tertiaires | Trimestriel d'avance | ||||||||||||
| 1 | Activités | 333 | 15 % HT du loyer annuel HT/HC à la charge du preneur, payables à la signature du bail | T.V.A. (20%) | ILAT Indice des Loyers des Activités Tertiaires | Trimestriel d'avance | ||||||||||||
| Total Cellule 1-01 | Activités | 1 434 | 1er semestre 2026 | 100 HT/HC/m²/an | 16,11 HT/m²/an | 15 % HT du loyer annuel HT/HC à la charge du preneur, payables à la signature du bail | T.V.A. (20%) | BEFA | ILAT Indice des Loyers des Activités Tertiaires | Trimestriel d'avance | 1-01 | |||||||
| 1 | Activités | 729 | 15 % HT du loyer annuel HT/HC à la charge du preneur, payables à la signature du bail | T.V.A. (20%) | ILAT Indice des Loyers des Activités Tertiaires | Trimestriel d'avance | ||||||||||||
| 1 | Activités | 365 | 15 % HT du loyer annuel HT/HC à la charge du preneur, payables à la signature du bail | T.V.A. (20%) | ILAT Indice des Loyers des Activités Tertiaires | Trimestriel d'avance | ||||||||||||
| 1 | Activités | 333 | 15 % HT du loyer annuel HT/HC à la charge du preneur, payables à la signature du bail | T.V.A. (20%) | ILAT Indice des Loyers des Activités Tertiaires | Trimestriel d'avance | ||||||||||||
| Total Cellule 1-02 | Activités | 1 427 | 1er semestre 2026 | 100 HT/HC/m²/an | 16,11 HT/m²/an | 15 % HT du loyer annuel HT/HC à la charge du preneur, payables à la signature du bail | T.V.A. (20%) | BEFA | ILAT Indice des Loyers des Activités Tertiaires | Trimestriel d'avance | 1-02 | |||||||
| 2 | Activités | 736 | 15 % HT du loyer annuel HT/HC à la charge du preneur, payables à la signature du bail | T.V.A. (20%) | ILAT Indice des Loyers des Activités Tertiaires | Trimestriel d'avance | ||||||||||||
| 2 | Activités | 365 | 15 % HT du loyer annuel HT/HC à la charge du preneur, payables à la signature du bail | T.V.A. (20%) | ILAT Indice des Loyers des Activités Tertiaires | Trimestriel d'avance | ||||||||||||
| 2 | Activités | 332 | 15 % HT du loyer annuel HT/HC à la charge du preneur, payables à la signature du bail | T.V.A. (20%) | ILAT Indice des Loyers des Activités Tertiaires | Trimestriel d'avance | ||||||||||||
| Total Cellule 2-01 | Activités | 1 433 | 1er semestre 2026 | 100 HT/HC/m²/an | 16,11 HT/m²/an | 15 % HT du loyer annuel HT/HC à la charge du preneur, payables à la signature du bail | T.V.A. (20%) | BEFA | ILAT Indice des Loyers des Activités Tertiaires | Trimestriel d'avance | 2-01 | |||||||
| 2 | Activités | 729 | 15 % HT du loyer annuel HT/HC à la charge du preneur, payables à la signature du bail | T.V.A. (20%) | ILAT Indice des Loyers des Activités Tertiaires | Trimestriel d'avance | ||||||||||||
| 2 | Activités | 365 | 15 % HT du loyer annuel HT/HC à la charge du preneur, payables à la signature du bail | T.V.A. (20%) | ILAT Indice des Loyers des Activités Tertiaires | Trimestriel d'avance | ||||||||||||
| 2 | Activités | 332 | 15 % HT du loyer annuel HT/HC à la charge du preneur, payables à la signature du bail | T.V.A. (20%) | ILAT Indice des Loyers des Activités Tertiaires | Trimestriel d'avance | ||||||||||||
| Total Cellule 2-02 | Activités | 1 426 | 1er semestre 2026 | 100 HT/HC/m²/an | 16,11 HT/m²/an | 15 % HT du loyer annuel HT/HC à la charge du preneur, payables à la signature du bail | T.V.A. (20%) | BEFA | ILAT Indice des Loyers des Activités Tertiaires | Trimestriel d'avance | 2-02 | |||||||
| 3 | Bureaux | 737 | 15 % HT du loyer annuel HT/HC à la charge du preneur, payables à la signature du bail | T.V.A. (20%) | ILAT Indice des Loyers des Activités Tertiaires | Trimestriel d'avance | ||||||||||||
| 3 | Bureaux | 354 | 15 % HT du loyer annuel HT/HC à la charge du preneur, payables à la signature du bail | T.V.A. (20%) | ILAT Indice des Loyers des Activités Tertiaires | Trimestriel d'avance | ||||||||||||
| 3 | Bureaux | 321 | 15 % HT du loyer annuel HT/HC à la charge du preneur, payables à la signature du bail | T.V.A. (20%) | ILAT Indice des Loyers des Activités Tertiaires | Trimestriel d'avance | ||||||||||||
| Total Cellule 3-01 | Bureaux | 1 412 | 1er semestre 2026 | 175 HT/HC/m²/an | 16,11 HT/m²/an | 15 % HT du loyer annuel HT/HC à la charge du preneur, payables à la signature du bail | T.V.A. (20%) | BEFA | ILAT Indice des Loyers des Activités Tertiaires | Trimestriel d'avance | 3-01 | |||||||
| 3 | Bureaux | 728 | 15 % HT du loyer annuel HT/HC à la charge du preneur, payables à la signature du bail | T.V.A. (20%) | ILAT Indice des Loyers des Activités Tertiaires | Trimestriel d'avance | ||||||||||||
| 3 | Bureaux | 355 | 15 % HT du loyer annuel HT/HC à la charge du preneur, payables à la signature du bail | T.V.A. (20%) | ILAT Indice des Loyers des Activités Tertiaires | Trimestriel d'avance | ||||||||||||
| 3 | Bureaux | 321 | 15 % HT du loyer annuel HT/HC à la charge du preneur, payables à la signature du bail | T.V.A. (20%) | ILAT Indice des Loyers des Activités Tertiaires | Trimestriel d'avance | ||||||||||||
| Total Cellule 3-02 | Bureaux | 1 404 | 1er semestre 2026 | 175 HT/HC/m²/an | 16,11 HT/m²/an | 15 % HT du loyer annuel HT/HC à la charge du preneur, payables à la signature du bail | T.V.A. (20%) | BEFA | ILAT Indice des Loyers des Activités Tertiaires | Trimestriel d'avance | 3-02 | |||||||
| 4 | Bureaux | 419 | 15 % HT du loyer annuel HT/HC à la charge du preneur, payables à la signature du bail | T.V.A. (20%) | ILAT Indice des Loyers des Activités Tertiaires | Trimestriel d'avance | ||||||||||||
| 4 | Terrasse | 196 | 15 % HT du loyer annuel HT/HC à la charge du preneur, payables à la signature du bail | T.V.A. (20%) | ILAT Indice des Loyers des Activités Tertiaires | Trimestriel d'avance | ||||||||||||
| Total Cellule 4-01A | Bureaux | 419 | 1er semestre 2026 | 215,93 HT/HC/m²/an | 16,11 HT/m²/an | 15 % HT du loyer annuel HT/HC à la charge du preneur, payables à la signature du bail | T.V.A. (20%) | BEFA | ILAT Indice des Loyers des Activités Tertiaires | Trimestriel d'avance | 4-01A | |||||||
| 4 | Bureaux | 286 | 15 % HT du loyer annuel HT/HC à la charge du preneur, payables à la signature du bail | T.V.A. (20%) | ILAT Indice des Loyers des Activités Tertiaires | Trimestriel d'avance | ||||||||||||
| 4 | Terrasse | 138 | 15 % HT du loyer annuel HT/HC à la charge du preneur, payables à la signature du bail | T.V.A. (20%) | ILAT Indice des Loyers des Activités Tertiaires | Trimestriel d'avance | ||||||||||||
| Total Cellule 4-01B | Bureaux | 286 | 1er semestre 2026 | 217,22 HT/HC/m²/an | 16,11 HT/m²/an | 15 % HT du loyer annuel HT/HC à la charge du preneur, payables à la signature du bail | T.V.A. (20%) | BEFA | ILAT Indice des Loyers des Activités Tertiaires | Trimestriel d'avance | 4-01B | |||||||
| 4 | Bureaux | 404 | 15 % HT du loyer annuel HT/HC à la charge du preneur, payables à la signature du bail | T.V.A. (20%) | ILAT Indice des Loyers des Activités Tertiaires | Trimestriel d'avance | ||||||||||||
| 4 | Terrasse | 221 | 15 % HT du loyer annuel HT/HC à la charge du preneur, payables à la signature du bail | T.V.A. (20%) | ILAT Indice des Loyers des Activités Tertiaires | Trimestriel d'avance | ||||||||||||
| Total Cellule 4-02A | Bureaux | 404 | 1er semestre 2026 | 222,87 HT/HC/m²/an | 16,11 HT/m²/an | 15 % HT du loyer annuel HT/HC à la charge du preneur, payables à la signature du bail | T.V.A. (20%) | BEFA | ILAT Indice des Loyers des Activités Tertiaires | Trimestriel d'avance | 4-02A | |||||||
| 4 | Bureaux | 286 | 15 % HT du loyer annuel HT/HC à la charge du preneur, payables à la signature du bail | T.V.A. (20%) | ILAT Indice des Loyers des Activités Tertiaires | Trimestriel d'avance | ||||||||||||
| 4 | Terrasse | 97 | 15 % HT du loyer annuel HT/HC à la charge du preneur, payables à la signature du bail | T.V.A. (20%) | ILAT Indice des Loyers des Activités Tertiaires | Trimestriel d'avance | ||||||||||||
| Total Cellule 4-02B | Bureaux | 286 | 1er semestre 2026 | 204,68 HT/HC/m²/an | 16,11 HT/m²/an | 15 % HT du loyer annuel HT/HC à la charge du preneur, payables à la signature du bail | T.V.A. (20%) | BEFA | ILAT Indice des Loyers des Activités Tertiaires | Trimestriel d'avance | 4-02B | |||||||
| 2 | Terrasse | 261 | 15 % HT du loyer annuel HT/HC à la charge du preneur, payables à la signature du bail | T.V.A. (20%) | ILAT Indice des Loyers des Activités Tertiaires | Trimestriel d'avance | ||||||||||||
| 1 | Bureaux | 313 | 15 % HT du loyer annuel HT/HC à la charge du preneur, payables à la signature du bail | T.V.A. (20%) | ILAT Indice des Loyers des Activités Tertiaires | Trimestriel d'avance | ||||||||||||
| Mezzanine | Bureaux | 347 | 15 % HT du loyer annuel HT/HC à la charge du preneur, payables à la signature du bail | T.V.A. (20%) | ILAT Indice des Loyers des Activités Tertiaires | Trimestriel d'avance | ||||||||||||
| RDC | Activités | 116 | 15 % HT du loyer annuel HT/HC à la charge du preneur, payables à la signature du bail | T.V.A. (20%) | ILAT Indice des Loyers des Activités Tertiaires | Trimestriel d'avance | ||||||||||||
| Total Cellule LA FOLIE 0-1 | Bureaux | 776 | 1er semestre 2026 | 196,21 HT/HC/m²/an | 16,11 HT/m²/an | 15 % HT du loyer annuel HT/HC à la charge du preneur, payables à la signature du bail | T.V.A. (20%) | BEFA | ILAT Indice des Loyers des Activités Tertiaires | Trimestriel d'avance | LA FOLIE 0-1 | |||||||
| Total | 14 538 m² |
Localisation et accessibilité
- Bus: Bus TCL lignes C3, C8, C11, C17 et 25
- Metro: Métro ligne A station "Cusset" à 15 min à pied
- Tramway: Tramway ligne T3 arrêt "Bel Air - Les Brosses"
- Autoroute: A proximité immédiate du Boulevard Périphérique Laurent Bonnevay (à 300 m), reliant les autoroutes A42, A43, A6 et A7
Ces biens pourraient vous intéresser
Ces articles peuvent vous intéresser
| Étage | Bâtiment | Type | Surfaces | Disponibilité | Loyer | Charges | Honoraires | Fiscal | Bail | Révision annuelle | Prix | Charges | Honoraires | Fiscal | Paiement Loyer | lot | Coworking | |
|---|---|---|---|---|---|---|---|---|---|---|---|---|---|---|---|---|---|---|
| Mezzanine | Activités | 48 | 15 % HT du loyer annuel HT/HC à la charge du preneur, payables à la signature du bail | T.V.A. (20%) | ILAT Indice des Loyers des Activités Tertiaires | Trimestriel d'avance | ||||||||||||
| Mezzanine | Activités | 44 | 15 % HT du loyer annuel HT/HC à la charge du preneur, payables à la signature du bail | T.V.A. (20%) | ILAT Indice des Loyers des Activités Tertiaires | Trimestriel d'avance | ||||||||||||
| RDC | Activités | 568 | 15 % HT du loyer annuel HT/HC à la charge du preneur, payables à la signature du bail | T.V.A. (20%) | ILAT Indice des Loyers des Activités Tertiaires | Trimestriel d'avance | ||||||||||||
| Total Cellule 0-01 | Activités | 660 | 1er semestre 2026 | 120 HT/HC/m²/an | 16,11 HT/m²/an | 15 % HT du loyer annuel HT/HC à la charge du preneur, payables à la signature du bail | T.V.A. (20%) | BEFA | ILAT Indice des Loyers des Activités Tertiaires | Trimestriel d'avance | 0-01 | |||||||
| Mezzanine | Activités | 248 | 15 % HT du loyer annuel HT/HC à la charge du preneur, payables à la signature du bail | T.V.A. (20%) | ILAT Indice des Loyers des Activités Tertiaires | Trimestriel d'avance | ||||||||||||
| RDC | Activités | 312 | 15 % HT du loyer annuel HT/HC à la charge du preneur, payables à la signature du bail | T.V.A. (20%) | ILAT Indice des Loyers des Activités Tertiaires | Trimestriel d'avance | ||||||||||||
| RDC | Activités | 82 | 15 % HT du loyer annuel HT/HC à la charge du preneur, payables à la signature du bail | T.V.A. (20%) | ILAT Indice des Loyers des Activités Tertiaires | Trimestriel d'avance | ||||||||||||
| Total Cellule 0-02 | Activités | 642 | 1er semestre 2026 | 120 HT/HC/m²/an | 16,11 HT/m²/an | 15 % HT du loyer annuel HT/HC à la charge du preneur, payables à la signature du bail | T.V.A. (20%) | BEFA | ILAT Indice des Loyers des Activités Tertiaires | Trimestriel d'avance | 0-02 | |||||||
| Mezzanine | Activités | 248 | 15 % HT du loyer annuel HT/HC à la charge du preneur, payables à la signature du bail | T.V.A. (20%) | ILAT Indice des Loyers des Activités Tertiaires | Trimestriel d'avance | ||||||||||||
| RDC | Activités | 322 | 15 % HT du loyer annuel HT/HC à la charge du preneur, payables à la signature du bail | T.V.A. (20%) | ILAT Indice des Loyers des Activités Tertiaires | Trimestriel d'avance | ||||||||||||
| Total Cellule 0-03 | Activités | 570 | 1er semestre 2026 | 120 HT/HC/m²/an | 16,11 HT/m²/an | 15 % HT du loyer annuel HT/HC à la charge du preneur, payables à la signature du bail | T.V.A. (20%) | BEFA | ILAT Indice des Loyers des Activités Tertiaires | Trimestriel d'avance | 0-03 | |||||||
| Mezzanine | Activités | 160 | 15 % HT du loyer annuel HT/HC à la charge du preneur, payables à la signature du bail | T.V.A. (20%) | ILAT Indice des Loyers des Activités Tertiaires | Trimestriel d'avance | ||||||||||||
| Mezzanine | Activités | 54 | 15 % HT du loyer annuel HT/HC à la charge du preneur, payables à la signature du bail | T.V.A. (20%) | ILAT Indice des Loyers des Activités Tertiaires | Trimestriel d'avance | ||||||||||||
| Mezzanine | Activités | 31 | 15 % HT du loyer annuel HT/HC à la charge du preneur, payables à la signature du bail | T.V.A. (20%) | ILAT Indice des Loyers des Activités Tertiaires | Trimestriel d'avance | ||||||||||||
| RDC | Activités | 375 | 15 % HT du loyer annuel HT/HC à la charge du preneur, payables à la signature du bail | T.V.A. (20%) | ILAT Indice des Loyers des Activités Tertiaires | Trimestriel d'avance | ||||||||||||
| Total Cellule 0-04 | Activités | 620 | 1er semestre 2026 | 120 HT/HC/m²/an | 16,11 HT/m²/an | 15 % HT du loyer annuel HT/HC à la charge du preneur, payables à la signature du bail | T.V.A. (20%) | BEFA | ILAT Indice des Loyers des Activités Tertiaires | Trimestriel d'avance | 0-04 | |||||||
| Mezzanine | Activités | 217 | 15 % HT du loyer annuel HT/HC à la charge du preneur, payables à la signature du bail | T.V.A. (20%) | ILAT Indice des Loyers des Activités Tertiaires | Trimestriel d'avance | ||||||||||||
| Total Cellule 0-05 | Activités | 217 | 1er semestre 2026 | 120 HT/HC/m²/an | 16,11 HT/m²/an | 15 % HT du loyer annuel HT/HC à la charge du preneur, payables à la signature du bail | T.V.A. (20%) | BEFA | ILAT Indice des Loyers des Activités Tertiaires | Trimestriel d'avance | 0-05 | |||||||
| Mezzanine | Activités | 209 | 15 % HT du loyer annuel HT/HC à la charge du preneur, payables à la signature du bail | T.V.A. (20%) | ILAT Indice des Loyers des Activités Tertiaires | Trimestriel d'avance | ||||||||||||
| Total Cellule 0-06 | Activités | 209 | 1er semestre 2026 | 120 HT/HC/m²/an | 16,11 HT/m²/an | 15 % HT du loyer annuel HT/HC à la charge du preneur, payables à la signature du bail | T.V.A. (20%) | BEFA | ILAT Indice des Loyers des Activités Tertiaires | Trimestriel d'avance | 0-06 | |||||||
| 1 | Activités | 736 | 15 % HT du loyer annuel HT/HC à la charge du preneur, payables à la signature du bail | T.V.A. (20%) | ILAT Indice des Loyers des Activités Tertiaires | Trimestriel d'avance | ||||||||||||
| 1 | Activités | 365 | 15 % HT du loyer annuel HT/HC à la charge du preneur, payables à la signature du bail | T.V.A. (20%) | ILAT Indice des Loyers des Activités Tertiaires | Trimestriel d'avance | ||||||||||||
| 1 | Activités | 333 | 15 % HT du loyer annuel HT/HC à la charge du preneur, payables à la signature du bail | T.V.A. (20%) | ILAT Indice des Loyers des Activités Tertiaires | Trimestriel d'avance | ||||||||||||
| Total Cellule 1-01 | Activités | 1 434 | 1er semestre 2026 | 100 HT/HC/m²/an | 16,11 HT/m²/an | 15 % HT du loyer annuel HT/HC à la charge du preneur, payables à la signature du bail | T.V.A. (20%) | BEFA | ILAT Indice des Loyers des Activités Tertiaires | Trimestriel d'avance | 1-01 | |||||||
| 1 | Activités | 729 | 15 % HT du loyer annuel HT/HC à la charge du preneur, payables à la signature du bail | T.V.A. (20%) | ILAT Indice des Loyers des Activités Tertiaires | Trimestriel d'avance | ||||||||||||
| 1 | Activités | 365 | 15 % HT du loyer annuel HT/HC à la charge du preneur, payables à la signature du bail | T.V.A. (20%) | ILAT Indice des Loyers des Activités Tertiaires | Trimestriel d'avance | ||||||||||||
| 1 | Activités | 333 | 15 % HT du loyer annuel HT/HC à la charge du preneur, payables à la signature du bail | T.V.A. (20%) | ILAT Indice des Loyers des Activités Tertiaires | Trimestriel d'avance | ||||||||||||
| Total Cellule 1-02 | Activités | 1 427 | 1er semestre 2026 | 100 HT/HC/m²/an | 16,11 HT/m²/an | 15 % HT du loyer annuel HT/HC à la charge du preneur, payables à la signature du bail | T.V.A. (20%) | BEFA | ILAT Indice des Loyers des Activités Tertiaires | Trimestriel d'avance | 1-02 | |||||||
| 2 | Activités | 736 | 15 % HT du loyer annuel HT/HC à la charge du preneur, payables à la signature du bail | T.V.A. (20%) | ILAT Indice des Loyers des Activités Tertiaires | Trimestriel d'avance | ||||||||||||
| 2 | Activités | 365 | 15 % HT du loyer annuel HT/HC à la charge du preneur, payables à la signature du bail | T.V.A. (20%) | ILAT Indice des Loyers des Activités Tertiaires | Trimestriel d'avance | ||||||||||||
| 2 | Activités | 332 | 15 % HT du loyer annuel HT/HC à la charge du preneur, payables à la signature du bail | T.V.A. (20%) | ILAT Indice des Loyers des Activités Tertiaires | Trimestriel d'avance | ||||||||||||
| Total Cellule 2-01 | Activités | 1 433 | 1er semestre 2026 | 100 HT/HC/m²/an | 16,11 HT/m²/an | 15 % HT du loyer annuel HT/HC à la charge du preneur, payables à la signature du bail | T.V.A. (20%) | BEFA | ILAT Indice des Loyers des Activités Tertiaires | Trimestriel d'avance | 2-01 | |||||||
| 2 | Activités | 729 | 15 % HT du loyer annuel HT/HC à la charge du preneur, payables à la signature du bail | T.V.A. (20%) | ILAT Indice des Loyers des Activités Tertiaires | Trimestriel d'avance | ||||||||||||
| 2 | Activités | 365 | 15 % HT du loyer annuel HT/HC à la charge du preneur, payables à la signature du bail | T.V.A. (20%) | ILAT Indice des Loyers des Activités Tertiaires | Trimestriel d'avance | ||||||||||||
| 2 | Activités | 332 | 15 % HT du loyer annuel HT/HC à la charge du preneur, payables à la signature du bail | T.V.A. (20%) | ILAT Indice des Loyers des Activités Tertiaires | Trimestriel d'avance | ||||||||||||
| Total Cellule 2-02 | Activités | 1 426 | 1er semestre 2026 | 100 HT/HC/m²/an | 16,11 HT/m²/an | 15 % HT du loyer annuel HT/HC à la charge du preneur, payables à la signature du bail | T.V.A. (20%) | BEFA | ILAT Indice des Loyers des Activités Tertiaires | Trimestriel d'avance | 2-02 | |||||||
| 3 | Bureaux | 737 | 15 % HT du loyer annuel HT/HC à la charge du preneur, payables à la signature du bail | T.V.A. (20%) | ILAT Indice des Loyers des Activités Tertiaires | Trimestriel d'avance | ||||||||||||
| 3 | Bureaux | 354 | 15 % HT du loyer annuel HT/HC à la charge du preneur, payables à la signature du bail | T.V.A. (20%) | ILAT Indice des Loyers des Activités Tertiaires | Trimestriel d'avance | ||||||||||||
| 3 | Bureaux | 321 | 15 % HT du loyer annuel HT/HC à la charge du preneur, payables à la signature du bail | T.V.A. (20%) | ILAT Indice des Loyers des Activités Tertiaires | Trimestriel d'avance | ||||||||||||
| Total Cellule 3-01 | Bureaux | 1 412 | 1er semestre 2026 | 175 HT/HC/m²/an | 16,11 HT/m²/an | 15 % HT du loyer annuel HT/HC à la charge du preneur, payables à la signature du bail | T.V.A. (20%) | BEFA | ILAT Indice des Loyers des Activités Tertiaires | Trimestriel d'avance | 3-01 | |||||||
| 3 | Bureaux | 728 | 15 % HT du loyer annuel HT/HC à la charge du preneur, payables à la signature du bail | T.V.A. (20%) | ILAT Indice des Loyers des Activités Tertiaires | Trimestriel d'avance | ||||||||||||
| 3 | Bureaux | 355 | 15 % HT du loyer annuel HT/HC à la charge du preneur, payables à la signature du bail | T.V.A. (20%) | ILAT Indice des Loyers des Activités Tertiaires | Trimestriel d'avance | ||||||||||||
| 3 | Bureaux | 321 | 15 % HT du loyer annuel HT/HC à la charge du preneur, payables à la signature du bail | T.V.A. (20%) | ILAT Indice des Loyers des Activités Tertiaires | Trimestriel d'avance | ||||||||||||
| Total Cellule 3-02 | Bureaux | 1 404 | 1er semestre 2026 | 175 HT/HC/m²/an | 16,11 HT/m²/an | 15 % HT du loyer annuel HT/HC à la charge du preneur, payables à la signature du bail | T.V.A. (20%) | BEFA | ILAT Indice des Loyers des Activités Tertiaires | Trimestriel d'avance | 3-02 | |||||||
| 4 | Bureaux | 419 | 15 % HT du loyer annuel HT/HC à la charge du preneur, payables à la signature du bail | T.V.A. (20%) | ILAT Indice des Loyers des Activités Tertiaires | Trimestriel d'avance | ||||||||||||
| 4 | Terrasse | 196 | 15 % HT du loyer annuel HT/HC à la charge du preneur, payables à la signature du bail | T.V.A. (20%) | ILAT Indice des Loyers des Activités Tertiaires | Trimestriel d'avance | ||||||||||||
| Total Cellule 4-01A | Bureaux | 419 | 1er semestre 2026 | 215,93 HT/HC/m²/an | 16,11 HT/m²/an | 15 % HT du loyer annuel HT/HC à la charge du preneur, payables à la signature du bail | T.V.A. (20%) | BEFA | ILAT Indice des Loyers des Activités Tertiaires | Trimestriel d'avance | 4-01A | |||||||
| 4 | Bureaux | 286 | 15 % HT du loyer annuel HT/HC à la charge du preneur, payables à la signature du bail | T.V.A. (20%) | ILAT Indice des Loyers des Activités Tertiaires | Trimestriel d'avance | ||||||||||||
| 4 | Terrasse | 138 | 15 % HT du loyer annuel HT/HC à la charge du preneur, payables à la signature du bail | T.V.A. (20%) | ILAT Indice des Loyers des Activités Tertiaires | Trimestriel d'avance | ||||||||||||
| Total Cellule 4-01B | Bureaux | 286 | 1er semestre 2026 | 217,22 HT/HC/m²/an | 16,11 HT/m²/an | 15 % HT du loyer annuel HT/HC à la charge du preneur, payables à la signature du bail | T.V.A. (20%) | BEFA | ILAT Indice des Loyers des Activités Tertiaires | Trimestriel d'avance | 4-01B | |||||||
| 4 | Bureaux | 404 | 15 % HT du loyer annuel HT/HC à la charge du preneur, payables à la signature du bail | T.V.A. (20%) | ILAT Indice des Loyers des Activités Tertiaires | Trimestriel d'avance | ||||||||||||
| 4 | Terrasse | 221 | 15 % HT du loyer annuel HT/HC à la charge du preneur, payables à la signature du bail | T.V.A. (20%) | ILAT Indice des Loyers des Activités Tertiaires | Trimestriel d'avance | ||||||||||||
| Total Cellule 4-02A | Bureaux | 404 | 1er semestre 2026 | 222,87 HT/HC/m²/an | 16,11 HT/m²/an | 15 % HT du loyer annuel HT/HC à la charge du preneur, payables à la signature du bail | T.V.A. (20%) | BEFA | ILAT Indice des Loyers des Activités Tertiaires | Trimestriel d'avance | 4-02A | |||||||
| 4 | Bureaux | 286 | 15 % HT du loyer annuel HT/HC à la charge du preneur, payables à la signature du bail | T.V.A. (20%) | ILAT Indice des Loyers des Activités Tertiaires | Trimestriel d'avance | ||||||||||||
| 4 | Terrasse | 97 | 15 % HT du loyer annuel HT/HC à la charge du preneur, payables à la signature du bail | T.V.A. (20%) | ILAT Indice des Loyers des Activités Tertiaires | Trimestriel d'avance | ||||||||||||
| Total Cellule 4-02B | Bureaux | 286 | 1er semestre 2026 | 204,68 HT/HC/m²/an | 16,11 HT/m²/an | 15 % HT du loyer annuel HT/HC à la charge du preneur, payables à la signature du bail | T.V.A. (20%) | BEFA | ILAT Indice des Loyers des Activités Tertiaires | Trimestriel d'avance | 4-02B | |||||||
| 2 | Terrasse | 261 | 15 % HT du loyer annuel HT/HC à la charge du preneur, payables à la signature du bail | T.V.A. (20%) | ILAT Indice des Loyers des Activités Tertiaires | Trimestriel d'avance | ||||||||||||
| 1 | Bureaux | 313 | 15 % HT du loyer annuel HT/HC à la charge du preneur, payables à la signature du bail | T.V.A. (20%) | ILAT Indice des Loyers des Activités Tertiaires | Trimestriel d'avance | ||||||||||||
| Mezzanine | Bureaux | 347 | 15 % HT du loyer annuel HT/HC à la charge du preneur, payables à la signature du bail | T.V.A. (20%) | ILAT Indice des Loyers des Activités Tertiaires | Trimestriel d'avance | ||||||||||||
| RDC | Activités | 116 | 15 % HT du loyer annuel HT/HC à la charge du preneur, payables à la signature du bail | T.V.A. (20%) | ILAT Indice des Loyers des Activités Tertiaires | Trimestriel d'avance | ||||||||||||
| Total Cellule LA FOLIE 0-1 | Bureaux | 776 | 1er semestre 2026 | 196,21 HT/HC/m²/an | 16,11 HT/m²/an | 15 % HT du loyer annuel HT/HC à la charge du preneur, payables à la signature du bail | T.V.A. (20%) | BEFA | ILAT Indice des Loyers des Activités Tertiaires | Trimestriel d'avance | LA FOLIE 0-1 | |||||||
| Total | 14 538 m² |



























































