Indisponible
Ref : 1126746-0V
Vente Local d'activités
Vente Local d'Activités - Guereins (01090) - 1247 m²
Guéreins (01090)
Surface 1 247 m²
Description du bien
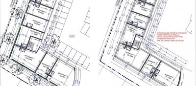
MALSH Realty & Property vous propose à la vente à Guéreins, sur un terrain indépendant de 3 266 m², un bâtiment d'activités neuf d'une surface totale d'environ 1247 m² dont 200 m² de mezzanine.
Proximité autoroute et accès poids lourds.
Nombreuses places de parking.
Ce local de 1247 m² dénombre de multiples atouts: accès autoroutier à 5 minutes, fonctionnalité du bâtiment avec accès poids
lourds et est conçu pour recevoir des panneaux photovoltaïques en toiture ainsi que des bornes pour véhicule électriques.
Prestations du bien
- Accès de plain-pied / Accès semi
- Portes sectionnelles
- Portail coulissant
- Pré-conception panneaux photovoltaïques
- Pré-équipement bornes de recharge électrique
- 21 places de parking (accès PL et VL)
- Charpente métallique
- Façade : Bardage
- Mezzanine de 200 m2
- Options : Bureaux et locaux sociaux
- Livraison : locaux bruts / fluides en attente
- Immeuble indépendant
- Surface terrain : 3266
Ce local professionnel vous est présenté par
Vous souhaitez nous joindre ?
Surfaces des locaux
| Étage | Bâtiment | Type | Surfaces | Disponibilité | Loyer | Charges | Honoraires | Fiscal | Bail | Révision annuelle | Prix | Charges | Honoraires | Fiscal | Paiement Loyer | lot | Coworking | |
|---|---|---|---|---|---|---|---|---|---|---|---|---|---|---|---|---|---|---|
| RDC | Activités | 1 047 | Inclus dans le prix de vente | TVA | ||||||||||||||
| Mezzanine | 200 | Inclus dans le prix de vente | TVA | |||||||||||||||
| Total Cellule | Activités | 1 247 | Nous consulter | commercial 3-6-9 ans | 1 238,97 HT/m² | Inclus dans le prix de vente | TVA | |||||||||||
| Total | 1 247 m² |
Localisation et accessibilité
Ces biens pourraient vous intéresser
Ces articles peuvent vous intéresser
| Étage | Bâtiment | Type | Surfaces | Disponibilité | Loyer | Charges | Honoraires | Fiscal | Bail | Révision annuelle | Prix | Charges | Honoraires | Fiscal | Paiement Loyer | lot | Coworking | |
|---|---|---|---|---|---|---|---|---|---|---|---|---|---|---|---|---|---|---|
| RDC | Activités | 1 047 | Inclus dans le prix de vente | TVA | ||||||||||||||
| Mezzanine | 200 | Inclus dans le prix de vente | TVA | |||||||||||||||
| Total Cellule | Activités | 1 247 | Nous consulter | commercial 3-6-9 ans | 1 238,97 HT/m² | Inclus dans le prix de vente | TVA | |||||||||||
| Total | 1 247 m² |
























