Ref : 1256238-0
Vente Bureau
Bureaux - A Vendre ou à Louer - Dardiily - A partir de 41,30 m²
Dardilly (69570)
Prix : 1 344 391 €
Surface 420 m²
Divisible dès 41 m²
Description du bien
Malsh realty vous propose à la vente ou la location, ces bureaux situés au coeur de Dardilly d'une surface totale de 833 m² divisible dès 41,30 m². Ils bénéficient d'un accès aisé aux principaux axes routiers au sein d'un lieu arboré. Les petites surfaces sont conçues pour répondre aux besoins des entreprises modernes, offrant un équilibre idéal entre fonctionnalité, esthétique et flexibilité.
Prestations du bien
- - Nbre Parkings sous-sol : 12
- Immeuble neuf
- Performance RE 2020
- ERP5 type W
- Double vitrage
- Brise-soleil orientables
- Menuiseries extérieurs thermo-laquées
- 2,60m sous faux-plafond (dalles minérales)
- Charges d'exploration : 250Kg / m2
- Moquette en dalles plombantes
- Système de ventilation double flux
- Production thermique type VRV 3 tubes
- Commandes individuelles par lot
- Pilotage individuel par commande filaire
- Courant fort / courant faible
- Chaque lot est alimenté pat un comptage de type tarif bleu
- Fibre optique
- Détecteur de présence
- Etude d'éclairement (Pavés lumineux)
- Contrôle d'accès entrée et ascenseur
- Portier video
- 1 appareil élévateur : 630 Kg max
Informations financières
- Bail : commercial 3-6-9 ans
Ce local professionnel vous est présenté par
Vous souhaitez nous joindre ?
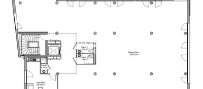
Surfaces des locaux
| Étage | Bâtiment | Type | Surfaces | Disponibilité | Loyer | Charges | Honoraires | Fiscal | Bail | Révision annuelle | Prix | Charges | Honoraires | Fiscal | Paiement Loyer | lot | Coworking | |
|---|---|---|---|---|---|---|---|---|---|---|---|---|---|---|---|---|---|---|
| 2 | Bureaux | 72,2 | Immédiate | 3 150 m² HD | TVA | |||||||||||||
| Sous-Sol | Parkings | - | Immédiate | 19 000 m² HD | TVA | |||||||||||||
| Total Cellule LOT 1 | Bureaux | 72,2 | Immédiate | 180 HT/HC/m²/an | commercial 3-6-9 ans | 3 150 m² HD | TVA | LOT 1 | ||||||||||
| 1 | Bureaux | 41,3 | Immédiate | 3 180 m² HD | TVA | |||||||||||||
| Sous-Sol | Parkings | - | Immédiate | 19 000 m² HD | TVA | |||||||||||||
| Total Cellule LOT 2 | Bureaux | 41,3 | Immédiate | 180 HT/HC/m²/an | commercial 3-6-9 ans | 3 180 m² HD | TVA | LOT 2 | ||||||||||
| 2 | Bureaux | 88,4 | Immédiate | TVA | ||||||||||||||
| 2 | Terrasse | 6,2 | Immédiate | TVA | ||||||||||||||
| Sous-Sol | Parkings | - | Immédiate | 19 000 m² HD | TVA | |||||||||||||
| Total Cellule LOT 3 | Bureaux | 88,4 | Immédiate | 185 HT/HC/m²/an | commercial 3-6-9 ans | 3 206,6 m² HD | TVA | LOT 3 | ||||||||||
| 1 | Bureaux | 87,2 | Immédiate | TVA | ||||||||||||||
| 1 | Terrasse | 6,25 | Immédiate | TVA | ||||||||||||||
| Sous-Sol | Parkings | - | Immédiate | 19 000 m² HD | TVA | |||||||||||||
| Total Cellule LOT 4 | Bureaux | 87,2 | Immédiate | 185 HT/HC/m²/an | commercial 3-6-9 ans | 3 207,5 m² HD | TVA | LOT 4 | ||||||||||
| 1 | Bureaux | 61,5 | Immédiate | TVA | ||||||||||||||
| 1 | Terrasse | 7,4 | Immédiate | TVA | ||||||||||||||
| Sous-Sol | Parkings | - | Immédiate | 19 000 m² HD | TVA | |||||||||||||
| Total Cellule LOT 5 | Bureaux | 61,5 | Immédiate | 185 HT/HC/m²/an | commercial 3-6-9 ans | 3 294,3 m² HD | TVA | LOT 5 | ||||||||||
| 1 | Bureaux | 69,8 | Immédiate | 3 150 m² HD | TVA | |||||||||||||
| Sous-Sol | Parkings | - | Immédiate | 19 000 m² HD | TVA | |||||||||||||
| Total Cellule LOT 6 | Bureaux | 69,8 | Immédiate | 180 HT/HC/m²/an | commercial 3-6-9 ans | 3 150 m² HD | TVA | LOT 6 | ||||||||||
| Total | 440,25 m² | |||||||||||||||||
| 3 2 1 1 3 2 | ||||||||||||||||||
Localisation et accessibilité
- Bus: Lignes 89, 3 et 10
- SCNF: Gare du Jubin
- Autoroute: A6
Ces biens pourraient vous intéresser
Ces articles peuvent vous intéresser
| Étage | Bâtiment | Type | Surfaces | Disponibilité | Loyer | Charges | Honoraires | Fiscal | Bail | Révision annuelle | Prix | Charges | Honoraires | Fiscal | Paiement Loyer | lot | Coworking | |
|---|---|---|---|---|---|---|---|---|---|---|---|---|---|---|---|---|---|---|
| 2 | Bureaux | 72,2 | Immédiate | 3 150 m² HD | TVA | |||||||||||||
| Sous-Sol | Parkings | - | Immédiate | 19 000 m² HD | TVA | |||||||||||||
| Total Cellule LOT 1 | Bureaux | 72,2 | Immédiate | 180 HT/HC/m²/an | commercial 3-6-9 ans | 3 150 m² HD | TVA | LOT 1 | ||||||||||
| 1 | Bureaux | 41,3 | Immédiate | 3 180 m² HD | TVA | |||||||||||||
| Sous-Sol | Parkings | - | Immédiate | 19 000 m² HD | TVA | |||||||||||||
| Total Cellule LOT 2 | Bureaux | 41,3 | Immédiate | 180 HT/HC/m²/an | commercial 3-6-9 ans | 3 180 m² HD | TVA | LOT 2 | ||||||||||
| 2 | Bureaux | 88,4 | Immédiate | TVA | ||||||||||||||
| 2 | Terrasse | 6,2 | Immédiate | TVA | ||||||||||||||
| Sous-Sol | Parkings | - | Immédiate | 19 000 m² HD | TVA | |||||||||||||
| Total Cellule LOT 3 | Bureaux | 88,4 | Immédiate | 185 HT/HC/m²/an | commercial 3-6-9 ans | 3 206,6 m² HD | TVA | LOT 3 | ||||||||||
| 1 | Bureaux | 87,2 | Immédiate | TVA | ||||||||||||||
| 1 | Terrasse | 6,25 | Immédiate | TVA | ||||||||||||||
| Sous-Sol | Parkings | - | Immédiate | 19 000 m² HD | TVA | |||||||||||||
| Total Cellule LOT 4 | Bureaux | 87,2 | Immédiate | 185 HT/HC/m²/an | commercial 3-6-9 ans | 3 207,5 m² HD | TVA | LOT 4 | ||||||||||
| 1 | Bureaux | 61,5 | Immédiate | TVA | ||||||||||||||
| 1 | Terrasse | 7,4 | Immédiate | TVA | ||||||||||||||
| Sous-Sol | Parkings | - | Immédiate | 19 000 m² HD | TVA | |||||||||||||
| Total Cellule LOT 5 | Bureaux | 61,5 | Immédiate | 185 HT/HC/m²/an | commercial 3-6-9 ans | 3 294,3 m² HD | TVA | LOT 5 | ||||||||||
| 1 | Bureaux | 69,8 | Immédiate | 3 150 m² HD | TVA | |||||||||||||
| Sous-Sol | Parkings | - | Immédiate | 19 000 m² HD | TVA | |||||||||||||
| Total Cellule LOT 6 | Bureaux | 69,8 | Immédiate | 180 HT/HC/m²/an | commercial 3-6-9 ans | 3 150 m² HD | TVA | LOT 6 | ||||||||||
| Total | 440,25 m² | |||||||||||||||||
| 3 2 1 1 3 2 | ||||||||||||||||||





















































