Ref : 1420893-0V
Vente Bureau
BUREUX - A VENDRE - 69007 LYON - 305 M² et ses 5 parkings privatifs
Lyon 7 (69007)
Prix : 905 850 €
Surface 305 m²
Description du bien
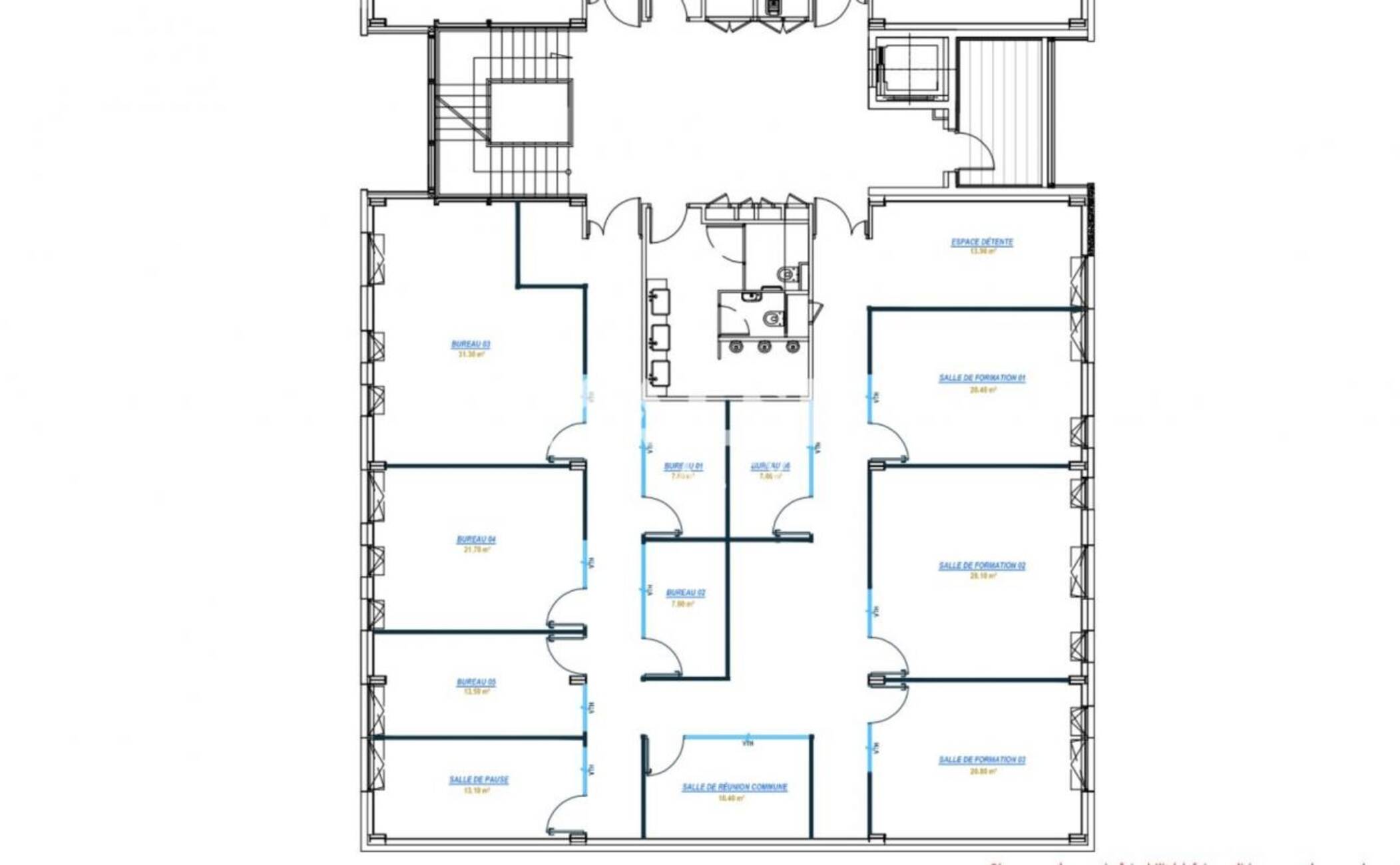
MALSH Realty vous propose à la vente un des bureaux de 305 m², situé dans le 7ème arrondissement de Lyon, à proximité du tramway T10, du périphérique et de l'autoroute. Ces bureaux, implantés dans un bâtiment sécurisé et moderne, bénéficient de prestations de qualité et sont prêts à l'emploi. Cinq places de stationnement complètent cet ensemble.
Prestations du bien
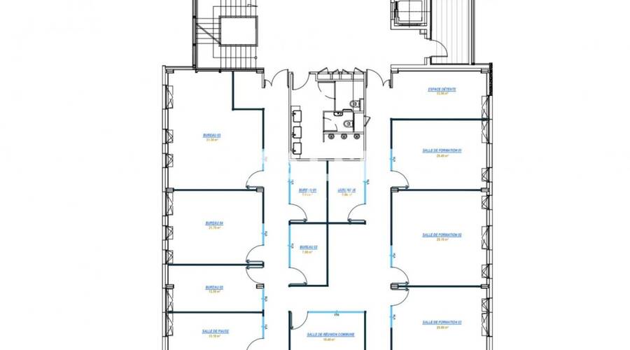
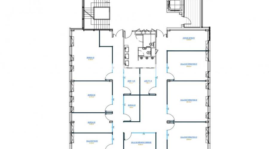
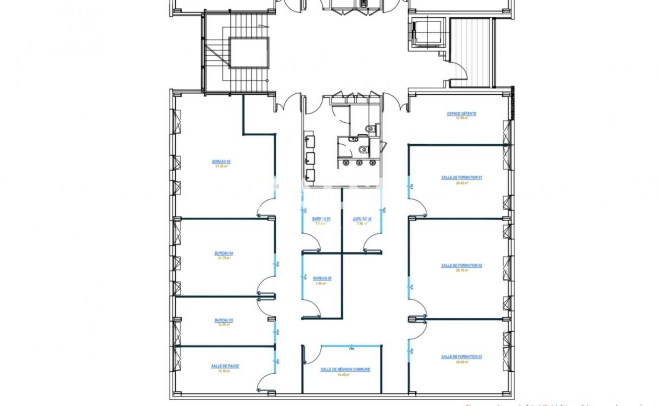
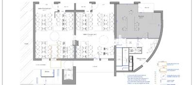
- Composition :
- - 7 Bureaux
- - 3 Salles de réunion
- - 2 Open space
- - 1 Coin cuisin
- - 1 Local technique
- - 1 Espace détente
- Prestations :
- - Bureaux et parc tertiaire sécurisé
- - Lumineux
- - Climatisation réversible
- - VMC double flux
- - Luminaires encastrés LED
- - Faux plafond
- - Cloisons amovibles
- - Câblage RJ45 et fibre optique
- - Dalles moquette au sol
- - Fenêtre doubles vitrages et stores
- - Interphone
- - Kitchenette
- - Accessibilité PMR
Informations financières
- Taxe foncière : 4 159 €
Ce local professionnel vous est présenté par
Vous souhaitez nous joindre ?
Surfaces des locaux
| Étage | Bâtiment | Type | Surfaces | Disponibilité | Loyer | Charges | Honoraires | Fiscal | Bail | Révision annuelle | Prix | Charges | Honoraires | Fiscal | Paiement Loyer | lot | Coworking | |
|---|---|---|---|---|---|---|---|---|---|---|---|---|---|---|---|---|---|---|
| R+2 | Bureaux | 305 | Immédiate | 2 970 m² HD | 11 986 m²/an HT | 5% HT du montant de la vente HDE, à la charge de l'acquéreur | Droits d'enregistrement | |||||||||||
| RDC | Parkings | - | Immédiate | 10 000 m² HD | 5% HT du montant de la vente HDE, à la charge de l'acquéreur | Droits d'enregistrement | ||||||||||||
| Sous-Sol | Parkings | - | Immédiate | 15 000 m² HD | 5% HT du montant de la vente HDE, à la charge de l'acquéreur | Droits d'enregistrement | ||||||||||||
| Total Cellule | Bureaux | 305 | Immédiate | 2 970 m² HD | 5% HT du montant de la vente HDE, à la charge de l'acquéreur | Droits d'enregistrement | ||||||||||||
| Total | 305 m² | |||||||||||||||||
| 3 2 | ||||||||||||||||||
Localisation et accessibilité
- Bus: Zi6 arrêt "Pr Bernard"
- SCNF: Port-Édouard-Herriot (Gare SNCF)
- Metro: Stade de Gerland le Lou (Ligne B), Perrache (Ligne
Ces articles peuvent vous intéresser
| Étage | Bâtiment | Type | Surfaces | Disponibilité | Loyer | Charges | Honoraires | Fiscal | Bail | Révision annuelle | Prix | Charges | Honoraires | Fiscal | Paiement Loyer | lot | Coworking | |
|---|---|---|---|---|---|---|---|---|---|---|---|---|---|---|---|---|---|---|
| R+2 | Bureaux | 305 | Immédiate | 2 970 m² HD | 11 986 m²/an HT | 5% HT du montant de la vente HDE, à la charge de l'acquéreur | Droits d'enregistrement | |||||||||||
| RDC | Parkings | - | Immédiate | 10 000 m² HD | 5% HT du montant de la vente HDE, à la charge de l'acquéreur | Droits d'enregistrement | ||||||||||||
| Sous-Sol | Parkings | - | Immédiate | 15 000 m² HD | 5% HT du montant de la vente HDE, à la charge de l'acquéreur | Droits d'enregistrement | ||||||||||||
| Total Cellule | Bureaux | 305 | Immédiate | 2 970 m² HD | 5% HT du montant de la vente HDE, à la charge de l'acquéreur | Droits d'enregistrement | ||||||||||||
| Total | 305 m² | |||||||||||||||||
| 3 2 | ||||||||||||||||||



























































