Ref : 2161112-0V
Vente Bureau
Vente Immeuble de bureaux indépendant R+3 - Centre-ville de Saint Symphorien sur Coise (69590) - 325,33 m²
Saint-Symphorien-sur-Coise (69590)
Prix : 364 000 €
Surface 325 m²
Description du bien
MALSH Realty vous propose à la vente en plein centre de Saint-Symphorien-sur-Coise, en face de la mairie, un immeuble de bureaux d'une surface totale carrez de 325,33 m² répartis sur 4 niveaux. L'ensemble présente plusieurs bureaux cloisonnés, des sanitaires sur plusieurs niveaux et un local technique / informatique. Un changement de destination vers l'habitation est envisageable, sous réserve des autorisations administratives nécessaires.
Disponible immédiatement !
Prestations du bien
- Immeuble en R+3 aménagé en bureaux
- Emplacement en hypercentre, face à la mairie
- Plusieurs espaces cloisonnés
- Sanitaires sur plusieurs niveaux
- Réserve
- Local technique / informatique
- Escaliers intérieurs desservant les étages
- Le bien est organisé sur 4 niveaux et comprend
- RDC : Entrée, dégagement, 3 bureaux, Sanitaire, réserve, espace évier - point d'eau
- 1er étage : 4 bureaux
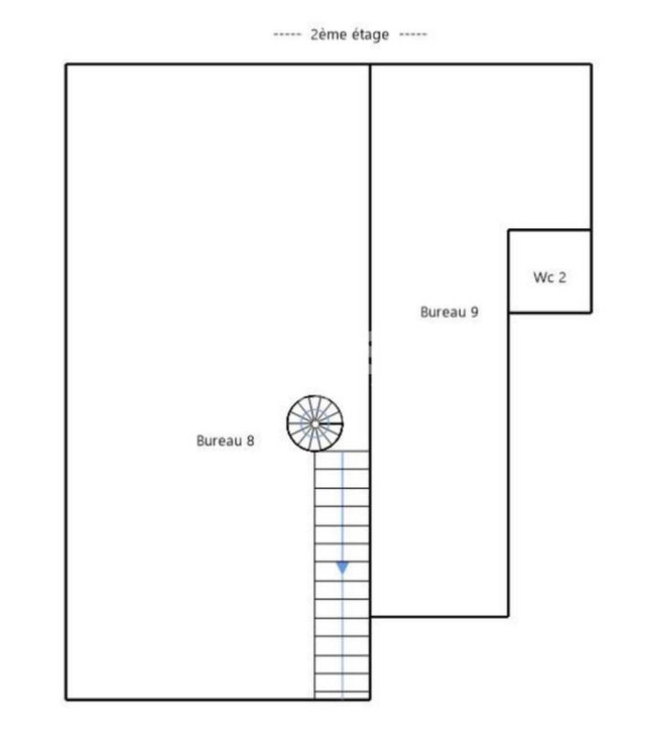
- 2ème étage : 2 bureaux et Sanitaire
- 3ème étage : 2 bureaux, dégagement et Sanitaire
- Configuration pouvant convenir à une activité tertiaire ou à un projet de reconversion, notamment à usage d'habitation sous réserve d'autorisations
- Immeuble indépendant
- Surface RDC : 44,45 m²
Ce local professionnel vous est présenté par
Vous souhaitez nous joindre ?
Surfaces des locaux
| Étage | Bâtiment | Type | Surfaces | Disponibilité | Loyer | Charges | Honoraires | Fiscal | Bail | Révision annuelle | Prix | Charges | Honoraires | Fiscal | Paiement Loyer | lot | Coworking | |
|---|---|---|---|---|---|---|---|---|---|---|---|---|---|---|---|---|---|---|
| R+3 | Bureaux | 44,45 | 2 % HT du prix de vente HDE, à la charge de l'acquéreur, payables à la signature de l'acte | Droits d'enregistrement | ||||||||||||||
| R+2 | Bureaux | 94,44 | 2 % HT du prix de vente HDE, à la charge de l'acquéreur, payables à la signature de l'acte | Droits d'enregistrement | ||||||||||||||
| R+1 | Bureaux | 94,46 | 2 % HT du prix de vente HDE, à la charge de l'acquéreur, payables à la signature de l'acte | Droits d'enregistrement | ||||||||||||||
| RDC | Bureaux | 91,98 | 2 % HT du prix de vente HDE, à la charge de l'acquéreur, payables à la signature de l'acte | Droits d'enregistrement | ||||||||||||||
| Total Cellule | Bureaux | 325,33 | Immédiate | 1 118,86 HDE/m² | 2 % HT du prix de vente HDE, à la charge de l'acquéreur, payables à la signature de l'acte | Droits d'enregistrement | ||||||||||||
| Total | 325,33 m² |
Localisation et accessibilité
Ces biens pourraient vous intéresser
| Étage | Bâtiment | Type | Surfaces | Disponibilité | Loyer | Charges | Honoraires | Fiscal | Bail | Révision annuelle | Prix | Charges | Honoraires | Fiscal | Paiement Loyer | lot | Coworking | |
|---|---|---|---|---|---|---|---|---|---|---|---|---|---|---|---|---|---|---|
| R+3 | Bureaux | 44,45 | 2 % HT du prix de vente HDE, à la charge de l'acquéreur, payables à la signature de l'acte | Droits d'enregistrement | ||||||||||||||
| R+2 | Bureaux | 94,44 | 2 % HT du prix de vente HDE, à la charge de l'acquéreur, payables à la signature de l'acte | Droits d'enregistrement | ||||||||||||||
| R+1 | Bureaux | 94,46 | 2 % HT du prix de vente HDE, à la charge de l'acquéreur, payables à la signature de l'acte | Droits d'enregistrement | ||||||||||||||
| RDC | Bureaux | 91,98 | 2 % HT du prix de vente HDE, à la charge de l'acquéreur, payables à la signature de l'acte | Droits d'enregistrement | ||||||||||||||
| Total Cellule | Bureaux | 325,33 | Immédiate | 1 118,86 HDE/m² | 2 % HT du prix de vente HDE, à la charge de l'acquéreur, payables à la signature de l'acte | Droits d'enregistrement | ||||||||||||
| Total | 325,33 m² |









































