Ref : 1129483-0V
Vente Bureau
Vente Bureaux - Bourgoin Jallieu (38300) - 908 m² divisibles à partir de 142 m²
Bourgoin-Jallieu (38300)
Prix : 2 224 086 €
Surface 908 m²
Divisible dès 142 m²
Description du bien
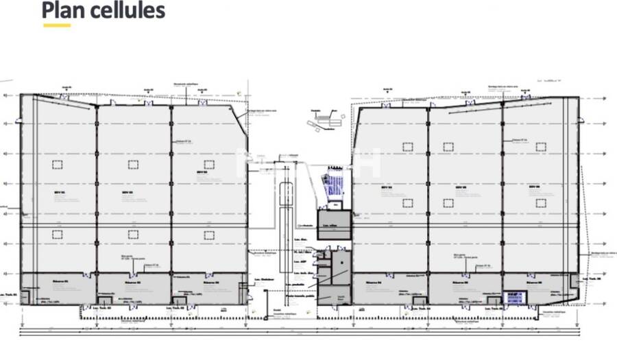
MALSH Realty & Property vous propose à la vente en VEFA au sein d'un nouveau parc en construction qui sera composé de 2 bâtiments, des bureaux neufs d'une surface totale d'environ 908 m² divisibles en 6 lots à partir de 142 m².
Nombreux emplacements de parkings extérieurs.
Prestations du bien
- Volet paysagé qualitatif, récupération des eaux pluviales par noues paysagères
- Mise en oeuvre de photovoltaïque
- Niveau RT 2012 - 20%
- Certification Label Biodivercity
- Anticipation de la RE 2020 (prise en compte de l'empreinte carbone du bâtiment)
- Utilisation de matériaux biosourcés
- Accompagnement des acquéreurs sur une démarche de certification environnementale
- Nombreux emplacements de parking extérieurs
- Stationnement introduisant un large volet pour les véhicules électriques
- Menuiseries Aluminium
- Revêtement de sol moquette
- Cloisons périphériques
- Réalisation faux plafonds
- Eclairage en faux plafonds - 2 pavés led par bureaux
- Eclairage de sécurité par Baes
- Ventilation double flux communes pour les plateaux bureaux
- Alimentation électrique en attente
Informations financières
- Honoraires de commercialisation : 2,5 % HT du montant de la vente HT, à la charge de l'acquéreur
Ce local professionnel vous est présenté par
Vous souhaitez nous joindre ?
Surfaces des locaux
| Étage | Bâtiment | Type | Surfaces | Disponibilité | Loyer | Charges | Honoraires | Fiscal | Bail | Révision annuelle | Prix | Charges | Honoraires | Fiscal | Paiement Loyer | lot | Coworking | |
|---|---|---|---|---|---|---|---|---|---|---|---|---|---|---|---|---|---|---|
| R+1 | Bureaux | 169 | Livraison à définir | 2 400,71 HT/m² | 2,5 % HT du montant de la vente HT, à la charge de l'acquéreur | TVA | 4 | |||||||||||
| R+1 | Bureaux | 154 | Livraison à définir | 2 607,77 HT/m² | 2,5 % HT du montant de la vente HT, à la charge de l'acquéreur | TVA | 6 | |||||||||||
| R+1 | Bureaux | 151 | Livraison à définir | 2 400,79 HT/m² | 2,5 % HT du montant de la vente HT, à la charge de l'acquéreur | TVA | 5 | |||||||||||
| R+1 | Bureaux | 148 | Livraison à définir | 2 403,41 HT/m² | 2,5 % HT du montant de la vente HT, à la charge de l'acquéreur | TVA | 3 | |||||||||||
| R+1 | Bureaux | 144 | Livraison à définir | 2 492,01 HT/m² | 2,5 % HT du montant de la vente HT, à la charge de l'acquéreur | TVA | 1 | |||||||||||
| R+1 | Bureaux | 142 | Livraison à définir | 2 392,23 HT/m² | 2,5 % HT du montant de la vente HT, à la charge de l'acquéreur | TVA | 2 | |||||||||||
| Total | 908 m² |
Localisation et accessibilité
- SCNF: Gare de Bourgoin Jallieu à 6 min en voiture
- Autoroute: Autoroute A43 à proximité
Ces biens pourraient vous intéresser
| Étage | Bâtiment | Type | Surfaces | Disponibilité | Loyer | Charges | Honoraires | Fiscal | Bail | Révision annuelle | Prix | Charges | Honoraires | Fiscal | Paiement Loyer | lot | Coworking | |
|---|---|---|---|---|---|---|---|---|---|---|---|---|---|---|---|---|---|---|
| R+1 | Bureaux | 169 | Livraison à définir | 2 400,71 HT/m² | 2,5 % HT du montant de la vente HT, à la charge de l'acquéreur | TVA | 4 | |||||||||||
| R+1 | Bureaux | 154 | Livraison à définir | 2 607,77 HT/m² | 2,5 % HT du montant de la vente HT, à la charge de l'acquéreur | TVA | 6 | |||||||||||
| R+1 | Bureaux | 151 | Livraison à définir | 2 400,79 HT/m² | 2,5 % HT du montant de la vente HT, à la charge de l'acquéreur | TVA | 5 | |||||||||||
| R+1 | Bureaux | 148 | Livraison à définir | 2 403,41 HT/m² | 2,5 % HT du montant de la vente HT, à la charge de l'acquéreur | TVA | 3 | |||||||||||
| R+1 | Bureaux | 144 | Livraison à définir | 2 492,01 HT/m² | 2,5 % HT du montant de la vente HT, à la charge de l'acquéreur | TVA | 1 | |||||||||||
| R+1 | Bureaux | 142 | Livraison à définir | 2 392,23 HT/m² | 2,5 % HT du montant de la vente HT, à la charge de l'acquéreur | TVA | 2 | |||||||||||
| Total | 908 m² |
















































