Ref : 2012402-0V
Vente Local d'activités
Vente Bâtiment d'Activités indépendant - Chaponost (69630) - 3 027 m²
Chaponost (69630)
Prix : 3 700 000 €
Surface 3 027 m²
Description du bien
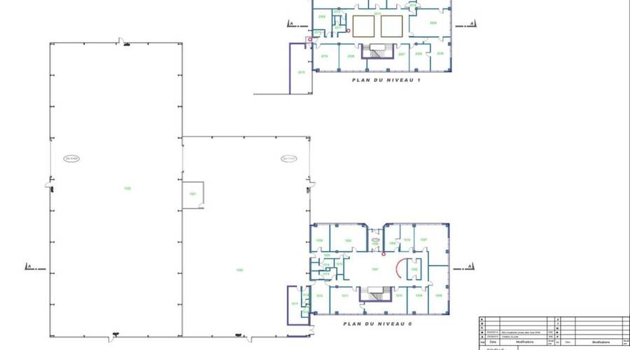
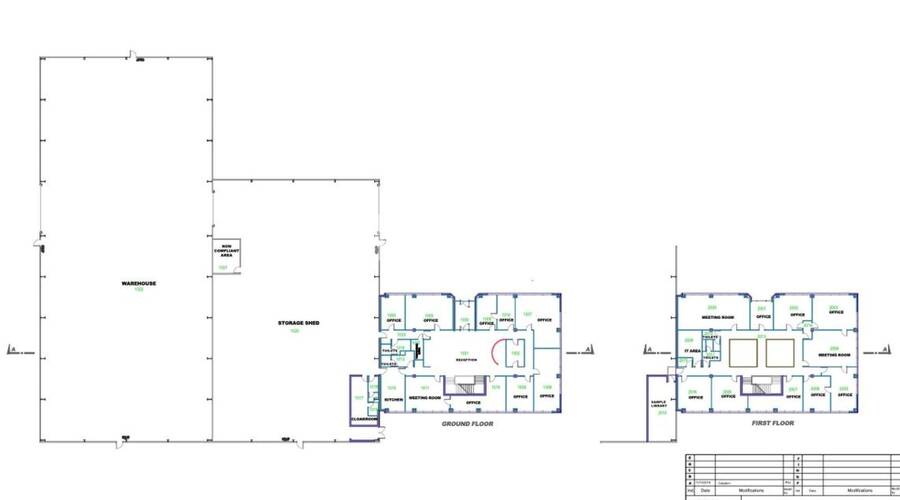
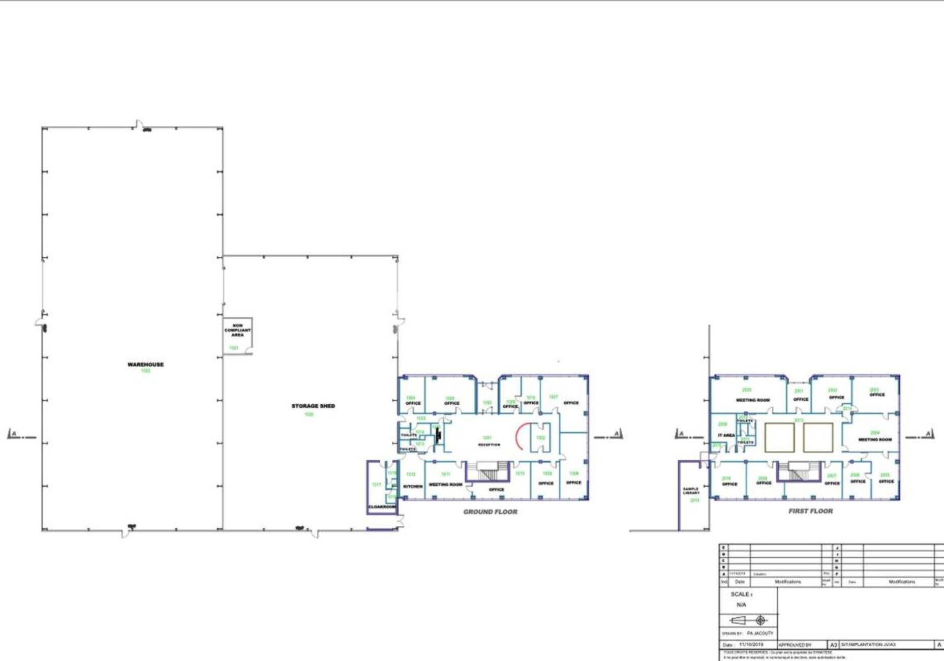
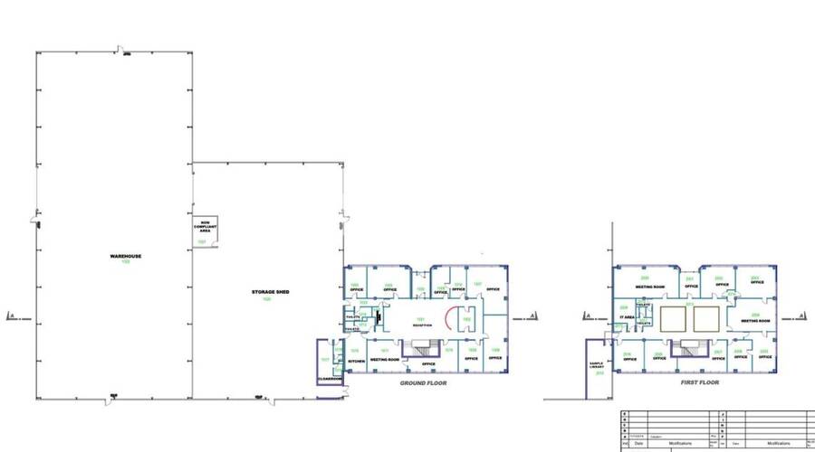
MALSH Realty vous propose à la vente dans la Zone d'activités du Caillou à Chaponost, sur un terrain indépendant et clos de 10 959 m², un bâtiment d'activités d'une surface totale d'environ 3 027 m² comprenant 2 grandes cellules d'activités et 850 m² de bureaux et locaux sociaux répartis sur 2 niveaux. Ce local est équipé d'un pont roulant, de 2 grandes portes sectionnelles et dispose d'une belle hauteur de 7 m et de nombreux stationnements.
Prestations du bien
- Voirie lourde adaptée PL
- 2 portes sectionnelles (7 m x 4,50 m)
- 1 pont roulant de 3,2 T
- Possibilité d'ajouter un quai (non existant mais réalisable)
- Nombreux stationnements
- 2 grandes cellules d'activité
- Soubassement moellons
- HSP : 7 m
- Structure : bardage double peau
- Couverture : bac acier isolé
- Sol : dalle béton anti-poussière
- Éclairage zénithal par rampes néons réglable
- Trappes de désenfumage
- RIA (Réseau incendie armé)
- Alarme + vidéo-surveillance
- Alimentation triphasée
- Vestiaires et sanitaires + douche
- Chauffage par aérotherme gaz
- Bureaux
- Hall d'accueil très grand et lumineux
- Nombreux bureaux cloisonnés
- Salle de réunion
- Local d'archive et local technique
- Cuisine / réfectoire
- Sanitaires
- Câblage informatique
- Immeuble indépendant
- Surface terrain : 10959
Ce local professionnel vous est présenté par
Vous souhaitez nous joindre ?
Surfaces des locaux
| Étage | Bâtiment | Type | Surfaces | Disponibilité | Loyer | Charges | Honoraires | Fiscal | Bail | Révision annuelle | Prix | Charges | Honoraires | Fiscal | Paiement Loyer | lot | Coworking | |
|---|---|---|---|---|---|---|---|---|---|---|---|---|---|---|---|---|---|---|
| R+1 | Bureaux | 425 | 3 % HT du prix de vente HDE, à la charge de l'acquéreur, payables à la signature de l'acte | Droits d'enregistrement | ||||||||||||||
| RDC | Activités | 2 177 | 3 % HT du prix de vente HDE, à la charge de l'acquéreur, payables à la signature de l'acte | Droits d'enregistrement | ||||||||||||||
| RDC | Bureaux | 425 | 3 % HT du prix de vente HDE, à la charge de l'acquéreur, payables à la signature de l'acte | Droits d'enregistrement | ||||||||||||||
| Total Cellule | Activités | 3 027 | Après accord | 1 222,33 HDE/m² | 3 % HT du prix de vente HDE, à la charge de l'acquéreur, payables à la signature de l'acte | Droits d'enregistrement | ||||||||||||
| Total | 3 027 m² |
Localisation et accessibilité
- Bus: Bus TCL lignes 11 et 12 à proximité immédiate
- SCNF: Gare de Francheville à 6 min
- Autoroute: Accès par l'autoroute A450
Ces biens pourraient vous intéresser
Ces articles peuvent vous intéresser
| Étage | Bâtiment | Type | Surfaces | Disponibilité | Loyer | Charges | Honoraires | Fiscal | Bail | Révision annuelle | Prix | Charges | Honoraires | Fiscal | Paiement Loyer | lot | Coworking | |
|---|---|---|---|---|---|---|---|---|---|---|---|---|---|---|---|---|---|---|
| R+1 | Bureaux | 425 | 3 % HT du prix de vente HDE, à la charge de l'acquéreur, payables à la signature de l'acte | Droits d'enregistrement | ||||||||||||||
| RDC | Activités | 2 177 | 3 % HT du prix de vente HDE, à la charge de l'acquéreur, payables à la signature de l'acte | Droits d'enregistrement | ||||||||||||||
| RDC | Bureaux | 425 | 3 % HT du prix de vente HDE, à la charge de l'acquéreur, payables à la signature de l'acte | Droits d'enregistrement | ||||||||||||||
| Total Cellule | Activités | 3 027 | Après accord | 1 222,33 HDE/m² | 3 % HT du prix de vente HDE, à la charge de l'acquéreur, payables à la signature de l'acte | Droits d'enregistrement | ||||||||||||
| Total | 3 027 m² |









































