Indisponible
Ref : 1421551-0V
Vente Local d'activités
Vente pour investisseur Local d'Activités récent actuellement loué - Civrieux (01390) - 124 m²
Civrieux (01390)
Surface 123 m²
Description du bien
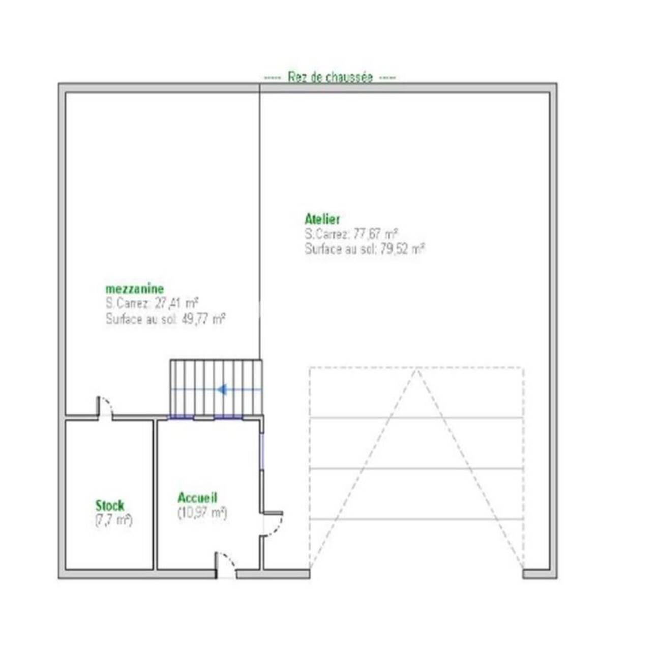
MALSH Realty vous propose à la vente au sein du Technoparc Saône Vallée à Civrieux, un local d'activités récent actuellement loué d'une surface totale carrez de 123,75 m² comprenant 85,37 m² d'activités et 38,38 m² de bureaux aménagés, climatisés et cloisonnés répartis sur 2 niveaux. Ce local dispose d'une porte sectionnelle et bénéficie d'une zone parking de 48 m² aménagé (enrobé).
Idéal pour un investisseur !
Prestations du bien
- Accès de plain-pied / Accès semi
- Bloc boîtes aux lettres à l'entrée
- Porte sectionnelle aluminium isolée (3 m x 3 m)
- Zone parking de 48 m² aménagé (enrobé)
- 2 places de stationnement privatives par lot
- Charpente métallique
- HSP d'environ 4 mètres
- Toiture en panneaux sandwich (ép. 80 mm)
- Structure : bardage double peau avec isolation laine de roche (ép. 110 mm)
- Dalle béton surfacée
- Menuiseries acier laqué avec double vitrage
- Viabilisation complète : eau potable, eaux usées, électricité, télécom
- Bureaux aménagés
- Entièrement climatisés et cloisonnés
Ce local professionnel vous est présenté par
Vous souhaitez nous joindre ?
Surfaces des locaux
| Étage | Bâtiment | Type | Surfaces | Disponibilité | Loyer | Charges | Honoraires | Fiscal | Bail | Révision annuelle | Prix | Charges | Honoraires | Fiscal | Paiement Loyer | lot | Coworking | |
|---|---|---|---|---|---|---|---|---|---|---|---|---|---|---|---|---|---|---|
| Mezzanine | Bureaux | 27,41 | 5 % HT du prix de vente HT/HD, à la charge de l'acquéreur, payables à la signature de l'acte | TVA et Droits d'enregistrement | ||||||||||||||
| RDC | Activités | 85,37 | 5 % HT du prix de vente HT/HD, à la charge de l'acquéreur, payables à la signature de l'acte | TVA et Droits d'enregistrement | ||||||||||||||
| RDC | Bureaux | 10,97 | 5 % HT du prix de vente HT/HD, à la charge de l'acquéreur, payables à la signature de l'acte | TVA et Droits d'enregistrement | ||||||||||||||
| Total Cellule A2 | Activités | 123,75 | Immédiate | 2 222,22 HT/HDE/m² | 5 % HT du prix de vente HT/HD, à la charge de l'acquéreur, payables à la signature de l'acte | TVA et Droits d'enregistrement | A2 | |||||||||||
| Total | 123,75 m² |
Localisation et accessibilité
- Autoroute: A 5 min de l'A46 direction Marseille/Grenoble (sortie 2.1 Mionnay), A 10 min de l'A46 direction Paris/Clermont (sortie 2 Trévou
Ces biens pourraient vous intéresser
Ces articles peuvent vous intéresser
| Étage | Bâtiment | Type | Surfaces | Disponibilité | Loyer | Charges | Honoraires | Fiscal | Bail | Révision annuelle | Prix | Charges | Honoraires | Fiscal | Paiement Loyer | lot | Coworking | |
|---|---|---|---|---|---|---|---|---|---|---|---|---|---|---|---|---|---|---|
| Mezzanine | Bureaux | 27,41 | 5 % HT du prix de vente HT/HD, à la charge de l'acquéreur, payables à la signature de l'acte | TVA et Droits d'enregistrement | ||||||||||||||
| RDC | Activités | 85,37 | 5 % HT du prix de vente HT/HD, à la charge de l'acquéreur, payables à la signature de l'acte | TVA et Droits d'enregistrement | ||||||||||||||
| RDC | Bureaux | 10,97 | 5 % HT du prix de vente HT/HD, à la charge de l'acquéreur, payables à la signature de l'acte | TVA et Droits d'enregistrement | ||||||||||||||
| Total Cellule A2 | Activités | 123,75 | Immédiate | 2 222,22 HT/HDE/m² | 5 % HT du prix de vente HT/HD, à la charge de l'acquéreur, payables à la signature de l'acte | TVA et Droits d'enregistrement | A2 | |||||||||||
| Total | 123,75 m² |







































































