Ref : 2146809-0
Vente Local d'activités
Vente ou Location Local d'activités - Miribel Les Echets (01700) - 1 027 m²
Miribel (01700)
Prix : 1 100 000 €
Surface 1 027 m²
Description du bien
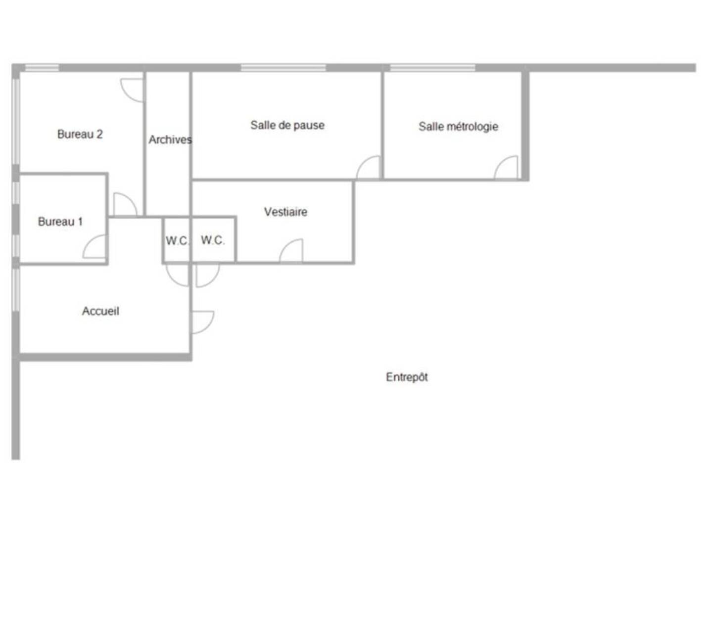
MALSH Realty vous propose à la vente ou à la location au coeur de la zone des Échets à Miribel, un local d'activités d'une surface totale d'environ 1027 m² comprenant 911 m² d'activités et 116 m² de bureaux et locaux sociaux en RDC. Ce local dispose d'une grande porte sectionnelle motorisée, d'un tarif jaune et de canalis.
Idéal pour une activité de production.
Disponibilité : Été 2026 !
Prestations du bien
- Accès de plain-pied / Accès semi
- Porte sectionnelle motorisée (4 m x 5 m)
- Parkings extérieurs
- Charpente : métallique
- Structure : fibrociment
- Couverture : bac acier / Isolation
- Sol : dalle béton
- Résistance au sol : 2T/m²
- Sanitaires / Vestiaire / Douche
- Salle de repos / repas / réunion
- Tarif jaune (85 KvA)
- Canalys
- RIA
- Chauffage aérotherme gaz
- Bureaux cloisonnés
- Stores manuels
- Secrétariat/accueil
- Bureaux de direction
- Pièce archives
- Bureaux d'étude
- Sanitaires
- Faux-plafonds
- Revêtement au sol : bois PVC
- Eclairage LED
- Climatisation réversible (2 groupes extérieurs)
Informations financières
- Charges minimales : 702 €
- Bail : commercial 3-6-9 ans
- Taxe foncière : 6 361 €
- Dépôt de garantie : 3 mois de loyer HT/HC
Ce local professionnel vous est présenté par
Vous souhaitez nous joindre ?
Surfaces des locaux
| Étage | Bâtiment | Type | Surfaces | Disponibilité | Loyer | Charges | Honoraires | Fiscal | Bail | Révision annuelle | Prix | Charges | Honoraires | Fiscal | Paiement Loyer | lot | Coworking | |
|---|---|---|---|---|---|---|---|---|---|---|---|---|---|---|---|---|---|---|
| RDC | Activités | 911 | 15 % HT du loyer annuel HT/HC à la charge du preneur, payables à la signature du bail | T.V.A. (20%) | ILAT Indice des Loyers des Activités Tertiaires | 3 % HT du prix de vente HDE, à la charge de l'acquéreur, payables à la signature de l'acte | Droits d'enregistrement | Trimestriel d'avance | ||||||||||
| RDC | Bureaux | 116 | 15 % HT du loyer annuel HT/HC à la charge du preneur, payables à la signature du bail | T.V.A. (20%) | ILAT Indice des Loyers des Activités Tertiaires | 3 % HT du prix de vente HDE, à la charge de l'acquéreur, payables à la signature de l'acte | Droits d'enregistrement | Trimestriel d'avance | ||||||||||
| Total Cellule | Activités | 1 027 | Été 2026 | 70,11 HT/HC/m²/an | 8 422 HT/an | 15 % HT du loyer annuel HT/HC à la charge du preneur, payables à la signature du bail | T.V.A. (20%) | commercial 3-6-9 ans | ILAT Indice des Loyers des Activités Tertiaires | 1 071,08 HDE/m² | 3 % HT du prix de vente HDE, à la charge de l'acquéreur, payables à la signature de l'acte | Droits d'enregistrement | Trimestriel d'avance | |||||
| Total | 1 027 m² |
Localisation et accessibilité
- SCNF: Gare Les Echets à 3 min
- Autoroute: À proximité immédiate des autoroutes A46 (Rocade Est) et A432
Ces biens pourraient vous intéresser
Ces articles peuvent vous intéresser
| Étage | Bâtiment | Type | Surfaces | Disponibilité | Loyer | Charges | Honoraires | Fiscal | Bail | Révision annuelle | Prix | Charges | Honoraires | Fiscal | Paiement Loyer | lot | Coworking | |
|---|---|---|---|---|---|---|---|---|---|---|---|---|---|---|---|---|---|---|
| RDC | Activités | 911 | 15 % HT du loyer annuel HT/HC à la charge du preneur, payables à la signature du bail | T.V.A. (20%) | ILAT Indice des Loyers des Activités Tertiaires | 3 % HT du prix de vente HDE, à la charge de l'acquéreur, payables à la signature de l'acte | Droits d'enregistrement | Trimestriel d'avance | ||||||||||
| RDC | Bureaux | 116 | 15 % HT du loyer annuel HT/HC à la charge du preneur, payables à la signature du bail | T.V.A. (20%) | ILAT Indice des Loyers des Activités Tertiaires | 3 % HT du prix de vente HDE, à la charge de l'acquéreur, payables à la signature de l'acte | Droits d'enregistrement | Trimestriel d'avance | ||||||||||
| Total Cellule | Activités | 1 027 | Été 2026 | 70,11 HT/HC/m²/an | 8 422 HT/an | 15 % HT du loyer annuel HT/HC à la charge du preneur, payables à la signature du bail | T.V.A. (20%) | commercial 3-6-9 ans | ILAT Indice des Loyers des Activités Tertiaires | 1 071,08 HDE/m² | 3 % HT du prix de vente HDE, à la charge de l'acquéreur, payables à la signature de l'acte | Droits d'enregistrement | Trimestriel d'avance | |||||
| Total | 1 027 m² |




















































