Ref : 1394002-0V
Vente Local d'activités
SAINT ETIENNE Nord - LOCAUX D'ACTIVITES - A VENDRE - A partir de 210 m²
Saint-Étienne (42000)
Prix : 9 428 265 €
Surface 6 502 m²
Divisible dès 210 m²
Description du bien
MALSH Realty propose à la vente,à la vente, des locaux d'activités neufs, à SAINT ETIENNE, à toute proximité de l'embranchement autoroutier A72 dans les deux sens LYON / CLERMONT. Des cellules à la découpe à partir de 210 m² pouvant être idéales pour une activité artisanale.
Prestations du bien
- Sur cet axe important en bordure de la zone de Molina la Chazotte, un ensemble de 3 bâtiments à usage artisanaux ou industriel au sein d'un parc entièrement clos.
- Construction :
- Structure métallique,
- Bardage double peau avec 2 couches de laine de verre (70 + 50 mm),
- Couverture bac acier, étanchéité multicouche avec isolation 120 mm,
- Dalle béton quartzée, épaisseur 15 cm,
- Hauteur libre sous gousset de 6 m mini,
- Huisseries aluminum double vitrage coulissants,
- Accès par 1 portillon et 1 portail sectionnel électrique.
- Alimentation gaz en attente, murs séparatifs en moellons.
- Stationnements privatifs en façade.
- L'ensemble est livré brut béton, fluides en attente en partie, TGBT, éclairage leds, portail et éclairage extérieur, installés.
- Une mezzanine et un aménagement personnalisé est également possible.
Ce local professionnel vous est présenté par
Vous souhaitez nous joindre ?
Surfaces des locaux
| Étage | Bâtiment | Type | Surfaces | Disponibilité | Loyer | Charges | Honoraires | Fiscal | Bail | Révision annuelle | Prix | Charges | Honoraires | Fiscal | Paiement Loyer | lot | Coworking | |
|---|---|---|---|---|---|---|---|---|---|---|---|---|---|---|---|---|---|---|
| RDC | Activités | 676,55 | 2ème Semestre 2026 | 1 450 m² HT/HDE | 2,50 % HT du montant de la vente HDE, à la charge de l'acquéreur | TVA et Droits d'enregistrement | Lot 1-03 | |||||||||||
| RDC | Activités | 317,21 | 2ème Semestre 2026 | 1 450 m² HT/HDE | 2,50 % HT du montant de la vente HDE, à la charge de l'acquéreur | TVA et Droits d'enregistrement | Lot 1-10 | |||||||||||
| RDC | Activités | 251,44 | 2ème Semestre 2026 | 1 450 m² HT/HDE | 2,50 % HT du montant de la vente HDE, à la charge de l'acquéreur | TVA et Droits d'enregistrement | Lot 1-01 | |||||||||||
| RDC | Activités | 223,04 | 2ème Semestre 2026 | 1 450 m² HT/HDE | 2,50 % HT du montant de la vente HDE, à la charge de l'acquéreur | TVA et Droits d'enregistrement | Lot 1-02 | |||||||||||
| RDC | Activités | 214,14 | 2ème Semestre 2026 | 1 450 m² HT/HDE | 2,50 % HT du montant de la vente HDE, à la charge de l'acquéreur | TVA et Droits d'enregistrement | Lot 1-04 | |||||||||||
| RDC | Activités | 210,43 | 2ème Semestre 2026 | 1 450 m² HT/HDE | 2,50 % HT du montant de la vente HDE, à la charge de l'acquéreur | TVA et Droits d'enregistrement | Lot 1-07 | |||||||||||
| RDC | Activités | 210,42 | 2ème Semestre 2026 | 1 450 m² HT/HDE | 2,50 % HT du montant de la vente HDE, à la charge de l'acquéreur | TVA et Droits d'enregistrement | Lot 1-05 | |||||||||||
| RDC | Activités | 210,42 | 2ème Semestre 2026 | 1 450 m² HT/HDE | 2,50 % HT du montant de la vente HDE, à la charge de l'acquéreur | TVA et Droits d'enregistrement | Lot 1-06 | |||||||||||
| RDC | Activités | 210,42 | 2ème Semestre 2026 | 1 450 m² HT/HDE | 2,50 % HT du montant de la vente HDE, à la charge de l'acquéreur | TVA et Droits d'enregistrement | Lot 1-08 | |||||||||||
| RDC | Activités | 210,38 | 2ème Semestre 2026 | 1 450 m² HT/HDE | 2,50 % HT du montant de la vente HDE, à la charge de l'acquéreur | TVA et Droits d'enregistrement | Lot 1-09 | |||||||||||
| RDC | Activités | 2 128,09 | 2ème Semestre 2026 | 1 450 m² HT/HDE | 2,50 % HT du montant de la vente HDE, à la charge de l'acquéreur | TVA et Droits d'enregistrement | Lot 2-01 | |||||||||||
| RDC | Activités | 343,83 | 2ème Semestre 2026 | 1 450 m² HT/HDE | 2,50 % HT du montant de la vente HDE, à la charge de l'acquéreur | TVA et Droits d'enregistrement | Lot 2-03 | |||||||||||
| RDC | Activités | 222,8 | 2ème Semestre 2026 | 1 450 m² HT/HDE | 2,50 % HT du montant de la vente HDE, à la charge de l'acquéreur | TVA et Droits d'enregistrement | Lot 2-02 | |||||||||||
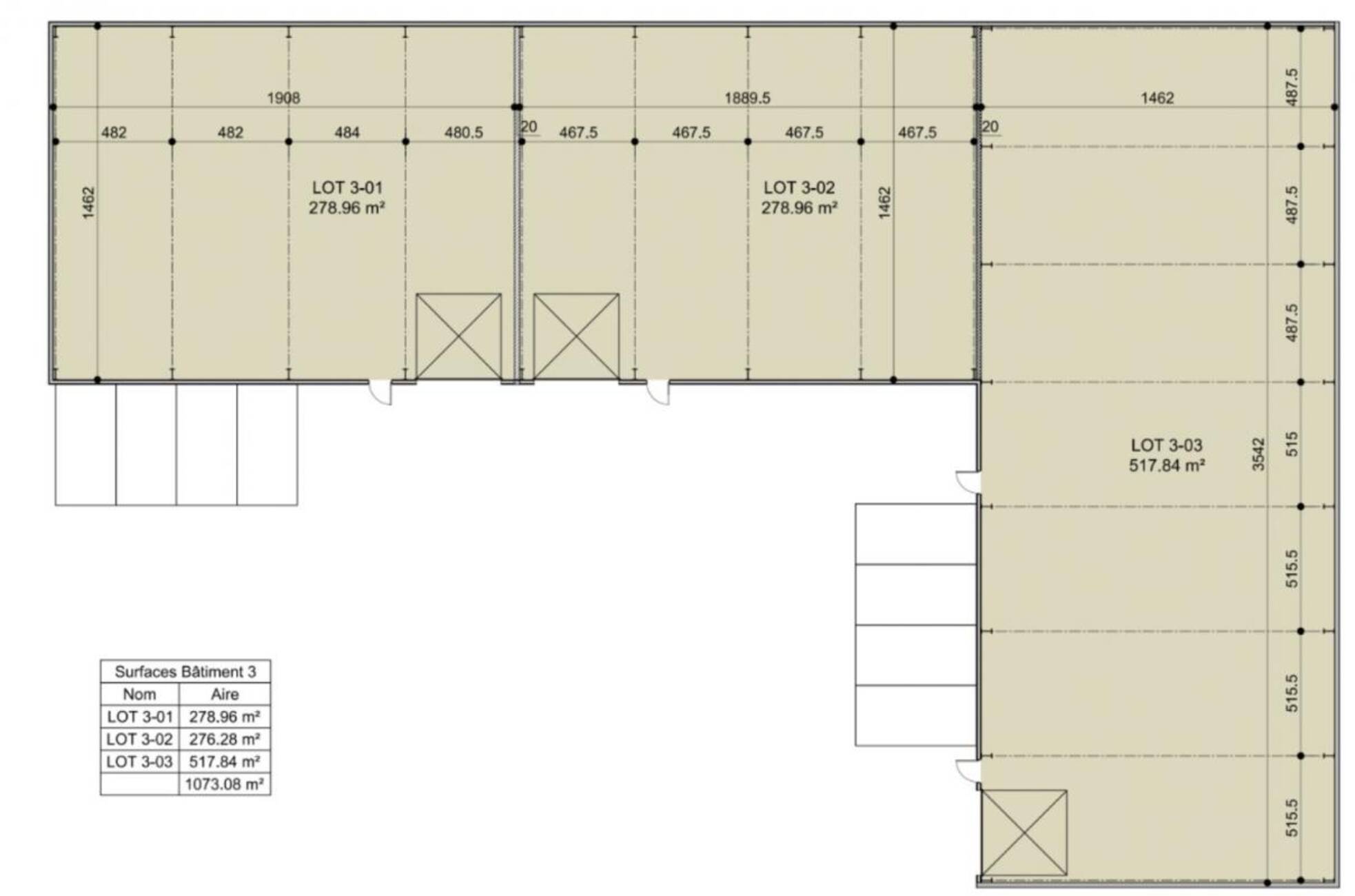
| RDC | Activités | 517,84 | 2ème Semestre 2026 | 1 450 m² HT/HDE | 2,50 % HT du montant de la vente HDE, à la charge de l'acquéreur | TVA et Droits d'enregistrement | Lot 3-03 | |||||||||||
| RDC | Activités | 278,96 | 2ème Semestre 2026 | 1 450 m² HT/HDE | 2,50 % HT du montant de la vente HDE, à la charge de l'acquéreur | TVA et Droits d'enregistrement | Lot 3-01 | |||||||||||
| RDC | Activités | 276,28 | 2ème Semestre 2026 | 1 450 m² HT/HDE | 2,50 % HT du montant de la vente HDE, à la charge de l'acquéreur | TVA et Droits d'enregistrement | Lot 3-02 | |||||||||||
| Total | 6 502,25 m² |
Localisation et accessibilité
- Bus: Ligne 14, Saint Etienne Châteaucreux - Sorbiers
- SCNF: Chateaucreux Gare SNCF)
- Autoroute: A72 - Sortie La Talaudière à 500 m
Ces biens pourraient vous intéresser
Ces articles peuvent vous intéresser
| Étage | Bâtiment | Type | Surfaces | Disponibilité | Loyer | Charges | Honoraires | Fiscal | Bail | Révision annuelle | Prix | Charges | Honoraires | Fiscal | Paiement Loyer | lot | Coworking | |
|---|---|---|---|---|---|---|---|---|---|---|---|---|---|---|---|---|---|---|
| RDC | Activités | 676,55 | 2ème Semestre 2026 | 1 450 m² HT/HDE | 2,50 % HT du montant de la vente HDE, à la charge de l'acquéreur | TVA et Droits d'enregistrement | Lot 1-03 | |||||||||||
| RDC | Activités | 317,21 | 2ème Semestre 2026 | 1 450 m² HT/HDE | 2,50 % HT du montant de la vente HDE, à la charge de l'acquéreur | TVA et Droits d'enregistrement | Lot 1-10 | |||||||||||
| RDC | Activités | 251,44 | 2ème Semestre 2026 | 1 450 m² HT/HDE | 2,50 % HT du montant de la vente HDE, à la charge de l'acquéreur | TVA et Droits d'enregistrement | Lot 1-01 | |||||||||||
| RDC | Activités | 223,04 | 2ème Semestre 2026 | 1 450 m² HT/HDE | 2,50 % HT du montant de la vente HDE, à la charge de l'acquéreur | TVA et Droits d'enregistrement | Lot 1-02 | |||||||||||
| RDC | Activités | 214,14 | 2ème Semestre 2026 | 1 450 m² HT/HDE | 2,50 % HT du montant de la vente HDE, à la charge de l'acquéreur | TVA et Droits d'enregistrement | Lot 1-04 | |||||||||||
| RDC | Activités | 210,43 | 2ème Semestre 2026 | 1 450 m² HT/HDE | 2,50 % HT du montant de la vente HDE, à la charge de l'acquéreur | TVA et Droits d'enregistrement | Lot 1-07 | |||||||||||
| RDC | Activités | 210,42 | 2ème Semestre 2026 | 1 450 m² HT/HDE | 2,50 % HT du montant de la vente HDE, à la charge de l'acquéreur | TVA et Droits d'enregistrement | Lot 1-05 | |||||||||||
| RDC | Activités | 210,42 | 2ème Semestre 2026 | 1 450 m² HT/HDE | 2,50 % HT du montant de la vente HDE, à la charge de l'acquéreur | TVA et Droits d'enregistrement | Lot 1-06 | |||||||||||
| RDC | Activités | 210,42 | 2ème Semestre 2026 | 1 450 m² HT/HDE | 2,50 % HT du montant de la vente HDE, à la charge de l'acquéreur | TVA et Droits d'enregistrement | Lot 1-08 | |||||||||||
| RDC | Activités | 210,38 | 2ème Semestre 2026 | 1 450 m² HT/HDE | 2,50 % HT du montant de la vente HDE, à la charge de l'acquéreur | TVA et Droits d'enregistrement | Lot 1-09 | |||||||||||
| RDC | Activités | 2 128,09 | 2ème Semestre 2026 | 1 450 m² HT/HDE | 2,50 % HT du montant de la vente HDE, à la charge de l'acquéreur | TVA et Droits d'enregistrement | Lot 2-01 | |||||||||||
| RDC | Activités | 343,83 | 2ème Semestre 2026 | 1 450 m² HT/HDE | 2,50 % HT du montant de la vente HDE, à la charge de l'acquéreur | TVA et Droits d'enregistrement | Lot 2-03 | |||||||||||
| RDC | Activités | 222,8 | 2ème Semestre 2026 | 1 450 m² HT/HDE | 2,50 % HT du montant de la vente HDE, à la charge de l'acquéreur | TVA et Droits d'enregistrement | Lot 2-02 | |||||||||||
| RDC | Activités | 517,84 | 2ème Semestre 2026 | 1 450 m² HT/HDE | 2,50 % HT du montant de la vente HDE, à la charge de l'acquéreur | TVA et Droits d'enregistrement | Lot 3-03 | |||||||||||
| RDC | Activités | 278,96 | 2ème Semestre 2026 | 1 450 m² HT/HDE | 2,50 % HT du montant de la vente HDE, à la charge de l'acquéreur | TVA et Droits d'enregistrement | Lot 3-01 | |||||||||||
| RDC | Activités | 276,28 | 2ème Semestre 2026 | 1 450 m² HT/HDE | 2,50 % HT du montant de la vente HDE, à la charge de l'acquéreur | TVA et Droits d'enregistrement | Lot 3-02 | |||||||||||
| Total | 6 502,25 m² |






























