Ref : 1240440-0V
Vente Local d'activités
Vente Locaux d'Activités neufs - Saint Genis Laval (69230) - 948 m² divisibles à partir de 230 m²
Saint-Genis-Laval (69230)
Prix : 1 638 600 €
Surface 948 m²
Divisible dès 230 m²
Description du bien
MALSH Realty vous propose à la vente, au sein d'un nouveau parc d'activités d'environ 3 000 m² à Saint-Genis-Laval, des cellules d'activités neuves allant de 230 m² à 253 m². Ces locaux se situent à proximité immédiate de l'A450 sur la commune de Saint-Genis-Laval. L'ensemble des locaux est livré brut (fluides en attente). Ensemble architectural soigné construit dans le respect des normes environnementales.
Disponible immédiatement !
Prestations du bien
- Accès de plain-pied / Accès semi
- Portail automatique
- Toiture: photovoltaïque
- Mezzanine en R+1 livrée brut , escalier et garde- corps fournis
- Livrée brut fluides en attente
- Porte sectionnelle électrique 3 m x 3.50 m
- Charpente : métallique
- Hauteur maximale sous poutre : 7 m
- Structure : bardage double peau
- Couverture : bac acier / Isolation
- Sol : dalle industrielle
- Tarif électrique bleu
- Skydomes
- Fourreaux sur places de parkings pour branchement électriques
Ce local professionnel vous est présenté par
Vous souhaitez nous joindre ?
Surfaces des locaux
| Étage | Bâtiment | Type | Surfaces | Disponibilité | Loyer | Charges | Honoraires | Fiscal | Bail | Révision annuelle | Prix | Charges | Honoraires | Fiscal | Paiement Loyer | lot | Coworking | |
|---|---|---|---|---|---|---|---|---|---|---|---|---|---|---|---|---|---|---|
| Activités | 168 | 3 % HT du prix de vente HT, à la charge de l'acquéreur, payables à la signature de l'acte | TVA et Droits d'enregistrement | |||||||||||||||
| Mezzanine | 62 | 3 % HT du prix de vente HT, à la charge de l'acquéreur, payables à la signature de l'acte | TVA et Droits d'enregistrement | |||||||||||||||
| Parkings | - | 3 % HT du prix de vente HT, à la charge de l'acquéreur, payables à la signature de l'acte | TVA et Droits d'enregistrement | |||||||||||||||
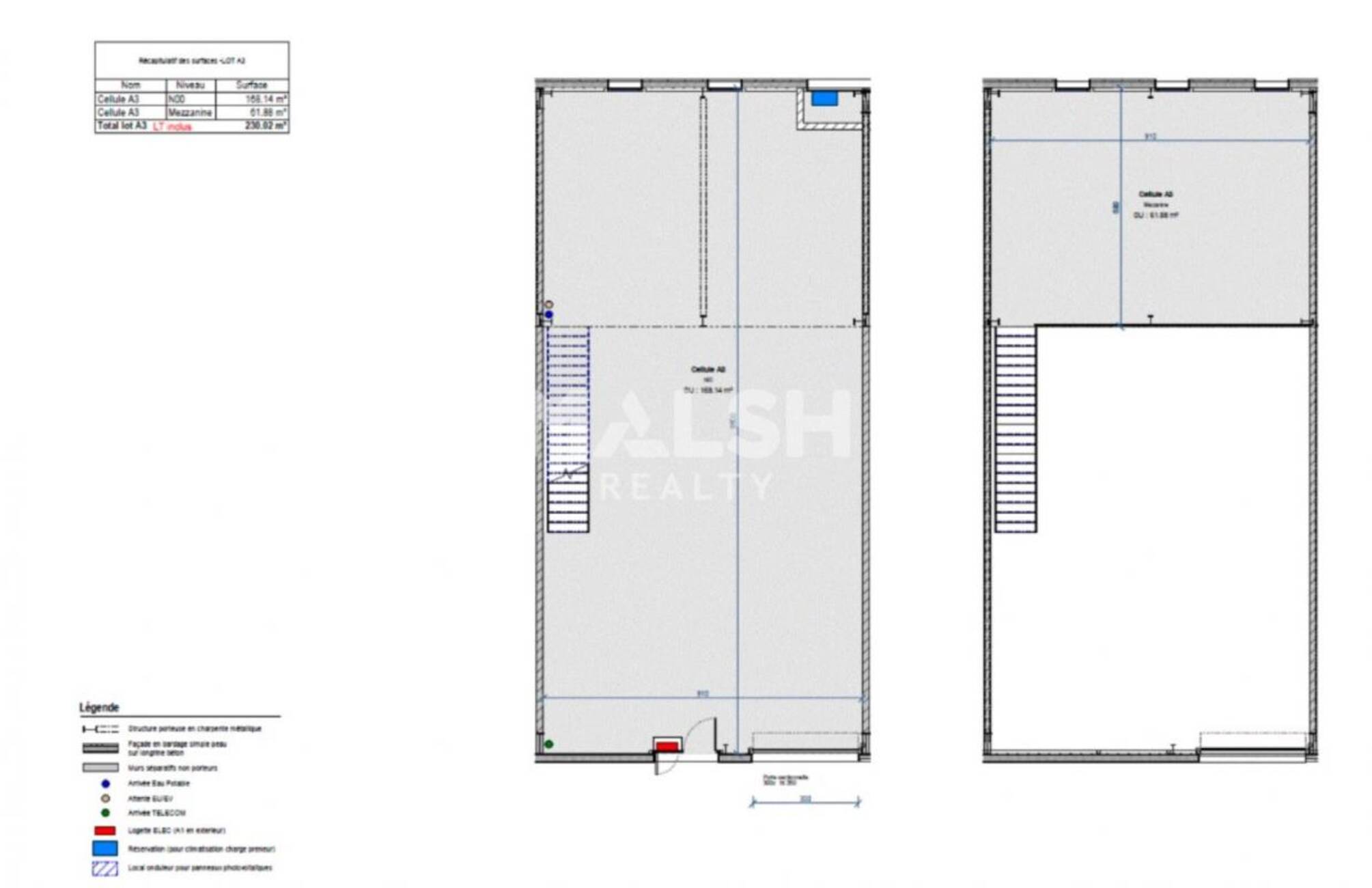
| Total Cellule A3 | Activités | 230 | Immédiate | 1 735,58 HT/m² | 3 % HT du prix de vente HT, à la charge de l'acquéreur, payables à la signature de l'acte | TVA et Droits d'enregistrement | A3 | |||||||||||
| Activités | 172 | 3 % HT du prix de vente HT, à la charge de l'acquéreur, payables à la signature de l'acte | TVA et Droits d'enregistrement | |||||||||||||||
| Mezzanine | 63 | 3 % HT du prix de vente HT, à la charge de l'acquéreur, payables à la signature de l'acte | TVA et Droits d'enregistrement | |||||||||||||||
| Parkings | - | 3 % HT du prix de vente HT, à la charge de l'acquéreur, payables à la signature de l'acte | TVA et Droits d'enregistrement | |||||||||||||||
| Total Cellule A4 | Activités | 235 | Immédiate | 1 735,97 HT/m² | 3 % HT du prix de vente HT, à la charge de l'acquéreur, payables à la signature de l'acte | TVA et Droits d'enregistrement | A4 | |||||||||||
| Activités | 168 | 3 % HT du prix de vente HT, à la charge de l'acquéreur, payables à la signature de l'acte | TVA et Droits d'enregistrement | |||||||||||||||
| Mezzanine | 62 | 3 % HT du prix de vente HT, à la charge de l'acquéreur, payables à la signature de l'acte | TVA et Droits d'enregistrement | |||||||||||||||
| Parkings | - | 3 % HT du prix de vente HT, à la charge de l'acquéreur, payables à la signature de l'acte | TVA et Droits d'enregistrement | |||||||||||||||
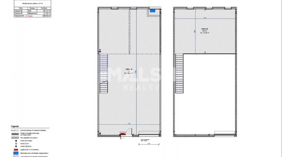
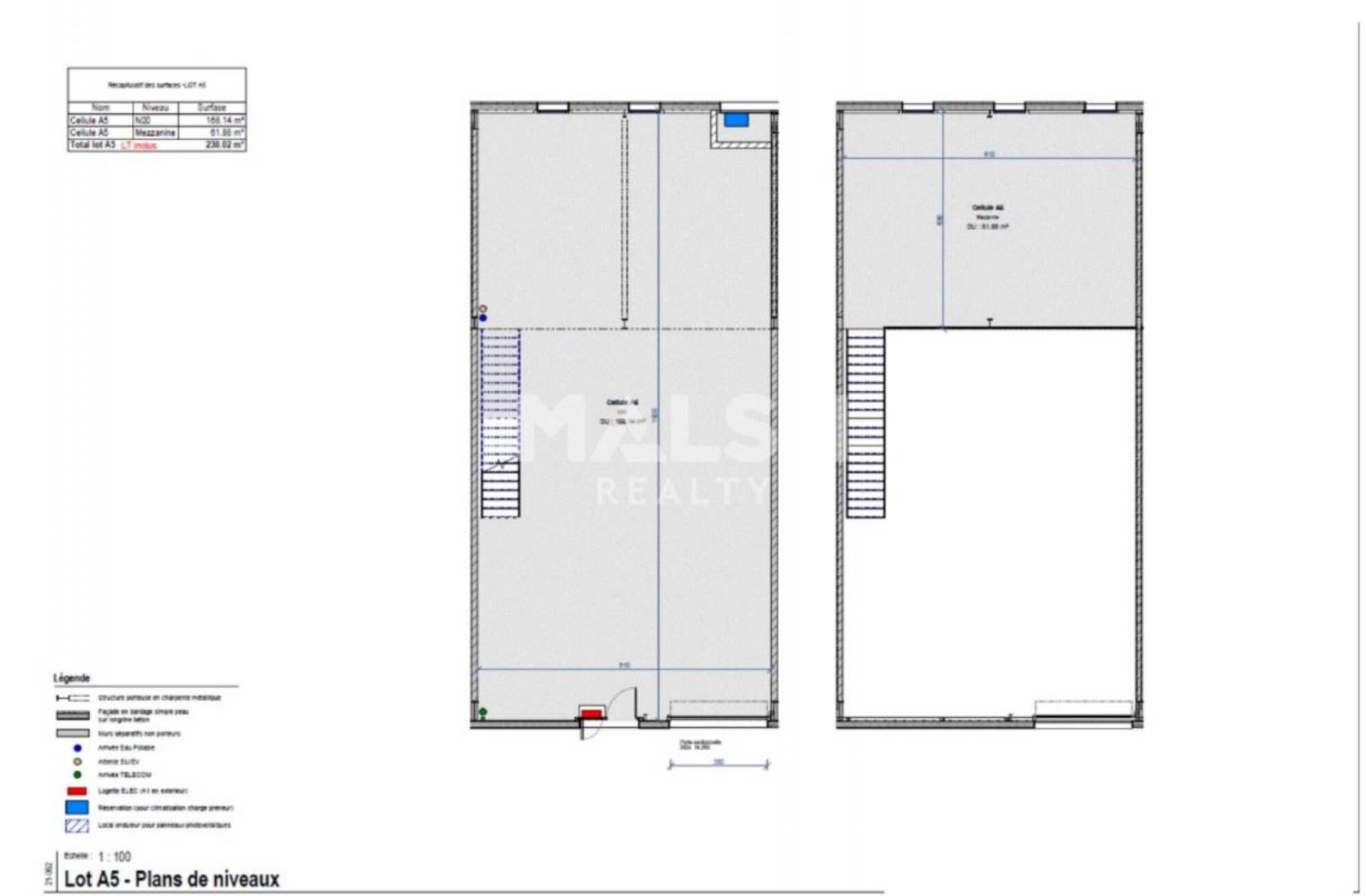
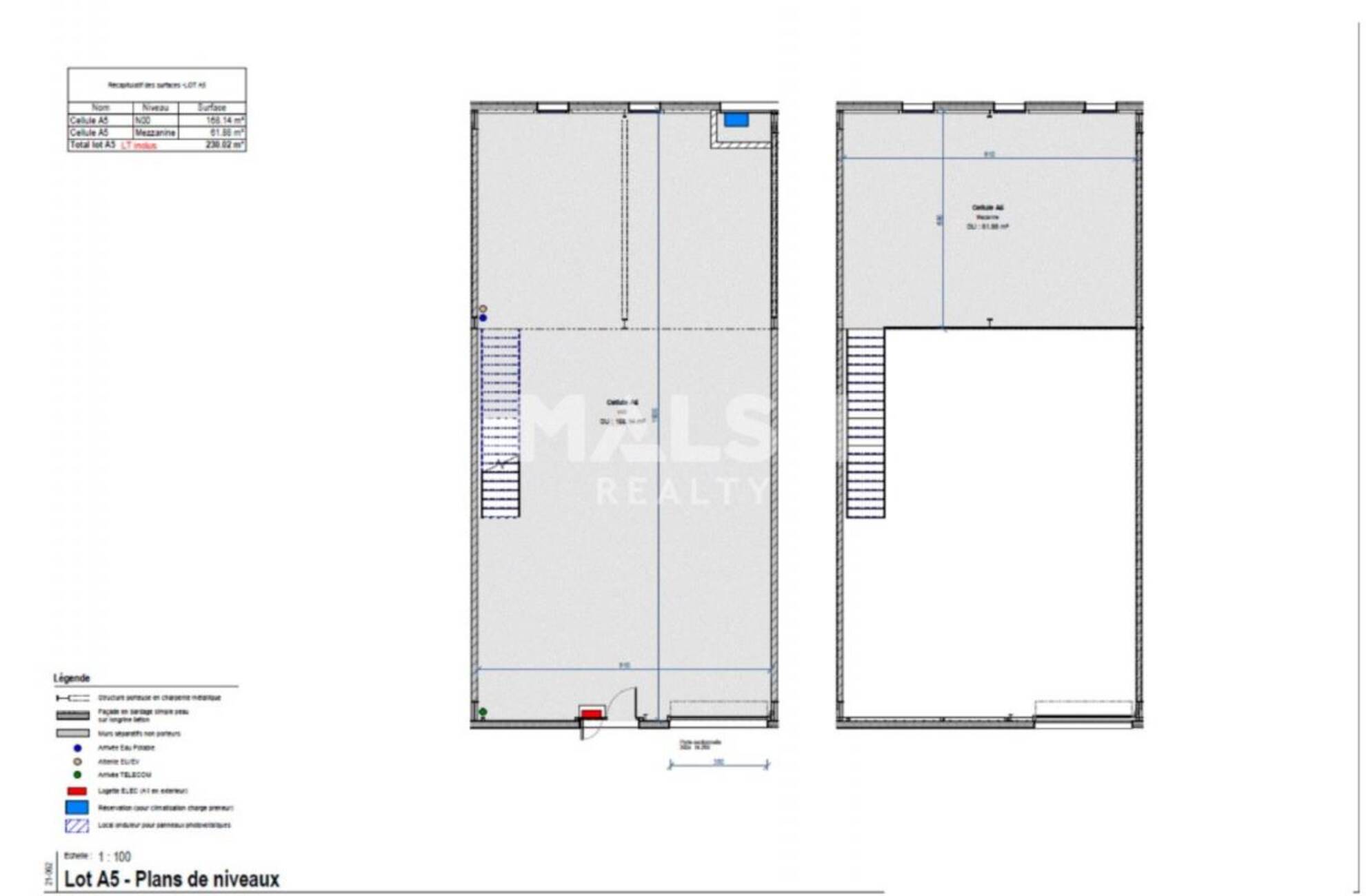
| Total Cellule A5 | Activités | 230 | Immédiate | 1 735,58 HT/m² | 3 % HT du prix de vente HT, à la charge de l'acquéreur, payables à la signature de l'acte | TVA et Droits d'enregistrement | A5 | |||||||||||
| Activités | 185 | 3 % HT du prix de vente HT, à la charge de l'acquéreur, payables à la signature de l'acte | TVA et Droits d'enregistrement | |||||||||||||||
| Mezzanine | 68 | 3 % HT du prix de vente HT, à la charge de l'acquéreur, payables à la signature de l'acte | TVA et Droits d'enregistrement | |||||||||||||||
| Parkings | - | 3 % HT du prix de vente HT, à la charge de l'acquéreur, payables à la signature de l'acte | TVA et Droits d'enregistrement | |||||||||||||||
| Total Cellule A6 | Activités | 253 | Immédiate | 1 708,62 HT/m² | 3 % HT du prix de vente HT, à la charge de l'acquéreur, payables à la signature de l'acte | TVA et Droits d'enregistrement | A6 | |||||||||||
| Total | 948 m² | |||||||||||||||||
| 3 Parkings ext. 3 Parkings ext. 3 Parkings ext. 2 Parkings ext. | ||||||||||||||||||
Localisation et accessibilité
- Bus: Bus TCL lignes 12, 17 et 88 à 500 m
- Metro: Métro ligne B station "St Genis Laval Hôpital Sud"
- Autoroute: Accès immédiate à l'autoroute A450 et à l'autoroute A7
Ces biens pourraient vous intéresser
Ces articles peuvent vous intéresser
| Étage | Bâtiment | Type | Surfaces | Disponibilité | Loyer | Charges | Honoraires | Fiscal | Bail | Révision annuelle | Prix | Charges | Honoraires | Fiscal | Paiement Loyer | lot | Coworking | |
|---|---|---|---|---|---|---|---|---|---|---|---|---|---|---|---|---|---|---|
| Activités | 168 | 3 % HT du prix de vente HT, à la charge de l'acquéreur, payables à la signature de l'acte | TVA et Droits d'enregistrement | |||||||||||||||
| Mezzanine | 62 | 3 % HT du prix de vente HT, à la charge de l'acquéreur, payables à la signature de l'acte | TVA et Droits d'enregistrement | |||||||||||||||
| Parkings | - | 3 % HT du prix de vente HT, à la charge de l'acquéreur, payables à la signature de l'acte | TVA et Droits d'enregistrement | |||||||||||||||
| Total Cellule A3 | Activités | 230 | Immédiate | 1 735,58 HT/m² | 3 % HT du prix de vente HT, à la charge de l'acquéreur, payables à la signature de l'acte | TVA et Droits d'enregistrement | A3 | |||||||||||
| Activités | 172 | 3 % HT du prix de vente HT, à la charge de l'acquéreur, payables à la signature de l'acte | TVA et Droits d'enregistrement | |||||||||||||||
| Mezzanine | 63 | 3 % HT du prix de vente HT, à la charge de l'acquéreur, payables à la signature de l'acte | TVA et Droits d'enregistrement | |||||||||||||||
| Parkings | - | 3 % HT du prix de vente HT, à la charge de l'acquéreur, payables à la signature de l'acte | TVA et Droits d'enregistrement | |||||||||||||||
| Total Cellule A4 | Activités | 235 | Immédiate | 1 735,97 HT/m² | 3 % HT du prix de vente HT, à la charge de l'acquéreur, payables à la signature de l'acte | TVA et Droits d'enregistrement | A4 | |||||||||||
| Activités | 168 | 3 % HT du prix de vente HT, à la charge de l'acquéreur, payables à la signature de l'acte | TVA et Droits d'enregistrement | |||||||||||||||
| Mezzanine | 62 | 3 % HT du prix de vente HT, à la charge de l'acquéreur, payables à la signature de l'acte | TVA et Droits d'enregistrement | |||||||||||||||
| Parkings | - | 3 % HT du prix de vente HT, à la charge de l'acquéreur, payables à la signature de l'acte | TVA et Droits d'enregistrement | |||||||||||||||
| Total Cellule A5 | Activités | 230 | Immédiate | 1 735,58 HT/m² | 3 % HT du prix de vente HT, à la charge de l'acquéreur, payables à la signature de l'acte | TVA et Droits d'enregistrement | A5 | |||||||||||
| Activités | 185 | 3 % HT du prix de vente HT, à la charge de l'acquéreur, payables à la signature de l'acte | TVA et Droits d'enregistrement | |||||||||||||||
| Mezzanine | 68 | 3 % HT du prix de vente HT, à la charge de l'acquéreur, payables à la signature de l'acte | TVA et Droits d'enregistrement | |||||||||||||||
| Parkings | - | 3 % HT du prix de vente HT, à la charge de l'acquéreur, payables à la signature de l'acte | TVA et Droits d'enregistrement | |||||||||||||||
| Total Cellule A6 | Activités | 253 | Immédiate | 1 708,62 HT/m² | 3 % HT du prix de vente HT, à la charge de l'acquéreur, payables à la signature de l'acte | TVA et Droits d'enregistrement | A6 | |||||||||||
| Total | 948 m² | |||||||||||||||||
| 3 Parkings ext. 3 Parkings ext. 3 Parkings ext. 2 Parkings ext. | ||||||||||||||||||































































