Ref : 2143792-0V
Vente Local d'activités
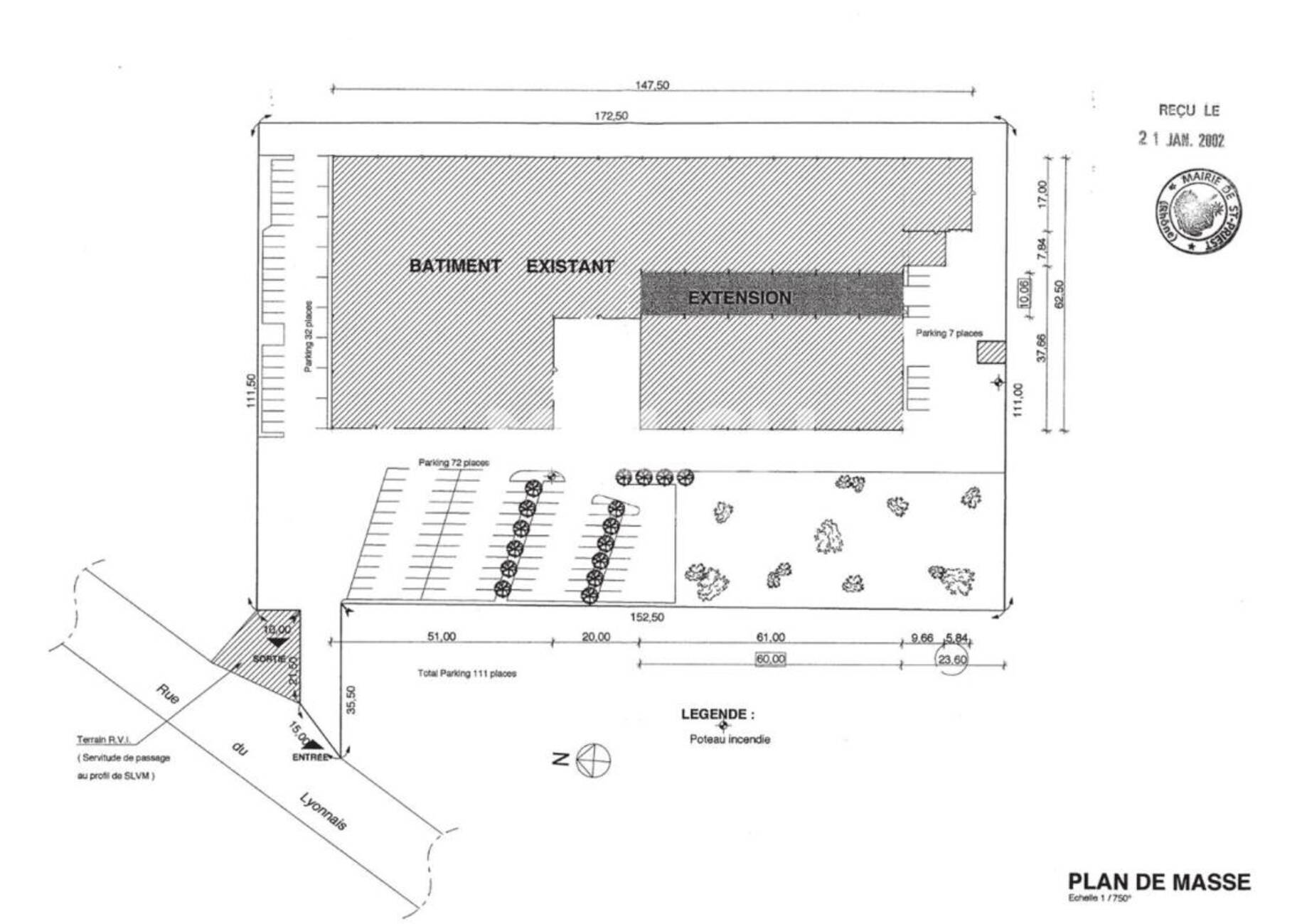
Vente Bâtiment d'Activités indépendant de 9232 m² sur son terrain de 18 441 m² - Saint Priest (69800) - 9 232 m²
Saint-Priest (69800)
Prix : 6 245 000 €
Surface 9 232 m²
Description du bien
MALSH Realty vous propose à la vente un site industriel indépendant de grande envergure, situé au coeur de la Zone Industrielle de l'Est Lyonnais, sur la commune de Saint-Priest. Développant une surface totale de 9 232 m², sur un terrain de 18 441 m², cet actif est parfaitement adapté à une activité industrielle structurée, logistique ou productive à forte intensité.
Disponible immédiatement !
Prestations du bien
- Site dimensionné pour circulation poids lourds
- Aires de manoeuvre adaptées
- Terrain majoritairement en enrobé, voiries lourdes en bon état
- Bassin de rétention
- Nombreuses portes sectionnelles de plain-pied
- Plus de 100 places de stationnement sur site
- Charpente béton
- Grande hauteur utile comprise entre 6 et 8 m
- Dalle industrielle
- Alimentation électrique tarif vert
- 4 transformateurs totalisant 4 480 kVA, soit environ 4 MW réellement exploitables
- Un renforcement du poste HTA pourrait permettre d'atteindre 6 à 8 MW.
- Chauffage par aérothermes gaz
- Bureaux cloisonnés répartis sur plusieurs niveaux
- Faux-plafonds
- Éclairage LED / néons
- Réfectoire aménagé
- Sanitaires
- Vestiaires H/F distincts
- Locaux sociaux complets
- Chauffage / Climatisation
- Immeuble indépendant
- Surface terrain : 18441
Informations financières
- Taxe foncière : 40 582 €
Ce local professionnel vous est présenté par
Vous souhaitez nous joindre ?
Surfaces des locaux
| Étage | Bâtiment | Type | Surfaces | Disponibilité | Loyer | Charges | Honoraires | Fiscal | Bail | Révision annuelle | Prix | Charges | Honoraires | Fiscal | Paiement Loyer | lot | Coworking | |
|---|---|---|---|---|---|---|---|---|---|---|---|---|---|---|---|---|---|---|
| RDC + R+1 | Locaux sociaux | 277 | 2,5 % HT du prix de vente HDE, à la charge de l'acquéreur, payables à la signature de l'acte | Droits d'enregistrement | ||||||||||||||
| R+1 | Bureaux | 1 030 | 2,5 % HT du prix de vente HDE, à la charge de l'acquéreur, payables à la signature de l'acte | Droits d'enregistrement | ||||||||||||||
| RDC | Activités | 7 794 | 2,5 % HT du prix de vente HDE, à la charge de l'acquéreur, payables à la signature de l'acte | Droits d'enregistrement | ||||||||||||||
| RDC | Bureaux | 131 | 2,5 % HT du prix de vente HDE, à la charge de l'acquéreur, payables à la signature de l'acte | Droits d'enregistrement | ||||||||||||||
| Total Cellule | Activités | 9 232 | Immédiate | 676,45 HDE/m² | 2,5 % HT du prix de vente HDE, à la charge de l'acquéreur, payables à la signature de l'acte | Droits d'enregistrement | ||||||||||||
| Total | 9 232 m² |
Localisation et accessibilité
- Bus: Bus TCL lignes C25 et 62
- SCNF: Gare TER de Saint-Priest à 5 min
- Tramway: Tramway ligne T2 en 13 min via la ligne de bus C25 et en 17 min via la ligne de bus 62
- Autoroute: A proximité du Boulevard Périphérique Laurent Bonnevay, de la Rocade Est ('A46) et de l'A43
Ces biens pourraient vous intéresser
| Étage | Bâtiment | Type | Surfaces | Disponibilité | Loyer | Charges | Honoraires | Fiscal | Bail | Révision annuelle | Prix | Charges | Honoraires | Fiscal | Paiement Loyer | lot | Coworking | |
|---|---|---|---|---|---|---|---|---|---|---|---|---|---|---|---|---|---|---|
| RDC + R+1 | Locaux sociaux | 277 | 2,5 % HT du prix de vente HDE, à la charge de l'acquéreur, payables à la signature de l'acte | Droits d'enregistrement | ||||||||||||||
| R+1 | Bureaux | 1 030 | 2,5 % HT du prix de vente HDE, à la charge de l'acquéreur, payables à la signature de l'acte | Droits d'enregistrement | ||||||||||||||
| RDC | Activités | 7 794 | 2,5 % HT du prix de vente HDE, à la charge de l'acquéreur, payables à la signature de l'acte | Droits d'enregistrement | ||||||||||||||
| RDC | Bureaux | 131 | 2,5 % HT du prix de vente HDE, à la charge de l'acquéreur, payables à la signature de l'acte | Droits d'enregistrement | ||||||||||||||
| Total Cellule | Activités | 9 232 | Immédiate | 676,45 HDE/m² | 2,5 % HT du prix de vente HDE, à la charge de l'acquéreur, payables à la signature de l'acte | Droits d'enregistrement | ||||||||||||
| Total | 9 232 m² |



































































