Ref : 1125264-0L
Location Local d'activités
Location Locaux d'activités - Limonest (69760) - 3124 m² divisibles à partir de 612 m²
Limonest (69760)
Loyer : 388 404 € / an
Surface 3 124 m²
Divisible dès 612 m²
Description du bien
MALSH Realty vous propose à la location au coeur de la Techlid à Limonest, dans un parc clos et sécurisé composé de 6 bâtiments, des locaux d'activités rénovés et indépendants d'une surface totale d'environ 3 124 m² divisibles en 3 lots à partir de 612 m².
Environnement calme et verdoyant.
Ce parc bénéficie de deux restaurants et prochainement d'un foodtruck, d'une salle d'escalade et de nombreuses places de parking en extérieur (incluant des bornes électriques).
Disponibilité : Immédiate !
Prestations du bien
- Extérieurs
- Réfection de la signalétique générale
- Relamping LED extérieur
- Installation de mobilier (tables, chaises) sur les espaces verts et dans certains patios
- Création d'un local vélo
- Création d'un nouveau local à déchet pour faciliter le tri
- Réfection des marquages au sol
- Reprise des bordures et de l'enrobé
- Stationnements libres dans le parc, offrant 560 places
- Intérieurs
- Général :
- Relamping LED intégral
- Alarme SSI type 4
- Sanitaires type bâti-support ou remplacement à l'identique selon les
- lots / sanitaires PMR en RDC dans certains lots
- Activités au RDC :
- Résine Epoxy
- Mise en peinture des murs périphériques
- Tarif bleu ou jaune selon les lots
- Changement de la porte sectionnelle ou remise aux normes
- Chauffage par aérothermes électriques
- Bureaux au R+1 :
- Sol souple en lame PVC imitation bois
- Remise en peinture des murs périphériques (livraison d'un open-space)
- Chauffage/climatisation type gainable (PAC air/air)
- Réfection des doublages et de l'isolation (hors menuiseries)
- Stores tamisant intérieur
- Rénovation et aménagement de certains patios (mobilier, plantations,etc), création d'accès direct pour certains lots
Informations financières
- Charges minimales : 4 202 €
- Bail : commercial 3-6-9 ans
- Taxe foncière : 12 €
- Informations location :
Conditions particulières à la location : Parkings inclus dans le loyer
- Dépôt de garantie : 3 mois de loyer HT/HC
- Honoraires de commercialisation : 15 % HT d'un an de loyer HT à la charge du preneur, payables à la signature du bail
Ce local professionnel vous est présenté par
Vous souhaitez nous joindre ?
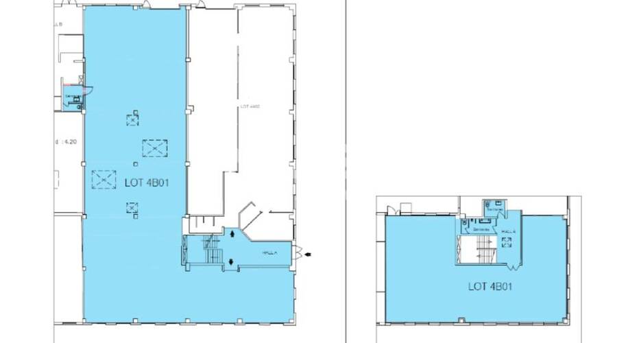
Surfaces des locaux
| Étage | Bâtiment | Type | Surfaces | Disponibilité | Loyer | Charges | Honoraires | Fiscal | Bail | Révision annuelle | Prix | Charges | Honoraires | Fiscal | Paiement Loyer | lot | Coworking | |
|---|---|---|---|---|---|---|---|---|---|---|---|---|---|---|---|---|---|---|
| R+1 | Bureaux | 200 | 15 % HT du loyer annuel HT/HC à la charge du preneur, payables à la signature du bail | T.V.A. (20%) | ILAT Indice des Loyers des Activités Tertiaires | Trimestriel d'avance | ||||||||||||
| RDC | Activités | 412 | 15 % HT du loyer annuel HT/HC à la charge du preneur, payables à la signature du bail | T.V.A. (20%) | ILAT Indice des Loyers des Activités Tertiaires | Trimestriel d'avance | ||||||||||||
| Total Cellule 2C01 | Activités | 612 | Immédiate | 124 HT/HC/m²/an | 16,14 HT/m²/an | 15 % HT du loyer annuel HT/HC à la charge du preneur, payables à la signature du bail | T.V.A. (20%) | commercial 3-6-9 ans | ILAT Indice des Loyers des Activités Tertiaires | Trimestriel d'avance | 2C01 | |||||||
| R+1 | Bureaux | 221 | 15 % HT du loyer annuel HT/HC à la charge du preneur, payables à la signature du bail | T.V.A. (20%) | ILAT Indice des Loyers des Activités Tertiaires | Trimestriel d'avance | ||||||||||||
| RDC | Activités | 525 | 15 % HT du loyer annuel HT/HC à la charge du preneur, payables à la signature du bail | T.V.A. (20%) | ILAT Indice des Loyers des Activités Tertiaires | Trimestriel d'avance | ||||||||||||
| Total Cellule 4B01 | Activités | 746 | Immédiate | 123 HT/HC/m²/an | 16,14 HT/m²/an | 15 % HT du loyer annuel HT/HC à la charge du preneur, payables à la signature du bail | T.V.A. (20%) | commercial 3-6-9 ans | ILAT Indice des Loyers des Activités Tertiaires | Trimestriel d'avance | 4B01 | |||||||
| R+1 | Bureaux | 633 | 15 % HT du loyer annuel HT/HC à la charge du preneur, payables à la signature du bail | T.V.A. (20%) | ILAT Indice des Loyers des Activités Tertiaires | Trimestriel d'avance | ||||||||||||
| RDC | Activités | 1 133 | 15 % HT du loyer annuel HT/HC à la charge du preneur, payables à la signature du bail | T.V.A. (20%) | ILAT Indice des Loyers des Activités Tertiaires | Trimestriel d'avance | ||||||||||||
| Total Cellule 6E01 | Activités | 1 766 | Immédiate | 125 HT/HC/m²/an | 16,14 HT/m²/an | 15 % HT du loyer annuel HT/HC à la charge du preneur, payables à la signature du bail | T.V.A. (20%) | commercial 3-6-9 ans | ILAT Indice des Loyers des Activités Tertiaires | Trimestriel d'avance | 6E01 | |||||||
| Total | 3 124 m² |
Localisation et accessibilité
- Bus: Bus TCL lignes 21, 10 et Ge4 (à 2 min à pied)
- SCNF: Gare de Dardilly-Jubin à 15 min en bus et Gare de Vaise à 18 min en bus
- Autoroute: À proximité immédiate de l'autoroute A6 (à 200 m) et de l'A89 (à 4 km).
Ces biens pourraient vous intéresser
Ces articles peuvent vous intéresser
| Étage | Bâtiment | Type | Surfaces | Disponibilité | Loyer | Charges | Honoraires | Fiscal | Bail | Révision annuelle | Prix | Charges | Honoraires | Fiscal | Paiement Loyer | lot | Coworking | |
|---|---|---|---|---|---|---|---|---|---|---|---|---|---|---|---|---|---|---|
| R+1 | Bureaux | 200 | 15 % HT du loyer annuel HT/HC à la charge du preneur, payables à la signature du bail | T.V.A. (20%) | ILAT Indice des Loyers des Activités Tertiaires | Trimestriel d'avance | ||||||||||||
| RDC | Activités | 412 | 15 % HT du loyer annuel HT/HC à la charge du preneur, payables à la signature du bail | T.V.A. (20%) | ILAT Indice des Loyers des Activités Tertiaires | Trimestriel d'avance | ||||||||||||
| Total Cellule 2C01 | Activités | 612 | Immédiate | 124 HT/HC/m²/an | 16,14 HT/m²/an | 15 % HT du loyer annuel HT/HC à la charge du preneur, payables à la signature du bail | T.V.A. (20%) | commercial 3-6-9 ans | ILAT Indice des Loyers des Activités Tertiaires | Trimestriel d'avance | 2C01 | |||||||
| R+1 | Bureaux | 221 | 15 % HT du loyer annuel HT/HC à la charge du preneur, payables à la signature du bail | T.V.A. (20%) | ILAT Indice des Loyers des Activités Tertiaires | Trimestriel d'avance | ||||||||||||
| RDC | Activités | 525 | 15 % HT du loyer annuel HT/HC à la charge du preneur, payables à la signature du bail | T.V.A. (20%) | ILAT Indice des Loyers des Activités Tertiaires | Trimestriel d'avance | ||||||||||||
| Total Cellule 4B01 | Activités | 746 | Immédiate | 123 HT/HC/m²/an | 16,14 HT/m²/an | 15 % HT du loyer annuel HT/HC à la charge du preneur, payables à la signature du bail | T.V.A. (20%) | commercial 3-6-9 ans | ILAT Indice des Loyers des Activités Tertiaires | Trimestriel d'avance | 4B01 | |||||||
| R+1 | Bureaux | 633 | 15 % HT du loyer annuel HT/HC à la charge du preneur, payables à la signature du bail | T.V.A. (20%) | ILAT Indice des Loyers des Activités Tertiaires | Trimestriel d'avance | ||||||||||||
| RDC | Activités | 1 133 | 15 % HT du loyer annuel HT/HC à la charge du preneur, payables à la signature du bail | T.V.A. (20%) | ILAT Indice des Loyers des Activités Tertiaires | Trimestriel d'avance | ||||||||||||
| Total Cellule 6E01 | Activités | 1 766 | Immédiate | 125 HT/HC/m²/an | 16,14 HT/m²/an | 15 % HT du loyer annuel HT/HC à la charge du preneur, payables à la signature du bail | T.V.A. (20%) | commercial 3-6-9 ans | ILAT Indice des Loyers des Activités Tertiaires | Trimestriel d'avance | 6E01 | |||||||
| Total | 3 124 m² |





















































