Ref : 1092424-0L
Location Local d'activités
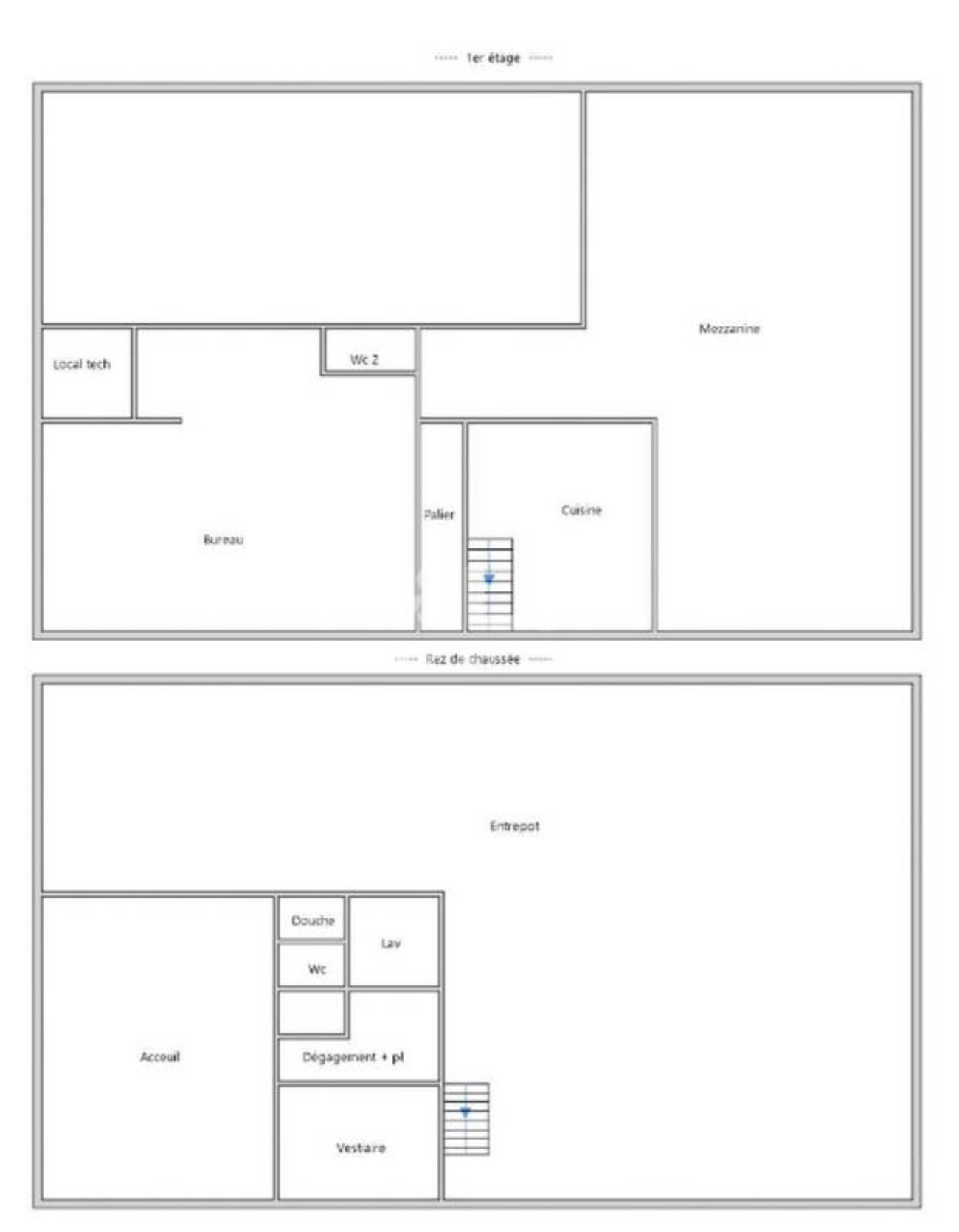
Location Local d'Activités - Gleize (69400) - 427 m²
Gleizé (69400)
Loyer : 36 300 € / an
Surface 427 m²
Description du bien
MALSH Realty vous propose à la location dans la ZAC d'Epinay à Gleize, un local d'activités récent d'une surface totale d'environ 427 m² comprenant 307 m² d'activités dont 110 m² en mezzanine et 120 m² de bureaux et locaux sociaux répartis sur 2 niveaux. Ce local dispose d'une grande porte sectionnelle motorisée et de portes piétons pour accès bureaux et atelier. Idéalement situé à 5 min de l'accès à l'autoroute A6 et du centre-ville de Villefranche et desservi par les transports en commun.
Disponible immédiatement !
Prestations du bien
- Bâtiments de 2015 en copropriété
- Enseigne en façade possible
- Accès de plain-pied
- Porte sectionnelle motorisée (4,30 m x 4,50 m)
- Porte piéton
- Parkings extérieurs (stationnement libre)
- Charpente métallique
- Structure : bardage double peau
- Couverture : bac acier
- Dalle industrielle
- Luminaires
- Skydômes
- Hauteur RDC : de 2,68 m à 6,40 mètres
- Hauteur Mezzanine : 3,35 mètres
- Dalle mezzanine : 350 kg/m²
- Bureaux entièrement climatisés
- Sanitaires et douche
- Espace cuisine
- Faux-plafond avec luminaires encastrés LED
- Plinthes périphériques
- Sol : parquet et carrelage
- Climatisation réversible
Informations financières
- Charges minimales : 167 €
- Bail : commercial 3-6-9 ans
- Taxe foncière : 1 290 €
- Dépôt de garantie : 3 mois de loyer HT/HC
- Honoraires de commercialisation : 20% HT du loyer annuel HT à la charge du preneur, payables à la signature du bail
Ce local professionnel vous est présenté par
Vous souhaitez nous joindre ?
Surfaces des locaux
| Étage | Bâtiment | Type | Surfaces | Disponibilité | Loyer | Charges | Honoraires | Fiscal | Bail | Révision annuelle | Prix | Charges | Honoraires | Fiscal | Paiement Loyer | lot | Coworking | |
|---|---|---|---|---|---|---|---|---|---|---|---|---|---|---|---|---|---|---|
| Mezzanine | Activités | 110 | 15 % HT du loyer annuel HT/HC à la charge du preneur, payables à la signature du bail | T.V.A. (20%) | ILAT Indice des Loyers des Activités Tertiaires | Trimestriel d'avance | ||||||||||||
| R+1 | Bureaux | 72 | 15 % HT du loyer annuel HT/HC à la charge du preneur, payables à la signature du bail | T.V.A. (20%) | ILAT Indice des Loyers des Activités Tertiaires | Trimestriel d'avance | ||||||||||||
| RDC | Activités | 197 | 15 % HT du loyer annuel HT/HC à la charge du preneur, payables à la signature du bail | T.V.A. (20%) | ILAT Indice des Loyers des Activités Tertiaires | Trimestriel d'avance | ||||||||||||
| RDC | Bureaux | 48 | 15 % HT du loyer annuel HT/HC à la charge du preneur, payables à la signature du bail | T.V.A. (20%) | ILAT Indice des Loyers des Activités Tertiaires | Trimestriel d'avance | ||||||||||||
| Total Cellule | Activités | 427 | Immédiate | 85 HT/HC/m²/an | 2 000 HT/an | 15 % HT du loyer annuel HT/HC à la charge du preneur, payables à la signature du bail | T.V.A. (20%) | commercial 3-6-9 ans | ILAT Indice des Loyers des Activités Tertiaires | Trimestriel d'avance | ||||||||
| Total | 427 m² |
Localisation et accessibilité
- Bus: Bus TCL lignes 152, 153 et 236 à moins de 10 min à pied
- SCNF: Gare de Villefranche-sur-Saône à 8 min en voiture
- Autoroute: A proximité de l'autoroute A6
Ces biens pourraient vous intéresser
Ces articles peuvent vous intéresser
| Étage | Bâtiment | Type | Surfaces | Disponibilité | Loyer | Charges | Honoraires | Fiscal | Bail | Révision annuelle | Prix | Charges | Honoraires | Fiscal | Paiement Loyer | lot | Coworking | |
|---|---|---|---|---|---|---|---|---|---|---|---|---|---|---|---|---|---|---|
| Mezzanine | Activités | 110 | 15 % HT du loyer annuel HT/HC à la charge du preneur, payables à la signature du bail | T.V.A. (20%) | ILAT Indice des Loyers des Activités Tertiaires | Trimestriel d'avance | ||||||||||||
| R+1 | Bureaux | 72 | 15 % HT du loyer annuel HT/HC à la charge du preneur, payables à la signature du bail | T.V.A. (20%) | ILAT Indice des Loyers des Activités Tertiaires | Trimestriel d'avance | ||||||||||||
| RDC | Activités | 197 | 15 % HT du loyer annuel HT/HC à la charge du preneur, payables à la signature du bail | T.V.A. (20%) | ILAT Indice des Loyers des Activités Tertiaires | Trimestriel d'avance | ||||||||||||
| RDC | Bureaux | 48 | 15 % HT du loyer annuel HT/HC à la charge du preneur, payables à la signature du bail | T.V.A. (20%) | ILAT Indice des Loyers des Activités Tertiaires | Trimestriel d'avance | ||||||||||||
| Total Cellule | Activités | 427 | Immédiate | 85 HT/HC/m²/an | 2 000 HT/an | 15 % HT du loyer annuel HT/HC à la charge du preneur, payables à la signature du bail | T.V.A. (20%) | commercial 3-6-9 ans | ILAT Indice des Loyers des Activités Tertiaires | Trimestriel d'avance | ||||||||
| Total | 427 m² |







































































