Ref : 1425933-0L
Location Bureau
Bureaux - A louer - 138 m² - Lyon 2
Lyon 2 (69002)
Loyer : 43 512 € / an
Surface 138 m²
Description du bien
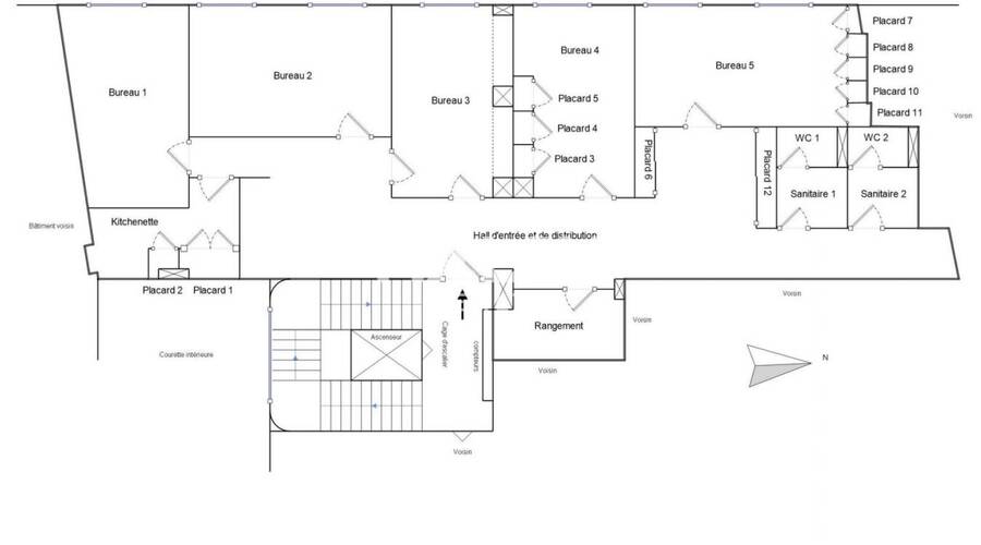
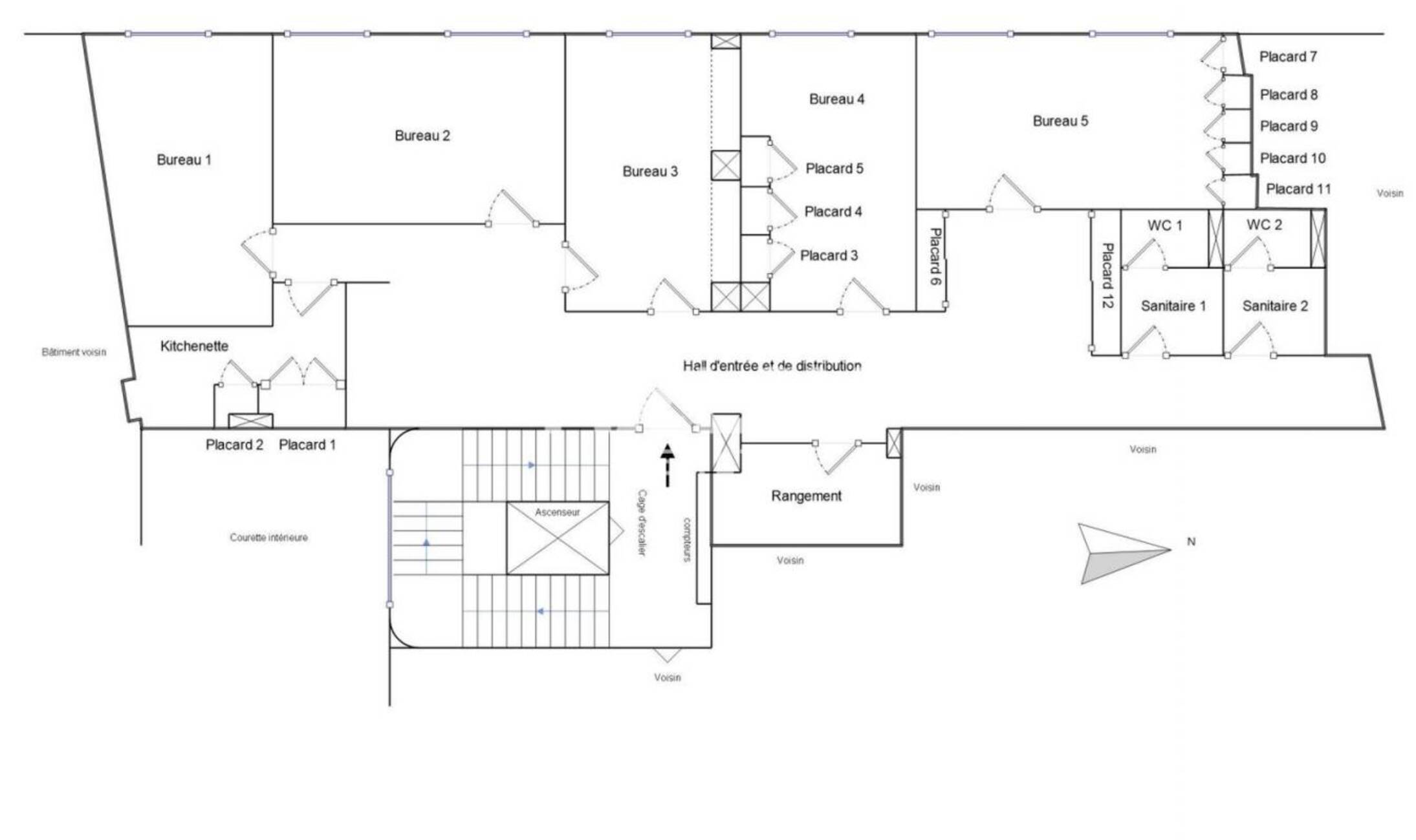
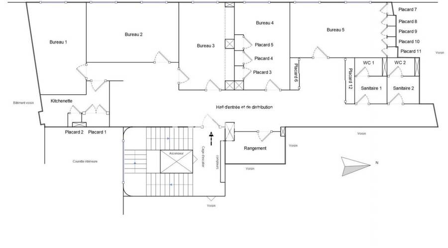
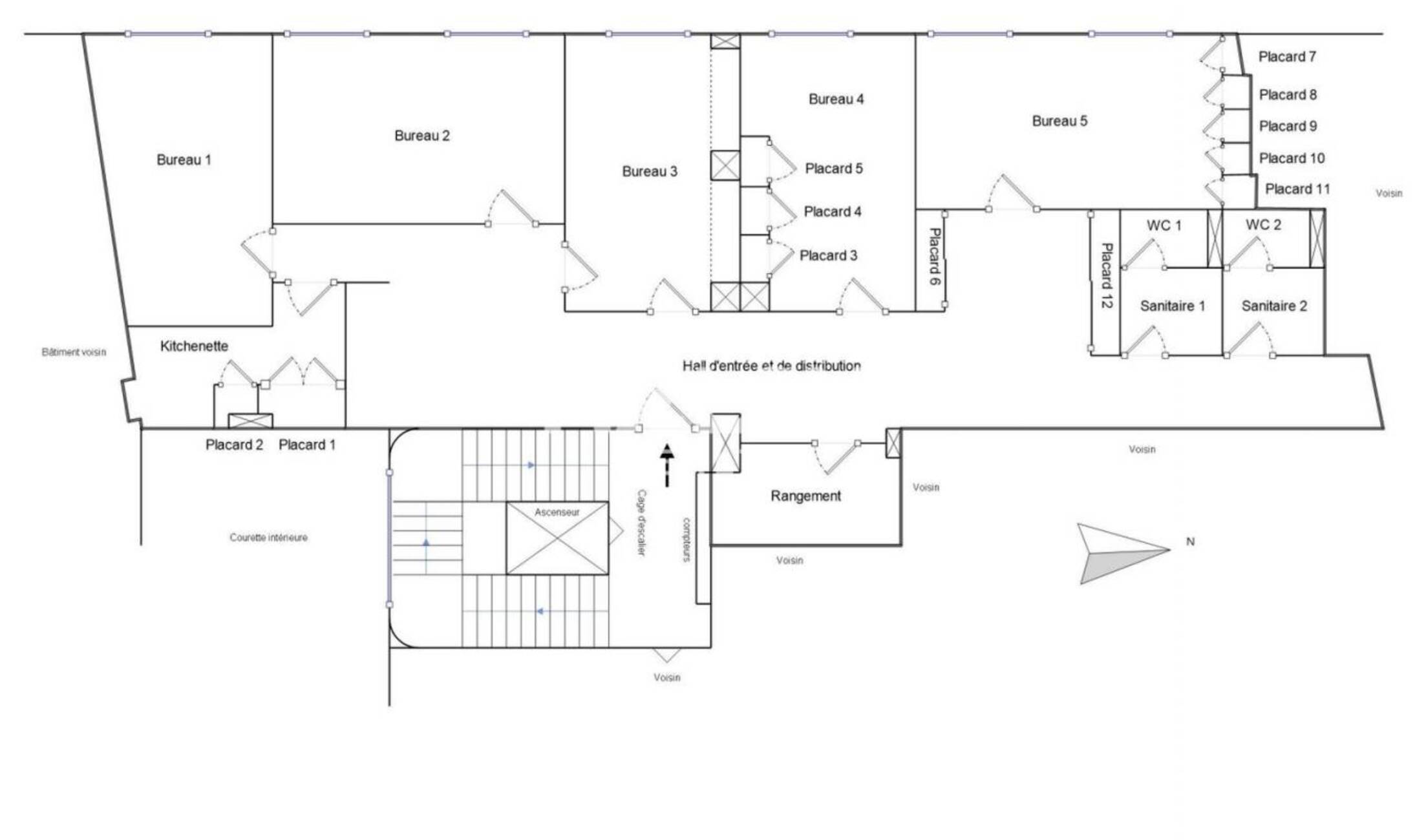
MALSH Realty vous propose à la location un magnifique plateau de bureaux de 138 m², idéalement situé dans une rue prestigieuse de la Presqu'île, à proximité immédiate de toutes les commodités et des transports en commun. Installés dans un immeuble haussmannien de bon standing, ces bureaux modernes et lumineux allient charme de l'ancien et confort contemporain. Ils bénéficient d'une cuisine et de sanitaires privatifs, offrant ainsi un cadre de travail à la fois fonctionnel, élégant et agréable.
Prestations du bien
- Composition :
- - Grande entrée / accueil
- - 4 Bureaux
- - 1 Salle de Réunion
- - 1 Cuisine
- - 1 Salle d'archive
- - 2 Sanitaires
- Prestations :
- - Immeuble de style haussmannien sécurisé
- - Bureaux lumineux et cloisonnés
- - Climatisation réversible
- - Cablage RJ45 et Fibre optique
- - Parquet au sol
- - Placards muraux
- - Belle hauteur sous-plafond
- - Ascenseur
- - Interphone
- - Kitchenette
Informations financières
- Charges minimales : 200 €
- Bail : commercial 3-6-9 ans
- Taxe foncière : 2 068 €
- Dépôt de garantie : 3 mois de loyer HT/HC
Diagnostic énergétiques
Diagnostic de performance énergétique
C 121
Indice d'émission de gaz à effet de serre
A 3
Logement très performant
Logement extrêmement consommateur d'énergie
Peu d'émission de GES
Emissions de GES très importantes
Ce local professionnel vous est présenté par
Vous souhaitez nous joindre ?
Surfaces des locaux
| Étage | Bâtiment | Type | Surfaces | Disponibilité | Loyer | Charges | Honoraires | Fiscal | Bail | Révision annuelle | Prix | Charges | Honoraires | Fiscal | Paiement Loyer | lot | Coworking | |
|---|---|---|---|---|---|---|---|---|---|---|---|---|---|---|---|---|---|---|
| 2 | Bureaux | 138,68 | 1er avril 2026 | 313,67 HT/HC/m²/an | 2 400 HT/AN | 30 % HT du loyer annuel HT à la charge du preneur, payables à la signature du bail | T.V.A. (20%) | commercial 3-6-9 ans | ILAT Indice des Loyers des Activités Tertiaires | Trimestriel d'avance | ||||||||
| Total | 138,68 m² |
Localisation et accessibilité
- Bus: C9, 12, 20, 27, 40, S1 - Liberté (Tramways)
- SCNF: Perrache à 10 min / Part Dieu à 15 min
- Metro: Lignes A et D station Bellecour
Ces biens pourraient vous intéresser
| Étage | Bâtiment | Type | Surfaces | Disponibilité | Loyer | Charges | Honoraires | Fiscal | Bail | Révision annuelle | Prix | Charges | Honoraires | Fiscal | Paiement Loyer | lot | Coworking | |
|---|---|---|---|---|---|---|---|---|---|---|---|---|---|---|---|---|---|---|
| 2 | Bureaux | 138,68 | 1er avril 2026 | 313,67 HT/HC/m²/an | 2 400 HT/AN | 30 % HT du loyer annuel HT à la charge du preneur, payables à la signature du bail | T.V.A. (20%) | commercial 3-6-9 ans | ILAT Indice des Loyers des Activités Tertiaires | Trimestriel d'avance | ||||||||
| Total | 138,68 m² |















































