Ref : 1439540-0L
Location Bureau
Bureaux - A louer - 252 m² - Lyon Part-Dieu (69003)
Lyon 3 (69003)
Loyer : 51 504 € / an
Surface 252 m²
Description du bien
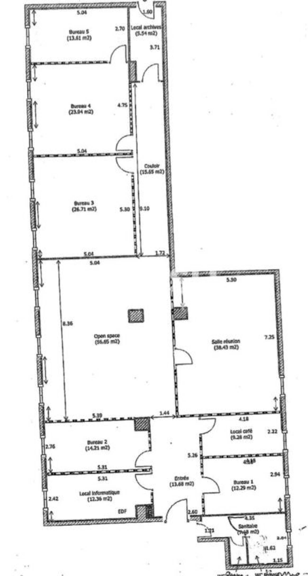
MALSH Realty propose à la location, à proximité immédiate de la Gare Part-Dieu, des bureaux cloisonnés et climatisés d'une surface totale d'environ 252 m² au 2ème étage.
Ce bien dispose de deux places de stationnement en sous-sol et 2 en extérieur.
Prestations du bien
- Composition :
- 6 Grands bureaux
- 2 Bureaux individuels
- 1 Salle de réunion
- 1 Coin cuisine
- 1 Local d'archive
- Sanitaires privatifs sur le palier
- Prestations :
- Immeuble tertiaire sécurisé
- Ascenseur
- Climatisation réversible
- Faux plafond
- Pavés LED encastrés
- Fenêtres doubles vitrages et stores
- Dalles carrelage ou moquette au sol
- Cloisons amovibles
- Câblage RJ45 et fibre optique
- Baie de brassage
- Kitchenette
- Interphone
- Accessibilité PMR
Informations financières
- Charges minimales : 1 250 €
- Bail : commercial 3-6-9 ans
- Taxe foncière : 6 700 €
- Dépôt de garantie : 3 mois de loyer HT/HC
Ce local professionnel vous est présenté par
Vous souhaitez nous joindre ?
Surfaces des locaux
| Étage | Bâtiment | Type | Surfaces | Disponibilité | Loyer | Charges | Honoraires | Fiscal | Bail | Révision annuelle | Prix | Charges | Honoraires | Fiscal | Paiement Loyer | lot | Coworking | |
|---|---|---|---|---|---|---|---|---|---|---|---|---|---|---|---|---|---|---|
| 2 | Bureaux | 252 | Immédiate | 15% HT d'un an de loyer HT à la charge du preneur, payables à la signature du bail | T.V.A. (20%) | ILAT Indice des Loyers des Activités Tertiaires | Trimestriel d'avance | |||||||||||
| Parkings | - | Immédiate | 15% HT d'un an de loyer HT à la charge du preneur, payables à la signature du bail | T.V.A. (20%) | ILAT Indice des Loyers des Activités Tertiaires | Trimestriel d'avance | ||||||||||||
| Sous-Sol | Parkings | - | Immédiate | 15% HT d'un an de loyer HT à la charge du preneur, payables à la signature du bail | T.V.A. (20%) | ILAT Indice des Loyers des Activités Tertiaires | Trimestriel d'avance | |||||||||||
| Total Cellule | Bureaux | 252 | Immédiate | 204,37 HT/HC/m²/an | 15 000 /an HT | 15% HT d'un an de loyer HT à la charge du preneur, payables à la signature du bail | T.V.A. (20%) | commercial 3-6-9 ans | ILAT Indice des Loyers des Activités Tertiaires | Trimestriel d'avance | ||||||||
| Total | 252 m² | |||||||||||||||||
| 2 2 | ||||||||||||||||||
Localisation et accessibilité
- Bus: Lignes 25, 38 et 70
- SCNF: Lyon-Part-Dieu (Gare SNCF)
- Metro: Ligne B
- Tramway: Lignes T1 , T3 et T4
Ces articles peuvent vous intéresser
| Étage | Bâtiment | Type | Surfaces | Disponibilité | Loyer | Charges | Honoraires | Fiscal | Bail | Révision annuelle | Prix | Charges | Honoraires | Fiscal | Paiement Loyer | lot | Coworking | |
|---|---|---|---|---|---|---|---|---|---|---|---|---|---|---|---|---|---|---|
| 2 | Bureaux | 252 | Immédiate | 15% HT d'un an de loyer HT à la charge du preneur, payables à la signature du bail | T.V.A. (20%) | ILAT Indice des Loyers des Activités Tertiaires | Trimestriel d'avance | |||||||||||
| Parkings | - | Immédiate | 15% HT d'un an de loyer HT à la charge du preneur, payables à la signature du bail | T.V.A. (20%) | ILAT Indice des Loyers des Activités Tertiaires | Trimestriel d'avance | ||||||||||||
| Sous-Sol | Parkings | - | Immédiate | 15% HT d'un an de loyer HT à la charge du preneur, payables à la signature du bail | T.V.A. (20%) | ILAT Indice des Loyers des Activités Tertiaires | Trimestriel d'avance | |||||||||||
| Total Cellule | Bureaux | 252 | Immédiate | 204,37 HT/HC/m²/an | 15 000 /an HT | 15% HT d'un an de loyer HT à la charge du preneur, payables à la signature du bail | T.V.A. (20%) | commercial 3-6-9 ans | ILAT Indice des Loyers des Activités Tertiaires | Trimestriel d'avance | ||||||||
| Total | 252 m² | |||||||||||||||||
| 2 2 | ||||||||||||||||||















































