Ref : 1410193-0L
Location Bureau
A LOUER - BUREAUX - LYON 3 - 482 m² - 5 parkings
Lyon 3 (69003)
Loyer : 110 868 € / an
Surface 482 m²
Description du bien
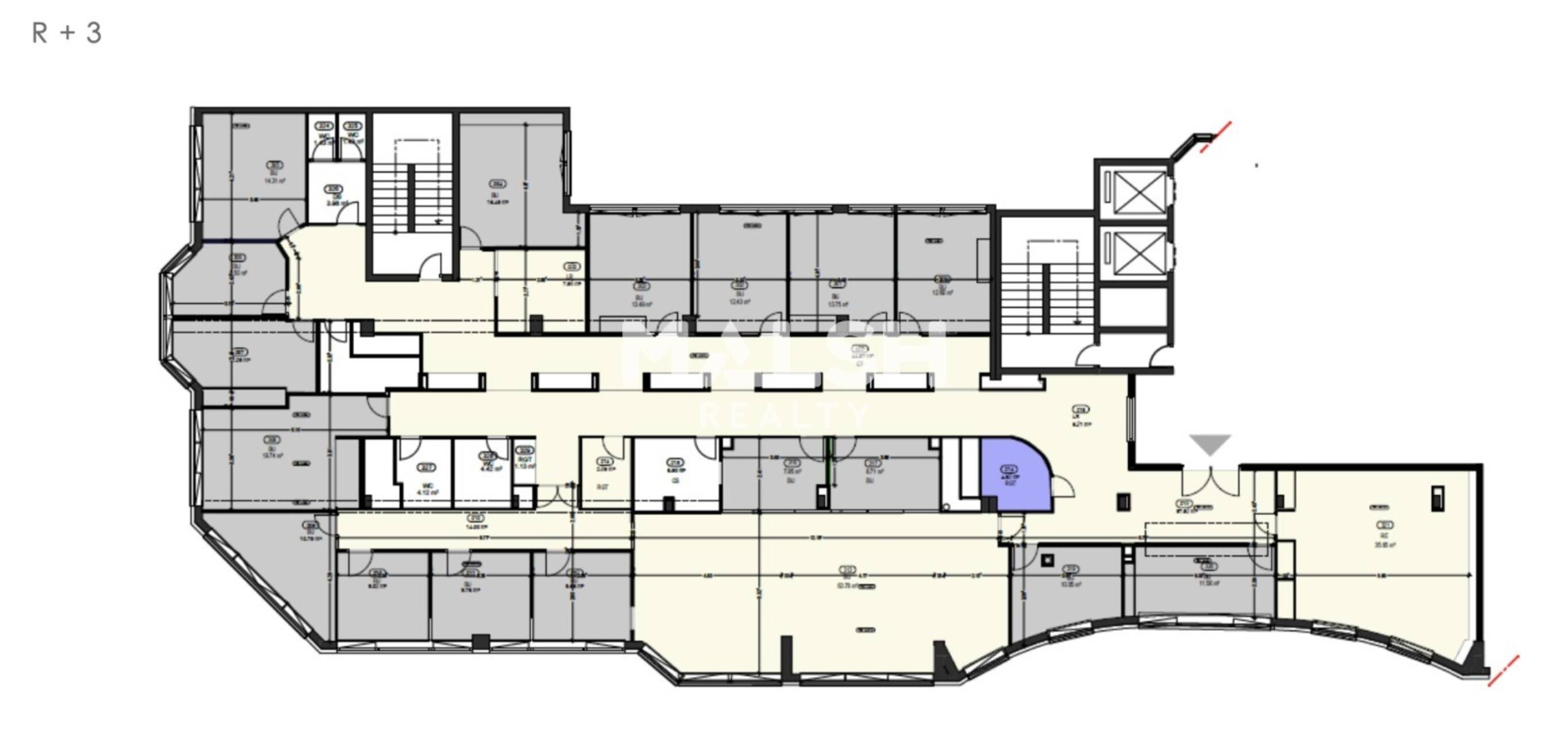
MALSH Realty propose à la location des bureaux d'une surface d'environ 482 m², situés au 3° étage d'un immeuble tertiaire de bon standing. Ces bureaux bénéficient de prestations de qualité et de matériaux haut de gamme, offrant un environnement de travail à la fois fonctionnel et valorisant.
Implantés en face du Tribunal, ces bureaux constituent une adresse particulièrement adaptée aux professions juridiques et réglementées, recherchant visibilité et proximité institutionnelle.
Ils bénéficient également d'une excellente desserte en transports en commun, à proximité immédiate du tram, du bus et du métro.
Prestations du bien
- Moquette
- Matériaux de qualité
- Espace cuisine
- RJ45
- Fibre
- nombreux bureaux individuels
- open space
- salle de réunion
- Clim réversible - collectif
- L'aménagement est particulièrement optimisé, avec une répartition idéale des espaces : nombreux bureaux individuels, open space, salles de réunion, permettant de répondre à des organisations de travail variées.
- Les bureaux sont loués avec 5 places de stationnement privatives, avec la possibilité de disposer de 5 places supplémentaires selon les besoins.
Informations financières
- Charges minimales : 2 290 €
- Bail : commercial 3-6-9 ans
- Taxe foncière : 29 €
- Dépôt de garantie : 3 mois de loyer HT/HC
Ce local professionnel vous est présenté par
Vous souhaitez nous joindre ?
Surfaces des locaux
| Étage | Bâtiment | Type | Surfaces | Disponibilité | Loyer | Charges | Honoraires | Fiscal | Bail | Révision annuelle | Prix | Charges | Honoraires | Fiscal | Paiement Loyer | lot | Coworking | |
|---|---|---|---|---|---|---|---|---|---|---|---|---|---|---|---|---|---|---|
| 3 | Bureaux | 482 | Immédiate | 230 HT/HC/m²/an | 57 m²/an HT | 15 % HT du loyer annuel HT à la charge du preneur, payables à la signature du bail | Non soumis à la T.V.A. | commercial 3-6-9 ans | ILAT Indice des Loyers des Activités Tertiaires | Trimestriel d'avance | ||||||||
| Sous-Sol | Parkings | - | Immédiate | 1 600 HT/HC/place/an | 15 % HT du loyer annuel HT à la charge du preneur, payables à la signature du bail | Non soumis à la T.V.A. | commercial 3-6-9 ans | ILAT Indice des Loyers des Activités Tertiaires | Trimestriel d'avance | |||||||||
| Total | 482 m² | |||||||||||||||||
| 5 | ||||||||||||||||||
Localisation et accessibilité
- Bus: Edgar Quinet (487m) ligne(s) : 27A, C4A
- SCNF: Lyon-Part-Dieu (Gare SNCF)
- Metro: Hôtel de Ville L. Pradel (Ligne C), Place Guichard
Ces biens pourraient vous intéresser
Ces articles peuvent vous intéresser
| Étage | Bâtiment | Type | Surfaces | Disponibilité | Loyer | Charges | Honoraires | Fiscal | Bail | Révision annuelle | Prix | Charges | Honoraires | Fiscal | Paiement Loyer | lot | Coworking | |
|---|---|---|---|---|---|---|---|---|---|---|---|---|---|---|---|---|---|---|
| 3 | Bureaux | 482 | Immédiate | 230 HT/HC/m²/an | 57 m²/an HT | 15 % HT du loyer annuel HT à la charge du preneur, payables à la signature du bail | Non soumis à la T.V.A. | commercial 3-6-9 ans | ILAT Indice des Loyers des Activités Tertiaires | Trimestriel d'avance | ||||||||
| Sous-Sol | Parkings | - | Immédiate | 1 600 HT/HC/place/an | 15 % HT du loyer annuel HT à la charge du preneur, payables à la signature du bail | Non soumis à la T.V.A. | commercial 3-6-9 ans | ILAT Indice des Loyers des Activités Tertiaires | Trimestriel d'avance | |||||||||
| Total | 482 m² | |||||||||||||||||
| 5 | ||||||||||||||||||




























































