Ref : 1397714-0
Location Bureau
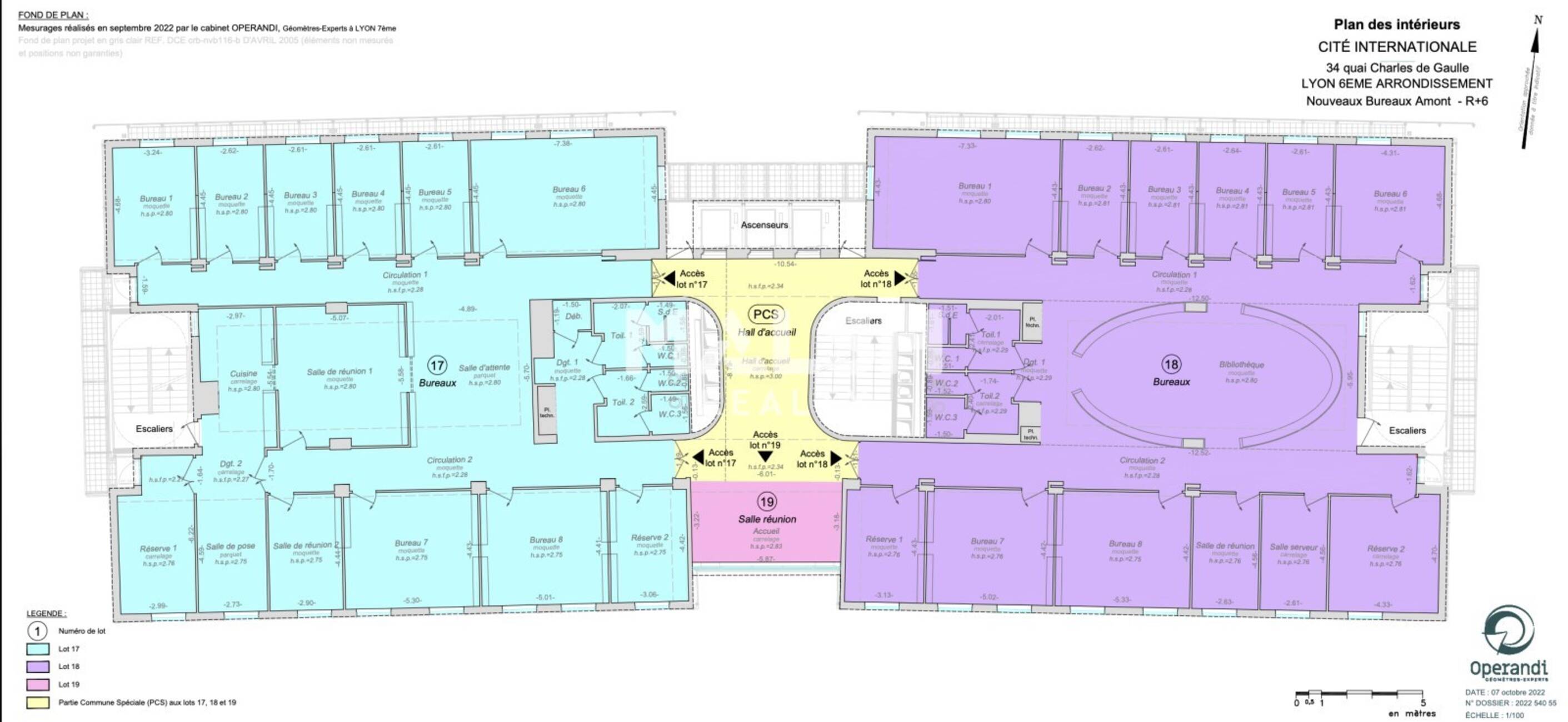
A VENDRE ou À LOUER EN EXCLUSIVITE - CITE INTERNATIONALE - LYON 6 - 797 m²
Lyon 6 (69006)
Loyer : 252 € / an
Surface 797 m²
Description du bien
MALSH Realty vous propose, en exclusivité, à la vente ou à la location, dans un cadre d'exception, au sein de la Cité Internationale, une très belle surface de bureaux avec ses nombreux stationnements privatifs.
En bordure du Rhône, à proximité du Centre ville de Lyon et des grands axes routiers, ces bureaux répondront à vos besoins.
Prestations du bien
- Banque d'accueil
- Bureaux cloisonnés avec vitrage toute hauteur
- Meubles, étagères et bibliothèques sur mesure sur l'ensemble du plateau
- Fenêtres avec ouvrant sur l'ensemble du plateau
- Panneaux acoustiques
- Possibilité de conserver le mobilier
- Salles de réunion en parties centrales
- Bibliothèque
- Espace cuisine
- Sanitaires privatifs
- Faux plancher technique
- Moquette dans les bureaux et carrelage sur la partie centrale
- Eclairage indirect
- Hauteur libre 2,70 mètres
- Plateau à 4 accès (4 portes palières)
- Air rafraîchi
- Divisibilité du plateau à l'étude
Informations financières
- Taxe foncière : 29 €
- Dépôt de garantie : 3 mois de loyer HT/HC
Ce local professionnel vous est présenté par
Vous souhaitez nous joindre ?
Surfaces des locaux
| Étage | Bâtiment | Type | Surfaces | Disponibilité | Loyer | Charges | Honoraires | Fiscal | Bail | Révision annuelle | Prix | Charges | Honoraires | Fiscal | Paiement Loyer | lot | Coworking | |
|---|---|---|---|---|---|---|---|---|---|---|---|---|---|---|---|---|---|---|
| 6 | Bureaux | 797 | Immédiate | 250 HT/HC/m²/an | 42,3 HT/m²/an | 15 % HT du loyer annuel HT/HC à la charge du preneur, payables à la signature du bail | T.V.A. (20%) | ILAT Indice des Loyers des Activités Tertiaires | 6 250 HDE/m² | 2 % HT du montant de la vente HDE, à la charge de l'acquéreur | Droits d'enregistrement | Trimestriel d'avance | ||||||
| Sous-Sol | Parkings | - | Immédiate | 15 % HT du loyer annuel HT/HC à la charge du preneur, payables à la signature du bail | T.V.A. (20%) | ILAT Indice des Loyers des Activités Tertiaires | 2 % HT du montant de la vente HDE, à la charge de l'acquéreur | Droits d'enregistrement | Trimestriel d'avance | |||||||||
| Total Cellule | Bureaux | 797 | Immédiate | 15 % HT du loyer annuel HT/HC à la charge du preneur, payables à la signature du bail | T.V.A. (20%) | ILAT Indice des Loyers des Activités Tertiaires | 2 % HT du montant de la vente HDE, à la charge de l'acquéreur | Droits d'enregistrement | Trimestriel d'avance | |||||||||
| Total | 797 m² | |||||||||||||||||
| 12 | ||||||||||||||||||
Localisation et accessibilité
- Bus: C1/C4/C5 arrêt Cité Internationale
- SCNF: Part Dieu 15min en voiture - 15 min en bus
- Tramway: Lignes 1 et 4 Station « Université Lyon 1 » 15 min en bus
- Autoroute: Bd. périphérique Nord 5 min en voiture Autoroute A6 15 min en voiture
Ces biens pourraient vous intéresser
Ces articles peuvent vous intéresser
| Étage | Bâtiment | Type | Surfaces | Disponibilité | Loyer | Charges | Honoraires | Fiscal | Bail | Révision annuelle | Prix | Charges | Honoraires | Fiscal | Paiement Loyer | lot | Coworking | |
|---|---|---|---|---|---|---|---|---|---|---|---|---|---|---|---|---|---|---|
| 6 | Bureaux | 797 | Immédiate | 250 HT/HC/m²/an | 42,3 HT/m²/an | 15 % HT du loyer annuel HT/HC à la charge du preneur, payables à la signature du bail | T.V.A. (20%) | ILAT Indice des Loyers des Activités Tertiaires | 6 250 HDE/m² | 2 % HT du montant de la vente HDE, à la charge de l'acquéreur | Droits d'enregistrement | Trimestriel d'avance | ||||||
| Sous-Sol | Parkings | - | Immédiate | 15 % HT du loyer annuel HT/HC à la charge du preneur, payables à la signature du bail | T.V.A. (20%) | ILAT Indice des Loyers des Activités Tertiaires | 2 % HT du montant de la vente HDE, à la charge de l'acquéreur | Droits d'enregistrement | Trimestriel d'avance | |||||||||
| Total Cellule | Bureaux | 797 | Immédiate | 15 % HT du loyer annuel HT/HC à la charge du preneur, payables à la signature du bail | T.V.A. (20%) | ILAT Indice des Loyers des Activités Tertiaires | 2 % HT du montant de la vente HDE, à la charge de l'acquéreur | Droits d'enregistrement | Trimestriel d'avance | |||||||||
| Total | 797 m² | |||||||||||||||||
| 12 | ||||||||||||||||||


































































