Ref : 1230958-0L
Location Local d'activités
Location Locaux d'Activités avec quai PL - Saint Quentin Fallavier (38070) - 567 m² divisibles à partir de 226 m²
Saint-Quentin-Fallavier (38070)
Loyer : 52 200 € / an
Surface 567 m²
Divisible dès 226 m²
Description du bien
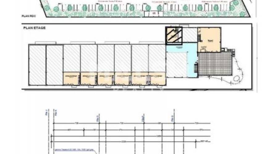
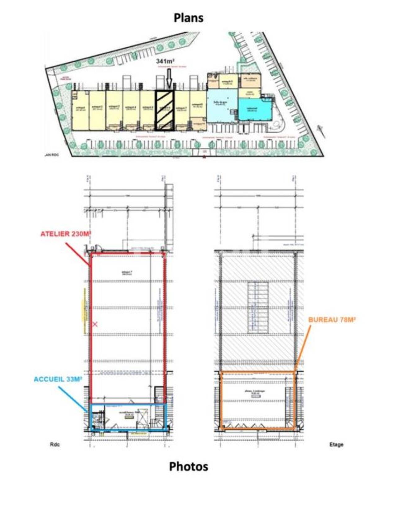
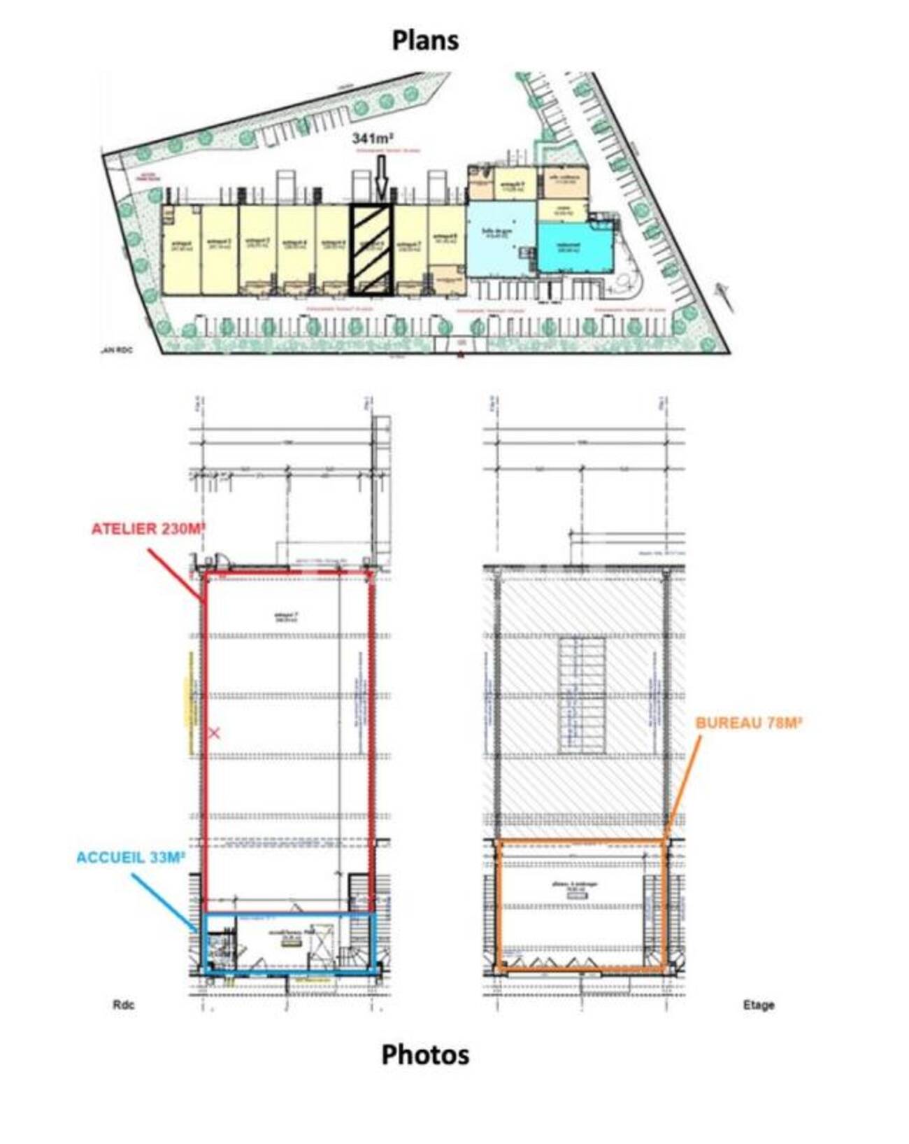
MALSH Realty vous propose à la location au sein d'un parc d'activités clos et sécurisé à Saint-Quentin-Fallavier, deux locaux d'activités d'une surface d'environ 226 m² et d'environ 341 m². Le lot 6 est équipé d'un quai et dispose d'un accueil et de bureaux à l'étage.
Idéalement situés à 2 km de l'entrée de l'autoroute A43 "Isle d'Abeau n°5".
Les activités automobiles , garages et carrosserie sont interdites.
Prestations du bien
- Parc fermé de 22h à 6h portail électrique
- Vidéo surveillance
- Accès de plain-pied / Accès semi
- Porte sectionnelle
- 1 quai PL pour le lot 6
- Bureaux
- Accueil au RDC
- Alarme
- Eclairage
- Détail surface lot 6 :
- Local de 230 m² chauffé/équipé d'une porte sectionnelle poids-lourds avec un quai
- Un espace d'accueil d'environ 33 m²
- Un plateau de bureaux 78 m² en étage
- Détail surface lot 9 :
- Local d'environ 226 m² :
- RDC : entrepôt de 176 m² environ
- Etage : bureau de 50 m² environ
Informations financières
- Charges minimales : 100 €
- Bail : commercial 3-6-9 ans
- Dépôt de garantie : 3 mois de loyer HT/HC
- Honoraires de commercialisation : 15 % HT du loyer annuel HT/HC à la charge du preneur, payables à la signature du bail
Ce local professionnel vous est présenté par
Vous souhaitez nous joindre ?
Surfaces des locaux
| Étage | Bâtiment | Type | Surfaces | Disponibilité | Loyer | Charges | Honoraires | Fiscal | Bail | Révision annuelle | Prix | Charges | Honoraires | Fiscal | Paiement Loyer | lot | Coworking | |
|---|---|---|---|---|---|---|---|---|---|---|---|---|---|---|---|---|---|---|
| R+1 | Bureaux | 78 | 15 % HT du loyer annuel HT/HC à la charge du preneur, payables à la signature du bail | T.V.A. (20%) | ILAT Indice des Loyers des Activités Tertiaires | Mensuel d'avance | ||||||||||||
| RDC | Activités | 230 | 15 % HT du loyer annuel HT/HC à la charge du preneur, payables à la signature du bail | T.V.A. (20%) | ILAT Indice des Loyers des Activités Tertiaires | Mensuel d'avance | ||||||||||||
| RDC | Bureaux | 33 | 15 % HT du loyer annuel HT/HC à la charge du preneur, payables à la signature du bail | T.V.A. (20%) | ILAT Indice des Loyers des Activités Tertiaires | Mensuel d'avance | ||||||||||||
| Total Cellule 6 | Activités | 341 | 16 février 2026 | 91,5 HT/HC/m²/an | 1 200 HT/an | 15 % HT du loyer annuel HT/HC à la charge du preneur, payables à la signature du bail | T.V.A. (20%) | commercial 3-6-9 ans | ILAT Indice des Loyers des Activités Tertiaires | Mensuel d'avance | 6 | |||||||
| R+1 | Bureaux | 50 | 15 % HT du loyer annuel HT/HC à la charge du preneur, payables à la signature du bail | T.V.A. (20%) | ILAT Indice des Loyers des Activités Tertiaires | Mensuel d'avance | ||||||||||||
| RDC | Activités | 176 | 15 % HT du loyer annuel HT/HC à la charge du preneur, payables à la signature du bail | T.V.A. (20%) | ILAT Indice des Loyers des Activités Tertiaires | Mensuel d'avance | ||||||||||||
| Total Cellule 9 | Activités | 226 | 1er janvier 2026 | 92,92 HT/HC/m²/an | 1 200 HT/an | 15 % HT du loyer annuel HT/HC à la charge du preneur, payables à la signature du bail | T.V.A. (20%) | commercial 3-6-9 ans | ILAT Indice des Loyers des Activités Tertiaires | Mensuel d'avance | 9 | |||||||
| Total | 567 m² |
Localisation et accessibilité
- Autoroute: A proximité immédiate de l'A43 (à 2 km de l'entrée d'autoroute Isle d'Abeau n° 5)
Ces biens pourraient vous intéresser
| Étage | Bâtiment | Type | Surfaces | Disponibilité | Loyer | Charges | Honoraires | Fiscal | Bail | Révision annuelle | Prix | Charges | Honoraires | Fiscal | Paiement Loyer | lot | Coworking | |
|---|---|---|---|---|---|---|---|---|---|---|---|---|---|---|---|---|---|---|
| R+1 | Bureaux | 78 | 15 % HT du loyer annuel HT/HC à la charge du preneur, payables à la signature du bail | T.V.A. (20%) | ILAT Indice des Loyers des Activités Tertiaires | Mensuel d'avance | ||||||||||||
| RDC | Activités | 230 | 15 % HT du loyer annuel HT/HC à la charge du preneur, payables à la signature du bail | T.V.A. (20%) | ILAT Indice des Loyers des Activités Tertiaires | Mensuel d'avance | ||||||||||||
| RDC | Bureaux | 33 | 15 % HT du loyer annuel HT/HC à la charge du preneur, payables à la signature du bail | T.V.A. (20%) | ILAT Indice des Loyers des Activités Tertiaires | Mensuel d'avance | ||||||||||||
| Total Cellule 6 | Activités | 341 | 16 février 2026 | 91,5 HT/HC/m²/an | 1 200 HT/an | 15 % HT du loyer annuel HT/HC à la charge du preneur, payables à la signature du bail | T.V.A. (20%) | commercial 3-6-9 ans | ILAT Indice des Loyers des Activités Tertiaires | Mensuel d'avance | 6 | |||||||
| R+1 | Bureaux | 50 | 15 % HT du loyer annuel HT/HC à la charge du preneur, payables à la signature du bail | T.V.A. (20%) | ILAT Indice des Loyers des Activités Tertiaires | Mensuel d'avance | ||||||||||||
| RDC | Activités | 176 | 15 % HT du loyer annuel HT/HC à la charge du preneur, payables à la signature du bail | T.V.A. (20%) | ILAT Indice des Loyers des Activités Tertiaires | Mensuel d'avance | ||||||||||||
| Total Cellule 9 | Activités | 226 | 1er janvier 2026 | 92,92 HT/HC/m²/an | 1 200 HT/an | 15 % HT du loyer annuel HT/HC à la charge du preneur, payables à la signature du bail | T.V.A. (20%) | commercial 3-6-9 ans | ILAT Indice des Loyers des Activités Tertiaires | Mensuel d'avance | 9 | |||||||
| Total | 567 m² |









































