Ref : 1032514-0L
Location Bureau
Bureaux à louer - Irigny (69540) - 154 m²
Irigny (69540)
Loyer : 13 140 € / an
Surface 154 m²
Description du bien
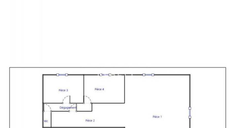
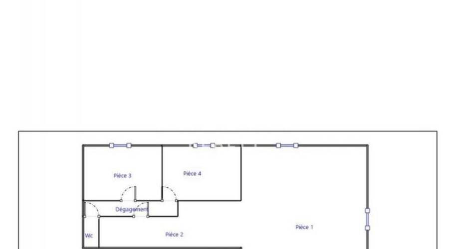
MALSH Realty vous propose à la location à Irigny, des bureaux d'une surface totale de 154,48 m² au 1er étage.
Ce local est à rafraîchir et bénéficie de nombreuses places de stationnement.
Emplacement stratégique, à proximité immédiate de l'A450 et des grands axes du Sud lyonnais.
Disponible immédiatement !
Prestations du bien
- Bureaux à rafraîchir
- 4 bureaux
- Sanitaire
- Éclairage par néons
- Isolation de type Shedisol
- Nombreuses places de stationnement
Informations financières
- Bail : commercial 3-6-9 ans
- Dépôt de garantie : 3 mois de loyer HT/HC
- Honoraires de commercialisation : 15% à la charge du preneur
Ce local professionnel vous est présenté par
Vous souhaitez nous joindre ?
Surfaces des locaux
| Étage | Bâtiment | Type | Surfaces | Disponibilité | Loyer | Charges | Honoraires | Fiscal | Bail | Révision annuelle | Prix | Charges | Honoraires | Fiscal | Paiement Loyer | lot | Coworking | |
|---|---|---|---|---|---|---|---|---|---|---|---|---|---|---|---|---|---|---|
| 1 | Bureaux | 154,48 | Immédiate | 85 HT/HC/m²/an | 15 % HT du loyer annuel HT/HC à la charge du preneur, payables à la signature du bail | T.V.A. (20%) | commercial 3-6-9 ans | ILAT Indice des Loyers des Activités Tertiaires | Trimestriel d'avance | |||||||||
| Total | 154,48 m² |
Localisation et accessibilité
- Bus: Bus TCL lignes C7, 15, 17 et 18
- SCNF: Gare de Pierre-Bénite à 5 min
- Metro: Métro ligne B arrêt "St-Genis-laval Hôp. Sud" en 5
- Autoroute: Accès immédiat à l'A450 et à l'A7
Ces biens pourraient vous intéresser
Ces articles peuvent vous intéresser
| Étage | Bâtiment | Type | Surfaces | Disponibilité | Loyer | Charges | Honoraires | Fiscal | Bail | Révision annuelle | Prix | Charges | Honoraires | Fiscal | Paiement Loyer | lot | Coworking | |
|---|---|---|---|---|---|---|---|---|---|---|---|---|---|---|---|---|---|---|
| 1 | Bureaux | 154,48 | Immédiate | 85 HT/HC/m²/an | 15 % HT du loyer annuel HT/HC à la charge du preneur, payables à la signature du bail | T.V.A. (20%) | commercial 3-6-9 ans | ILAT Indice des Loyers des Activités Tertiaires | Trimestriel d'avance | |||||||||
| Total | 154,48 m² |












































