Ref : 988818-0L
Location Bureau
Location de bureaux à Vourles - 641 m² divisibles dès 14 m²
Vourles (69390)
Loyer : 65 868 € / an
Surface 487 m²
Divisible dès 24 m²
Description du bien
MALSH Realty & Property vous propose, dans un Parc tertiaire entouré de verdure, calme, oxygène des surfaces de bureaux d'une surface totale de 641 m² divisible dès 14 m².
Des places de parkings dans parc fermé complètent ce bien.
Prestations du bien
- Salle de réunion commune de 37 m², divisible en deux
- Chauffage/climatisation réversible
- Electricité
- Baie de brassage - câblage RJ 45
- Alarme et accès à l'immeuble par badge
- Portail sur horloge
- Douche dans le lot 16 au R+1
- Sanitaires en parties communes
- Luminaires encastrés faux plafond
- Dalles moquette
- Placards intégrés à mi-hauteur sous les fenêtres
- Entretien des parties communes
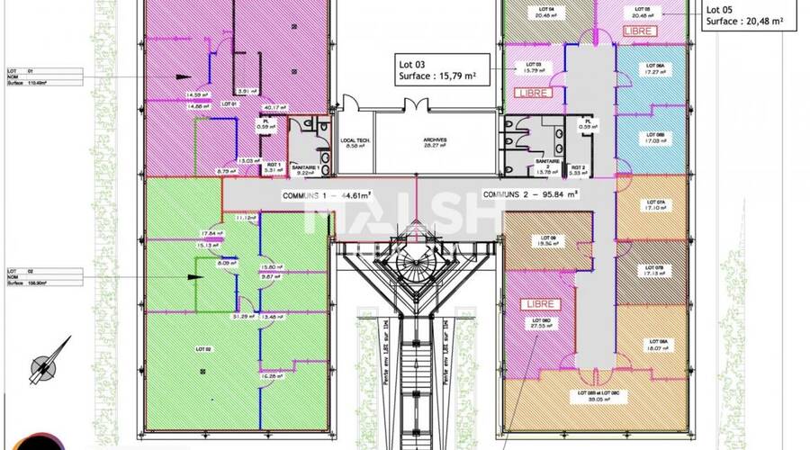
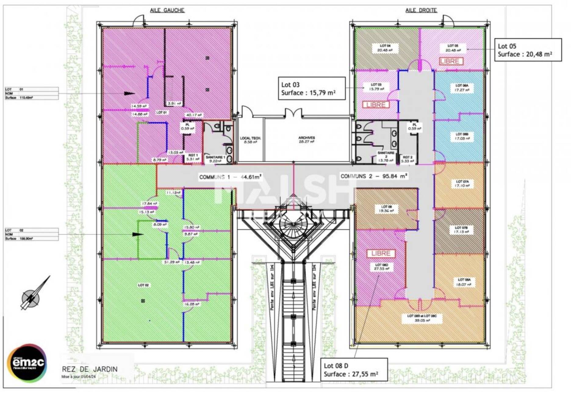
- Surface RDC : 56,58 m²
Informations financières
- Charges minimales : 1 545 €
- Bail : commercial 3-6-9 ans
- Taxe foncière : 5 €
- Informations location :
Conditions particulières à la location : Si bail précaire : 1 an ferme minimum
Si bail commercial : 3/6/9 - Dépôt de garantie : 3 mois de loyer HT/HC
- Honoraires de commercialisation : A la charge du preneur.
Ce local professionnel vous est présenté par
Vous souhaitez nous joindre ?
Surfaces des locaux
| Étage | Bâtiment | Type | Surfaces | Disponibilité | Loyer | Charges | Honoraires | Fiscal | Bail | Révision annuelle | Prix | Charges | Honoraires | Fiscal | Paiement Loyer | lot | Coworking | |
|---|---|---|---|---|---|---|---|---|---|---|---|---|---|---|---|---|---|---|
| 1 | Bureaux | 188,83 | Immédiate | 135 HT/HC/m²/an | 38 m²/an HT | 15 % du loyer annuel HT à la charge du preneur, payables à la signature | T.V.A. (20%) | commercial 3-6-9 ans | ILAT Indice des Loyers des Activités Tertiaires | Trimestriel d'avance | lot 16 | |||||||
| 1 | Bureaux | 80,35 | Immédiate | 135 HT/HC/m²/an | 38 m²/an HT | 15 % du loyer annuel HT à la charge du preneur, payables à la signature | T.V.A. (20%) | commercial 3-6-9 ans | ILAT Indice des Loyers des Activités Tertiaires | Trimestriel d'avance | Lots 15-4/5/6 | |||||||
| 1 | Bureaux | 73,6 | Immédiate | 135 HT/HC/m²/an | 38 m²/an HT | 15 % du loyer annuel HT à la charge du preneur, payables à la signature | T.V.A. (20%) | commercial 3-6-9 ans | ILAT Indice des Loyers des Activités Tertiaires | Trimestriel d'avance | Lot 15-1 | |||||||
| RDC | Bureaux | 56,58 | 1er janvier 2026 | 135 HT/HC/m²/an | 38 m²/an HT | 15 % du loyer annuel HT à la charge du preneur, payables à la signature | T.V.A. (20%) | commercial 3-6-9 ans | ILAT Indice des Loyers des Activités Tertiaires | Trimestriel d'avance | 8B-8C | |||||||
| RDC | Bureaux | 35,36 | Immédiate | 135 HT/HC/m²/an | 38 m²/an HT | 15 % du loyer annuel HT à la charge du preneur, payables à la signature | T.V.A. (20%) | commercial 3-6-9 ans | ILAT Indice des Loyers des Activités Tertiaires | Trimestriel d'avance | Lot 8-D | |||||||
| RDC | Bureaux | 28,19 | Immédiate | 135 HT/HC/m²/an | 38 m²/an HT | 15 % du loyer annuel HT à la charge du preneur, payables à la signature | T.V.A. (20%) | commercial 3-6-9 ans | ILAT Indice des Loyers des Activités Tertiaires | Trimestriel d'avance | Lot 9 | |||||||
| RDC | Bureaux | 24,92 | 1er janvier 2026 | 135 HT/HC/m²/an | 38 m²/an HT | 15 % du loyer annuel HT à la charge du preneur, payables à la signature | T.V.A. (20%) | commercial 3-6-9 ans | ILAT Indice des Loyers des Activités Tertiaires | Trimestriel d'avance | Lot 7-B | |||||||
| Total | 487,83 m² |
Localisation et accessibilité
- Autoroute: Autoroute A450
Ces biens pourraient vous intéresser
Ces articles peuvent vous intéresser
| Étage | Bâtiment | Type | Surfaces | Disponibilité | Loyer | Charges | Honoraires | Fiscal | Bail | Révision annuelle | Prix | Charges | Honoraires | Fiscal | Paiement Loyer | lot | Coworking | |
|---|---|---|---|---|---|---|---|---|---|---|---|---|---|---|---|---|---|---|
| 1 | Bureaux | 188,83 | Immédiate | 135 HT/HC/m²/an | 38 m²/an HT | 15 % du loyer annuel HT à la charge du preneur, payables à la signature | T.V.A. (20%) | commercial 3-6-9 ans | ILAT Indice des Loyers des Activités Tertiaires | Trimestriel d'avance | lot 16 | |||||||
| 1 | Bureaux | 80,35 | Immédiate | 135 HT/HC/m²/an | 38 m²/an HT | 15 % du loyer annuel HT à la charge du preneur, payables à la signature | T.V.A. (20%) | commercial 3-6-9 ans | ILAT Indice des Loyers des Activités Tertiaires | Trimestriel d'avance | Lots 15-4/5/6 | |||||||
| 1 | Bureaux | 73,6 | Immédiate | 135 HT/HC/m²/an | 38 m²/an HT | 15 % du loyer annuel HT à la charge du preneur, payables à la signature | T.V.A. (20%) | commercial 3-6-9 ans | ILAT Indice des Loyers des Activités Tertiaires | Trimestriel d'avance | Lot 15-1 | |||||||
| RDC | Bureaux | 56,58 | 1er janvier 2026 | 135 HT/HC/m²/an | 38 m²/an HT | 15 % du loyer annuel HT à la charge du preneur, payables à la signature | T.V.A. (20%) | commercial 3-6-9 ans | ILAT Indice des Loyers des Activités Tertiaires | Trimestriel d'avance | 8B-8C | |||||||
| RDC | Bureaux | 35,36 | Immédiate | 135 HT/HC/m²/an | 38 m²/an HT | 15 % du loyer annuel HT à la charge du preneur, payables à la signature | T.V.A. (20%) | commercial 3-6-9 ans | ILAT Indice des Loyers des Activités Tertiaires | Trimestriel d'avance | Lot 8-D | |||||||
| RDC | Bureaux | 28,19 | Immédiate | 135 HT/HC/m²/an | 38 m²/an HT | 15 % du loyer annuel HT à la charge du preneur, payables à la signature | T.V.A. (20%) | commercial 3-6-9 ans | ILAT Indice des Loyers des Activités Tertiaires | Trimestriel d'avance | Lot 9 | |||||||
| RDC | Bureaux | 24,92 | 1er janvier 2026 | 135 HT/HC/m²/an | 38 m²/an HT | 15 % du loyer annuel HT à la charge du preneur, payables à la signature | T.V.A. (20%) | commercial 3-6-9 ans | ILAT Indice des Loyers des Activités Tertiaires | Trimestriel d'avance | Lot 7-B | |||||||
| Total | 487,83 m² |

















































