Ref : 2156143-0L
Location Local commercial
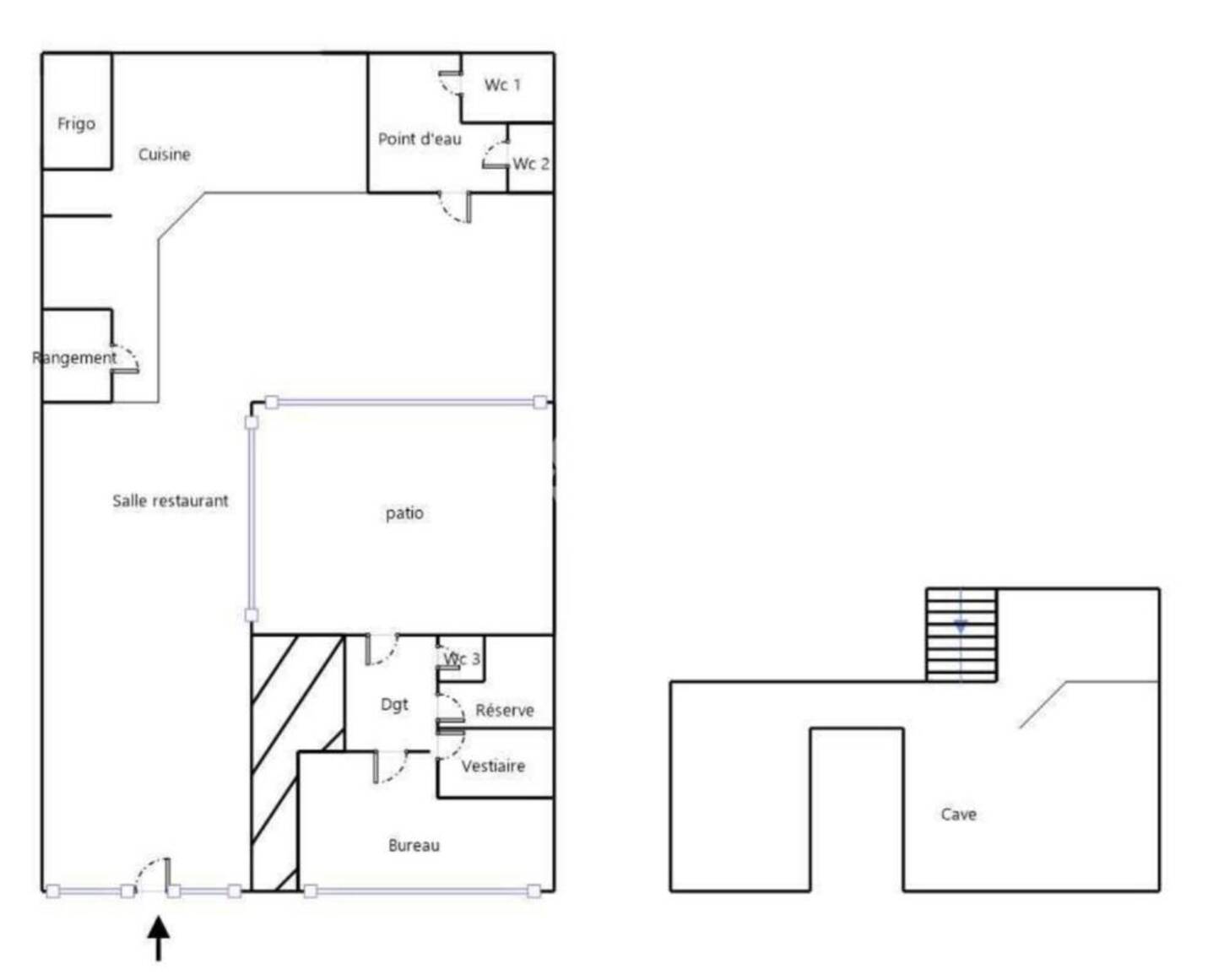
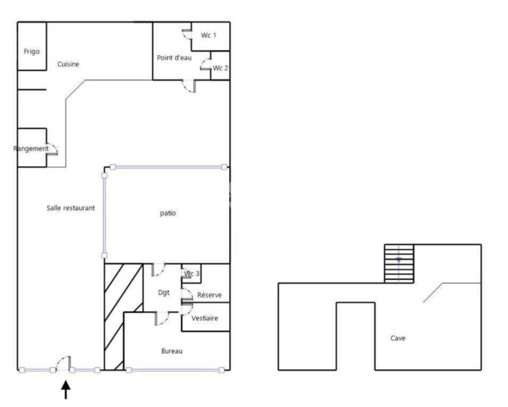
Restaurant à Louer - Lyon 3e - 275 m² - Licence IV
Lyon 3 (69003)
Loyer : 60 000 € / an
Surface 275 m²
Description du bien
MALSH Realty vous propose en location gérance un fonds de commerce de restauration de 275 m² situé dans le 3ème arrondissement de Lyon. Cet établissement dispose d'une forte capacité d'accueil, de nombreux espaces extérieurs, d'une Licence IV et d'une extraction de 400 mm. Équipement complet pour une reprise immédiate. CA 2025 : 460 248 euros HT. Opportunité idéale pour un restaurateur confirmé. Photos non contractuelles.
Prestations du bien
- Restaurant entièrement équipé
- Licence IV
- Climatisation réversible
- Extraction 400 mm
- Alimentation électrique triphasée
- Cuisine équipée (plaque induction, sans gaz)
- Espaces extérieurs : terrasse estivale (16 couverts), intérieur (100 couverts), patio (40 couverts)
- Visibilité :Bonne
- Licence :IV
- Extracteur de fumées : oui
Informations financières
- Charges minimales : 167 €
- Dépôt de garantie : 3 mois de loyer HT/HC
Ce local professionnel vous est présenté par
Vous souhaitez nous joindre ?
Surfaces des locaux
| Étage | Bâtiment | Type | Surfaces | Disponibilité | Loyer | Charges | Honoraires | Fiscal | Bail | Révision annuelle | Prix | Charges | Honoraires | Fiscal | Paiement Loyer | lot | Coworking | |
|---|---|---|---|---|---|---|---|---|---|---|---|---|---|---|---|---|---|---|
| RDC | Locaux Commerciaux | 275 | 218,18 | 2 000 HT/an | 15% HT du loyer annuel HT à la charge du preneur, payables à la signature du bail | T.V.A. (20%) | ILC Indice des Loyers Commerciaux | Trimestriel d'avance | ||||||||||
| Total | 275 m² |
Localisation et accessibilité
- Bus: Bus C9 à 2 min (Arrêt Palais de Justice) : Direct vers Bellecour ou Gare Part-Dieu., Bus C13 / C11 à 5 min (Arrêt Part-Dieu Ser
- SCNF: Gare Part-Dieu ~8-10 min à pied (Accès TGV / Rhône Express Aéroport), Gare Perrache ~15 min (Direct via Tram T1), Gare Jean Mac
- Metro: Métro B à 5 min (Station Place Guichard - Bourse d
- Tramway: Tram T1 à 3 min (Arrêt Palais de Justice - Mairie du 3ème) : Direct vers Perrache ou Gerland.
Ces articles peuvent vous intéresser
| Étage | Bâtiment | Type | Surfaces | Disponibilité | Loyer | Charges | Honoraires | Fiscal | Bail | Révision annuelle | Prix | Charges | Honoraires | Fiscal | Paiement Loyer | lot | Coworking | |
|---|---|---|---|---|---|---|---|---|---|---|---|---|---|---|---|---|---|---|
| RDC | Locaux Commerciaux | 275 | 218,18 | 2 000 HT/an | 15% HT du loyer annuel HT à la charge du preneur, payables à la signature du bail | T.V.A. (20%) | ILC Indice des Loyers Commerciaux | Trimestriel d'avance | ||||||||||
| Total | 275 m² |




















