Ref : 2155587-0
Location Local commercial
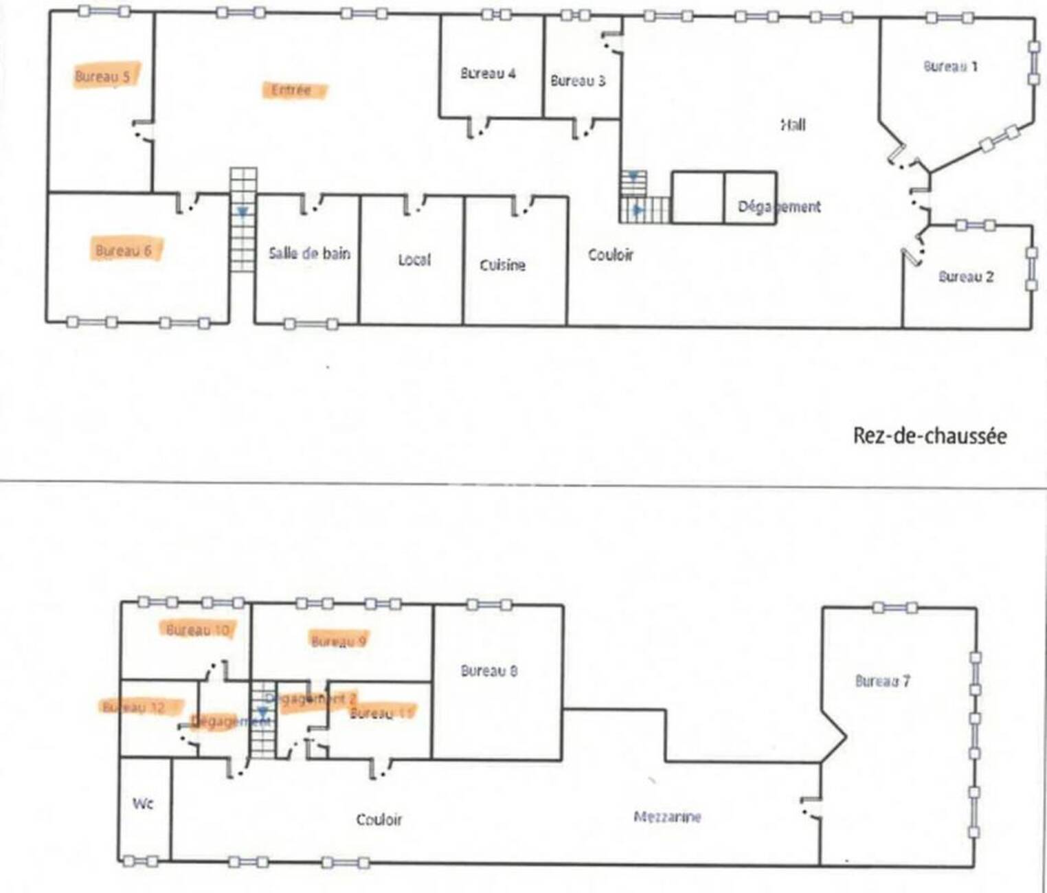
SAINT ETIENNE - CENTRE VILLE - LOCAL COMMERCIAL - A LOUER OU A VENDRE - 296 m²
Saint-Étienne (42000)
Loyer : 26 400 € / an
Surface 296 m²
Description du bien
MALSH Realty propose à la vente ou à la location en plein coeur de Saint Etienne, sur axe passant voie du tram, une surface de 296 m² à usage commercial ou tertiaire sur deux niveaux, bénéficiant d'un bon visuel en angle de rue.
Prestations du bien
- Surface sur 2 niveaux bénéficiant d'un excellent visuel sur l'axe principal de Saint Etienne, ainsi que de 2 entrées.
- Prestations classiques :
- Sol moquette ou parquet flottant,
- Cloisons placoplâtre peint,
- Faux plafonds dalles et luminaires encastrés
- Chauffage central individuel gaz, distribution par radiateurs,
- Huisseries bois double vitrage,
- Sanitaires H/F et PMR
- Cave
- Façade de l'immeuble rénovée en 2021
- Activités interdites : Tous commerces sauf restauration
Informations financières
- Charges minimales : 152 €
- Bail : commercial 3-6-9 ans
- Taxe foncière : 5 216 € / an charge preneur
- Informations location :
Conditions particulières à la location : Cave en sous-sol 52,56 m²
- Dépôt de garantie : 3 mois de loyer HT/HC
Ce local professionnel vous est présenté par
Vous souhaitez nous joindre ?
Surfaces des locaux
| Étage | Bâtiment | Type | Surfaces | Disponibilité | Loyer | Charges | Honoraires | Fiscal | Bail | Révision annuelle | Prix | Charges | Honoraires | Fiscal | Paiement Loyer | lot | Coworking | |
|---|---|---|---|---|---|---|---|---|---|---|---|---|---|---|---|---|---|---|
| R+1 | Locaux Commerciaux | 133,4 | Immédiate | 1 825 HT/An | 20% HT du loyer annuel HT à la charge du preneur, payables à la signature du bail | T.V.A. (20%) | commercial 3-6-9 ans | ILC Indice des Loyers Commerciaux | 1 825 HT/An | Droits d'enregistrement | Trimestriel d'avance | |||||||
| RDC | Locaux Commerciaux | 163 | Immédiate | 1 825 HT/An | 20% HT du loyer annuel HT à la charge du preneur, payables à la signature du bail | T.V.A. (20%) | commercial 3-6-9 ans | ILC Indice des Loyers Commerciaux | 1 825 HT/An | Droits d'enregistrement | Trimestriel d'avance | |||||||
| Total | 296,4 m² |
Localisation et accessibilité
- SCNF: St-Étienne-Le Clapier (Gare SNCF)
- Tramway: Ligne 2 - Arrêt Gambetta
Ces biens pourraient vous intéresser
Ces articles peuvent vous intéresser
| Étage | Bâtiment | Type | Surfaces | Disponibilité | Loyer | Charges | Honoraires | Fiscal | Bail | Révision annuelle | Prix | Charges | Honoraires | Fiscal | Paiement Loyer | lot | Coworking | |
|---|---|---|---|---|---|---|---|---|---|---|---|---|---|---|---|---|---|---|
| R+1 | Locaux Commerciaux | 133,4 | Immédiate | 1 825 HT/An | 20% HT du loyer annuel HT à la charge du preneur, payables à la signature du bail | T.V.A. (20%) | commercial 3-6-9 ans | ILC Indice des Loyers Commerciaux | 1 825 HT/An | Droits d'enregistrement | Trimestriel d'avance | |||||||
| RDC | Locaux Commerciaux | 163 | Immédiate | 1 825 HT/An | 20% HT du loyer annuel HT à la charge du preneur, payables à la signature du bail | T.V.A. (20%) | commercial 3-6-9 ans | ILC Indice des Loyers Commerciaux | 1 825 HT/An | Droits d'enregistrement | Trimestriel d'avance | |||||||
| Total | 296,4 m² |



























